Ein Ort der Ge­mein­schaft

Gesamtsanierung Nationalbibliothek Bern; Studienauftrag im selektiven Verfahren

Bibliotheken sind nicht länger stille Studierstuben. Im Zuge des Studienauftrags zur Gesamtsanierung der Nationalbibliothek in Bern galt es, das Haus zu öffnen und gleichzeitig als Motor für weitere Entwicklungen im Quartier zu etablieren.

Publikationsdatum
23-03-2023
Hella Schindel
Innenarchitektin und Fachjournalistin, Korrespondentin Architektur/Innenarchitektur

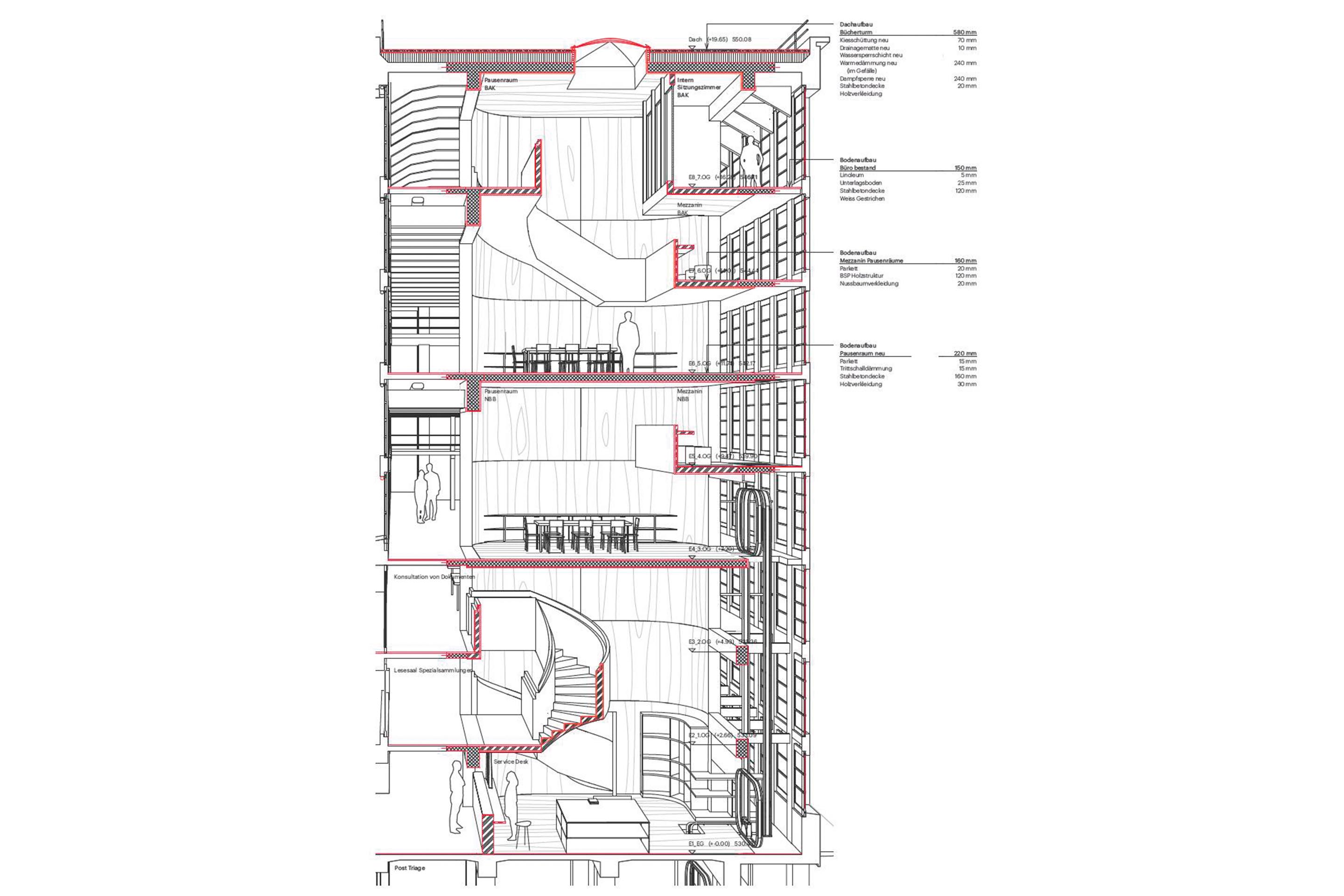
Das denkmalgeschützte Gebäude der Nationalbibliothek in Bern ist ein Schmuckstück: Als Vertreter des Neuen Bauens setzte seine klare Gestalt 1931 Massstäbe. Das innenräumliche Konzept folgt einer einfachen Figur: Zwei viergeschossige Flügel flankieren den zentralen Erschlies­sungsraum. Im Erdgeschoss beherbergen sie freundlich und ruhig gestaltete Lesesäle, in den oberen Etagen Büroräume. Ein Bücherturm, der sich rückseitig an die Halle anschliesst, stabilisiert das Gebäude optisch und statisch. Strapaziert durch nötige Erweiterungen in den Jahren 1994 und 2008, muss das Ensemble nun einer weiteren Vergrösserung unterzogen werden, auch weil die früheren Eingriffe schwere statische Probleme nach sich gezogen haben.

Neben den üblichen gestiegenen Anforderungen hinsichtlich Energieversorgung, Brandschutz und Erdbebensicherheit waren Verbesserungen zum Wohl der Mitarbeitenden und Nutzergruppen gefragt: getrennte Wegführung für interne und externe Abläufe, gut belichtete Arbeitsplätze, Ateliers, Veranstaltungsräume und nicht zuletzt ein Raumklima, das auch den Bücherbeständen zuträglich ist. Dafür sind insgesamt zusätzliche 1350 m² Nutzfläche veranschlagt.

Zudem haben sich die Ansprüche verändert, denen eine Bibliothek zukünftig Rechnung zu tragen hat: Im Idealfall bietet sie einen für alle und jederzeit zugänglichen Ort der Begegnung mit veränderlichen Nutzungsmöglichkeiten. In diesem Fall lag der Gestaltungsspielraum im Austarieren zwischen dem Bewahren der denkmalgeschützten Strukturen und einer in ihrer Nutzung immer neu definierbaren Fläche.

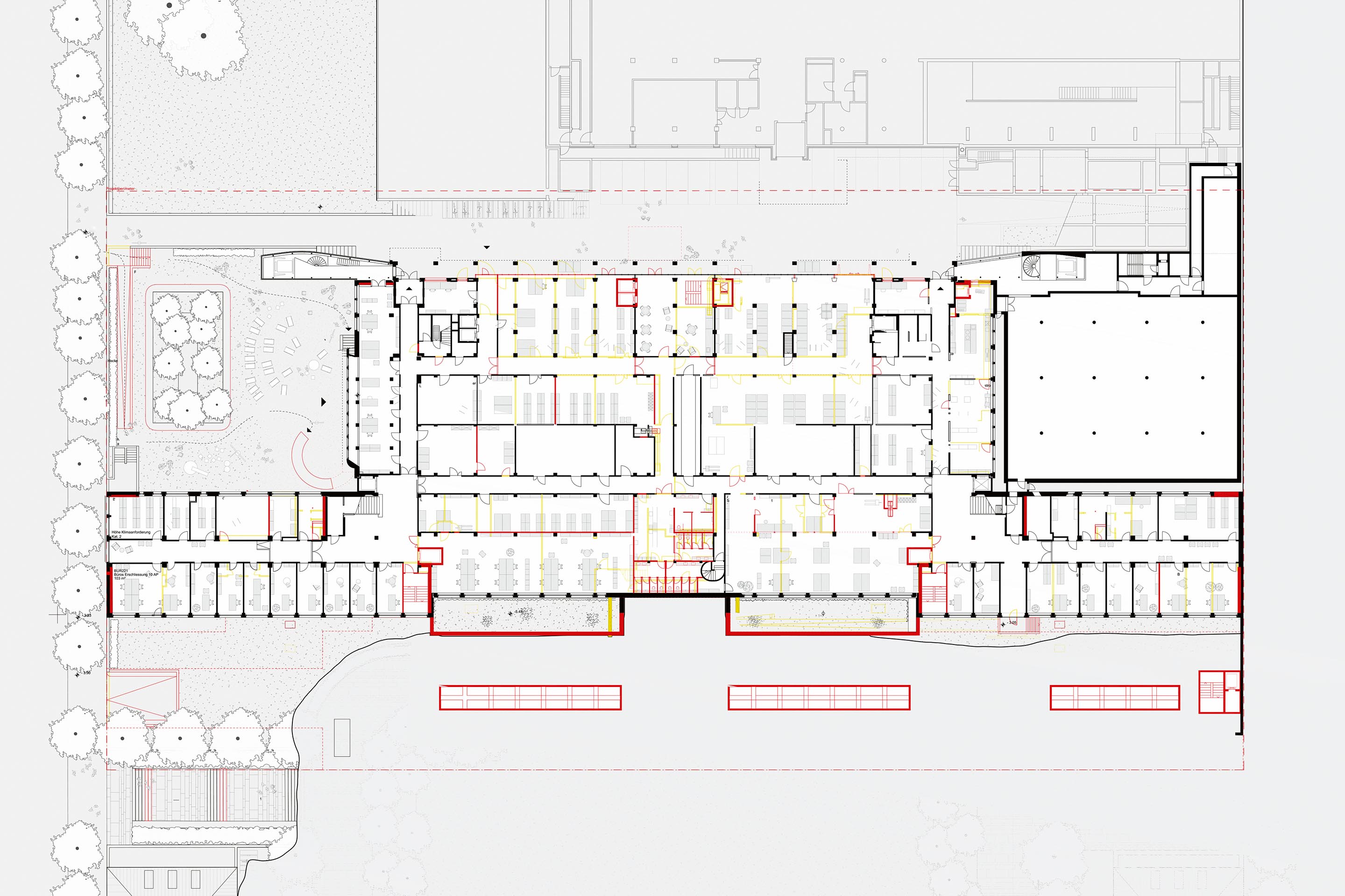
Und als ob eine solche Bauaufgabe nicht bereits komplex genug wäre, kommen hier auch noch konkrete städtebauliche Themen hinzu: Der Aussenraum, der zwischen dem Eingang der Bibliothek und dem benachbarten Gymnasium liegt, wird zurzeit von Pavillons der Schule belegt. In einem Ideenparameter erwartete die Jury Vorschläge zu einer adäquaten öffentlichen Nutzung, von der beide Gebäude, aber auch beide Institutionen profitieren.

Als Teil des Museumsquartiers, das sich in der Entwicklung befindet, spielen der Aussenraum und die schwellenlosen Wege zu den benachbarten Häusern darüber hinaus eine denkbar wichtige Rolle bei der Entwurfsfindung.

Um den unterschiedlichen Ebenen der Aufgabe Rechnung zu tragen, hat der Bund einen Studienauftrag im selektiven Verfahren veranstaltet. Sechs Beiträge aus 32 Einreichungen durch General­planerteams konnten weiterbearbeitet und präsentiert werden.

Christ & Gantenbein mit Drees & Sommer, Basel

Als Gewinner geht das Projekt von Christ & Gantenbein mit Drees & Sommer, Basel, hervor. Ausschlaggebend ist hier der Respekt vor dem Bestand. Die streng gegliederten Räume in ein neues Nutzungsprogramm zu überführen, erfordert einen sensiblen Umgang mit dem baulichen Erbe. Durch den Zusammenschluss der Eingangshalle und den Lesesälen entsteht eine grosse, offene Fläche, locker als Ausstellungs- und Eventbereich bezeichnet. An ihren seitlichen Aussengrenzen zu den Strassen im Osten und Westen schliessen sich Freiflächen an: Zur Bernastrasse ergänzt ein Balkon, der mittels Rampe über den Garten erschlossen ist, den Ausstellungsbereich. Zur Helvetia­stras­se im Osten erstreckt sich die Terrasse eines Bistros, das dem Eventbereich vorgelagert ist, bis ans Trottoir. Die vorhandene Mittelachse des Gebäudes wird auf diese Weise betont und verleiht dem Raumgefüge anstelle der entfernten innenräumlichen Gliederung Halt. Um den räumlichen Einschränkungen im Bücherturm zu begegnen, schlagen die Planenden vor, die bestehende Kaskadentreppe zu entfernen. Durch versetzte Nutzungen, die den gewonnenen Freiraum einbinden, entstehen einzelne Bereiche mit doppelter Raumhöhe.

Gleichzeitig trägt der Transfer der Treppe an ihren bauzeitlich ursprünglichen Ort zur zwischenzeitlich abhandengekommenen statischen Sicherheit bei. Inhaltlich überzeugt die Idee, die Bibliothek des Gymnasiums in den Bücherturm zu verlegen und damit einerseits Räume im Schulhaus zu gewinnen, andererseits den Schülerinnen und Schülern den Weg in die Bibliothek zu einer Selbstverständlichkeit zu machen. Die gefragten Ateliers befinden sich in Untergeschossen. Glasfenster im Boden vor dem Haupt­eingang lassen Tageslicht in diese Räume fallen.

Insgesamt fügt sich der Entwurf unaufgeregt, ein bisschen zu leise, in die Logik des Bestands ein. Der Gestaltung der Aussenräume und Wege ist ein hoher Stellenwert bei der Neuausrichtung der Bibliothek beizumessen. Das andere Schwergewicht lastet auf der inhaltlichen Konzeption, für die das Haus ein tragfähiges Gerüst bietet. Wenn baulich und stadträumlich gelingt, was das Planerteam sich hier vorgenommen hat, erscheint das Fehlen einer zeitgenössischen architek­tonischen Setzung zweitrangig – schade ist es trotzdem.

Miller Maranta, Basel

Stark ist hingegen die Geste von Miller Maranta, Basel, mit der sie zwei prominente Treppen ins Zentrum ihres Entwurfs stellen. Im Kreuzungspunkt der Quer- und der Längsachse bietet eine zweiläufige Treppenanlage Orientierung zu den neuen Räumen im zweiten Unter­geschoss. Die Öffnung mag zuerst als Verlust für das horizontale Wegenetz erscheinen, als Aufwertung der öffentlichen Räume im Untergeschoss ist sie aber architektonisch und inhaltlich begründet. Zugleich funktioniert sie wie ein Auftakt zu der ausgreifenden Wendeltreppe, die in der gleichen Achse im Bücherturm steht und auf die vertikale Anbindung der Obergeschosse verweist.

Beide Treppen bieten an­genehme Aufenthaltsräume und laden zu einer vernetzten, unkonventionellen Nutzung des Gebäudes ein. Die Kühnheit, mit dem dieser Entwurf das Gebäude in die Gegenwart katapultiert, ist zugleich auch der Haken – denn mit den Einschränkungen durch den Denkmalschutz und die Staatskasse wären die tiefen Eingriffe nur schwer zu vereinbaren.

Harry Gugger Studio, Basel

Was die «Institution Nationalbib­liothek» für die nähere Umgebung und das Museumsquartier auslösen kann, spiegelt sich im Beitrag vom Team um Harry Gugger Studio, Basel, bei dem von aussen nach innen gedacht wurde: die Erläuterungen auf dem ersten Plan widmen sich der städtebaulichen Leitidee, der Erschliessung und dem Freiraumkonzept. Auf der Basis des bestehenden Quartierplans entwickeln sich Stras­sen zu Begegnungszonen. Von detaillierten Überlegungen zum Wegnetz bei Tag- und Nachtbetrieb bis zur Verlagerung des zusätzlichen Raumprogramms in den Untergrund kommt der geschickten Einbindung des Aussenraums ein hoher Wert zu.

Im Inneren konzentrieren sich die weiteren Eingriffe auf Erschliessungen, darunter auf eine neue Gestalt des Bücherturms, der am Ende durch eine in Teilstücken gewendelte Treppe und einer Auskleidung mit Holzpaneelen als Fremdkörper erscheint, statt sich mit dem Originalbau zu verbinden.

Umfangreiche Vorarbeiten

Jedem der sechs Beiträge, die – abgesehen vom Siegerentwurf – nicht rangiert wurden, liegt ein anderer Ansatz zugrunde. Allen gemein ist, dass jeweils ein wichtiger Teil der Bauaufgabe, sei es Statik, Denkmalschutz oder Städtebau, zugunsten einer vertieften Auseinandersetzung mit einer anderen Fragestellung zu kurz kam. Was bei diesem Umfang der Thematik keineswegs verwerflich und im Diskurs vermutlich lösbar ist. Die acht ausgestellten Blätter des Siegerteams, auf deren erstem ich 23 einzelne Pläne zähle, geben einen Eindruck von den Anforderungen, die es zu bedenken galt.

Dieser Artikel ist erschienen in TEC21 9/2023 «Infrastruktur digital erfassen».

-> Jurybericht auf competitions.espazium.ch.

Auszeichnungen

Siegerprojekt «Natbib»
Christ & Gantenbein / Drees & Sommer, Basel

Weitere Projekte

«Petit Prince»
Miller & Maranta, Basel
«Scrinium»
Harry Gugger Studio, Basel
«Galilea»
Armon Semadeni Architekten, Zürich
«Helvetica»
Kast Kaeppeli Architekten, Bern
«Helvetica»
Masswerk Architekten & Halter Casa­grande Partner, Luzern

FachJury

Hanspeter Winkler, Leiter Projektmanagement BBL (Vorsitz), Bern; Jean-Daniel Gross, Denkmalpfleger Stadt Bern; Daniel Schürer, Architekt, Zürich; Cédric Bachelard, Architekt, Basel; Toni Weber, Landschaftsarchitekt, Solothurn; Veronika Niederhauser, Architektin, Portfoliomanagerin AGG, Bern; Anja Beer, Architektin (Ersatz), Basel

SachJury

Damian Elsig, Direktor ­Nationalbibliothek, Bern; Yves Fischer, Stellvertretender Direktor BAK, Bern; Dominique Leuba, Projektentwickler, IM BBL, Genf; Elena Balzardi, Vizedirektorin National­bibliothek (Ersatz), Bern

Verwandte Beiträge