Ein Holz­hoch­haus für Bern

Holliger O1, Bern; Projektwettbewerb im selektiven Verfahren

Publikationsdatum
08-06-2021

Im neuen Quartier «Holliger» in Berns Westen, früher «Warmbächli» geheissen, tut sich einiges. Nachdem bereits für fünf Baufelder Wettbewerbsresultate für Bebauungen vorliegen1 hat nun der von der Eisenbahner Baugenossenschaft (EBG) ausgeschriebene Wettbewerb für das Baufeld O1 ein Resultat erbracht, das der Stadt Bern das erste Hochhaus in Holz-Hybrid-Bauweise beschert.

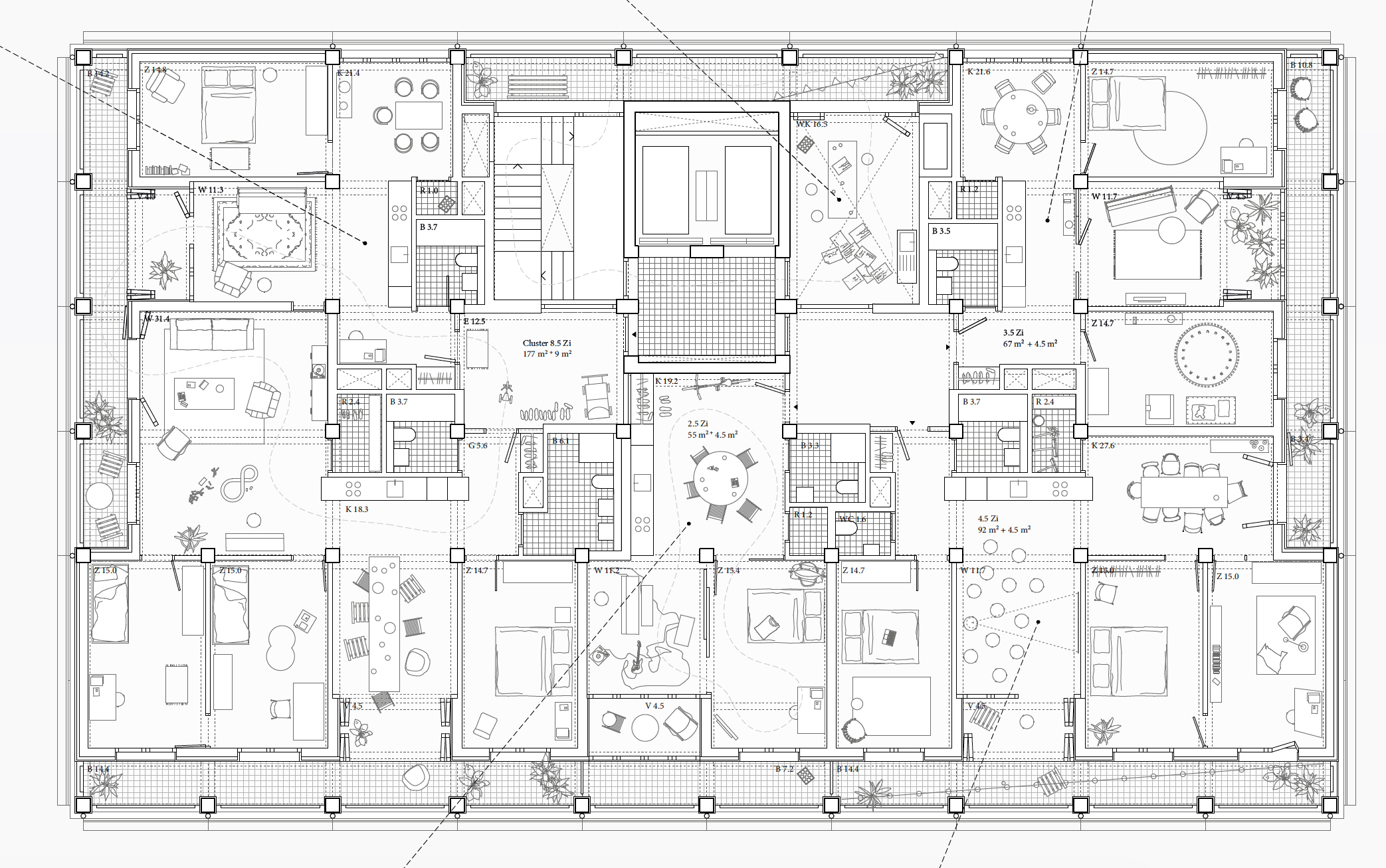
Gleich vier attraktive Projekte hat die Jury Mitte Januar 2021 gekürt. Den ersten Rang belegt das Projekt «Frau Holle», ein hybrider Bau aus Holz und Beton, eingereicht vom Büro Jaeger Koechlin Architekten in Basel. Der Projektentwurf sieht ein Hochhaus mit hybrider Holz-Beton Bauweise vor. Neben 68 Wohnungen, die geschossweise individuelle Grössen und Grundrisse aufweisen können sowie Gemeinschaftsräume und Jokerzimmer, sind auf dem Dach des Turms ein Restaurant und begrünte Flächen vorgesehen.

Den 2. Rang belegt das Projekt «Come Together» von Graber Pulver Architekten, Bern. Auf dem 3. Rang folgt das Projekt «Fiat» von Studio Burkhardt mit Lucas Michael aus Zürich, auf dem 4. Rang «The bright side» von Studio TEN mit Nemanja Zimonjic und Scott Lloyd aus Zürich.

Gesucht: preiswerter Wohnraum der Begegnungen fördert

Die Wettbewerbsausschreibung sah vor, ein «soziales und ökologisches Leuchtturmprojekt» zu realisieren. In der Ausschreibung ist zu lesen: «Das Hochhaus soll einerseits stadtnahen, preiswerten Wohnraum bereitstellen, andererseits aber auch den Nachweis erbringen, dass Hochhäuser mit einer vertikalen Erschliessung sich eignen, Begegnung zu fördern und der Anonymität entgegenzuwirken. Die EBG hat langjährige Erfahrung mit Hochhäusern. Sie ist interessiert, neue Aspekte des Hochhauswohnungsbaus umzusetzen und neues Wohnen anzubieten.»

Pläne und Jurybericht zum Wettbewerb finden Sie auf competitions.espazium.ch

Die Genossenschaft suchte demnach ausdrücklich Projektvorschläge, die in allen drei Bereichen der Nachhaltigkeit – Gesellschaft, Wirtschaft und Umwelt – insgesamt zu überzeugen vermögen. Sie ist sich sicher, dass gerade Hochhäuser mit zentraler vertikaler Erschliessung besonders geeignet sind, Begegnung zu fördern und so der Anonymität entgegenzuwirken. Dabei zeigte sich die Bauherrschaft ausdrücklich bereit, auch unkonventionelle Ideen mitzutragen.

Ein Hochhaus mit Nachbarschaften

Die Jury hat sich beim preisgekrönten Projekt «Frau Holle» unter anderem von der Idee überzeugen lassen, jeweils drei Geschosse um allgemein genutzte Räume, Sondernutzungen wie überhohe Waschräume, Ateliers oder Spielzimmer mit jeweils zwei Jokerzimmern zusammenzufassen. So sollen hausinterne Gemeinschaften entstehen, die bereits beim Verlassen des Aufzugs und vor dem Betreten der eigenen Wohnung eine vertraute Atmosphäre schaffen. In einem Haus mit 68 Wohnungen ist dies ein anspruchsvolles Ziel. Die Anordnung der Räume und die architektonische Gestaltung mögen dafür Grundlagen schaffen, zum Leben bringen müssen das erwünschte Beziehungsnetz letztlich die Bewohner.2 Auf der Wettbewerbseingabe haben die Architekten den französischen Schriftsteller Georges Perec zitiert:«Man sollte lernen mehr in den Treppenhäusern zu leben.» (aus: Träume von Räumen, 1974).

Diese Erschliessung mit gemeinschaftlichen Räumen liegt an der Nordostfassade, die Wohnungen profitieren von den besonnten Fassadenseiten. Über natürlich belichtete Vorräume – eigentlich halbprivate Entrées – sind jeweils zwei oder drei Wohnungen zugänglich. Dank der Anordnung konstanter Vertikalerschliessungen, einem ausgeklügelten statischen System ohne Einbezug der Wohnungstrennwände und einer intelligenten Kombination von Aussenräumen und Wohnveranden, würden sich die Wohnungen im Extremfall auch geschossweise unterschiedlich gestalten lassen, stellt die Jury fest. Im Lebenszyklus des Hauses können sie mit beschränktem Aufwand neuen Bedürfnissen angepasst werden. Dazu trägt sicherlich auch der klare Holzstützenraster (6,5 x 3,25 m) bei. Insgesamt kann die so erreichte Flexibilität, Vielfalt, Wirtschaftlichkeit und Systemtrennung als innovativer Beitrag bezeichnet werden.

In den Grundrissen zeigt sich jeweils eine zentral gelegene Kücheneinheit von der aus die in unterschiedliche Himmelrichtungen orientierten Wohn- und Essräume erschlossen sind. Am Ende der Küchenzeile findet sich eine Veranda. Die Wohnungen weisen keine klare Trennung zwischen Tag- und Nachtbereichen auf. Dies bewirkt eine hohe Flexibilität der Nutzung.

Ein Hochhaus mit öffentlichen Bereichen

Der mit einem doppelten Sockelgeschoss, zwei Untergeschossen und mit 15 Wohnungsgeschossen im Holliger-Quartier dominante Bau kommt am Rande der Bahnstrasse neben dem Gleisfeld des Güterbahnhofs zu stehen und bildet so einen markanten Abschluss der teils bereits im Bau befindlichen Neubebauung im Holliger. Ausdrücklich lobt die Jury die mit dem zweigeschossigen Sockel, Arkade und Aussentreppe erreichte Verankerung in der Umgebung und Verzahnung der oberen und unteren Quartierebene und die so gegebenen Möglichkeiten für unterschiedliche öffentliche Nutzungen.

Im Dachgeschoss ist ein nach Südwesten orientiertes Restaurant mit abtrennbarem Saal und Terrasse vorgesehen. Eine rundum verlaufende Pergola verbindet diese Elemente und verweist so nach aussen auf diese öffentliche Nutzung.

Ökonomischer Holzbau und angemessene Architektur

In Bezug auf die Baukosten liege das Projekt wenig über dem Durchschnitt aller Eingaben, schreibt die Jury. Die Holzkonstruktion und die damit verbunden geringen Lasten wirken sich ebenso vorteilhaft auf die Ökonomie des Hauses aus, wie die kompakte Anordnung der flächeneffizienten Wohnungen mit angemessenem Angebot von allgemeinen Räumen.

Die Jury zeigte sich besonders überzeugt von der Typologie, die vielschichtig um die Holz-Beton- Verbundbauweise vertieft wird und als taugliche Antwort zum Thema der Reduktion des CO2-Ausstosses zu bewerten sei. Der Schwerpunkt liege nicht allein in der konstruktiven Innovation, sondern vielmehr in dem vielseitigen Einbezug technischer, ökonomischer und sozialer Aspekte, welche eine spezifische Architektur für den Ort und die Eisenbahner-Baugenossenschaft kreiere.

Wettbewerbsform / Kriterien

Der Wettbewerb wurde nach Ordnung 142 der SIA als einstufiger Projektwettbewerb für Architektur- und Ingenieurwettbewerbe durchgeführt und erfolgte anonym. 12 Teams wurden zum Wettbewerb zugelassen. Beurteilungskriterien waren insbesondere:

  • Architektonische Qualität der Gesamtlösung
  • Umsetzung des Nutzungsprofils
  • Soziale, ökologische und ökonomische Nachhaltigkeit
  • Vielfältiger und flexibler Wohnungsmix
  • Flexibilität der Baustruktur
  • Berücksichtigung potenzieller Emissionen von Lärm, Licht und Geruch
  • Gute Adressbildung und Auffindbarkeit

1 Weitere Beiträge zum neuen Quartier «Holliger»:
Holliger O1, Bern
Siedlung «Holliger» Baubereich U1, Bern
Die Su­che nach der idea­len Wohn­form
Holliger U2, Bern
Fle­xi­bel und durch­mischt
Siedlung «Holliger» Baubereiche O3/U3

2 Diese Idee lag auch dem Mitte Dezember 2019 auf espazium publizierten Projekt für das Wohnhaus PI in Zug von Duplex Architekten mit WaltGlamarini Ingenieure und Implenia Schweiz zugrunde.

Verwandte Beiträge