Bau­kunst für News

Das neue SRF News- und Sport-Gebäude in Zürich-Oerlikon ist so vielschichtig wie die Wirklichkeit, die dem Publikum von dort aus präsentiert wird. Dennoch wirkt die Komplexität nicht aufgesetzt. Konstruktion und Raumprogramm sind flexibel, um für Neuentwicklungen im Newsgeschäft gerüstet zu sein.

Publikationsdatum
09-01-2020

Es zeichnet den wahren Dandy aus, dass er die ­Konvention so perfekt beherrscht, dass er ihr mit leichter Hand jenen Dreh zu geben vermag, der ­seine Souveränität erstrahlen lässt. Daran erinnert der Auftritt des Neubaus für News und Sport von SRF am Leutschenbach. Mit hellen Brüstungen und end­losen Bandfenstern, in denen sich schwach die Achsen der Statik abzeichnen, kokettiert er mit der Normalität des Bürobaus seiner Umgebung. Allerdings sind seine Brüstungen etwas eigenartig gegliedert, die Fenster etwas zu gross und die Achsen zu weit gespannt.

An der Stirnseite betonen zwei mächtige Pfeiler die Mitte und werden dabei unterstützt von der Fensterteilung sowie zwei Kühltürmen auf dem Dach, die das Ganze krönen. Ein Baukörper auf acht Stützen, über einem Sockel mächtig auskragend und die Ecken freigespielt: Es wäre ein Klassizismus Mies’scher Prägung, würde die vermeintliche Allseitigkeit nicht durch die Verlängerung des Sockels infrage gestellt, dessen Stützen zwar in der Achszeichnung der Seiten, aber nicht an der Front ein Echo finden – und wären die Auskragungen nicht so deutlich asymmetrisch, dass diese Abweichung auch die Brüstungsträger erfasst und damit die ­primäre Gliederung der Fassade, die dadurch in Spannung versetzt wird.

Die pilzförmige Ausladung des Baus ist eine Folge des Masterplans, den Penzel Valier im Rahmen eines 2012 gewonnenen Studienauftrags entwickelten. Er weist nach, dass die ­zukünftige Entwicklung von SRF innerhalb des Stamm­areals bewältigt werden kann. Um dabei die vorgeschriebene Freifläche zu sichern, ist zwar ein gewisser baulicher Aufwand notwendig, dieser rechtfertigt sich aber umso mehr, als die benachbarte Arealreserve verkauft werden konnte. Überdies ist die Verdichtung nicht nur aus Gründen der Nachhaltigkeit und des Urbanismus erwünscht, sondern auch betrieblich. Die physische Nähe fördert den produktiven Austausch innerhalb der 2011 vereinigten Landesmedien.

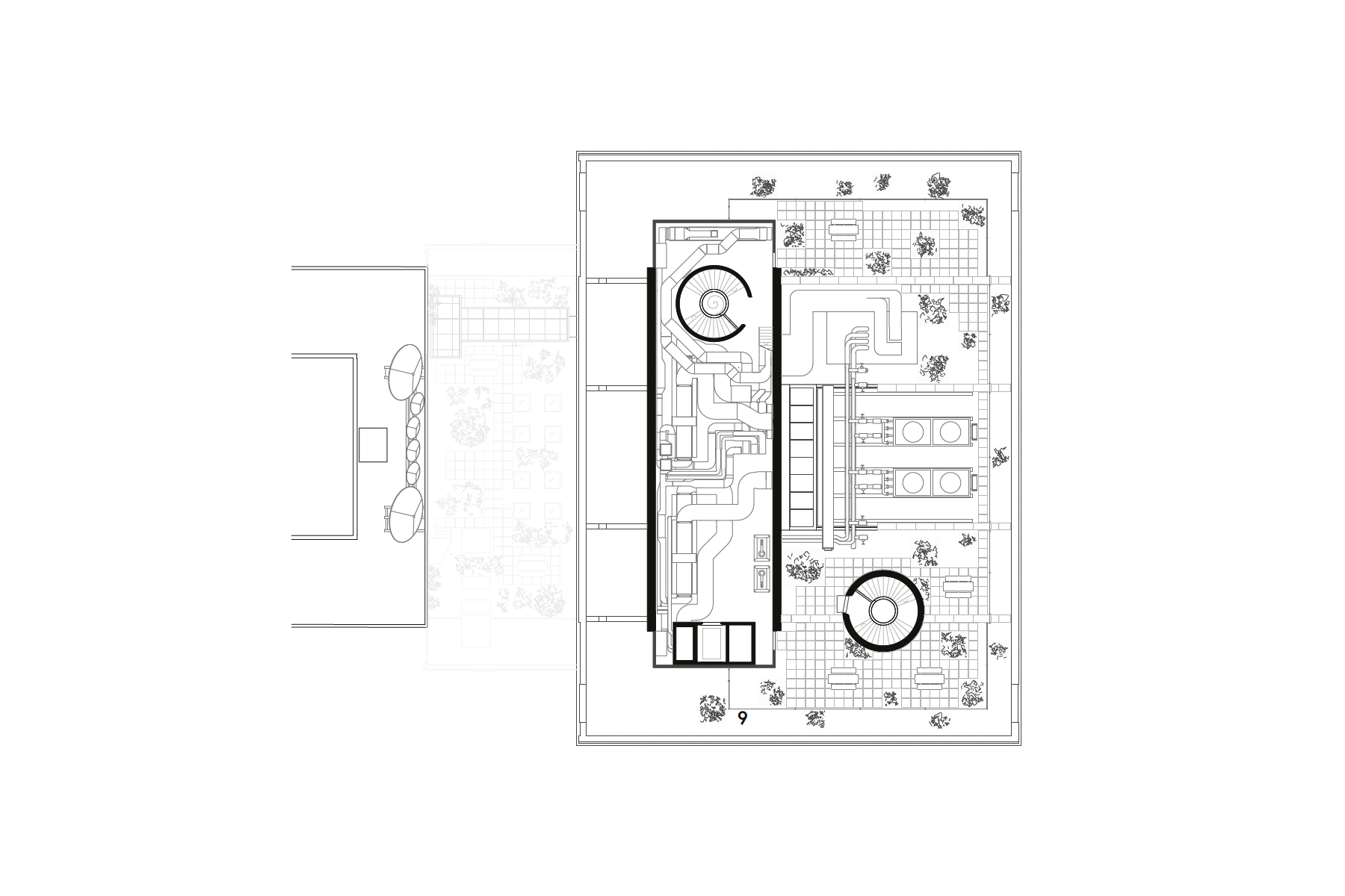
Das Areal öffnet sich neu dem Publikum und verbindet sich mit der Stadt. Sein Herz ist ein öffentlicher Park mit üppiger Bepflanzung, der sogenannte Mediengarten. In diesem Archipel grosser und kleiner Inseln gibt es erstaunlich intime Orte zu entdecken, wobei die betonte Künstlichkeit und der asphaltierte Boden die Parkierung im Untergrund erahnen lassen. Deren Dimension zeigt sich, wenn man über die Brüstungen nach unten blickt. Dort spiegelt sich der Himmel in Wasserbecken, die gleichsam aus dem Park in die Tiefe der Spiralrampen gefallen sind.

Monumentalität, in Spannung versetzt

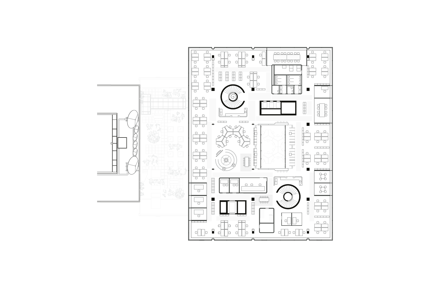
Der Neubau besetzt die südwestliche Ecke des Areals, wo er dem SRF eine zweite Adresse verleiht. Sein mo­numentaler Auftritt entspricht seiner staatstragenden Funktion. Im Erdgeschoss strahlt das Nachrichtenstudio wörtlich in seine Umgebung aus. Ein öffentliches Restaurant mit Bar bildet an der Stirnseite einen einladenden Übergang zwischen innen und aussen. Das zweite Sockelgeschoss dagegen zeigt sich als Mezzanin, entsprechend seiner dienenden Funktion. Es beherbergt die Steuerungsräume für die ein- und ausgehenden Signale und sorgt für einen technisch reibungs­losen Ablauf des Sendebetriebs. Darüber befinden sich in drei Geschossen die Redaktionen, gruppiert um den Newsroom, der als Halle die Räume zentriert.

Das Licht, das von oben in diese Mitte einströmt, stärkt die Vertikalität. Dazu kommt aber eine ausgeprägte Horizontalität, die durch die Deckenstruktur und nicht zuletzt durch die umlaufenden Bandfenster mit ihren offenen Ecken etabliert wird. Räumlich halten sich diese beide Kräfte die Waage. Im Zusammenspiel mit den Kernen und der Trag­struktur entsteht so innerhalb der weiträumigen, völlig flexibel nutzbaren Geschosse eine Vielzahl von Bereichen mit unterschiedlichem Charakter.

Die Schemata der Architekten, in denen sie den Rhythmus der Achsen hervorheben, erinnern nicht von ungefähr an die Zeichnungen von Colin Rowe zur «Mathematik der idealen Villa». Man kann den Bau als eine Kombination der dort skizzierten Prinzipien sehen, mithin als Versuch, Palladianische Zentriertheit und Corbusianische Offenheit miteinander zu kombinieren und das klassische Villen­ideal mit dem modernen zu versöhnen. Villa SRF? Jedenfalls mehr als die «Villa», die MVRVD 1994 für den Sender VPRO in Hilversum realisiert hatte!

Trotzdem hatte SRF-Direktor Ruedi Matter recht, wenn er behauptete, man habe keinen Büropalast, sondern einen Industriebau errichtet. Grosse Spannweiten, kombiniert mit einer zugänglichen Technik in Doppelböden und offenen Decken, garantieren die Flexibilität einer Werkhalle. Aber auch atmosphärisch lässt der sichtbare Rohbau eher an Produktion als an Organisation denken. Der digitalen Welt der bunten Bildschirme steht eine kräftige und leistungsfähige Hardware gegenüber, die grau im Hintergrund bleibt, aber doch omnipräsent ist. Bis in die Studios hinein erinnert sie daran, dass die schnellen und manipulierbaren Informa­tionen eine Welt reflektieren, die physisch, widerständig und voller Eigenschaften ist, die sich nicht so ohne Weiteres reproduzieren lassen. Beton mit unterschiedlichen Oberflächen, Stahl, Corian, Leder und Stoffe zelebrieren die Vielfalt haptischer Eigenschaften, bis hin zur Kohle, die als Pigment die Gipsfaserplatten der Zwischenwände im­präg­niert. Aber schliesslich sind da auch noch die gemeinsam mit dem deutschen Künstler Tobias Hantmann entworfenen Teppiche, die lustvoll die vermeintliche Klarheit der inszenierten Dichotomie virtuell/materiell wieder hinterfragen.

So deutet sich an, dass die Sache mit der wahren Wahrheit doch nicht so einfach ist. Zwar verspricht der technisch-industrielle Ausdruck der Architektur Ehrlichkeit. Das Tragwerk tritt offen zutage, und selbst der Verbund von Stahl und Beton wird zumindest angedeutet, indem in den Unterseiten der primären Betonträger Stahlflanschen zu sehen sind. Im ersten Redaktionsgeschoss wird das Tragwerk sogar expressiv. Die Gabelung der Pfeiler ist Ausdruck der Balance von Stützen und Hängen, die die gewaltigen Auskragungen ermöglicht. Aber warum gibt es in der Mitte ebenfalls Hängestützen? Und warum nur in zwei Achsen, aber auf der Süd­seite nicht? Und warum verlassen dort die Pfeiler unvermittelt die Vertikale und knicken aus, als wollten sie ihre Tragfähigkeit selbst infrage stellen?

Echt komplex

Die Logik der Sockelgeschosse ist offensichtlich nicht identisch mit jener der Obergeschosse. Im Stadtraum erzeugt das unkonventionelle Vorschieben der Pfeiler jene klassische Erscheinung, die eingangs geschildert worden ist, und es ermöglicht jenen Schwellenraum der Bar, der dank der massiven Stützen und der freien Ecken von einem Ausdruck von Monumentalität und Offenheit zugleich geprägt wird. Der Sockel, der an das Nachbargebäude anschliesst und deshalb grösser ist als die Obergeschosse, wird im Erdgeschoss über vier innere Stützen zentriert, die zusammen mit den Pfeilern in den Fassaden eine mächtige Kassettendecke tragen. Wie die antiken Steindecken ist diese nicht etwa als Trägerrost zu verstehen, ­sondern als ungerichteter und massiver Monolith. Wo immer möglich weist dieser zwecks Gewichtsersparnis Höhlungen auf, die wiederum die Gebäudetechnik aufnehmen. Die Wände verlaufen davon ­unabhängig und bleiben optisch niedriger, sodass die Decke mit ihrer flächigen Ausdehnung den Raum prägt. Unter ihr scheint sich das Studio frei und schon fast provisorisch eingerichtet zu haben.

Das Mezzaningeschoss bleibt aus Gründen maximaler Flexibilität sogar völlig stützenfrei. Möglich macht dies die erwähnte Aufhängung der da­r­über liegenden Ebenen. Trotzdem ist die Decke wie die darunter liegende ausgebildet, nämlich mit einer ungerichteten Kassettierung. Dies bekräftigt: Dieses Geschoss gehört räumlich und funktional zum unteren. Man befindet sich im Sockel, nicht unter den Redaktionen. Der Raum wirkt geerdet, was durch den tiefen Horizont und die Abschirmung des Himmels noch unterstrichen wird.

Setzt man sich hoch oben auf einer Galerie in eine Lederbank und lässt den Blick mit etwas Musse schweifen, gerät man möglicherweise ins Sinnieren. Die Struktur des Baus liegt zwar offen zutage, aber offensichtlich genügt das nicht, um sie zu verstehen. Es braucht mehrere Erzählstränge, um die Wirklichkeit zu erklären. Zwar wird die Räumlichkeit durch das überall sichtbare Tragwerk geprägt, dieses wird aber seinerseits von räumlichen Aspekten mitbestimmt. Die Komposition der Rhythmen und der ­zueinander verschobenen Symmetrien wirken sich ebenso auf den Bau aus wie die Rationalität von Tragen und Lasten, die Funktionalität der Betriebsabläufe, die Logik der Fluchtwege und vieles mehr. Dazu kommt das Licht, das von der mächtigen Tragscheibe im Dachgeschoss reflektiert wird und schon fast organisch in die Halle fällt. Alles spielt zusammen. Als symbolische Form führt der Bau vor, dass die Wirklichkeit komplex und interpretationsbedürftig ist. Das ist nicht das Schlechteste, was die Architektur für einen Newsroom leisten kann.

Baukunst als Synthese

Architektur ist hier weder Ingenieurskunst noch Design, sondern ein komplexes, vieles und Widersprüchliches integrierendes Drittes, in dem sich Gestaltung und Technik eng verschränken. Neu ist das nicht, im Gegenteil, aber heute, rund 200 Jahre nach der Aufspaltung der baukünstlerischen Disziplinen, keine Selbstverständlichkeit mehr. Doch offensichtlich haben Christian Penzel und Martin Valier Freude an dieser Komplexität. Vom Masterplan bis in die Details hinein loten sie ebenso lust- wie kunstvoll die Möglichkeiten aus, die sich durch ihre Partnerschaft von Architekt und Bauingenieur eröffnen.

Die städtebauliche Strategie beispielsweise wurde erst mit dem technischen Know-how möglich, wie sich im extrem schwierigen Baugrund eine Tiefgarage zwischen die bestehenden Gebäude abteufen lässt. In der Garage selbst führte das Bauen im Grundwasser zu neuen und ureigenen Ausdrucksmöglichkeiten, die leichthändig mit überlieferten Bildern aus der Ingenieurarchitektur kombiniert wurden. So erweisen die Portale Rino Tamis Gestaltung der Gotthardautobahn Reverenz, während die Dächer über den Ausgängen nicht ohne Augenzwinkern Santiago Calatravas Dach-­Tore im Bahnhof Zürich Stadelhofen kommentieren. Die Treppen selbst variieren ganz beiläufig als kleine Capriccios unterschiedliche sta­tische Systeme und deren Ausdruck. Ähnlich die beiden Wendel­treppen im Hochbau.

Während die Nebentreppe in einem zylinder­förmigen Haus verläuft, wird der Besucher beim Haupteingang von einer offenen Treppe mit einer gewundenen Spindel empfangen. Diese öffnet sich nach oben, sodass man gleichsam durch die Zentrifugalkraft der Bewegung nach aussen in die Geschosse gespült wird, obwohl die äussere Brüstung in eine geschlossene Wand übergeht. Blickt man von oben in das Treppenauge zurück, sieht man, wie die innere Brüstung sich nach unten konti­nuierlich verbreitert, während die Öffnung enger wird, sodass man den Eindruck erhält, man schaue in einen Wirbel.

Der Übergang von einer Wangen- zu einer Spindeltreppe mit einem Wandern der Kräfte von aus­sen ins Zentrum ist eine Parforceleistung, und doch ist die Treppe effizient, da sie das Repräsentative der Empfangsgeste mit dem Zweckmässigen eines Fluchtwegs kombiniert. Ästhetisch wirkt sie dynamisch und kraftvoll, als wäre der Beton eine viskose Masse, die in einer kontinuierlichen Drehung auseinandergezogen oder von oben heruntertropfen würde. So ist das Ganze sowohl gestalterisch wie auch technisch ein grosser Wurf, wenn auch vielleicht erst auf den zweiten Blick. Denn grundsätzlich entsprechen ja repräsentative Wendeltreppen der Konvention, und die wird hier ­bestens bedient. Allerdings mit einem Dreh, der einzigartig ist.

Am Bau beteiligte

SRF Standortentwicklung Leutschenbach
Fernsehstrasse 12, 14
8052 Zürich

 

Bauherrschaft

Schweizer Radio und
Fernsehen, Zürich


Architektur

Penzel Valier, Zürich
Christian Penzel, Leonore Daum, Friedrich Tellbüscher, Frederik Lonow, Pascal Bach, Julian Büscher, Pedro Campos, Matthias Eckert, Christel Erd­menger, Christoph Hey, Sven Laubel, Isabel Marin, Annina Mielck, Judith Ottich, Lukasz Pawlicki, Ivo Piazza, Judith Saile, Tobias Schaer, Tim Schäfer, Paula Seeling, Martin Ulrich, Max Vomhof, Stephanie Weiss, Caroline Ziska

 

Tragkonstruktion

Penzel Valier, Zürich

Martin Valier, Michael Bebi, Reto Eberle, Ralf Gartmann, Maic Neurauter, Roland Schmed, Roland Thomann, Elmar Wenk

 

Fachplaner Landschaftsplanung

Krebs und Herde, Winterthur
Matthias Krebs, Livio Hunn, Christian De Buhr

 

HLK-Planung und Fachkoordination

Gruner Gruneko, Basel
Andreas Schmid, Jochen Bauer, Michael Reich

 

Elektroplanung

HKG Engineering, Schlieren
Stefan Bauer, Daniel Heim

 

Sanitärplanung

Getec Zürich
Oronzo Cocciolo, Thomas Sax

 

Gebäudeautomation

Jobst Willers Engineering, Zürich
Ivan Sangiuliani, Cyril Degen, Jörg Sigg

 

Bauphysik

Gartenmann Engineering, Zürich
Stefan Berner, Clemens Kuhn-Rahloff

 

Lichtplanung

Reflexion, Zürich
Thomas Mika, Sandra de Santana Garcia, Jennifer Sippel

 

Studioplanung

Billionpoints, München
Jürgen Bieling

 

Textildesign

Tobias Hantmann, Düsseldorf/Berlin

 

Gastronomieplanung

Axet, Embrach
Manfred Möckli

 

Securityplanung, Brandschutzplanung

Gruner, Zürich/Basel
Dr. Stephan Gundel, Dr. Ralf Schnetgöke, Thomas Häcki

 

Kennzahlen

 

Gebäudevolumen SIA 416

News- und Sportcenter: 58 026 m3

Tiefgarage und Technik­zentrale: 66 856 m3


Geschossfläche SIA 416

News- und Sportcenter: 12 140 m2

Tiefgarage und Technikzentrale: 19 090 m2


Wärmeererzeugung

Abwärmenutzung, Fernwärme

 

Daten

Studienauftrag: 2012–13
Planungsbeginn: 2013
Bezug: 2019–20

Verwandte Beiträge