Aus­wahl aus gros­ser Viel­falt

Ersatzneubau Wohnsiedlung «Im Gut», Baufelder A und D, Zürich-Wiedikon

Für die Ersatzneubauten auf den Grundstücken A und D entschied sich die Zürcher Genossenschaft im Gut für den Vorschlag «Gilbert & George». Das in Typus und Erscheinung gleichartige Gebäudepaar überzeugt durch die sorgfältig erarbeiteten, offen und flexibel nutzbaren Wohnungen.

Publikationsdatum
11-02-2021

Die Baugenossenschaft im Gut (BiG) will ihren Siedlungsbestand an der Gutstrasse in Zürich Wiedikon nach und nach ersetzen. Grundlage ist ein entsprechender, im Mai 2020 vom Stadtrat genehmigter Masterplan. Ein erster Schritt betrifft die ge­planten Ersatzneubauten auf den Grundstücken A und D: rund 100 Wohnungen, ein Kindergarten, die Geschäftsstelle der BiG sowie Gemeinschafts- und Gewerberäume.

Auf Antrag der Baugenossenschaft hat das Amt für Hochbauten einen Architekturwettbewerb im selektiven Verfahren durchgeführt. 76 Teams aus dem In- und Ausland haben sich beworben, zehn hat das Preisgericht im Rahmen der Präqualifikation zur Teilnahme ausgewählt. Das Projekt  «Gilbert & ­George» der Arbeitsgemeinschaft Lütjens Padmanabhan Architekten und Caruso St John mit Ghiggi Paesaggi Landschaft & Städtebau erhielt den ersten Preis und kann unter Berücksichtigung der Ergebnisse der Vorprüfung und der Projektkritik weiterbearbeitet werden.

Wettbewerb erwies sich erneut als vorteilhaft

Die Jury zeigte sich überrascht von der Vielfalt an Interpretationen und Lösungsvarianten, die trotz den strengen Vorgaben des Masterplans vorgelegt wurden. Sämtliche Pro­jekte hätten sowohl bei den Wohnungsgrundrissen als auch beim architektonischen Auftritt ein ausgereiftes Niveau erreicht und seien offenbar mit viel Engagement erarbeitet worden, betonte die Jury in ihrem Bericht. Das erstrangierte Projekt überzeugte aber mit einem in Typus und Erscheinung gleich­artigen Gebäudepaar und besonders auch durch die sorgfältig durchgearbeiteten, offen und flexibel nutzbaren Wohnungen.

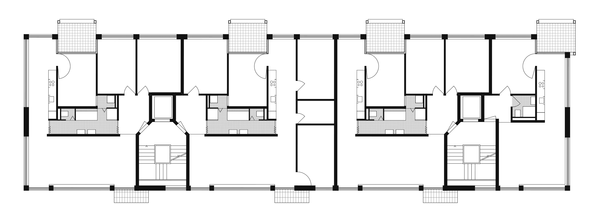
Kompakt, gut nutzbar und frisch

Das Gebäudepaar des Gewinner­projekts markiert die Einmündung des Triemlifusswegs in die Gut­strasse und führt das durch offene Wohnbauten geprägte städtische Gewebe entlang der Gutstrasse weiter, lobt die Jury die Gesamtanlage. Der im Baufeld A liegende Kinder­garten ist übereck mit dem Erdgeschoss des Wohnbaus verbunden und in den rückwärtigen Freiraum gesetzt. Er zeigt sich so als öffentliche Einrichtung und schafft eine En­semble­wirkung mit dem benach­barten inventarisierten Hochhaus und Pavillon von Architekt Karl Egender aus den 1950er-Jahren. Eine begrünte, teilweise überdeckte Dach­terrasse dient als gemeinschaftlicher Aussenbereich. Im Baufeld D ist dem zehngeschossigen Zeilenbau stras­sen­seitig ein Pavillon für die Geschäftsstelle der BiG vorgelagert.

Die zweiseitig orientierten und damit gut belichteten Wohnungsgrundrisse sind in den beiden kompakt geformten Bauten offen, flexibel unterteilbar und praktisch zu möblieren. Die Küchen liegen strassenseitig und sind geschickt in die Wohnungen integriert. Wohn- und Schlafräume sind zur ruhigeren Seite hin orientiert. Zahlreiche längsseitig eingezogene Loggien weisen einen hohen Gebrauchswert auf und wirken wie Aussenzimmer. Die überwiegende Mehrheit der Badezimmer liegt strassenseitig und verfügt über natürliche Belüftung.

Beide Wohnzeilen sind stras­senseitig über einen bekiesten Hofraum mit Baumbestand respektive über eine offene Vorzone erschlossen. Abstellräume für Fahrräder liegen an den Gebäudeenden, Wasch- und Trockenräume finden sich zwischen den Hauseingängen. Auf den Rückseiten der Gebäude schaffen Studios und der Gemeinschaftsraum zusammen mit dem Kindergarten den Bezug zu den angrenzenden Grünflächen.

Energieziele erreicht, ­Holzbau möglich

Die Energiezielwerte gemäss Minergie-P-Eco sowie die Massstäbe zum umwelt- und energiegerechten Bauen der städtischen 7-Meilenschritte1 sind eingehalten. Darüber hinaus erlauben die in klarem Raster gestalteten Grundrisse eine Bauweise in Holzelementkonstruktion mit tragenden Wandelementen und Mas­sivholzdecken. Die Erschliessungen aus Stahlbeton sorgen in diesem Fall für die Aussteifung, so die Jury. Sie betont, dass so eine vorteilhafte CO2-Bilanz gesichert ist, bedauert aber die damit «deutlich überschrittenen» Zielkosten.

Was damit in Zahlen gemeint ist, bleibt im Bericht offen. Fachleute schätzen eine solche Differenz zwischen Massiv- und Holzbau auf 2 bis 4 %. Da wäre allerdings auch beizufügen, dass sich mit dem Holzbau der Anteil an grauer Energie vermindern lässt und gleich­zeitig die Wohnqualität (z. B. Raum­akustik) zunimmt. Die Wärmedämmung lässt sich im Holztagwerk inte­grieren, Massivbau bedingt einen getrennten Aufbau. Bei gleicher Dämmstärke ergeben sich mit Holzbau schlankere Aussenwände, das erhöht bei gleichen Aussenmassen die verfügbare Nutzfläche. Zudem ergeben sich aus der notwendigen genauen Planung für die Trockenbauweise mit Holz ein erheblicher Gewinn an Präzision und deutlich kürzere Bauzeiten, was zwar die Kosten nicht reduziert, doch setzt der Ertrag eher ein. Dazu gibt es verlässliche Fachliteratur von berufener Seite.2

In Bezug auf die äussere Erscheinung der beiden Wohnblocks lobt die Jury einen leichten und frischen Ausdruck, bestimmt durch fein gewellte Eternitplatten im Wechsel mit ausstellbaren Stoffmarkisen. Die vertikalen und horizontalen Bänder überlagern sich ähnlich einem textilen Gewebe, so die Jury.

Anmerkungen
1 Anhand der städtischen «7-Meilenschritte» werden für jedes Bauvor­haben spezifische Anforderungen zum nachhaltigen Bauen definiert. Sie werden im jeweiligen Projekthandbuch festgehalten und bilden für die Projektbeteiligten eine verbindliche Arbeitsgrundlage.
2 Holzbau vs. Massivbau – ein um­fassender Vergleich zweier Bauweisen in Zusammenhang mit dem SNBS Standard. BAFU, Abteilung Wald, Bern. Schlussbericht (2015). Pirmin Jung Büro für Bauphysik, 6026 Rain. 65 Seiten.

Pläne und Jurybericht zum Wettbewerb finden Sie auf competitions.espazium.ch

Auszeichnungen

1. Rang / 1. Preis: «Gilbert & George»
Lütjens Padmanabhan Architekten und Caruso St John Architects, Zürich, mit Ghiggi Paesaggi Landschaft & Städtebau, Zürich; Kopitsis Bauphysik, Wohlen
2. Preis / Ankauf: «Han Solo»
Studio Trachsler Hoffmann, Zürich, mit S2L Landschaftsarchitekten, Zürich; Schnetzer Puskas Ingenieure, Bern; Waldhauser + Hermann,
Münchenstein
3. Rang / 2. Preis: «Alles wird Gut»
Merett + Anderegg Partner, Zürich, mit Haag Landschaftsarchitektur, Zürich; Schnetzer Puskas Ingenieure, Bern; BLM Haustechnik, Zürich; BAKUS Bauphysik & Akustik, Zürich

FachJury

Jeremy Hoskyn, Juryvorsitz, Amt für Hochbauten, Zürich; Mireille Blatter, Amt für Städtebau, Zürich; Maria Conen, Architektin, Zürich; Peter Märkli, Architekt, Zürich; Astrid Staufer, Architektin, Frauenfeld; Lukas Schweingruber, Landschafts­architekt, Zürich

Verwandte Beiträge