Kli­maan­pas­sung be­ginnt bei der er­sten Plan­skiz­ze

Praxisbeispiel – Gestaltungsplan

Regensdorf ist ein Vorort im Norden von Zürich. Die Stadterweiterung wird geplant, als ob der Standort im heissen Süden liegen würde.

Data di pubblicazione
15-06-2022

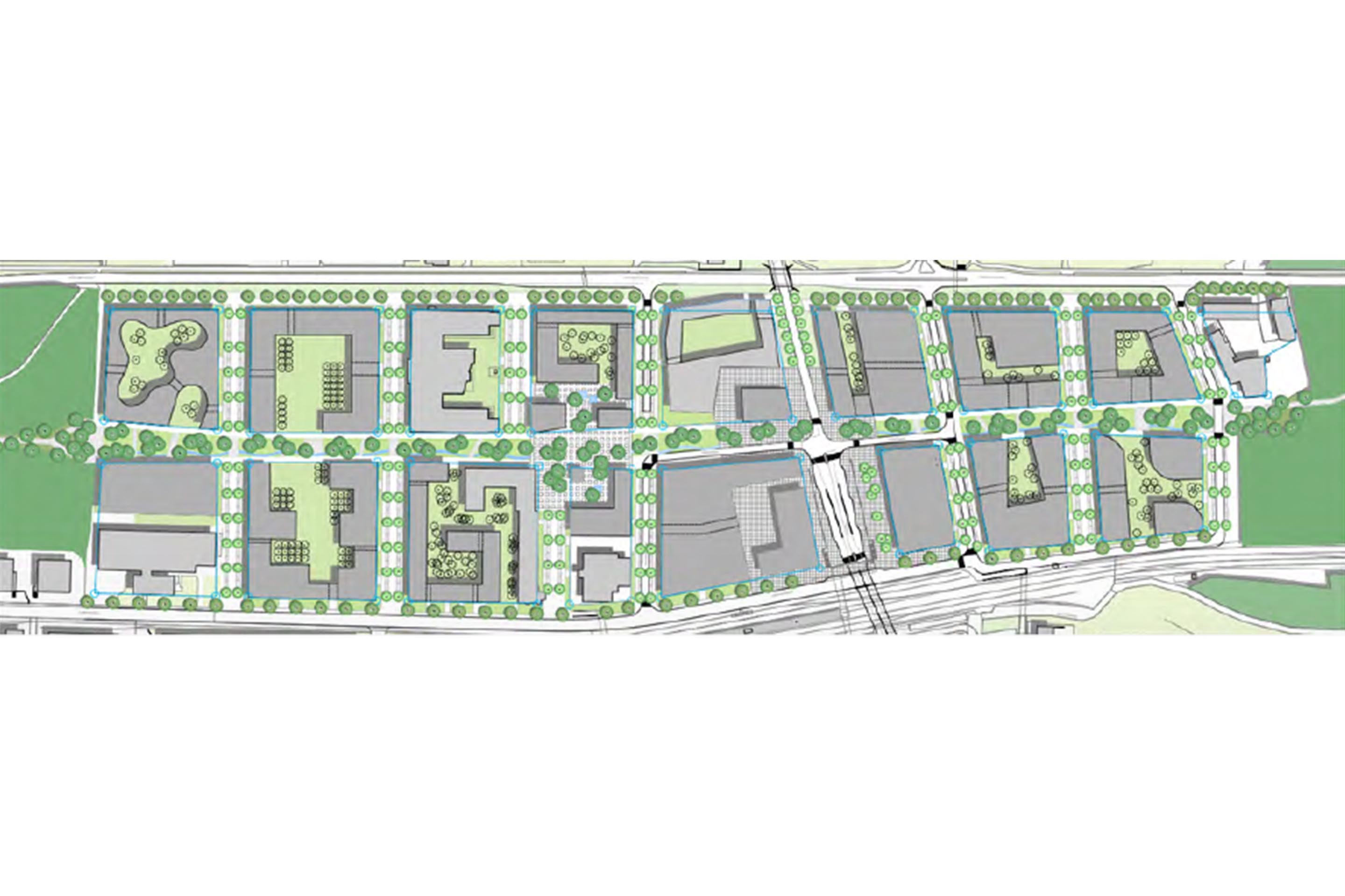
Das grösste Entwicklungsgebiet im Kanton Zürich umfasst eine Fläche von 21 Hektar und besitzt bereits einen Direktanschluss an das öffentliche Verkehrsnetz. Auf der Nordseite des Regionalbahnhofs Regensdorf entsteht mittelbar ein Transformationsquartier für etwa 6500 Einwohner, was einem Drittel der aktuellen Bevölkerung von Regensdorf entspricht. Die Transformation soll suk­zessive erfolgen, bis aus dem heutigen Gewerbeareal ein eigenständiges, gemischt genutztes Zentrumsgebiet wird. Die Klimakarten des Kantons Zürich prognostizieren eine überdurchschnittliche Erwärmung des Geländes bei Tag und in der Nacht. Die Hitzeminderung ist deshalb ein wichtiges Anliegen für die Investoren, ebenso wie für die Behörden von Gemeinde und Kanton. Gemeinsam und freiwillig haben sie sich auf verbindliche Leitlinien geeinigt, um das Mikroklima zu verbessern. Die bahnhofsnahen Baufelder sind für das neue Quartier «Zwhatt» reserviert, das eine vielfältige, städtisch anmutende Architektur verspricht und sich als nationales Modellvorhaben für eine klimaangepasste Überbauung präsentiert.

Rückgrat des Baugefüges und des Klimaausgleichs ist eine breite zentrale Pro­me­nade, die das Quartier für den Fuss- und Veloverkehr erschliesst und als grüner, weitgehend unversiegelter Freiraum eine hohe Aufenthaltsqualität aufweisen wird. Wesentlich ist aber auch: Die Promenade erlaubt eine freie Durchströmung mit Kaltluft. In ihrem Untergrund ist zudem genauestens bestimmt, wo die Tiefgarage und die Leitungsinfrastruktur liegen dürfen. Nur so bleibt der Boden mächtig genug, damit die freie Fläche inklusive der Vor­zonen zu den Gebäuden ausreichend mit Bäumen bepflanzt werden kann. Um den Schattenwurf für die Passanten zu optimieren, pflanzte man bis zu vier Reihen mit grosskronigen Bäumen entlang der Gebäudezeilen. Ebenso ergänzen Wasserelemente die Umgebungsgestaltung.

An den Gebäuden selbst ist nicht immer das Gewünschte möglich: Begrünte Dächer wirken hitzemindernd und halten Regenwasser zurück. Doch ein Ziel des Zhwatt-Quartiers ist eine klimafreundliche Energieversorgung, weshalb sich Photovoltaikanlagen und Dachbegrünung den knappen Platz auf den Dächern oft streitig machen. Die Begrünung einer Gebäudefassade scheiterte zudem, weil Detailfragen beim Brandschutz noch ungeklärt sind. Stattdessen wurden an einigen Stellen vertikale PV-Anlagen installiert.

Für den auf mehreren Baufeldern tätigen Landschaftsarchitekten Lorenz Eugster hat der Standort in Regensdorf auch Laborcharakter: «Nicht jede einzelne Massnahme wird maximiert, sondern die Vielfalt der Möglichkeiten genutzt. Neben der Hitzeminderung erhofft man sich daraus auch eine höhere Diversität an Aussenräumen, die die künftige Bewohnerschaft zum angenehmen Aufenthalt einladen sollen.»

-> Zum Hauptartikel «Wie schafft der Städtebau mehr Kühloasen?»

Dieser Artikel ist erschienen im Sonderheft «Hitzeminderung».

Mehr zum Thema Hitzeminderung finden Sie unserem digitalen Dossier.

Stadtquartier Zwhatt Regensdorf ZH
Bauherrschaft:
Pensimo Management Zürich

 

Landschaftsarchitektur:
Lorenz Eugster Landschaftsarchitektur und Städtebau, Zürich

 

Begleitung:
Pilotprogramm Anpassung an den Klimawandel, unterstützt durch das Bundesamt für Raumentwicklung ARE und die Baudirektion des Kantons Zürich

 

Planungsverfahren:
2015–2020

 

Realisierung:
ab Sommer 2022