«Ei­ne ur­ba­ne Vil­la Kun­ter­bunt»

Mit ihrem Erstlingswerk ist Brechbuehler Walser Architekten ein grosser Wurf gelungen: Das im November 2019 bezogene Haus «5egg» beim Bahnhof Flawil überzeugt durch elegante Details, kluge Grundrisse und durch ein neuartiges Konzept für das Wohnen im Alter. Wir sprachen mit den Newcomern.

Data di pubblicazione
07-02-2020
Tina Cieslik
Head of Multimedia | espazium digital lab; Korrespondentin Architektur/Innenarchitektur TEC21

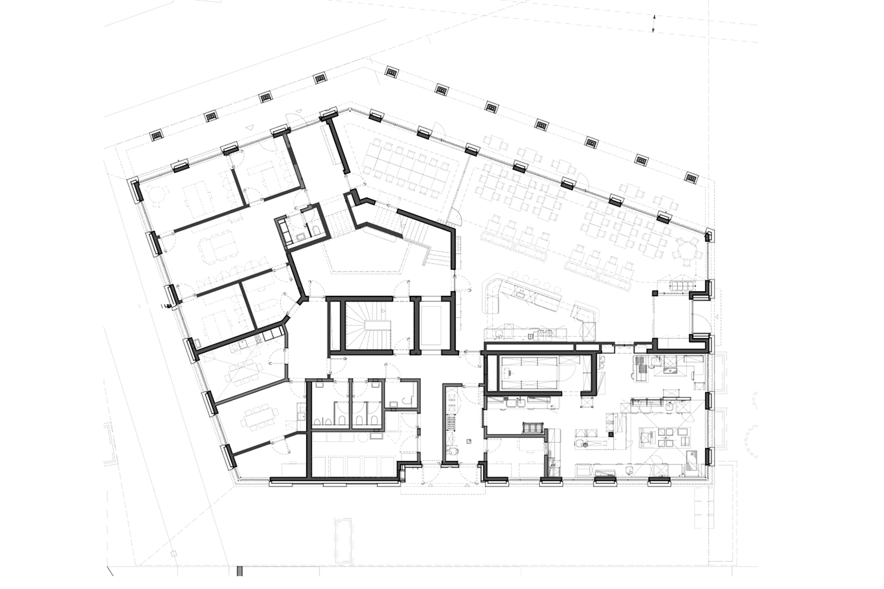
Die Ausgangslage war suboptimal: Im Mai 2015 nahm das Architekturbüro Brechbuehler Walser als Nachwuchsteam am eingeladenen Projektwettbewerb «Neues Wohnen am Bahnhof Flawil» teil. Ursprünglich war auf diesem prominenten Grundstück vis-à-vis des Bahnhofs ein Bürobau vorgesehen gewesen. Die Umsetzung harzte, und da die örtliche Stiftung für Wohnungen mit Pflegeangebot auf der Suche nach einem Standort für Alterswohnungen war, war die Lösung rasch gefunden.

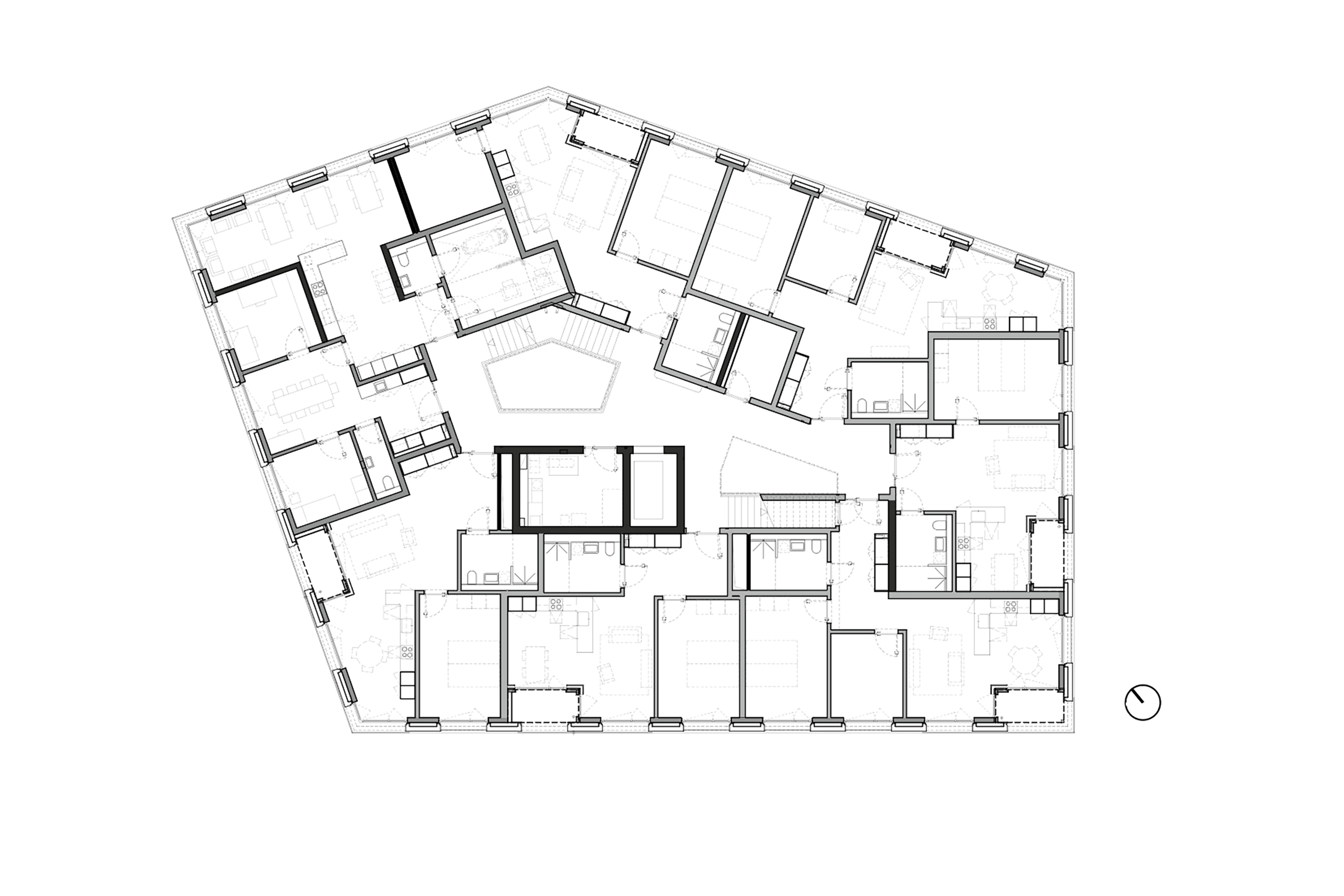
Die Stiftung wünschte sich ein schweizweit neues Konzept: Wohnungen und ein Dienstleistungs­angebot, die sich sukzessive der ­Pflegebedürftigkeit der Mieterinnen und Mieter anpassen lassen – keine Vorstufe zum Pflegeheim, sondern eine echte Alternative. Der Haken am Wettbewerbsprogramm: Wegen des bestehenden Gestaltungsplans musste die Kubatur des geplanten fünfeckigen Volumens übernommen werden. Neben der Ausarbeitung des Raumprogramms bestand die Aufgabe also vor allem darin, eine angemessene Fassadengestaltung für die zentrale Lage zu finden.

TEC21: Welche Inspirationen liegen diesem Projekt zugrunde? Was war das Leitmotiv für den Entwurf?

Barbara Menti-Brechbuehler: Das tragende Element des Entwurfs liegt in der Interpretation des «Wohnens im Alter». Das von der Bauherrschaft formulierte neuartige Konzept erlaubte es uns, den Fokus auf Wohnlichkeit und Eleganz zu legen und dieses gestalterische Motiv auf unterschiedliche Weise zu adaptieren. Vorbilder für diese Kombination waren Bauten der 1950er-Jahre in Norditalien. Die bekannten Bilder des altersgerechten Wohnens und der Pflegetauglichkeit sollten die Atmosphäre des Hauses weder aussen noch innen bestimmen.

TEC21: Inwiefern verkörpert der Bau die architektonische Haltung Ihres Büros?

Patrick Walser: Bei jeder Aufgabe sind wir intensiv auf der Suche nach dem spezifischen Gebrauchswert und der dazugehörigen Atmosphäre. Hier in Flawil entsteht der Wohnwert der Alterswohnungen durch die detaillierte Bearbeitung klassischer Wohnthemen wie der Gestaltung der Eingangssituation, der privaten Aussenräume, der Möblierbarkeit oder der Materialisierung. Zusammen führen sie zu einer angenehm wohnlichen Atmosphäre und stehen in Einklang mit den Anforderungen an Alters- oder Pflegetauglichkeit.
Dazu nutzen wir von Anfang an Collagen, um die spezifischen Stimmungen als Bilder aufs Papier zu bringen. Im Lauf des Projekts können wir mittels dieser Visualisierungen die Einzelteile überprüfen und aufeinander abstimmen. Der Bauherrschaft muten wir zu, diese Entwicklung in Bildern mit uns mitzumachen, sodass wir nie nur über Funktion oder Ästhetik sprechen, sondern immer über den Raum in seiner Ganzheitlichkeit.

TEC21: Worin liegt das Besondere dieser Bauaufgabe?

Barbara Menti-Brechbuehler: Bisher kennen wir das Programm von «Wohnen im Alter». Die Weiterentwicklung durch die Integration einer Pflegestation und einer entsprechenden klugen Abstimmung der Grundrisse mit dem Resultat, dass Mieter auch im Falle einer Pflegebedürftigkeit in den eigenen vier Wänden bleiben können, ist sicher etwas Neues.
Der zusätzliche Spitexstützpunkt und das öffentliche Restaurant an dieser zentralen Lage machen das Projekt zu einer Art urbanen Villa Kunterbunt und einem wichtigen neuen sozialen Baustein des Dorfs. Nicht umsonst stand beim Tag der offenen Tür das halbe Dorf Schlange, um sich das Haus auch von innen anzusehen.

TEC21: Der Auftrag erfolgte über einen eingeladenen Wettbewerb. Wie kamen Sie zu der Einladung?

Patrick Walser: Wir haben uns damals als Nachwuchsbüro nur mit ungebauten Referenzen für die Präqualifikation beworben. Eine dieser Referenzen war aber ein zweiter Platz in einem Wettbewerb in Regensdorf. Das Projekt war in städtebaulicher Lage, in Programm und Ausdruck dem hier gesuchten ziemlich ähnlich. Es war schön zu sehen, dass auch ein Büro ohne gebaute Referenzen eine Chance hat, wenn sich ein Wettbewerbsbeitrag findet, der die Jury für die gesuchte Aufgabe inspiriert.


Dieser Artikel ist der Auftakt zu unserer neuen Online-Serie «Debüt», in der wir Erstlingswerke Schweizer Architekturbüros vorstellen.


Bauherrschaft

Stiftung für Wohnungen mit Pflegeangebot, Flawil

Kooperationspartner
Spitex Flawil; dreischiibe, Herisau; Wohn- und Pflegeheim Flawil

Architektur
Brechbuehler Walser Architekten, Zürich

Bauleitung
ARGE BGW Huber, Flawil / Peter Wittenwiler, Flawil

Tragkonstruktion, Fassadenplanung
Nänny + Partner Bauingenieure, St. Gallen

Elektroplanung
IBG B. Graf Engineering, St. Gallen

HLKKS-Planung
Inpla, Flawil

Bauphysik, Akustik
Mühlebach Partner, Winterthur

Brandschutz
Amstein + Walthert, St. Gallen

Licht
Luminati Licht und Raumkonzepte, Bühler