SIA-Ma­ster­preis Ar­chi­tek­tur 2017: «Salz­bur­ger Festspie­le: Ar­chi­ve and Gal­le­ry»

Projekt von Ziyuan Li

Masterarbeit Accademia di architettura di Mendrisio | Professur Valentin Bearth

Data di pubblicazione
24-05-2018
Revision
20-06-2018

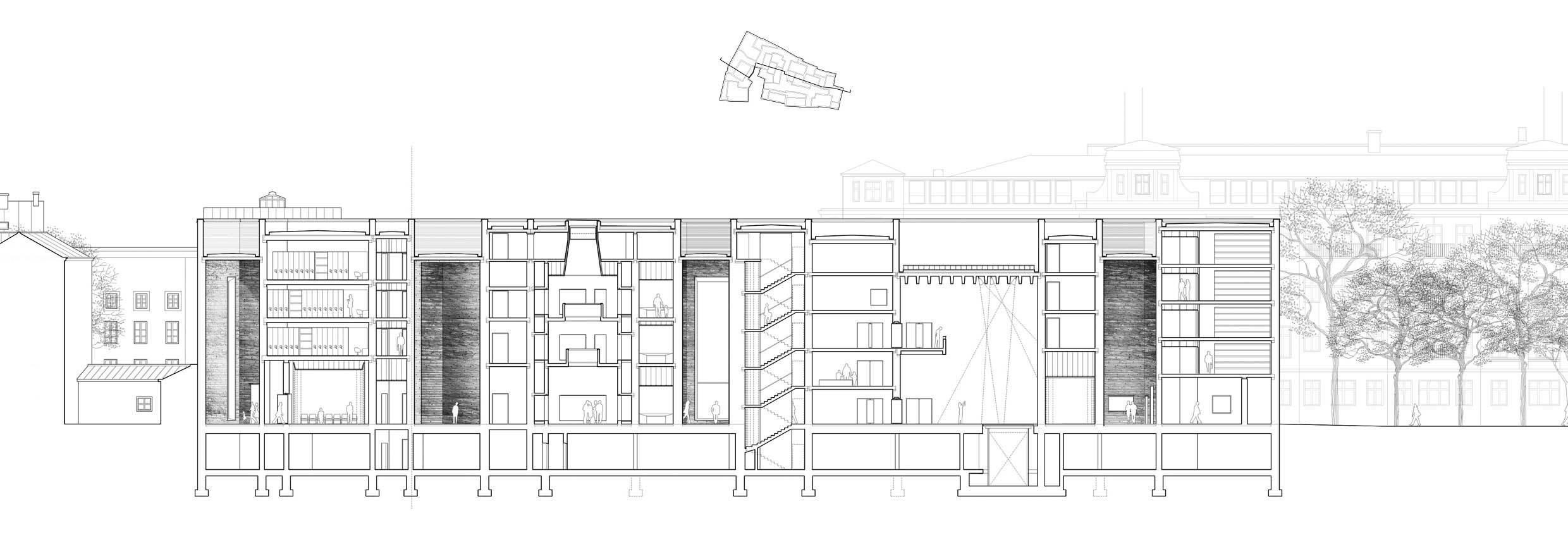
Die Salzburger Festspiele haben eine lange Tradition und bieten ein vielfältiges Programm. Sie sind die grösste öffentliche Veranstaltung der Stadt. Jedes Jahr können die Besucher während der Festspiele täglich Konzerte, Opern und Theaterstücke mit herrlichen Bühnenbildern und Kostümen bewundern. Das Festival zieht Tausende Touristen an und nimmt in der kollektiven Erinnerung der Stadt eine wichtige Stellung ein. Nun soll eine Parzelle in der Innenstadt ganz den Festspielen gewidmet werden. Am Eingang zur Altstadt ist der Bau eines Archivmuseums mit Forschungs- und Informationszentrum geplant, das als permanenter Standort für alle Aktivitäten im Zusammenhang mit den Festspielen dienen soll.

Das Gebäude präsentiert sich als konstante Form aus Stampfbeton mit einer durchgehenden, von Falten und kleinen Schrägen durchzogenen Oberfläche, die den Massstab und das Muster der Altstadt aufnimmt. Eine nach innen gerichtete Falte definiert eine kleine Piazza für Stadtbewohner und Gäste. Das Archivmuseum ist als eine Reihe von Räumen konzipiert, die einzeln als Archivraum für bestimmte Objektgruppen (Tondokumente, Fotos, Kostüme usw.) genutzt werden können und über je eigene Verkehrs- und Serviceflächen verfügen. Diese offenen Archive mit unterschiedlichen Sammlungen wirken wie voneinander unabhängige Gebäude. Verbunden sind sie durch 12 m hohe Zwischenflure, die als Ausstellungsräume genutzt werden können. So kommt das vertraute Gefühl auf, sich in einer alten Stadt zu bewegen.

In dieser Stadt kann man frei umhergehen. Nachdem man in einem Zwischenflur, der einer schmalen Altstadtgasse ähnelt, zwischen Ausstellungsstücken und als Vitrinen konzipierten Nischen gewandelt ist, tritt man in ein Archiv ein, das wie eine Wunderkammer Tausende von Fotos oder Kostümen beherbergt. Anschliessend kann man weiter durch die Gassen spazieren, bis zum Ende des Rundgangs, wo die Cafeteria und die Bibliothek warten. Der gesamte Rundgang ist die Verbildlichung einer Festspielstadt, eine Interpretation verschiedener Erfahrungen mit Stadtmustern kombiniert mit einem Ausstellungsraum.


SIA-Masterpreis Architektur

Der SIA-Masterpreis Architektur, den der SIA seit den 1960er-Jahren jährlich verleiht, zeichnet Abschlussarbeiten der drei universitären Hochschulen Eidgenössische Technische Hochschule Zürich (ETHZ), Ecole polytechnique fédérale de Lausanne (EPFL) und der Accademia di architettura di Mendrisio (AAM)  aus. 80 bis 130 Masterprojekte werden pro Prüfungssession eingereicht. An der ETH finden jedes Jahr zwei Sessionen statt, an EPFL und AAM eine. Für jede Schule gibt es eine Jury aus sechs Architektinnen und Architekten: dem Präsidenten des Fachvereins Architektur und Kultur (A & K) sowie je einem Vertreter/einer Vertreterin des A & K aus den drei Sprachregionen, der Berufsgruppe Architektur (BGA) und der SIA-Sektion des Kantons der Hochschule, also Waadt, Zürich oder Tessin.

Die prämierten Projekte des SIA-Masterpreis Architektur 2017 finden Sie hier. Die Masterarbeiten der Auslobung 2016 gibts im gleichnamigen E-Dossier.

Articoli correlati