Va­len­ti­na Mo­ret­ti, in­du­stria­liz­za­re la ca­sa

Case come prodotti di design e allo stesso tempo “macchine per abitare” costruite con pannelli perimetrali efficienti, dotate d’impianti ad alta tecnologia.

Data di pubblicazione
14-02-2018
Revision
19-03-2018

«La grande industria deve occuparsi della costruzione e produrre in serie gli elementi della casa. Occorre creare lo spirito della produzione in serie, lo spirito di costruire case in serie, lo spirito di abitare case in serie, lo spirito di concepire case in serie». Le Corbusier, Case in serie, Verso una architettura, 1923

Valentina Moretti

Valentina Moretti (Erbusco, 1982) studia all’Accademia di architettura di Mendrisio e si laurea con Valerio Olgiati nel 2007. Dopo aver lavorato negli studi Richard Meier & Partners Architects e Anderson Architects a New York, torna in Italia, nella zona collinare della Franciacorta, per occuparsi dell’azienda di famiglia, Moretti-Building on human values, attiva dal 1967 nel settore delle grandi opere di edilizia industrializzata. Nel 2010 crea il progetto Moretti MORE, applicando i principi della prefabbricazione al sistema casa. Con MORE ottiene riconoscimenti importanti a livello nazionale, fra i quali il premio di disegno industriale ADI Design Index, il primo premio nella categoria sistemi per l’architettura a Klimahouse, e il Premio dei Premi, consegnato dalla Presidenza della Repubblica Italiana per l’approccio all’avanguardia sul tema della casa. Dal 2014 dirige, insieme al marito Francesco Matricardi, laureato all’Accademia di architettura di Mendrisio e direttore marketing & comunicazione di MORE, lo studio di design d’interni AMOAMA Architettura.

Il sistema costruttivo MORE

MORE ha concepito un’idea innovativa di casa su scala industriale, che integra alla progettazione architettonica i vantaggi della prefabbricazione: controllo in ogni fase della lavorazione, rapidità di messa in opera, rispondenza del prodotto finito ai requisiti prestabiliti, costi garantiti. Il risultato è una serie di modelli abitativi ready-made, con caratteristiche adattabili e replicabili. Case come prodotti di design e allo stesso tempo “macchine per abitare” costruite con pannelli perimetrali efficienti, dotate d’impianti ad alta tecnologia: ventilazione meccanica controllata, domotica, comunicazione e trasmissione dati, energie alternative.

Il sistema costruttivo MORE è fondato su elementi modulari portanti che definiscono l’involucro dell’edificio, uniti tra loro in prossimità dei giunti orizzontali e verticali da un getto di calcestruzzo fluido, che permette di realizzare una struttura compatta. I pannelli sono costituiti da strati sovrapposti, studiati per ottimizzare al massimo le performance dei materiali impiegati: una crosta esterna compatta in calcestruzzo colorato in pasta, uno strato isolante e un livello interno in calcestruzzo alleggerito. Gli elementi sono assemblati a secco in cantiere, le lavorazioni in loco sono ridotte al minimo, così come i tempi di costruzione, otto settimane in totale. I serramenti sono integrati all’interno dei pannelli attraverso l’utilizzo di un falso telaio monoblocco, che garantisce la continuità dell’isolamento termico e acustico dell’involucro.

Prototipi e case realizzate

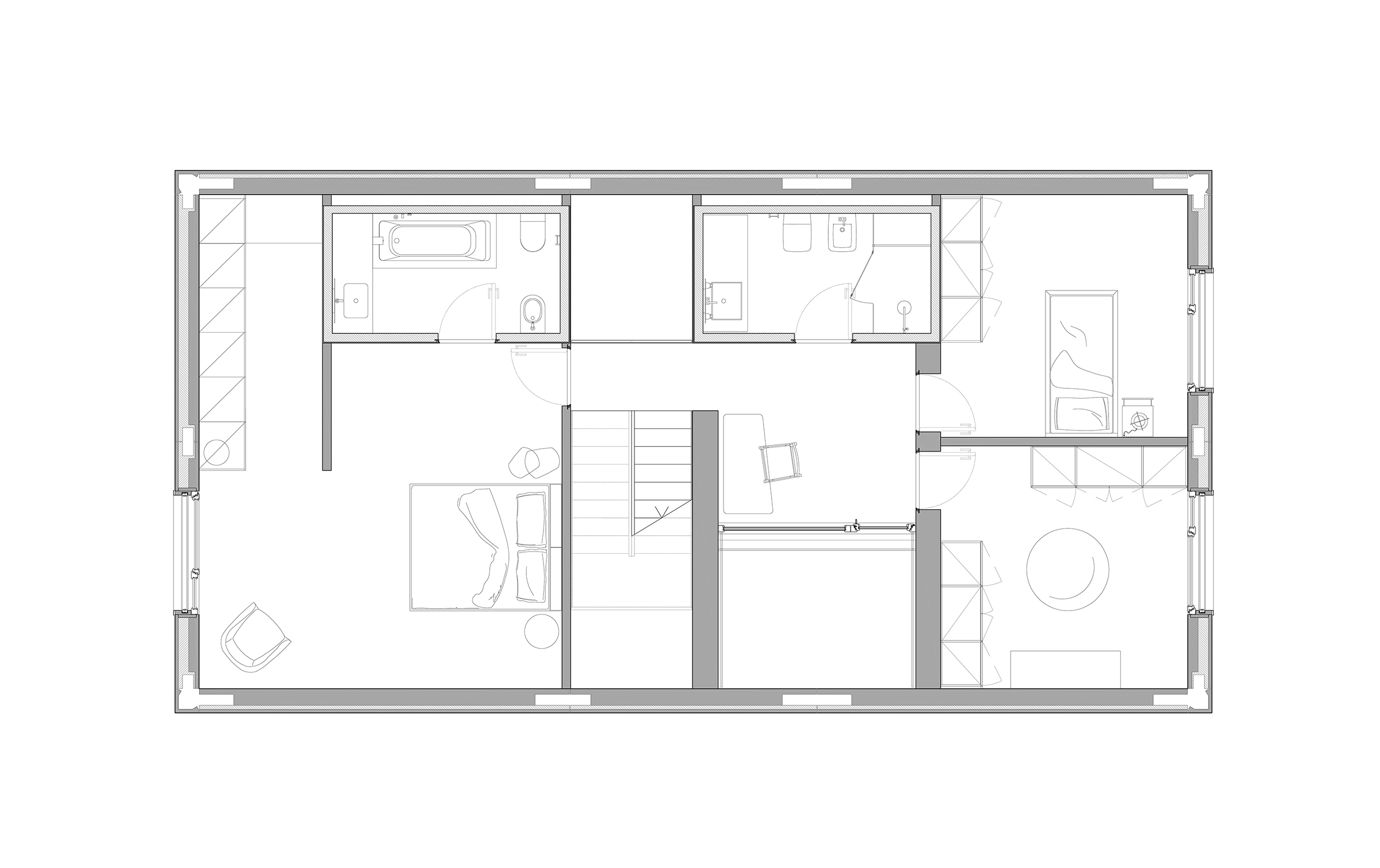
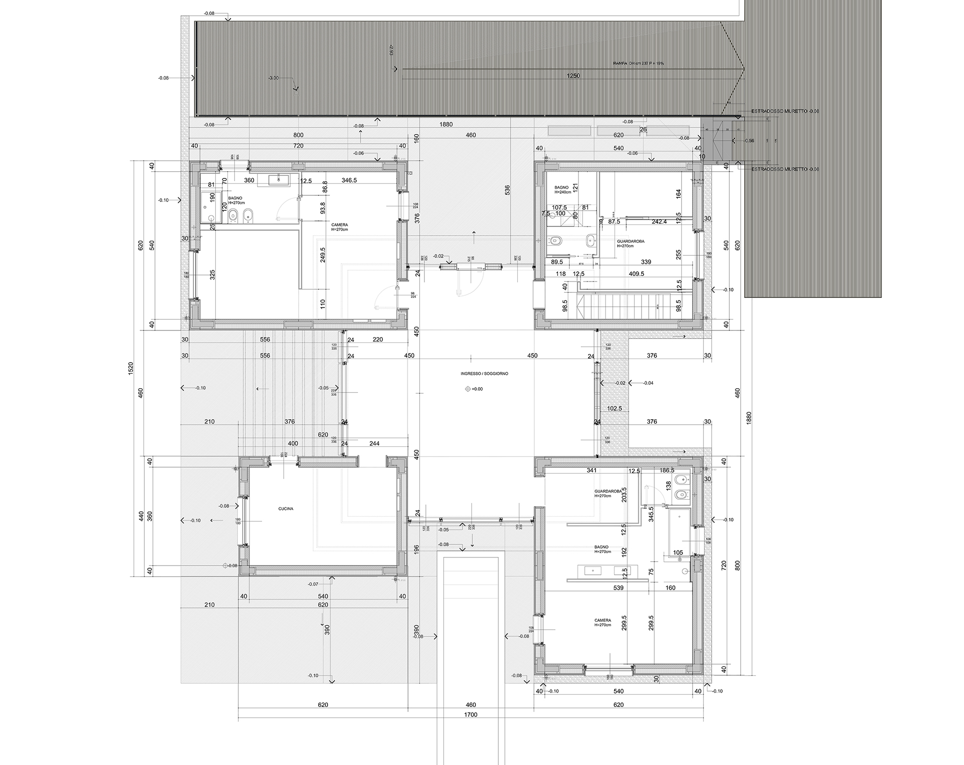
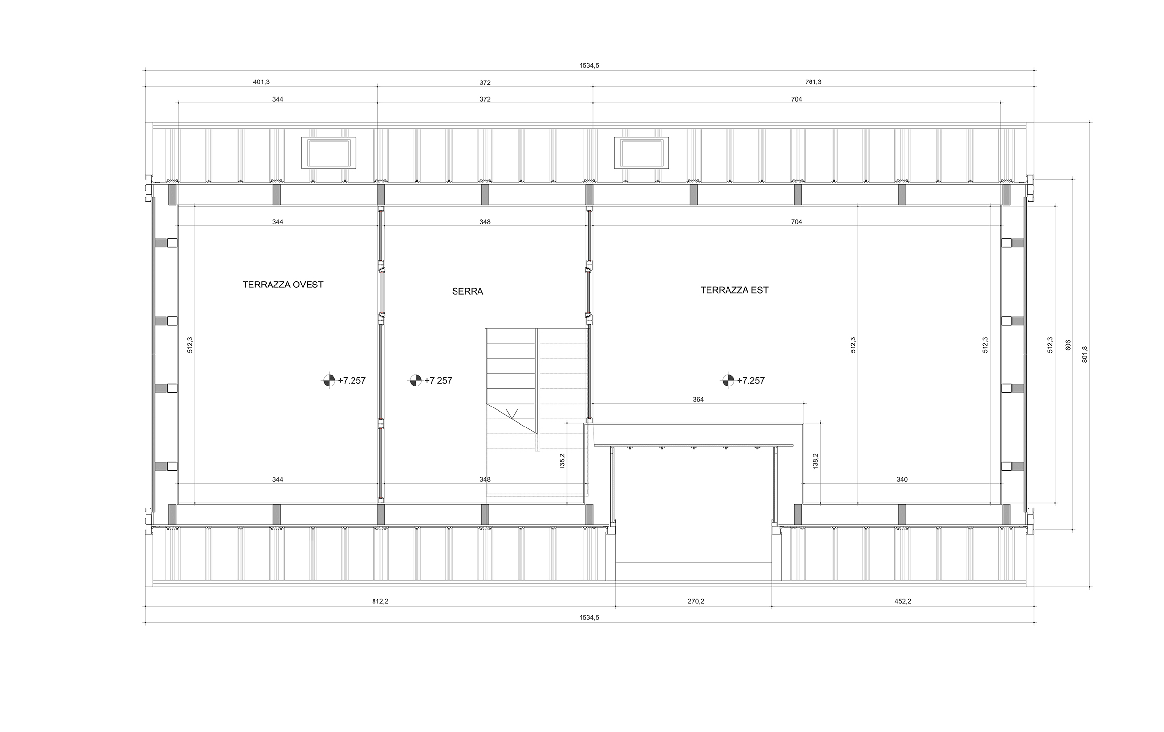
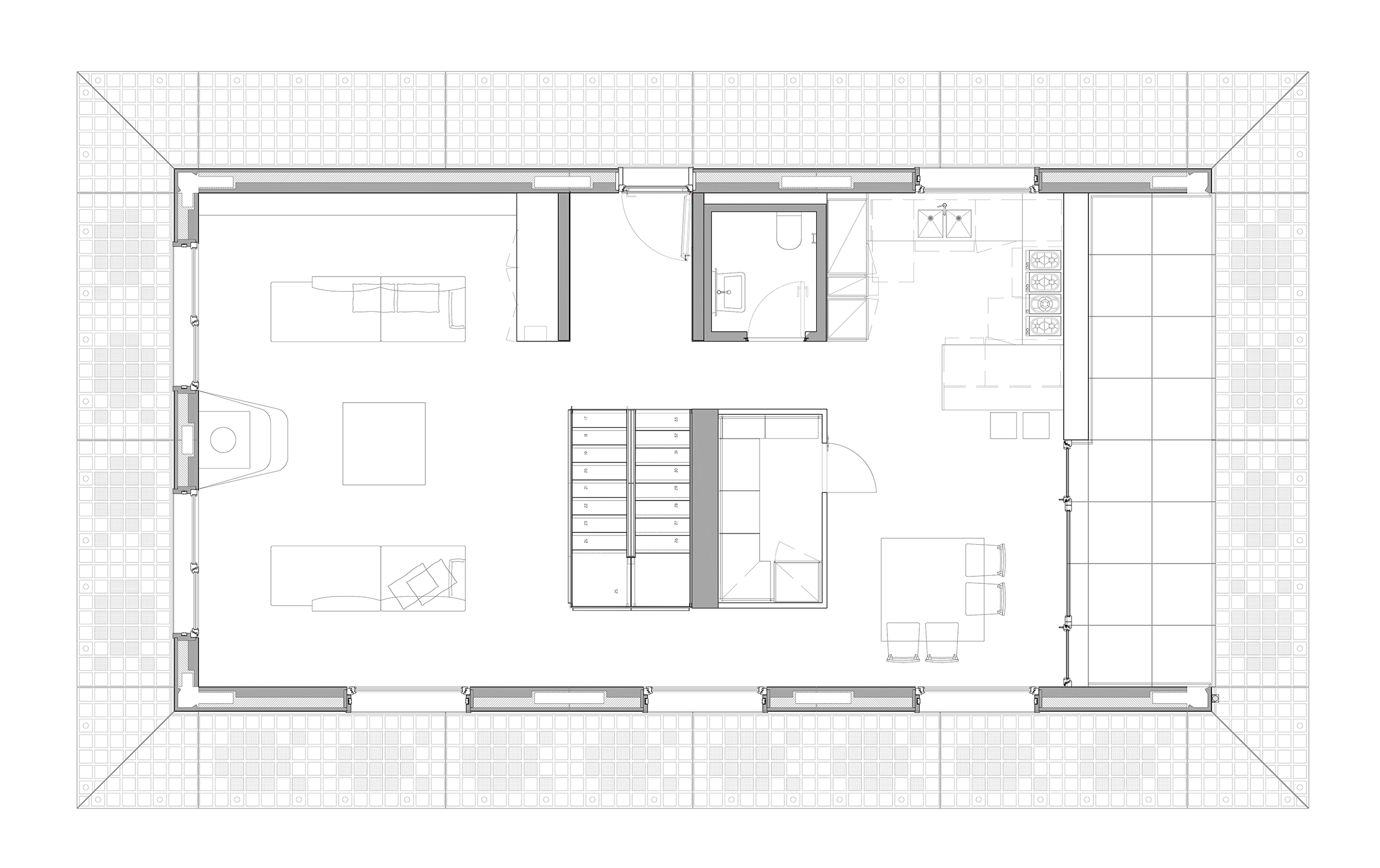
Casa Uno, il primo prototipo realizzato da MORE a Erbusco, è una casa multipiano compatta, concepita come un guscio robusto contenente al suo interno uno spazio aperto e luminoso, che si sviluppa in verticale fino al tetto terrazza; la forma della copertura, ispirata alla cascina tradizionale, permette il massimo sfruttamento dello spazio abitabile sotto il tetto.

Casa Patio, all’interno del Franciacorta Golf Club, è composta da quattro blocchi serventi, che ospitano rispettivamente al loro interno le stanze da letto con i bagni, la cucina e uno studio; la composizione dei nuclei disegna, nel centro, lo spazio grande dedicato alla zona giorno, più alto e trasparente, le cui vetrate arretrate creano quattro patii esterni protetti dal tetto.

La casa a Uznach, nel Canton San Gallo, è formata da quattro spazi quadrati affacciati sui diversi punti cardinali, che ruotano al piano superiore offrendo nuove viste sul paesaggio e una luce diversa; realizzato con un sistema a secco senza getti integrativi, serramenti in legno naturale ed elementi di lattoneria in acciaio cromato, l’edificio soddisfa gli standard Minergie e Minergie A.

Casa V+F è una glass house immersa in un’oasi collinare con vista sul lago d’Iseo. Quattro blocchi di calcestruzzo faccia a vista contenenti camere, bagni e cucina, sorreggono il grande tetto terrazzo animato da un rigoglioso giardino pensile. All’interno, mobili di design si alternano ad arredi e dettagli disegnati su misura, come i serramenti delle grandi vetrate in rovere chiaro che creano mensole d’appoggio e diventano nelle camere bow-window quadrati; una scenografica vasca d’acqua con un’apertura circolare zenitale offre un momento di riposo esotico, a contatto con la natura. La casa, costruita integrando al sistema MORE una struttura in travi di ferro a cui sono ancorati tamponamenti in cemento, è stata realizzata in soli cinque mesi.

L’obiettivo di Valentina Moretti è chiaro: rendere l’architettura accessibile a tutti, grazie alla tecnologia e i vantaggi dell’edilizia industrializzata.

Altri articoli dedicati ai giovani architetti under 40 sono raccolti nel nostro speciale e-dossier qui.

Articoli correlati