Fa­re le va­li­gie per sei set­ti­ma­ne

Qual è la ricetta per un progetto di ristrutturazione sostenibile ed esemplare a livello energetico? «Qualcosa di più di un semplice miglioramento energetico» è l’approccio adottato nel complesso Les Minoteries di Ginevra.

Data di pubblicazione
08-12-2023

«La casa per tutti» è una priorità della politica sociale di Ginevra. Ha portato alla costruzione di grandi complessi residenziali nella seconda metà del XX secolo. Oggi, la missione della città si sta evolvendo: diversi complessi del suo comparto immobiliare hanno raggiunto la fine del loro primo ciclo di vita. I difetti funzionali degli impianti tecnici eguagliano l’avanzato stato di usura delle superfici. E sebbene edifici come questi siano piuttosto denigrati, emerge un crescente interesse per una loro trasformazione curata. In ogni caso, alcuni siti sono protetti come patrimonio edilizio Inoltre, lo sviluppo urbano di Ginevra privilegia generalmente la trasformazione rispetto alla demolizione e alla sostituzione.

Il complesso Les Minoteries è un piccolo villaggio, progettato dallo studio Honegger su un terreno di 6000 m2. Costruito tra il 1971 e il 1976 ospita 329 alloggi suddivisi in due blocchi paralleli di nove piani, con un passaggio pubblico che li separa, e che organizza gli spazi collettivi: un doposcuola, un centro medico e aree commerciali; completa l’offerta un asilo nido arroccato in uno dei due attici. La sua fama di divoratore di energia ha spinto il Dipartimento per la Pianificazione, l’Edilizia e la Mobilità a rendere questo complesso un progetto di prova per il risanamento energetico delle abitazioni di grandi dimensioni. Un esempio lo troviamo nella soluzione innovativa per il riscaldamento, che è collegata alla rete fognaria pubblica, tramite uno scambiatore di calore e inclusa nelle specifiche per i mandati di studio paralleli (MSP) avviati nel 2010 e vinti da Itten + Brechbühl.

Nel 2009, nell’interesse del proprio patrimonio edilizio, la città di Ginevra, resonsabile del progetto, ha commissionato al laboratorio Techniques et sauvegarde de l’architecture moderne (TSAM) dell’EPFL uno studio sul patrimonio esistente che, nelle sue conclusioni suggeriva di ristrutturare il complesso tenendo conto della sua volumetria, caratterizzata dalla mineralità della struttura prefabbricata in calcestruzzo e dall’orientamento inclinato delle pareti delle testate.

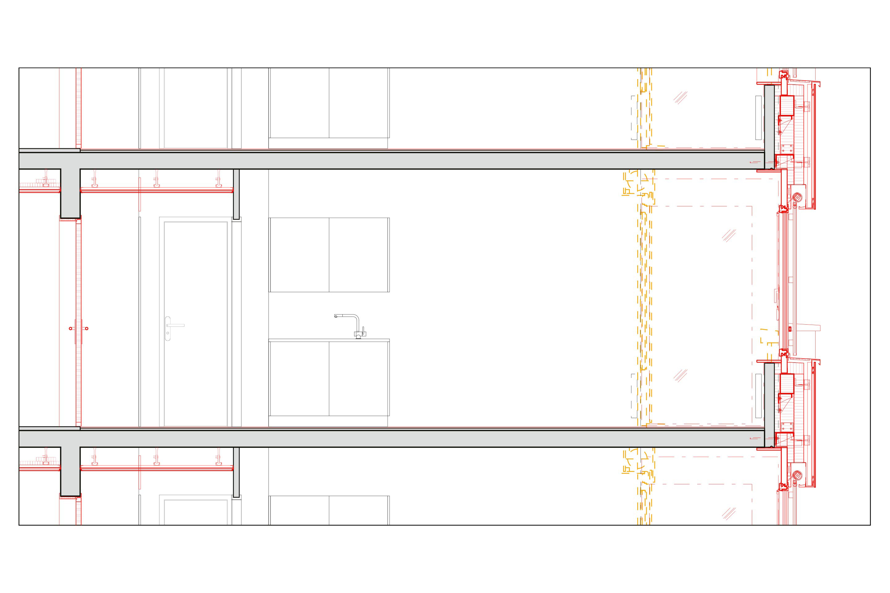
Attenzione alle prestazioni energetiche

Il concetto di ristrutturazione di Itten Brechbühl si basa sulla raccomandazione del TSAM. Sviluppato sulla base delle prestazioni energetiche e della corsa ai label – il MSP ha puntato su Minergie e sulla direttiva Haute performance énergétique (HPE) di Ginevra – la priorità è stata data all’aspetto tecnico. La facciata originale è stata semplicemente avvolta da uno strato isolante esterno di 30 cm, protetto da lastre di fibrocemento, un riferimento alla mineralità originaria. Di conseguenza, gli appartamenti beneficiano ora di una loggia temperata, grazie alla chiusura dei balconi a triplo vetro. E i risultati si vedono: due pompe di calore fanno risparmiare un consumo annuo di 500.000 litri di gasolio, mentre un impianto solare termico e le pergole fotovoltaiche – oltre a offrire zone d’ombra sul tetto – consentono anche il funzionamento delle pompe e la produzione di acqua calda sanitaria.

Un patrimonio costruito e abitato

La ristrutturazione di Les Minoteries fa scuola: la cultura della trasformazione è anche cultura dell’abitare. Considerando il mercato ginevrino degli affitti e la missione sociale attribuita agli alloggi comunali, era difficile – se non impossibile – chiedere alle 600 persone che vi abitavano di trasferirsi durante i lavori. Questi grandi complessi residenziali, infatti, hanno una ampia rete sociale. Per questi motivi, la città ha sviluppato una struttura di supporto agli inquilini. Prima del progetto MSP è stato avviato un processo di consultazione per sondare le esigenze dei residenti.

I principali interventi hanno richiesto adattamenti architettonici al corpo principale dell’edificio. Era quindi indispensabile lasciare ogni appartamento in mano agli artigiani per più di un mese. È il tempo necessario per rimuovere l’amianto, risanare i bagni, rinnovare gli impianti tecnici e trasformare i balconi. Corridoio dopo corridoio, gli inquilini di due piani sono stati invitati a fare le valigie e a trasferirsi in uno dei 30 appartamenti del complesso che erano stati liberati e arredati in vista di questi lavori.

Durante il cantiere, una newsletter mensile informava gli inquilini sull’avanzamento dei lavori e sulle fasi successive. Due mediatori nominati dalla città erano presenti sul posto ogni giorno, mentre gli operatori volontari, i tre custodi, un’associazione di reinserimento sociale e numerosi volontari hanno dato una mano e fornito un sostegno morale molto gradito ai residenti. La ristrutturazione del complesso Minoteries non ha comportato nessun cambio di inquilini e il fatto che gli affitti non siano stati aumentati non è certo una coincidenza. In linea con la sua politica abitativa, il Comune si è fatto carico dei costi della riconversione.

Feedback dell’esperienza

Se al tramonto della sua prima vita il complesso Les Minoteries soffriva di scarsa riconoscibilità e di una cattiva reputazione, oggi, all’alba della sua seconda vita, gode di una dinamica sociale paradossalmente reinventata e rivitalizzata da oltre quattro anni di lavori: le risorse e le qualità del patrimonio si nascondono nel cuore delle abitazioni. La città si è preoccupata di documentare questa esperienza con testi e immagini, combinando il punto di vista dei residenti con la realtà di un cantiere. Per il resto, Les Minoteries avranno anche contribuito ad adattare i futuri progetti di ristrutturazione con la ricerca di concept rispettosi del clima e che richiedono anche meno espedienti tecnici, allo scopo di risparmiare, in futuro, energia operativa e ridurre il fabbisogno di risorse.

Les minoteries, Ginevra

 

Committenza
Città di Ginevra

 

Architettura e progettazione generale
Itten+Brechbühl, Ginevra/Losanna

 

Ingegneria civile (struttura)
MDB Ingénieurs Civils Associés, Petit-Lancy

 

Facciate
BCS, Neuchâtel

 

Fisica della costruzione
Amstein + Walthert, Ginevra

 

Progettazione riscaldamento e ventilazione
SRG engineering Riedweg & Gendre, Carouge

 

Ingegneria sanitariaambientale
Buclin Ingénieurs-­conseils, Petit-Lancy

 

Ingegneria elettrotecnica
Rossetti Ing. conseils, Carouge

 

Progettazione della tecnica delledificio
HEPIA_LEEA, Ginevra

 

Architettura del paesaggio
Oxalis Architectes Paysagistes Associés, Carouge

 

Anno di costruzione
1971-1976

 

Ristrutturazione
2010-2015 (pianificazione), 2016-2020 (realizzazione)

Con il sostegno di SvizzeraEnergia e Wüest Partner espazium – Edizioni per la cultura della costruzione ha pubblicato:
 

Nr. 1/2018 «Immobili ed energia: Strategie per l'immobiliare – guida per investitori istituzionali»

 

Nr. 2/2019 «Immobili ed energia: Strategie per il collegamento in rete»

 

Nr. 3/2020 «Immobili ed energia: Strategie di trasformazione»

 

Nr. 4/2021 «Immobili ed energia: Su percorsi comuni con l’elettromobilità»

 

Nr. 5/2022 «Strategie del consumo proprio»

 

Nr. 6/2023 «Valorizzare l’esistente»

Gli articoli del ciclo «Immobili ed energia» sono raccolti in questo e-dossier.

Articoli correlati