Ein­mal auf­tan­ken

Mitten im Berliner Grossstadtdschungel hat das Kleine Grosz Museum ein Zuhause gefunden, das in vieler Hinsicht massgeschneidert scheint. Dabei liegt es nicht auf der Hand, einer Tankstelle aus der Nachkriegszeit ein neues Dasein als verschwiegenen Museumsort anzudichten. Eine inspirierende Anregung zum freien Umgang mit Nachnutzungen.

Date de publication
13-06-2023
Hella Schindel
Innenarchitektin und Fachjournalistin, Korrespondentin Architektur/Innenarchitektur

Umtost von Autoverkehr, der in der Höhe vorbeiziehenden U-Bahn und dem Berliner Strassenleben, befindet sich ein Ort, der sich nicht auf Anhieb zu erkennen gibt:  Umfasst von einer hohen weissen Mauer entzieht sich ein Eckgrundstück dem städtischen Kontext, einer bunten Melange von Geschäften und Wohnhäusern aus Zeiten der Jahrhundertwende bis zu den 1980er-Jahren.

Dieser Beitrag ist Teil unserer Sommerserie «Hella in Berlin». TEC21-Redaktorin Hella Schindel wird für uns den Sommer über in loser Folge über Trouvaillen aus der deutschen Hauptstadt berichten.

Mit Polizeieskorte nach Berlin

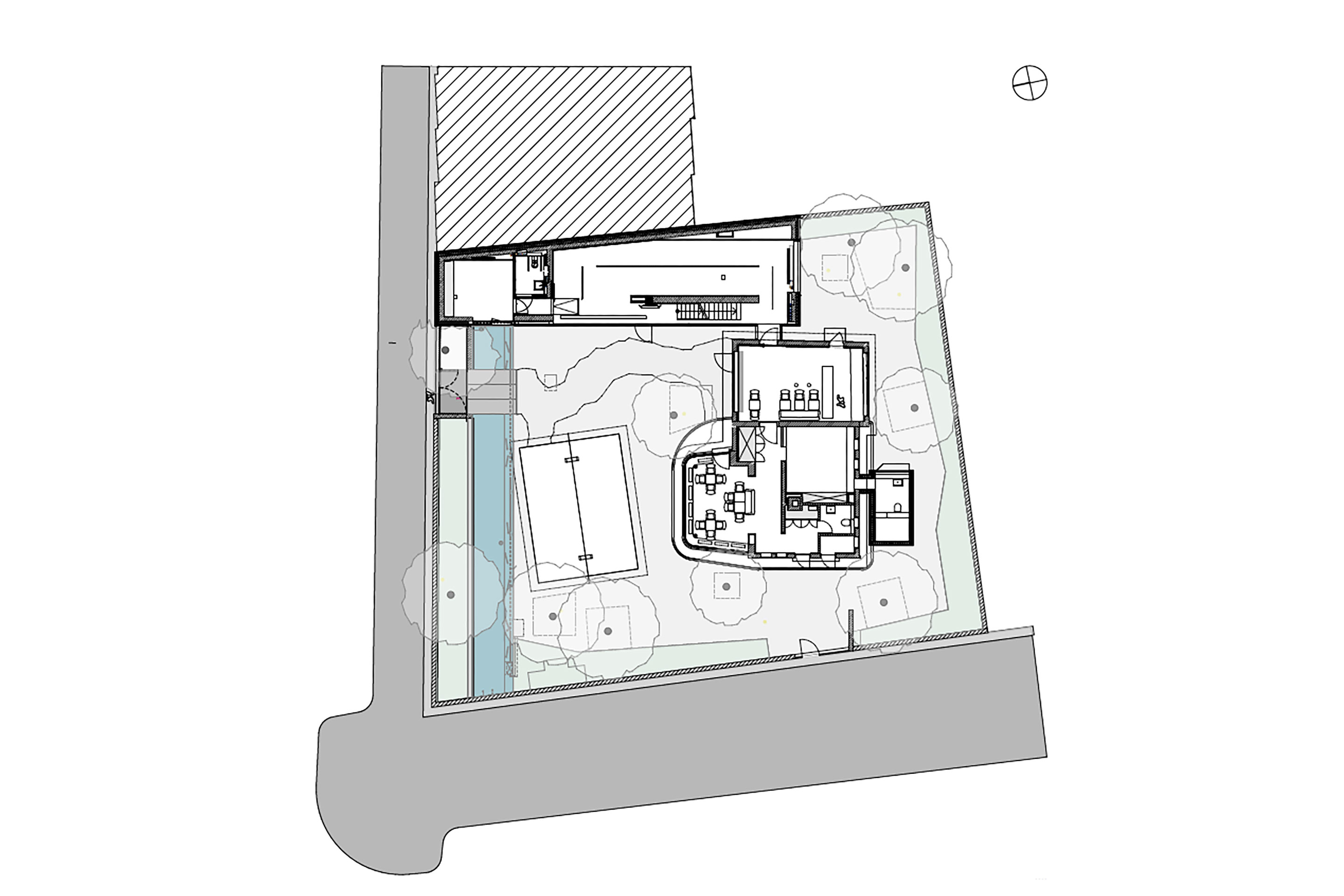
Um so überraschender ist der Anblick, wenn sich das Eingangstor öffnet: Eingebettet in einen Garten mit Kirschbäumen und Kiefern steht man einem gut erhaltenen Tankstellengebäude gegenüber, «Standardtyp der Shell AG von 1956». Die Nachkriegseuphorie ist der Architektur eingeschrieben. Das Ensemble unterliegt nicht dem Denkmalschutz, so dass es neuen Nutzungen offenstand: Seit 2022 ist hier das «Kleine Grosz Museum» zuhause, das dem Künstler George Grosz gewidmet ist. Ergänzt um einen schlichten Neubau fügen sich die Gebäude, die untereinander verbunden sind, in den Garten. Im Schutz der Mauer funktioniert der Aussenraum wie ein alles umfassendes, zusätzliches Zimmer.

Seiner Herstellung gingen grössere Eingriffe voraus: die Benzintanks mussten entfernt und der umliegende Boden ausgetauscht werden. Die so entstandene tiefe Grube ermöglichte es, grosse Bäume anzupflanzen. Hier liess sich der private Bauherr nicht lumpen. Die Kiefern waren so mächtig, dass sie per Polizeieskorte von der Nordsee nach Berlin transportiert werden mussten. An ihrem jetzigen Standort blockieren sie die frühere Zufahrt der Autos – eine positive Wendung für so ein urbanes Grundstück. Schillernde Vögel, die im rückwärtigen Teil in Volieren leben, und Koi-Karpfen in einem schmalen Becken unterstreichen die verwunschene Atmosphäre zwischen Beton, Neonlicht und Natur.

Der ehemalige Verkaufsraum, ein dynamischer Baukörper, der sich mit einer weich um die Ecken gezogenen Glasfront zum Garten öffnet, zeugt noch von der damaligen Wertschätzung des Automobils. Etwas strenger und zurückhaltender gliedert sich links daneben die ehemalige Werkstatt an, die sich mit verglasten Toren öffnen lässt. Die filigrane Stahlkonstruktion der Tür konnte aufgearbeitet und erhalten werden, ebenso wie das Industrieglas, das unter grob aufgebrachten Platten zum Vorschein kam. Von aussen sind die geschlossenen Flächen der Bestandsgebäude mit eierschalenfarbigen Fliesen belegt und von feinen, feuerrot lackierten Profilen akzentuiert. Da im Innenraum der Werkstatt die gleichen Fliesen vorhanden und nicht mehr überall gebraucht wurden, fanden sie als Ergänzung der zerstörten Fliesen an der Aussenhaut Verwendung.

Diese Gebäude bilden den Fond für das eigentlichen Schmuckstück, ein ikonisches Flugdach. Anders als das Betondach des Verkaufsraums und der Werkstatt, besteht es aus einer feinen Holzkonstruktion, die unterseitig verputzt ist. Seiner Funktion als Schutz der Kunden an den Zapfsäulen enthoben, wirkt es nun wie eine Skulptur, die von den zwei Stützen nicht getragen, sondern vielmehr am Abheben gehindert zu werden scheint. Die leere Fläche darunter ist das neue Zentrum, auf das sich das Ensemble bezieht.

Wohnen in der Tankstelle

Unbebaute Fläche ist eine Seltenheit in diesem dichten Stadtteil und war seinerzeit ausschlaggebend für die Neugierde von Juerg Judin, dem heutigen Besitzer. Auf der Suche nach einem Wohn- und Atelierhaus streifte der Schweizer Galerist und Kunstsammler an dem Grundstück vorbei, das seit 1986 brach lag. Als das Verkaufsschild 2005 verschwand, beeilte er sich, das Gelände zu erwerben.

2009 veranlasste er die ausgesprochen zurückhaltenden Umbauten und Ergänzungen, um das Ganze als Ausstellungsraum und Wohnort für Kunstschaffende zur Verfügung zu stellen – entgegen seinen früheren Absichten bewohnte er das Ensemble aber zunächst selbst.

Im ehemaligen Verkaufsraum richtete er sich ein Wohnzimmer ein. Die Werkstatt wurde zur Küche und im hinteren Bereich entstand ein Gästezimmer mit einem neu zugefügten Bad in einem Shell-roten Kubus. Ergänzend fügt sich ein schmaler zweigeschossiger Neubau aus Beton mit einer Gartenfassade aus undurchsichtigen Glaselementen wie ein Keil zwischen Werkstatt und Brandwand des nördlich angrenzenden Nachbargebäudes. Das Erdgeschoss nutzte Judin zum Wohnen und Arbeiten. Eine einläufige Treppe hinter der Gartenfassade führt ins Obergeschoss, das auch damals schon als Galerieraum diente.

Museum in der Tankstelle

Als der Bedarf nach weiteren Ausstellungsflächen wuchs, räumte Judin seinen Wohnsitz und ermöglichte die Einrichtung des George-Grosz-Museums. Träger ist ein Verein, der sich der vollständigen Rehabilitation des als «entartet» vertriebenen Künstlers zur Aufgabe gemacht hat.

Die neue Nutzung liess sich mit wenigen Eingriffen und Umbauten integrieren, zugleich konnten bauliche Situationen, die sich in den letzten Jahren als ungünstig herausstellten, behoben werden: Ein neues Eingangstor schliesst nun bündig an den Betonriegel an. Die Strassenfront ist so zwar weniger elegant gegliedert als zuvor, dafür entfallen schwer zu pflegende Winkel. Um im Neubau mehr Wandfläche zu gewinnen, wurden einzelne Fensterflächen geschlossen. Auf diese Weise reduziert sich der Lichteinfall, was dem Schutz der Exponate zugutekommt. Das restliche Tageslicht, das gefiltert durch die Industrieglas-Paneele einfällt, eignet sich bestens für Ausstellungszwecke.

Der Empfang mit Rezeption und Teeküche befindet sich in der ehemaligen Werkstatt – zuletzt die Küche von Judin. Von hier wird das kleine Café versorgt, das im ehemaligen Verkaufsraum Platz gefunden hat und einen schönen Ausblick in den Garten gewährt. Eine Terrasse mit weiteren Sitzplätzen dehnt sich unter das Flugdach und ins Freie aus.

Besuchende stehen vor der Wahl, vom Empfang zuerst nach rechts ins Café oder nach links in die Ausstellung abzubiegen, die sich über beide Etagen des Neubaus ausdehnt. Es lohnt sich, der Anziehungskraft des Cafés, das man schon von aussen überblicken kann, zu widerstehen: Die Ausstellung zum Leben und Werk sowie wechselnde Ausstellungen mit Gemälden, Zeichnungen und Druckgrafiken von George Grosz (1893–1959, Berlin) sind mit ebensolcher Sorgfalt kuratiert, wie die architektonische Umgebung. Zwischen dem bildnerischen Werk, mit dem sich Grosz dem Kriegstreiben im Kaiserreich und schon früh dem aufsteigenden Nationalsozialismus entgegenstellte und der rauen, grossstädtischen Umgebung besteht eine sinnfällige Nähe. Nachdem man sich der Wucht der Zeichnungen mit nicht wenigen verstörenden Kriegsdarstellungen ausgeliefert hat, ist das Wandeln im Garten und ein Besuch im Café eine doppelte Wohltat.

Einen Kurzfilm zum Projekt finden Sie hier.

Étiquettes

Sur ce sujet