Geord­net Bah­nen zie­hen

Selektiver Projektwettbewerb Neubau Hallenbad Gossau SG

Die Stadt Gossau plant eine Überarbeitung ihrer Sportstätten. Gleichzeitig soll im Gebiet Buechenwald ein neues Hallenbad entstehen. Den dafür ausgeschriebenen selektiven Projektwettbewerb gewann die ARGE Zuber Schifferli Ferrari Gartmann Melliger.

Date de publication
14-11-2019

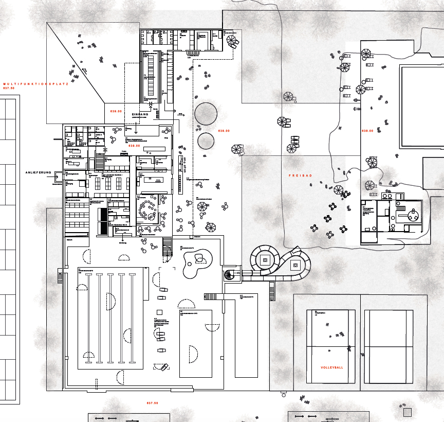
In den nächsten Jahren sollen in Gossau verschiedene Sportstätten erneuert und neu erstellt werden. Aus dem Gemeindesportanlagen-Konzept GESAK (2012) entwickelte sich der Masterplan Sportanlagen Buechenwald und Rosenau (2015), der in drei Modulen umgesetzt werden soll. Teil des zweiten Moduls ist der Rückbau des Schulhallenbads Rosenau, das stark sanierungsbedürftig ist. An seiner statt ist innerhalb des ersten Moduls ein neues Hallenbad im ­Gebiet Buechenwald direkt beim bestehenden Freibad geplant. Eine Machbarkeitsstudie von 2013 von K & L Architekten zeigte, dass ein Hallenbad mit einem 25-m-Becken im Gebiet Buechenwald möglich ist. Die Realisierbarkeit, die Etappierung und die Abhängigkeiten, die den Ersatzneubau des Hallenbads beeinflussen, wurden 2015 im Masterplan fest­gehalten. Für die Evaluierung des neuen Hallenbads schrieb die Stadt Gossau einen selektiven, an­o­ny­men Projektwettbewerb aus. Aus den 60 eingereichten Arbeiten wurden mittels Präqualifikation 12 Büros selektiert, die die nötigen Kompetenzen aufweisen.

Schwimmen − eine komplexe Planungsaufgabe

Das neue Hallenbad sollte mit optionalem Aussenbecken und einem gemeinsamen Eingangs- und Restaurationsbereich für das Frei- und Hallenbad erarbeitet werden. Der Schwerpunkt lag aber auf der Lösung für das Hallenbad, der Garderobeninfrastruktur des Freibads und der zugehörigen Freiflächen. Das neue Bad soll vorrangig dem Schwimm­sport dienen; Wellnessbereiche oder umfangreiche Installationen für ein Freizeitbad waren nicht vorgesehen.

Das Preis­gericht beurteilte die verschiedenen Projekte hinsichtlich Städtebau und Architektur (ortsbauliche Situation, architek­tonischer Ausdruck, Freiraumgestaltung), Funktionalität und Qualität (betriebliche Funktionalität, Qualität der Innenräume, Zusammenspiel öffentlicher Freiraum – Hallenbad – Freibad) und Nachhaltigkeit (wirt­schaft­liche Nach­haltigkeit bei den Bau-, Betriebs- und Unterhaltskosten, graue Energie, Betrieb, Rückbaubarkeit). Nach der Auswertung empfahl die Jury einstimmig das Projekt «Mako» der Arbeitsgemeinschaft Zuber Schifferli Ferrari ­Gartmann Melliger zur Weiterbe­­­­­arbeitung.

Geordneter Zugang

Eine besondere Herausforderung war die Hochwassergefahr im Gebiet Buechenwald. Das Erdgeschoss des neuen Bads muss deswegen mindestens 1.5 m höher liegen als der Vorplatz und trotzdem die Barrierefreiheit gewährleisten. Diesen Höhenunterschied überbrückten die Planenden mit einer raumgreifenden Rampe. Eine grosszügige Geste, die jedoch behindertengerecht optimiert werden muss und bei der die Jury eine Treppe vermisst. Auf den Vorplatz selbst setzte die ARGE ­Zuber Schifferli Ferrari Gartmann Melliger zwei Baumgruppen im Süden und Westen der Anlage und eine Baumzeile im Norden. Gemeinsam mit dem Gebäudeensemble schaffen sie einen gefassten Raum, in dem unterschiedliche Nutzungen wie Spiel-, Sport- und Aufenthaltsangebote, aber auch die Autostellplät­ze untergebracht werden können.

Die Jury lobt die Gliederung des Bauvolumens und die dadurch klaren Zugänge und Zugehörigkeiten. Die Rampe markiert den Eingangsbereich zum Bad; das Gefälle allerdings schränkt die Nutzungsmöglichkeiten des Platzes ein. Als positiv wertet das Preisgericht den mittig zwischen den beiden Fassaden situierten Zugang, der einen sehr schönen ersten Blick ins Freibad er­möglicht; ein visueller Kontakt zur Bäderlandschaft des Hallenbads ist hingegen nicht gegeben. Auch die funktionalen Abläufe im Bereich Eingang, Restauration und Garderoben müssen die Planenden überarbeiten und besser auf das Drehscheibenkonzept ausrichten – den Haupteingang also so gestalten, dass er als Drehkreuz für Hallen- und Freibad, Restaurant, Garderoben sowie die Betriebs- und Technik­räume dient.

Der Ankunftstrakt zeigt sich nach aussen eher geschlossen, im Gegensatz zum verglasten Hallenbad, das sich zu den Sportanlagen öffnet und viel Licht ins Innere lässt. Von den Wasserbecken, die in der Bäderhalle als Badelandschaft unter dem grossen Dach angesiedelt sind, sind durch die grosszügige Verglasung Blickbezüge zur gesamten Sportanlage möglich.

Leichtigkeit trotz optischer Schwere

Überzeugend gelöst ist die Situierung der verschiedenen Schwimmbecken und des Planschbeckens – sie sind vom Restaurant aus gut ein­sehbar. Eine Rutschbahn ist sowohl vom Hallenbad wie auch vom Freibad her über einen Treppenturm erreichbar. Das zur Mitte hin geknickte und nach aussen anstei­gende Pultdach wird in der Raummitte von einer massiven Stütze getragen – trotz seiner optischen Schwere lässt das Dach den Raum weitläufig wirken. Dennoch soll es in der Überarbeitung vereinfacht werden.

Ausserdem hinterfragt die Jury die glatte und harte Oberfläche der Decke hinsichtlich der Raum­akustik. Auch hier ist das Projekt mit geeigneten Massnahmen zugunsten der Akustik sowie einer be­haglichen Innenraumatmosphäre zu ändern. Ferner hat «Mako» beim Thema Nachhaltigkeit Ver­bes­se­rungs­potenzial. Die Jury fordert eine konsequen­te Trennung zwischen Bauteilen un­ter­schied­li­cher Lebensdauer, um den Ersatz einzelner Komponenten sowie Unter­haltsarbeiten, eine flexible Nutzungsentwicklung und eine fachgerechte Separierung beim Rückbau zu gewährleisten.

Die Preisrichter sind sich jedoch einig: Aufgrund des robusten Konzepts von «Mako» können die noch bestehenden Mängel im Rahmen der Projektierung gelöst werden. Der Bau des Hallenbads soll dann als «Leuchtturm» für den Masterplan Sport­anlagen dienen und den Eingang zu den neuen Sport- und Freizeitanlagen im Gebiet Buechenwald markieren.

Weitere Pläne und Visualisierungen zum Wettbewerb finden sich auf competitions.espazium.ch

Auszeichnungen

1. Rang / 1. Preis: «Mako»
ARGE Zuber Schifferli Ferrari Gartmann Melliger, Chur; Beck Schwimmbadbau, Winterthur; Bertozzi Energie­planung, Winterthur
2. Rang / 2. Preis: «Plein Air»
BUR Architekten, Zürich; vetschpartner Landschafts­architekten, Zürich; Schnetzer Puskas Ingenieure, Zürich; Kannewischer Ingenieurbüro, Cham; Klarer Freizeit­anlagen, Hallau SH; Filippo Bolognese Images, Mendrisio
3. Rang / 3. Preis: «Eduardo»
K&L Architekten, Zürich; Hager Partner, Zürich; ­Walt­Galmarini, Zürich; Hunziker Badtech, Winter­thur; Braune Roth, Rorschacherberg SG
4. Rang / 4. Preis: «Am Quai»
Scheitlin Syfrig Architekten, Luzern; Appert Zwahlen Partner, Cham; Kannewischer Ingenieurbüro, Cham; ewp bucher dillier, Luzern; ppm Projektmanagement, St. Gallen
5. Rang / 5. Preis: «Heureka»
Felgendreher Olfs Köchling Architekten, Azmoos SG; Kollektiv Methaporph Kig, Jona; JOP Josef Ottinger + Partner, Rothenburg LU

FachJury

Valentin Bearth, Architekt, Chur; Bruno Bossart, ­Architekt, St. Gallen; Elmar Hasler, Architekt, St. Gallen; Rita Mettler, Landschaftsarchitektin, Gossau/Berlin; Yvo Lehner (Ersatz), Leiter Hochbau Stadt Gossau

SachJury

Wolfgang Giella, Stadtpräsident; Gaby Krapf-Gubser, Stadträtin Departement Bau Umwelt Verkehr; Urs Blaser, Schulratspräsident; Norbert Thaler (Ersatz), Leiter Sportkoordinator

Sur ce sujet