Il Cen­tro di ac­co­glienza a Ivry-sur-Seine

Date de publication
11-02-2019
Revision
11-02-2019

Offrire un rifugio

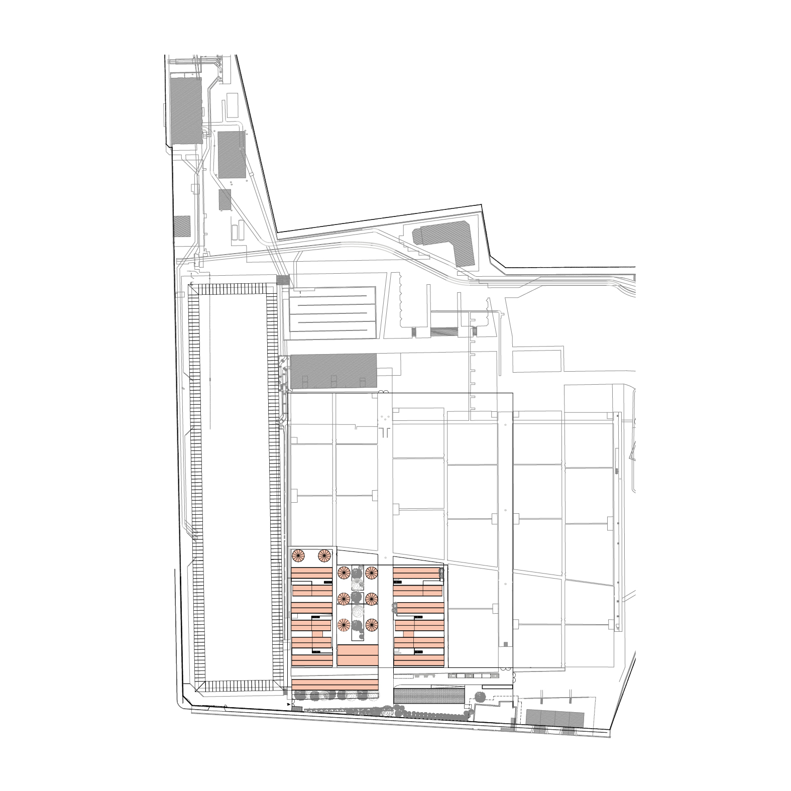
Il centro di accoglienza di Ivry-sur-Seine si colloca sul sito di un impianto idrico in disuso, una vasta parcella di 90’000 m2 appartenente alla Città di Parigi. Il centro fornisce una risposta parziale alla preoccupante situazione che vede arrivare nel cuore di Parigi circa sessanta persone al giorno, tra donne, uomini e bambini, provenienti da paesi in guerra o in miseria. Si è parlato ampiamente dello squat «tentacolare» che ha interessato la metropolitana tra le fermate di Jaurès e Stalingrad, evacuate tutte le settimane in seguito a reclami, prese di coscienza o per varie occasioni, nella totale assenza di soluzioni di alloggio, anche temporaneo, da fornire a persone che sono potenziali richiedenti asilo. Il centro accoglie 400 persone, tra cui 350 migranti e 50 rom (di Ivry), per un periodo che va da 2 a 6 mesi al massimo; è concepito per famiglie, coppie e donne sole. La sua costruzione è temporanea, deve durare non più di 5 anni.

 

Insediamento

L’urgenza è una nozione che ci riporta all’essenziale. Il cursore si fissa in primo luogo sulla questione centrale: come si possono offrire spazi dignitosi e di qualità a una popolazione resa fragile, a culture diverse? Non si vive lo spazio alla stessa maniera in Sudan, in Eritrea, in Siria, in Afghanistan: la nozione «abitare» si presenta come un mosaico. 

Tuttavia il minimo comune denominatore resta quello, primitivo, della comunità. La struttura di una città presenta alcune invarianti. Tra lo spazio pubblico e quello più intimo, l’Uomo sceglie volentieri una vita in comunità e organizza la sua vita attorno a questo continuo passaggio dalla sfera pubblica a quella privata, dalla socialità all’introversione. Data questa importante premessa progettuale, abbiamo disposto nel cuore del centro le sei yurte che fungono da sale mensa e da spazi polivalenti. Le superfici ampie che le separano offrono spazi di supporto a questo complesso di edifici: spazi ideali per il gioco (dal nascondino per i bambini alla pallavolo o al calcetto improvvisato dagli adulti), ma anche per la conversazione e per lo scambio. Ai lati di questo spazio centrale, tre strade distribuiscono gli alloggi per donne sole e coppie e tre strade quelli per famiglie. 

Poi dobbiamo confortare i vivi. Ognuno arriva con la sua storia, le sue fragilità, i suoi punti di forza: dovevamo assicurarci che questo rifugio potesse, indifferentemente, diventare il ricettacolo di questi percorsi. Che si sia fuggiti dalla guerra, da un matrimonio combinato, dalla repressione o dall’oppressione, bisogna sentire che si è accolti e protetti. Volevamo, mentre pensavamo all’essenziale, dare la stessa attenzione a ciascuno, alla sua dignità.

 

Pensare la temporaneità

I lavori sono iniziati il 2 novembre 2016 e si sono conclusi il 7 marzo 2017. I tempi stretti hanno imposto l’impiego di un sistema di prefabbricazione che riducesse i tempi della costruzione, introducendo due cantieri portati avanti in parallelo: sul sito del progetto si lavorava alle infrastrutture e alle reti delle forniture, mentre in fabbrica si producevano i moduli prefabbricati in legno. Osservandoli da vuoti, abbiamo compreso il potenziale di questi moduli: sono strutture che possono essere smontate e riutilizzate, con un procedimento che si iscrive nei termini dell’architettura resiliente. Ad esempio, si potrebbe immaginare una seconda vita di questi moduli in una logica di economia circolare, o il riutilizzo da parte dello stesso proprietario su un altro sito: un approccio tanto più significativo in quanto il rifugio di emergenza è pensato per avere una vita utile di 5 anni.

Infine consideriamo l’«immagine» del centro. Per noi non era possibile adottare un approccio che partisse dal contenitore: la dimensione simbolica, accettabile a volte, per altri progetti, non era concepibile in questo contesto davvero unico. Senza mettere in crisi il progetto architettonico, rispondere a questo tipo di commessa è complesso e comporta una revisione del processo creativo, delle parole e degli strumenti di progettazione.

Abbiamo avuto la fortuna di affrontare questa sfida così impegnativa pensando di scrivere una bella storia, una storia importante, di quelle che contano. In cinque anni, il centro sparirà e potrebbe rinascere altrove, ma questa è un’altra storia.

 

Luogo: Ivry-sur-Seine (F)
Committenza: Emmaüs Solidarité, Parigi
Architettura: Atelier Rita, Parigi
Collaboratori: Arch. Bonnaire
Impresa: Brezillon, Parigi
Ingegneria civile: Brezillon, Parigi
Progetto impianti RVCS: Brezillon, Parigi
Progetto impianti elettrici: Brezillon, Parigi
Fisica della costruzione: Brezillon, Parigi
Fotografia: David Boureau, Parigi
Fotorender: Guillermo Lumbreras, Parigi
Date: progetto ottobre 2016; realizzazione novembre 2016 – marzo 2017
Intervento e tipo edificio: nuova costruzione, temporanea

Sur ce sujet