Une pointe dans l'oeil du con­for­misme

Le bureau lausannois Dreier Frenzel vient de livrer un surprenant immeuble d’habitation à Renens. Conçu à partir d’un plan triangulaire, paré de coursives extérieures, le 10 rue de Verdeaux souffle un vent de renouveau dans un contexte immobilier où l’insignifiance est devenue acceptable du moment qu’elle se concrétise dans des formes conventionnelles. Visite guidée d’un bâtiment provocateur, lancé comme un navire de guerre contre la bienséance dans l’habitat collectif.

Date de publication
07-11-2018
Revision
12-11-2018

Avec une réalisation comme celle-là, on ne peut que commencer par la surface. Celle de la première impression qui surprend, parfois irrite et exaspère, comme dans le cas de ce riverain qui a fait de la lutte contre le projet sa véritable vocation. C’est lui, qui pour en être resté à la surface des choses, aura été à l’initiative des principales oppositions. C’est lui toujours qui ne comprend pas pourquoi la Ville de Renens n’impose pas aux propriétaires de repeindre les parois en béton brut. C’est finalement lui qui militera pour que le bâtiment soit inscrit sur la liste officieuse des plus «laides maisons de Suisse», ce classement réalisé cet été par le gratuit 20 minutes, et dont l’incongruité des critères transforme, dans certains cas, le désaveu en éloge. Y figure, par exemple, le grand ensemble Telli de Hans Marti, à Aarau, un chef-d’œuvre moderniste des années 1970.

Pourtant l’immeuble de Dreier Frenzel mérite qu’on prenne le temps d’observer de plus près les aspérités du béton, les traces de décoffrage qui transforment les parois extérieures en surfaces complexes et travaillées, relayant inévitablement l’isolation à l’intérieur. Elle mérite surtout que l’on en fasse le tour pour observer le jeu élaboré des escaliers extérieurs qui animent l’une des faces de l’immeuble.

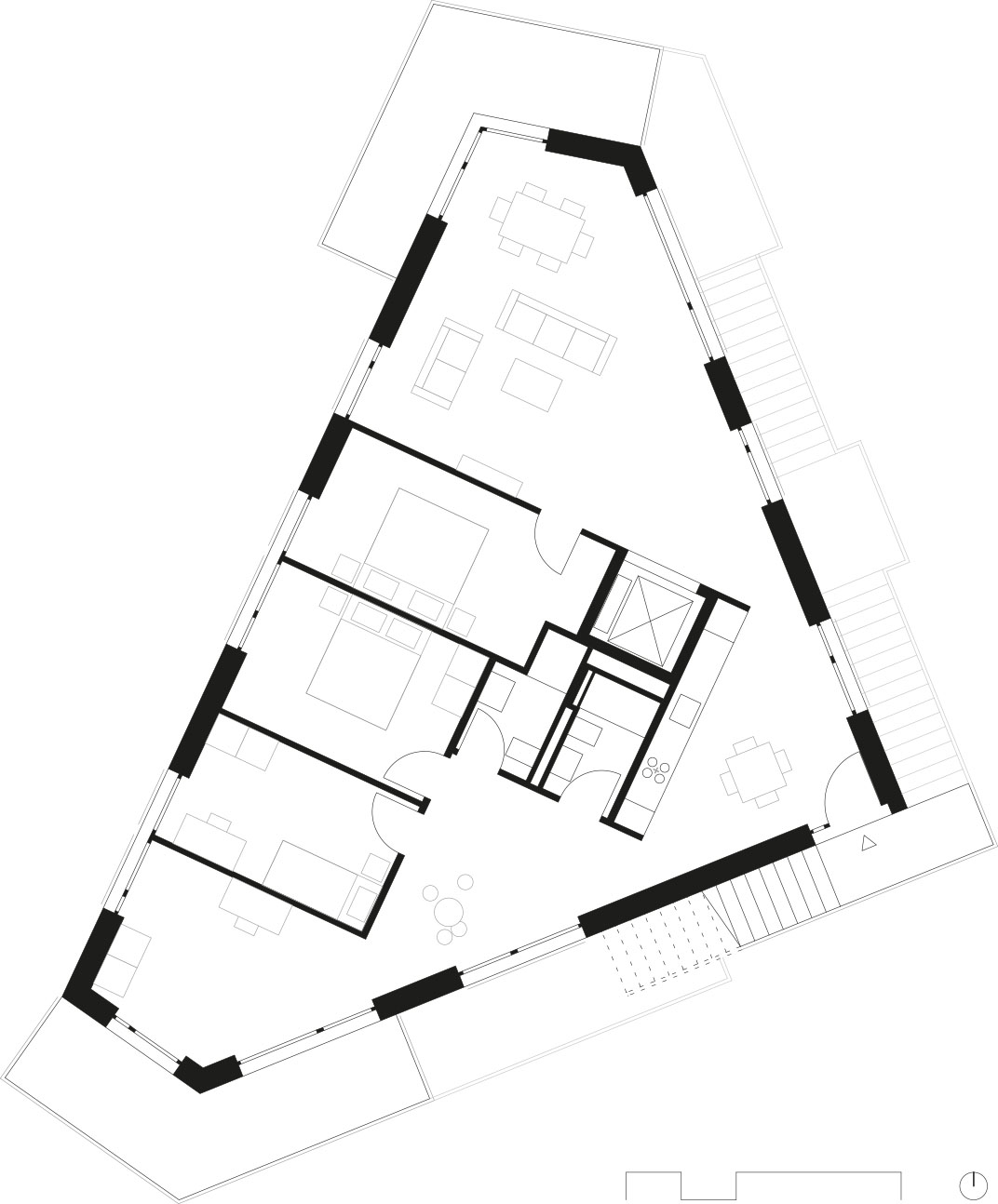
Mais reprenons les choses au commencement. Le 10 rue de Verdeaux est ce qu’on appelle un immeuble de rapport. Un projet réalisé pour rapporter la rente des loyers à ses propriétaires. Construit sur une parcelle en pente, dans la courbe d’une rue à deux voies supposée un jour s’élargir, l’emprise au sol du bâtiment de quatre étages n’est que de 140 m2. Autant dire que faire entrer dans ce volume inhabituel l’orthogonalité de notre normativité domestique relève du casse-tête chinois.

L’immeuble est organisé d’une façon assez pragmatique. A l’intérieur du trian-gle de chaque niveau, plusieurs rectangles contiennent la gaine de l’ascenseur, la salle de bain et les pièces à coucher. Ces rectangles génèrent à leur tour plusieurs nouveaux espaces triangulaires de tailles variables qui contiennent l’entrée, la cuisine et les espaces partagés. L’orthogonalité est ainsi reléguée au cœur d’un palier, et les espaces triangulaires aux extrémités. Ce système crée surtout des espaces atypiques, aucun des huit appartements n’étant semblable.

Pour en avoir visité quelques-uns déjà occupés, on ne peut s’empêcher de penser que l’esprit inventif des coopératives d’habitants gagne progressivement la mentalité de certains locataires, les incitant à innover avec les espaces hors normes, au lieu de les subir comme une anomalie, voire un défaut.

Mise en scène de l’habitat collectif


L’immeuble est la forme d’occupation optimale d’une parcelle que tout le monde pensait inconstructible. Et puisque c’est par sa présence que l’édifice affirme son droit d’exister, il va le faire de façon explicite, quasi théâtrale. Nul besoin de se cacher, encore moins de se faire discret. Par un usage très plastique du béton, par le jeu des ouvertures qui réinterprètent celles des bâtiments environnants, par les grands balcons qui mettent en scène la convivialité, conçus pour favoriser les vis-à-vis et les échanges entre voisins, l’immeuble s’exhibe pour ce qu’il est: un lieu de vie.

L’élément central de cette théâtralité n’est autre que les trois grandes coursives qui desservent six appartements et projettent les circulations verticales du bâtiment sur l’une de ses façades. En exposant les usages quotidiens, elles contribuent à animer l’ensemble d’habitation. Elles transposent ainsi l’identité de la rue sur la façade. Si Yves Dreier ne manque pas de souligner que ce fut le manque d’espace qui dicta initialement la solution des coursives extérieures, on ne peut s’empêcher d’y voir un choix formel assumé. C’est probablement l’aspect le plus inhabituel et le plus réussi de l’immeuble. Un choix qui ressuscite les moments les plus héroïques du brutalisme des années 1960 avec l’idée, admirablement exécutée par les Smithsons ou encore par Jean Renaudie et Renée Gailhoustet, des escaliers et de coursives extérieurs conçus comme des lieux de vie et d’échange.

L’immeuble de la rue de Verdeaux n’a ni l’échelle, ni la complexité labyrinthique des grands ensembles qui ont d’abord fait la renommée, puis contribué au discrédit des coursives extérieures.

Il s’agit d’un immeuble collectif de petite taille, parfaitement intégré dans la volumétrie de ce quartier résidentiel paisible. Tout au plus fait-il le choix de porter ses escaliers comme des signes distinctifs d’une envie de renouveau. A 100 m de l’Ecole cantonale d’art de Lausanne/ECAL, cela ne peut avoir que du sens.

 

Participants au projet

Maître de l’ouvrage : privé
Architectes : Dreier Frenzel Architecture+Communication
Ingénieurs civils : Structurame Sàrl
Ingénieurs CVS : Enerconseil SA

Magazine

Sur ce sujet