Un han­gar, à l’ouest

La rénovation de l’Arsenic par Pont12 maintient l’esprit du lieu. Présentation d’un équipement qui n’a pas fini de nous faire vibrer.

Date de publication
16-01-2014
Revision
12-10-2015

Depuis sa création il y a 25 ans, l’Arsenic a fonctionné comme un lieu de production alternatif : une scène expérimentale, installée dans un équipement désaffecté, à la marge du centre-ville. Sa réhabilitation réalisée par Pont12 en 2013 se fixa comme objectif de préserver son identité. Visite guidée d’un lieu de spectacle dont la mise aux normes n’aura rien ôté à sa beauté subversive. 
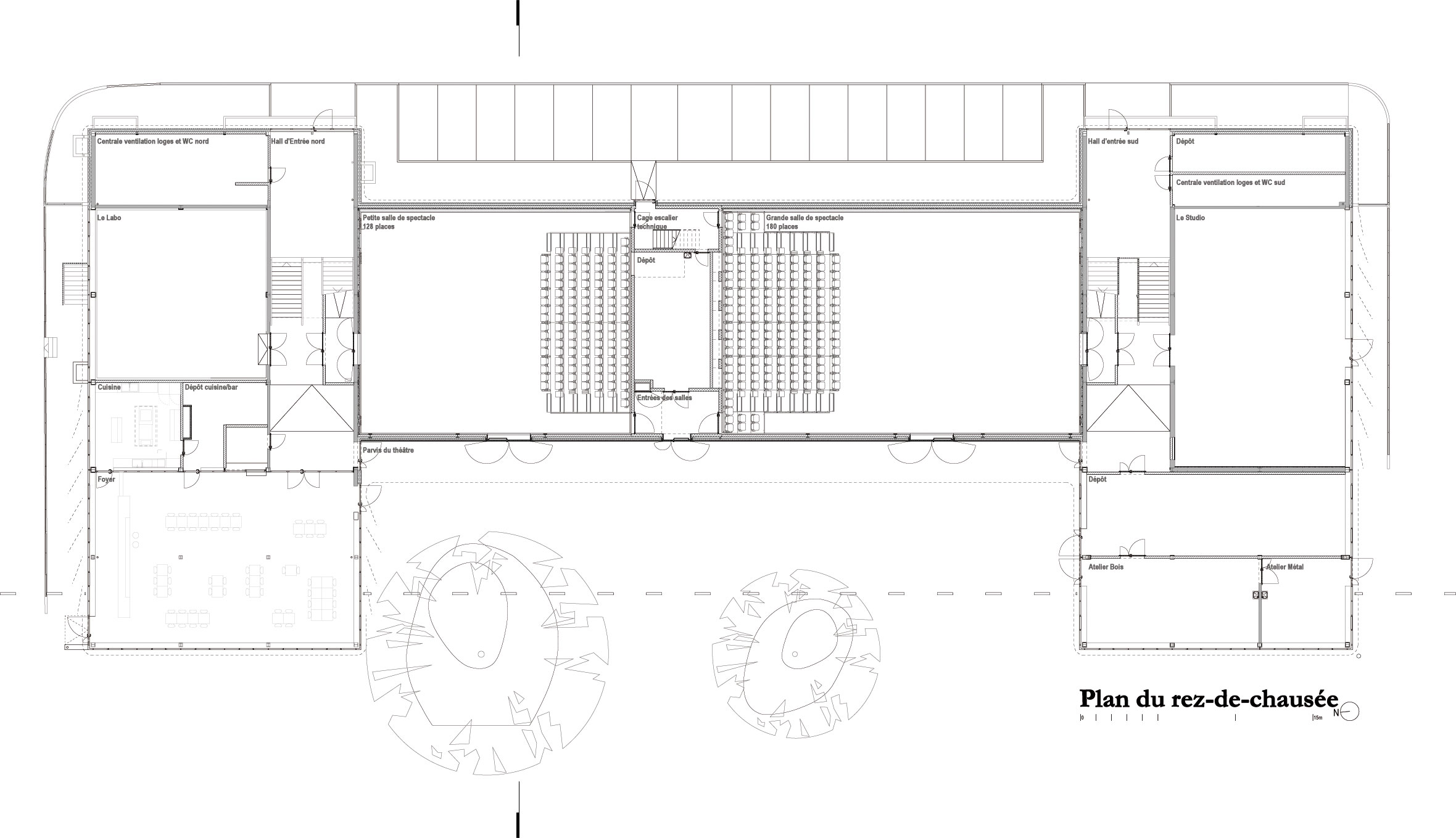
Quand en 1989 Jacques Gardel installe l’Arsenic dans les ateliers mécaniques de l’EPSIC1, il s’imagine certainement accomplir un geste provisoire. Le bâtiment conçu en 1955 présentait de nombreux avantages tout en restant limité par ses caractéristiques volumétriques. Le corps central du bâtiment pouvait accueillir deux scènes distinctes, mais la hauteur sous plafond n’était pas celle requise pour un lieu de représentation.
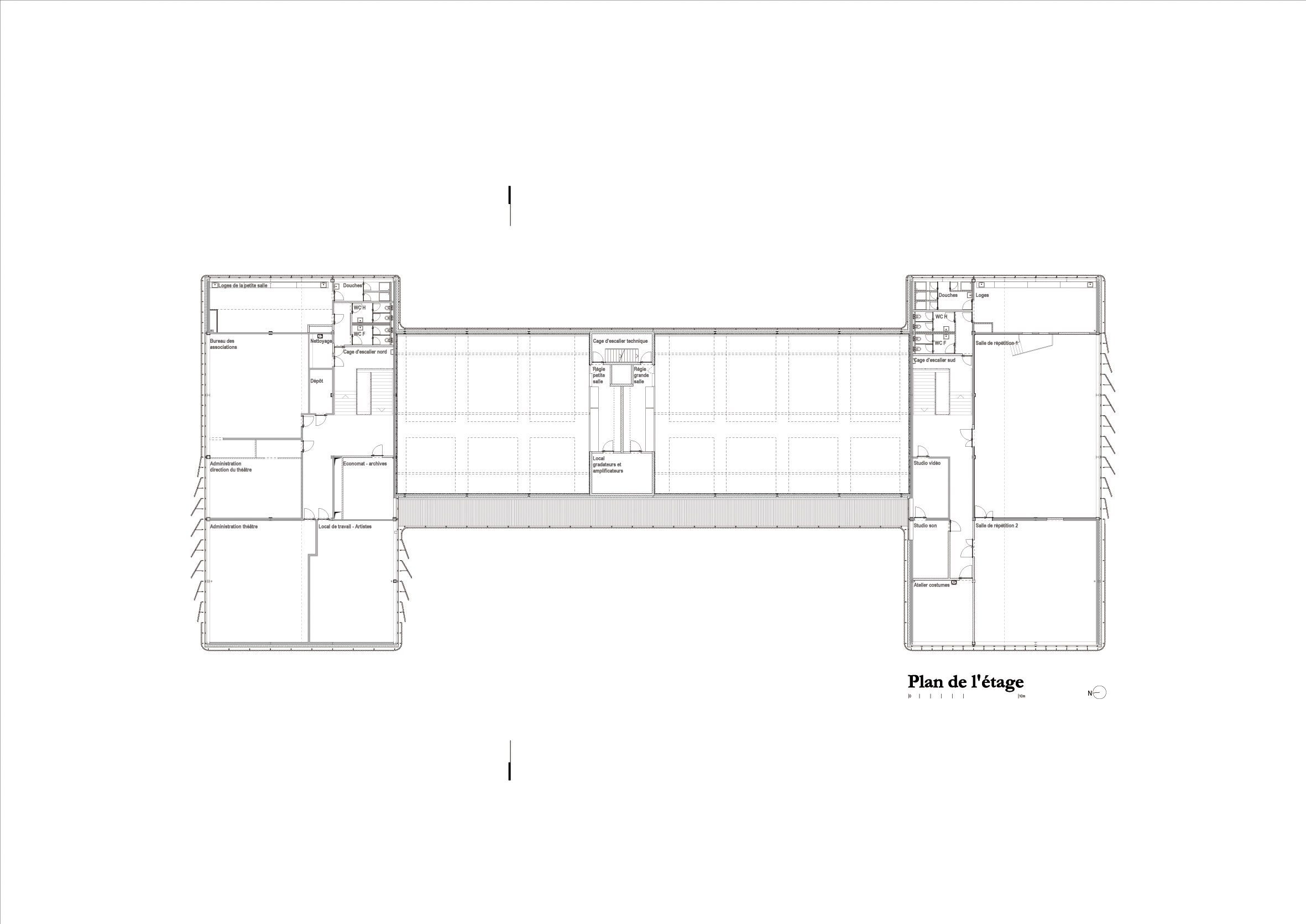
La principale modification apportée par Pont12 a consisté à reconstruire intégralement cette partie du bâtiment pour créer un véritable outil scénique fonctionnel. Dans la configuration initiale, les deux salles étaient séparées par une cloison, plus proche de la cimaise que du mur. Aujourd’hui, elle a été remplacée par un noyau dur en béton qui recèle une grande partie de la technique nécessaire pour un lieu qui accueille du public. La régie, mais aussi la ventilation, sont intégrées à ce module rigide qui assure aussi la séparation phonique des deux espaces de représentation. La surélévation de la toiture du corps central a permis d’y intégrer un gril technique ; quant aux gradins, ils sont modulables pour la grande salle, et fixes pour la petite.

Habiller pour chauffer


La deuxième intervention apparente de cette reconstruction concerne l’enveloppe. Le bâtiment d’origine était une structure métallique remplie de briques. Disposant de grandes baies vitrées, il affichait un taux élevé de déperdition par les parois.
L’équipe de Pont12 choisit de pallier ce défaut d’isolation en emballant le volume dans 20 cm de laine minérale. Cette couche protectrice fut à son tour recouverte d’une toile stamisol qui donne à l’ensemble sa couleur sombre. Dernier élément de ce millefeuille élaboré : des panneaux de tôle perforée aux inclinaisons variables, pour permettre aux fenêtres des bureaux de disposer d’une vue dégagée. L’angle des panneaux varie selon les cônes de vision à partir des bureaux vers le plateau de Sévelin. Ce revêtement en tôle, noir de l’extérieur, métallisé de l’intérieur, souligne le caractère industriel du bâtiment. Il est un rappel du principe de la boîte noire appliqué aux espaces scéniques, indispensable pour maîtriser les effets d’éclairage. 
Ce qui surprend à l’Arsenic, c’est la façon dont les changements d’envergure s’accompagnent d’un maintien d’une part importante des attributs d’origine. Si le corps central a été entièrement reconstruit, les deux bâtiments latéraux n’ont bénéficié que de changements ponctuels. Les fenêtres ont toutes été changées, mais les escaliers et leurs garde-corps, les radiateurs, les sols usés en carreaux de ciment sont restés tels qu’ils étaient. L’assimilation d’éléments nouveaux aux anciens témoigne d’une véritable stratégie quant aux modalités de cette requalification. Convaincus de devoir reconstruire intégralement les salles pour offrir des outils de travail performants, les architectes ont aussi été sensibles à la préservation de l’esprit du lieu. Ils ont parfaitement compris que cette identité pouvait se cacher dans des détails, des fissures insignifiantes au sol, des fragments de graffitis laissés intacts, ou encore le mobilier d’origine. L’objectif n’est pas de sacraliser des reliques architecturales mais de maintenir active la flexibilité qui qualifiait la première occupation du lieu : celle de sa conversion en 1989, d’un établissement d’enseignement à un lieu de création. La patine que sauvegardent les architectes de Pont12 n’est pas un revêtement précieux, mais la possibilité de pouvoir intervenir librement sur l’équipement, exactement comme cela peut se faire dans le cas d’une friche culturelle. Garder l’esprit de la fabrique artistique, tout en s’autorisant une grande liberté dans l’apport de nouveaux éléments : tel pourrait être le principe qui définit cette réhabilitation.

Dissimulation 


L’accès à l’Arsenic reste, aujourd’hui encore, aussi dérobé qu’il a pu l’être à ses débuts. Le plateau de Sévelin et ses zones d’ombres n’ont pas été altérés par la reconversion. La nouvelle apparence de l’Arsenic semble vouloir accentuer cet effet de dissimulation. Il n’y a rien d’extravagant dans la mise en scène qui régit son intégration dans cet ancien quartier industriel. Le théâtre ne requalifie pas ce qui l’entoure, il s’en accommode. Aujourd’hui comme autrefois, l’accès aux salles se fait par l’extérieur. Pour y accéder, le visiteur doit sortir puis longer le corps central du bâtiment, sous un large auvent qui court sur toute sa longueur. Le paysage urbain nocturne, accentué par l’installation lumineuse de Sophie Guyot (voir article lié), sert de préambule à l’expérience scénique.
La décision d’inscrire de façon durable l’Arsenic dans la marge urbaine qui a forgé son identité n’est pas un fait du hasard. C’est un choix conscient, qui répond à la spécificité de son programme culturel. Son architecture sobre et efficace ne l’empêche pas de faire preuve d’une certaine théâtralité. Le bâtiment est revêtu du noir qui habille généralement l’intérieur des espaces scéniques. Il irradie son environnement d’une de ses caractéristiques intérieures. Il semble ainsi étendre la scène à tout ce qui l’entoure ; il se met en scène et invite à faire l’expérience du lieu comme s’il s’agissait d’une extension toute naturelle de son champs d’action. Le choix d’intégrer le clair-obscur ambiant à la scénographie de l’équipement, se confirme aussi dans la non intervention sur les accès au théâtre de part et d’autre du pont Chauderon.
Plusieurs détails complètent ce rapport subtil qu’entretient le lieu de création avec son environnement. Le choix de placer les ateliers de menuiserie des scénographes dans une partie visible d’une des deux ailes renoue avec l’une des premières missions du bâtiment : celle d’abriter un atelier d’apprentissage industriel. D’autres éléments viennent s’ajouter et rompre l’apparence uniforme du bâtiment : le jeu des panneaux de tôle perforée avec la vue ; la signalétique espiègle de l’Atelier Poisson. Sous son apparence sombre, sévère, l’Arsenic n’en finit pas de jouer avec la ville et ses ambiances.

Les coulisses pour tous


Quelle peut être la signification de cette marginalité entretenue ? L’Arsenic revisite une des caractéristiques essentielles des théâtres classiques : le fait que leurs façades soient des points culminants de la mise en scène urbaine. Il ne s’agit pas d’une réactualisation du façadisme classique, mais d’une variation sur le même thème. Sans pompe et sans éclat, les parois de l’Arsenic dramatisent l’espace urbain. Les théâtres dans des lieux reconvertis sont parfois les indices de la transformation progressive des villes. Ils sont des entités vivantes témoignant du passage des sociétés industrielles aux économies post-industrielles. Ils portent encore les traces des espoirs qui ont accompagné cette transition, d’un nouveau rôle pour la culture dans nos sociétés. Avec les scènes expérimentales, le monde du spectacle vivant a fait le pari de délaisser la sphère du divertissement pour occuper celle de la réflexion sociétale et de la pédagogie. Du théâtre de parade bourgeois, on entre à partir des années 1970 dans l’ère du théâtre réflexif et expérimental. Il ne s’agit plus que de distraire, mais aussi de débattre, d’instruire une nouvelle expérience du sensible et des nouvelles modalités du partage. 

Sauvegarder la radicalité


Si les nouveaux théâtres, au croisement des arts scéniques et de la performance, questionnent nos représentations, il le font aussi en incitant à repenser la ville ordonnée par le partage strict et immuable des fonctions qui la constituent. L’Arsenic est un bel exemple d’institution pour laquelle le fond et la forme convergent. L’édifice est en adéquation avec la mission critique du lieu. 
La proposition architecturale permet à l’Arsenic de s’institutionnaliser sans pour autant renoncer à son caractère radical et novateur. Développer sans ôter la marginalité constitutive : tel semble avoir été le cahier de charges inavoué de Pont12. En préservant son rapport précieux à la marge urbaine, l’Arsenic fait le choix explicite de ne pas quitter le registre qui est le sien. Quant au travail de Pont12, il constitue la meilleure preuve qu’il est possible de requalifier, d’étendre sans pour autant altérer le rapport d’un lieu à son environnement, et par extension à son histoire.

 

Notes

Le titre de l'article est tiré d'un texte de Bernard-Marie Koltès sur les lieux réels et imaginaires qui hantent ses créations.
1. Ecole professionnelle pour les métiers de l’industrie et de l’artisanat

 

Informations

Concours de mandat d’étude parallèles, procédure sélective 2008
Réalisation: juin 2011-mai 2013
Inauguration: septembre 2013 
Surface bâtie: 1900 m2
Surface plancher brut: 3984 m2
Volume bâti: 21 267 m3
Coût CFC 1-9: CHF 11 900 000
Maître d’ouvrage: Ville de Lausanne
Architecte: Pont12 architectes SA
Ingénieur civil: Kälin & Cuerel SA, Lausanne
Ingénieur acousticien: EcoAcoustique SA, Lausanne
Ingénieur scénographe: Artsceno Sàrl, Genève
Façades: BIFF SA Bureau d’ingénieurs fenêtres et façades SA, Lausanne

Étiquettes

Sur ce sujet