Su­ré­le­ver en lé­gè­reté

Date de publication
25-10-2023

Les architectes du bureau Lacroix+Chessex se sont illustrés dans la thématique des surélévations avec l’opération de la rue de Lausanne à Genève, achevée en 2020. Ce projet, issu d’un concours privé organisé en 2012, a été célébré dans plusieurs contextes comme exemplaire, car il faisait la démonstration que les contraintes imposées dans le cadre d’un tel exercice pouvaient mener à la création de typologies de logements audacieuses. Dans ce cas, l’immeuble existant pouvait supporter trois étages en béton armé, inscrits dans la continuité de son écriture à la tectonique pesante.

C’est peut-être ce succès qui a conduit les architectes à être invités à un concours sur esquisse (Konzeptvorschlag) par le groupe Pensimo pour surélever une barre de logements des années 1950 située à la rue Wendt, qui sera cette fois-ci traitée tout en légèreté. Ici, la structure du bâtiment existant imposait de travailler avec une masse réduite: les architectes vont proposer une surélévation très aérienne, en bois, qui fonctionne par contraste avec la façade maçonnée recouverte de crépi blanc. Bien que relativement banal, l’immeuble est caractérisé par son dernier étage en retrait. Celui-ci est coiffé d’un avant-toit fin qui court sur tout le long de la façade.

En quête d’un élément de contexte fournissant une analogie à laquelle s’accrocher, les architectes se laissent inspirer par le curieux petit chalet aux poutres apparentes qui marque l’entrée de la rue, et vont dès lors proposer une expression tectonique légère mais rigoureuse correspondant au matériau bois, liant structurellement l’intérieur et les balcons périphériques.

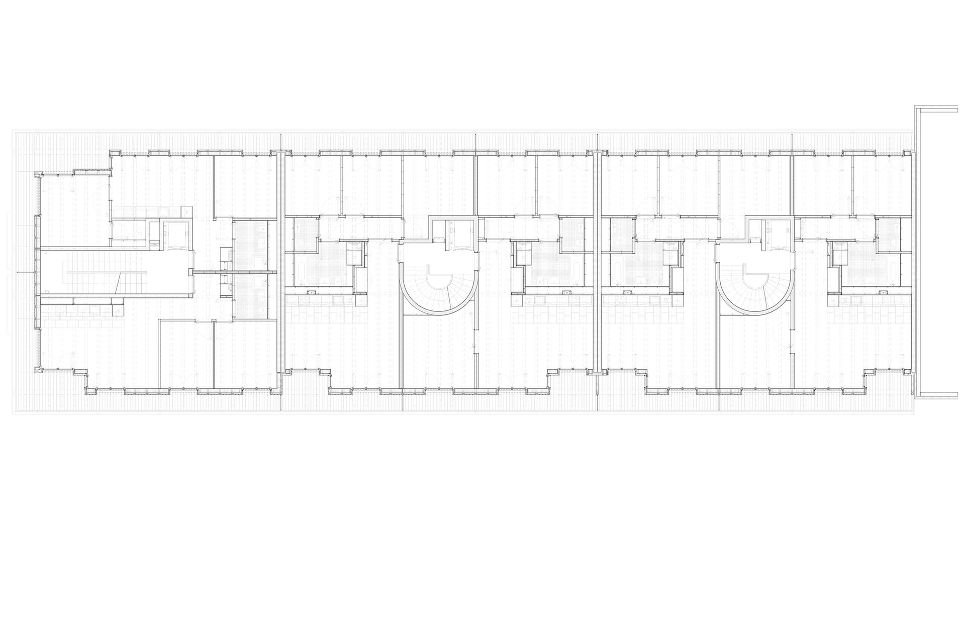
Le projet se décrit comme une stratification de plateaux posés sur un joint creux (exploité comme vide technique afin d’opérer le changement typologique) et recouverts de bardages en panneaux (épicéa prégrisé). Les dalles collaborantes sont composées de 12 cm de béton sur une dalle bois (coffrage perdu). Elles reposent sur de grandes poutres BLC qui prennent appui sur les murs de refend dans toute la longueur du bâtiment. Bien visibles dans les pignons, les quatre poutres renforcent l’axe de symétrie de l’immeuble, pratiquement insoupçonné jusque-là. À l’intérieur, la position des murs et des cloisons est entièrement déterminée par la trame structurelle (60 cm), une exigence qui, au dire de l’architecte Simon Chessex, aurait facilité la coordination entre le charpentier et les entreprises durant la mise en œuvre. Les typologies jour/nuit, traversantes ou ouvertes sur deux façades, reposent sur ce calepinage, aboutissant à des petites chambres de plan carré (10 m2), généreusement éclairées.

7 + 2: surélévation Avenue Wendt 29-31-33, Genève (GE)

 

Maîtrise d’ouvrage
Pensimo

 

Architecture
Lacroix+Chessex, Genève

 

Génie civil
Moser Ingénierie

 

Immeuble existant
1957

 

Concours sur esquisse
2018

 

Livraison surélévation
2023

 

Logements créés en surélévation
12 appartements, ca 1100 m2 SP

Magazine

Sur ce sujet