Su­ré­lé­va­tion ex­pé­ri­men­tale à Ve­vey

Date de publication
30-10-2023

Vevey est une petite ville dense, au territoire limité. Sitôt qu’on lève le nez, on remarque de nombreuses opérations de surélévations, là encore, plus ou moins réussies. Les architectes Rapin Saiz se sont illustrés dans cet exercice il y a quelques années avec une opération de surélévation réalisée en bois dans le quartier de la Valsainte, qui a permis de financer la surélévation d’un petit immeuble en s’inscrivant dans la continuité de l’existant. Le bureau est désormais engagé dans trois autres projets de surélévation du même type dans ce quartier ancien, avec l’intention de poursuivre au maximum le caractère du bâti environnant.

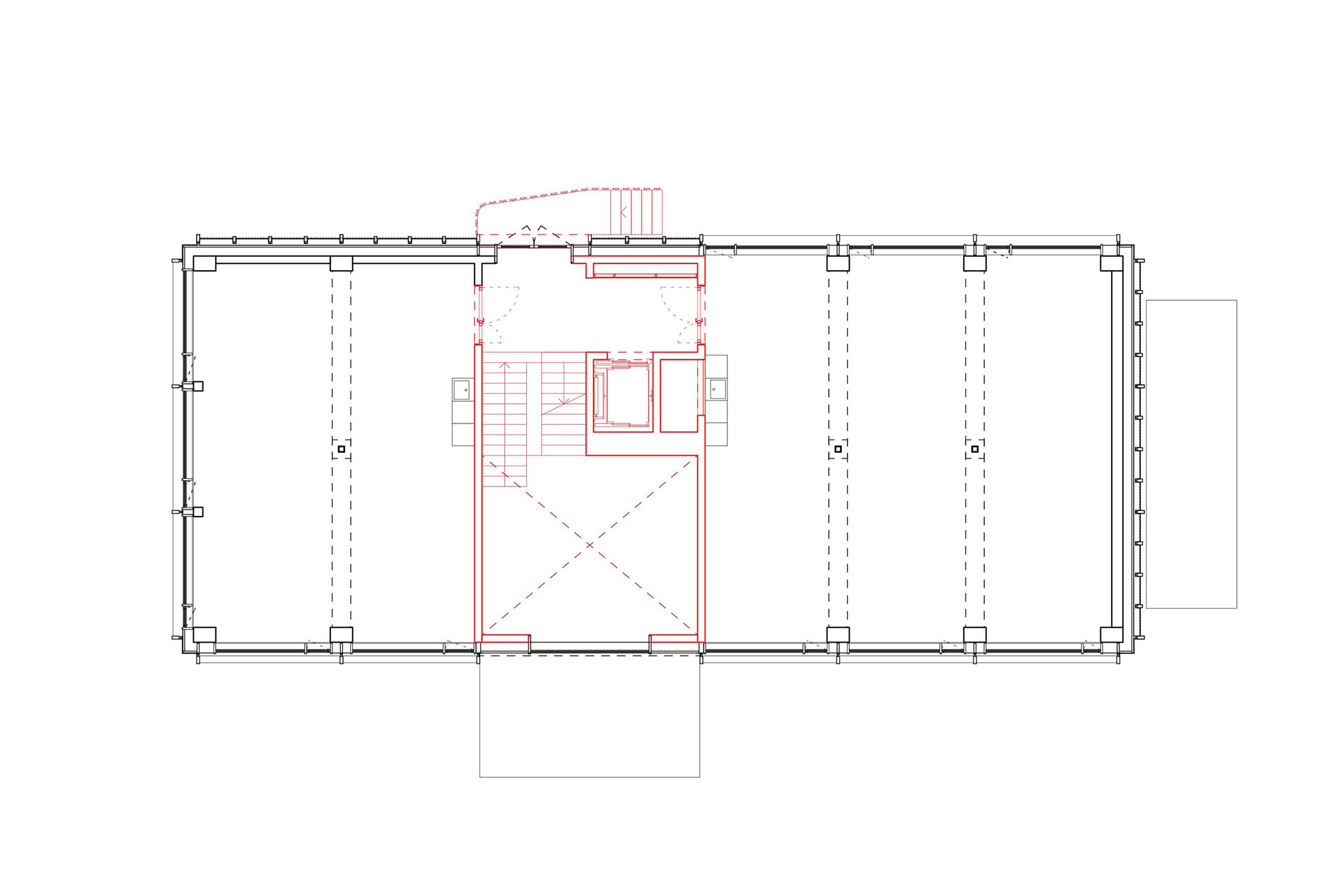
Non loin, dans le quartier industriel du nord de la gare, ils surélèvent de deux étages + un attique un petit immeuble industriel de deux étages. Celui-ci est en réalité l’annexe d’un bâtiment de sept étages (achevé en 1964) avec lequel il forme un ensemble. C’est ce caractère d’ensemble qui justifie la surélévation dans le cadre règlementaire – les étages surélevés devant être par la suite connectés au grand immeuble. Dans ce cas encore, il s’agit d’une opération opportune et opportuniste, liée à un contexte bien spécifique: la surélévation est proposée parce qu’elle permettrait de tester le système de façade qui serait appliqué par la suite pour rénover l’ensemble. Celui-ci accueille les locaux du propriétaire (une entreprise spécialisée dans la conception de produits dentaires), mais également l’atelier des architectes, qui ont donc pu élaborer un concept en se fiant à leurs propres observations en tant qu’usagers. Les nouvelles façades sont accrochées par l’extérieur puis les façades intérieures sont déposées, demi-plateau par demi-plateau, afin de ne pas interrompre le cycle de production de l’usine de produits dentaires.

En phase de conception, les questions relatives à l’empreinte carbone ont été soulevées et les architectes ont opté pour un revêtement léger en tôles d’aluminium brut pliées, considérant que son épaisseur était minime (feuilles de 1,5 mm) et que les éléments se prêteraient au réemploi. A contrario des estimations initiales, les ingénieurs préconisent des travaux en sous-œuvre pour répondre à la capacité de portance du sol. Il faut donc introduire une semelle périphérique autour du radier existant, puis découper la travée centrale afin d’insérer un nouveau radier ainsi que le noyau de circulation. On devine l’impact de ces décisions sur le budget. Malgré l’ambition de développer un concept de dalles allégées et contenant l’isolation acoustique, les architectes emploient un système de dalles pleines sur poteaux BA traditionnel dans les étages surélevés (sauf pour la dalle de l’attique, réalisée en bois).

Avec ce nouveau revêtement métallique, les architectes soignent une écriture évoquant aussi bien l’environnement industriel que les immeubles administratifs de l’après-guerre, tout en verticalité. Dans cet esprit, ils confirment la nouvelle orientation de l’adresse vers la chaussée de la Guinguette, en dotant le bâtiment d’une élégante marquise.

Vincent Rapin estime que généraliser les opérations de surélévation est vertueux, «mais à condition de les traiter au cas par cas et d’en faire un sujet de discussion culturelle, et non strictement règlementaire». Pour la Municipalité en place, la densification ne suffit pas à justifier les surélévations. Pour être poursuivis, ces projets doivent faire la démonstration d’une plus-value architecturale et matérielle – et pas seulement de quelques surfaces supplémentaires.

2 + 2.5: transformation et surélévation d’un bâtiment industriel, chaussée de la Guinguette 12, Vevey (VD)

 

Maîtrise d’ouvrage
Produits dentaires

 

Architecture
Rapin Saiz

 

Génie civil
Willi Ingénieurs

 

Bâtiment existant
1964

 

Livraison surélévation
2022

 

Surfaces de travail créées en surélévation
Deux plateaux d’étage et une salle de conférence en attique, 500 m2 SP

Magazine

Sur ce sujet