Space is only noise

Ni Beaubourg, ni Bilbao. Le nouveau Musée cantonal des Beaux-Arts (MCBA) de Lausanne conçu par l’Estudio Barozzi Veiga provoque un choc, celui de la matière, nue, sobre, sans prétention. Si le volume est austère, il s’efface au profit de l’espace donné aux œuvres, aux visiteurs, à la ville.

Date de publication
17-11-2019

«[…] au milieu, un plan gris, de lignes droites, de carrés, de pierre, du gris solide comme de la pierre.»
Jean-Luc Godard1

Silencieux comme un paysage de De Chirico, muet comme une nature morte de Morandi, le grand monolithe gris ne dit pas d’où il vient. Il n’a pas d’échelle et sa taille ne peut être appréhendée qu’une fois arrivé à proximité. Il évoque ces bâtiments conçus avec beaucoup d’attention par Max Vogt pour les CFF aux alentours des gares suisses2: des volumes, autonomes mais situés, que l’on reconnaît sans les regarder, que l’on s’approprie sans les connaître.

Les architectes du musée, Fabrizio Barozzi et Alberto Veiga, recherchent un juste milieu entre «l’autonomie de la forme» et « la spécificité du lieu»3. En écho, la critique doit nécessairement articuler la réception internationale du milieu des architectes à celle, plus prosaïque, des habitants du lieu. Avec ses façades presque aveugles, sa couleur gris béton, beaucoup s’offusquent de l’aspect du nouveau Musée des Beaux-Arts, qui fait effectivement une porte d’entrée plutôt morose pour les visiteurs arrivant de Genève ou de Paris.

La brique de parement, qui donne au musée sa raison d’être, devait être originellement plus rustique, oblongue et rugueuse. Il aurait pu s’agir de celle déployée par Peter Zumthor au musée Kolumba de Cologne. Or, la fameuse brique symbolise plus qu’elle ne réalise l’inscription dans le temps long. Coûteuse et difficile à entretenir, elle s’avère surtout très décevante en termes de durabilité: le pan ouest du musée de Cologne suce l’humidité comme un gâteau sec et la façade a dû être remise en état, moins de dix ans après la livraison du musée4. C’est en partie ce qui explique le choix, à Lausanne, d’une brique plus proche des standards industriels, une clinker de format traditionnel, presque banal. Mais que nous raconte-t-elle? Avec ses quatre nuances, la brique de Lausanne rend une surface silencieuse qui échappe à l’esthétique matérielle hyper-­haptique de la génération Zumthor, mais ne permet pas non plus d’inscrire le musée dans l’abstraction blanche des architectes japonais: elle conserve un grain, une légère texturation qui rend le bâtiment terrestre, comme s’il avait été extrait du site même puis taillé à l’intérieur5.

Povera Losanna

Les architectes catalan et italien sont assez discrets sur les références qu’ils convoquent. Le seul mouvement artistique qu’ils invoquent est l’Arte Povera, à l’occasion d’un travail réalisé pour la biennale d’architecture de Venise en 2016: une colonne de béton qui semblait venir de nulle part, mais pourtant appartenir à un territoire affectif connu de tous6.

Povera prend racine dans l’immédiat après-guerre, essentiellement au sud de l’Europe. L’un de ses précurseurs est le peintre catalan Antoni Tàpies (1923-2012). Ses toiles sont de terre, de sable, de cordes, de toile de jute. Elles traduisent un besoin de retour à des sensations authentiques, familières, après les destructions engendrées par les guerres d’abord, puis par l’avènement de la société de consommation, également destructrice avec ses quantités de matières nouvelles, froides, synthétiques. L’art de Tàpies serait l’une des premières formes de résistance à la société de consommation: «Tàpies prit le parti très net d’enfermer son art dans ce que Theodor Adorno appelle ‹l’immersion en soi-même› par la réflexion de l’intériorité qui permet d’atteindre un niveau supérieur de révélations, de brusque appréhension de la réalité.»7 Sa maison a été construite à Barcelone par Antonio Coderch, avec des matériaux pauvres, simples, entre deux murs de briques.

L’exposition inaugurale du MCBA, Atlas – cartographie du don, entre manifestement dans une exploration de la matière comme réponse au déferlement de choses immatérielles que nous expérimentons au quotidien: «À l’heure de la globalisation, écrit Bernard Fibicher, le commissaire de l’exposition, en réponse à notre monde virtuel qui vide la réalité de sa substance, [l’atlas] met en réseau des œuvres physiques, uniques, et donc, selon la définition de Walter Benjamin, ‹auratiques›.»8

Giuseppe Penone a été inscrit parmi les « artistes povera ». Parmi ses œuvres exposées au MCBA, la plus touchante est certainement Foglie di pietra (2014, ci-­dessus): quelques branches qui maintiennent, presque par miracle, un bloc de marbre. La fragilité extrême de cette œuvre9 nous aide à comprendre, à apprécier par les sens, la raison d’être du puissant monolithe qui la contient. Si le musée s’apparente à un immense coffre de terre cuite, c’est parce que les trésors qu’il renferme sont de papier, de tissu et de verre. Ce sont des toiles qui s’écaillent, des parchemins qui s’effritent, des constructions tellement fragiles qu’elles s’écrouleraient probablement au premier coup de vent.

L’art de créer l’aura

«Je ne saurais concevoir quelque chose de plus triste qu’un monument uniquement composé d’une surface sans ornement, lisse, nue, d’un matériel absorbant la lumière, sans absolument aucun détail et dont la décoration serait formée par une composition d’ombres, dessinées par des ombres plus sombres.»
Etienne-Louis Boullée10

L’«aura» qu’évoque le commissaire est plus que jamais devenue l’enjeu vital des musées contemporains. Depuis quelques années, on peut s’offusquer à juste titre de voir les musées suisses ressembler toujours plus à des coffres-forts, des cénotaphes ou des bunkers, selon les points de vue. C’est le cas de l’extension du Musée d’art de Bâle et de celle de Coire, également réalisée par Barozzi Veiga. Michael Gnehm, qui enseigne l’histoire de l’architecture muséale à Zurich et Neuchâtel, raconte: «Le monolithe se présente comme l’inversion de l’espace intérieur neutre, comme si la white box de la galerie avait été tournée vers l’extérieur, puis revêtue d’un matériau solidifiant: l’immuabilité du bloc archaïque répond à la disponibilité polyvalente des salles d’exposition.» Réaliste, le musée suisse est l’inverse de l’utopie transparente, perméable, «démocratique» de Beaubourg. Celle-ci a par ailleurs tourné court: il n’y a plus qu’une entrée au Centre Pompidou, bien gardée, et les cloisons amovibles de ses grands plateaux se sont figées11.

Il y a des explications techniques (protéger les œuvres de la lumière du sud, des effractions, et – dans le cas présent – du risque de déraillement des trains). La sécurité et la permanence l’emportent. Nul besoin de relire Benjamin (la thèse de la « non reproductibilité»), on comprend intuitivement que l’aura des objets d’art augmente en fonction de l’épaisseur des murs qui les confinent. Le sacré et le monumental en sont l’expression immuable. «L’extension de Coire, selon Michael Gnehm, semble sortir du sol, s’apparente à un cube fermé; c’est une sorte de Kaaba. Sa monumentalité sacrée est renforcée sur la façade par un motif classique: la façade avec des cassettes inversées, comme au Panthéon (motif que Boullée reprendra plus tard dans son projet de monument aux grands hommes). À Bâle, la monumentalité sacrée est aussi clairement perceptible: moins de l’extérieur que de l’intérieur, avec le grand escalier monumental dont le poids est très fortement ressenti par les visiteurs.» À Lausanne, la façade nord est rythmée de lames monumentales dont la verticalité dénote l’orientation spirituelle de l’édifice12. Le foyer, aux proportions d’une nef, confirme immédiatement ce sentiment. Dans l’espace baignant dans la lumière blanche s’élève un arbre, haut, frêle. C’est une sculpture monumentale de Penone, offerte par Alice Pauli, intitulée Luce e ombra.

Space Is Only Noise If You Can See13

Parce qu’ils voulaient à tout prix éviter un nouveau bâtiment iconique, les Lausannois ont créé l’icône de la modestie. Mais le manifeste en briques répond d’abord à un réflexe œdipien, ancré dans l’inconscient collectif lausannois: ici, ce n’est pas tant l’«effet Bilbao» qu’il fallait éviter, que l’«effet Rumine». En effet, le palais de Rumine (1895-1906), premier siège du musée, avec ses décorations pompeuses, ses pierres et ses marbres importés d’Italie, était en partie responsable du surnom que les Vaudois donnaient à Lausanne: la parvenue. Le nouveau musée, avec ses briques industrielles, c’est certain, n’aura pas ce goût provincial, qu’on avait fini par trouver tendre; il pêche au contraire par excès de rigueur.

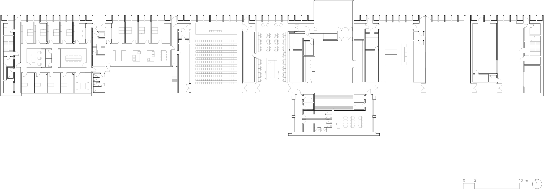
Si le jeune MCBA se moque sévèrement du palais de Rumine, son plan trahit le désir inconscient de ressembler à son géniteur. La distribution sur deux niveaux par le vestibule central, les pièces d’exposition disposées en enfilade sur un axe central, ont un air de famille, par un «effet du hasard»14. En réalité, le plan travaille un thème propre aux immeubles lausannois posés sur une courbe de niveau, souvent contraints par la pente et l’exiguïté. Comme le mur de soutènement et ses galeries qui lui font face, le musée s’apparente à une épaisseur habitée, un grand mur «poché» mis au service de la place.

Comme à Beaubourg, c’est la piazza qui fait l’animation, avec ses musiciens de rue. «L’acteur principal, c’est l’espace ouvert au public, la place» expliquent les architectes, qui décrivent cet espace comme une «rue destinée à la culture»15. Au bout de celle-ci se dégage une nouvelle perspective qui valorise la somptueuse façade de la gare CFF. Pour une fois, la petite ville obsédée par son paysage se regarde elle-même. Pour créer un tel espace public, il a fallu creuser dans la masse, sacrifier un morceau de patrimoine (l’ancienne halle CFF), obstruer des vues appréciées (sur le lac), comme l’a fait en son temps son aïeul le palais de Rumine, en prenant place sur un ancien couvent dominicain.

De tout temps, c’est ainsi que l’urbanité se construit. La plus grande qualité du projet, qui brille par sa modestie, est l’espace qu’il donne à la ville. Dans le grand monolithe silencieux, devant ses briques muettes, l’espace soupire, chuchote, résonne d’une clameur urbaine.

Notes

 

1. Jean-Luc Godard, Lettre à Freddy Buache à propos d’un court-métrage sur la ville de Lausanne, Éditions Demoures, 2001

 

2. Voir Ruedi Weidmann, Karl Holenstein, Max Vogt – Bauen für die Bahn 1957–1989, Park Books, 2010.

 

3. « […] we have always sought to produce architecture that strikes a balance between the specificity of the place and autonomy of form. » A Sentimental Monumentality, Biennale Venezia, 2016.

 

4. kolumba.de/aktuell.

 

5. «Our buildings are always physically and simultaneously ‹ingrained› as if they were born from the ground» entretien publié dans thetreemag.com.

 

6. «We seek an architecture that aspires to confer dignity, identity and a sense of belonging upon places of civic community life, the civitas, through an autonomous, primal and povera approach that can transcend the point in time at which it emerges and establish a temporal link between past, present and future.», A Sentimental Monumentality, Biennale Venezia, 2016.

 

7. Alexandre Cirici, Tàpies. Témoin du silence. Barcelone : Éditions Polígrafia, s.d., p. 131.

 

8. Bernard Fibicher, Atlas. Cartographie du don, catalogue de l’exposition, Musée cantonal des Beaux-Arts de Lausanne, 2019, p. 3.

 

9. En réalité une illusion: les branches de Foglie di Pietra sont coulées dans le bronze.

 

10. Etienne-Louis Boullée, «Monuments funéraires et cénotaphes», Essai sur l’art, [1796] 1953.

 

11. Sur le devenir du Centre Georges Pompidou, voir Alain Guiheux, «De Pompidou à Georges », De Beaubourg à Pompidou III – la machine (1977-2017), Paris, Éditions B2, 2017, pp. 97-125.

 

12. Voir Gilbert Durant, Les structures anthropologiques de l’imaginaire, Paris, Dunod, 2016, p. 119.

 

13. Space Is Only Noise If You Can See est le 8e morceau de l’album minimaliste et mélancolique de Nicolas Jaar, sorti en 2011.

 

14. «Par un effet du hasard, dit Bernard Fibicher – ce n’était peut-être pas prévu –, cette entrée ressemble terriblement à celle de l’ancien palais de Rumine, elle aussi placée au centre et dotée d’un escalier monumental divisant les espaces.» Philip Jodidio, Musée cantonal des Beaux-Arts de Lausanne. Architecture, Art, MCBA/Rizzoli Electa, p. 163.

 

15. Idem, p. 157.

Musée cantonal des Beaux-Arts, Lausanne

Concours : 2011, réalisation : 2016-2019

 

Maître d’ouvrage: Direction générale des immeubles et du patrimoine DGIP – État de Vaud

 

Architecte: Estudio Barozzi Veiga, Barcelone

 

Architecte associé local: Fruehauf Henry & ­Viladoms, Lausanne

 

Ingénieur civil: Ingéni, Lausanne

 

Architecte paysagiste: Hüsler & associés, Lausanne

 

Coût total des travaux CFC 1-9 : CHF 83 467 926 TTC

Magazine

Sur ce sujet