Ré­no­ver et flexi­bi­li­ser: l’église Geiss­berg à Lan­gen­thal (BE)

Réalisée par le bureau zurichois Hull Inoue Radlinsky, la rénovation de l’église de Geissberg, à Langenthal, est un cas typique du défi qui attend la Suisse au cours de la prochaine décennie: comment restaurer au mieux les édifices ecclésiastiques, tout en leur offrant une flexibilité qui leur permet d’accueillir de nouveaux usages?

Date de publication
19-01-2022

Édifiée au 17e siècle au sommet d’une colline, l’église Geissberg a été profondément transformée à plusieurs reprises pour correspondre aux besoins des époques successives. Dans les années 1950, un remaniement plus radical que les précédents fait disparaître toutes les décorations. Ce dépouillement, les architectes zurichoises de Hull Inoue Radlinsky ont cherché à le conserver dans la dernière rénovation, en travaillant non par ornements, mais par un calepinage de lignes de bois. Ce travail, précis mais humble, rend hommage à la pureté du volume tout en distinguant l’intervention de l’existant.

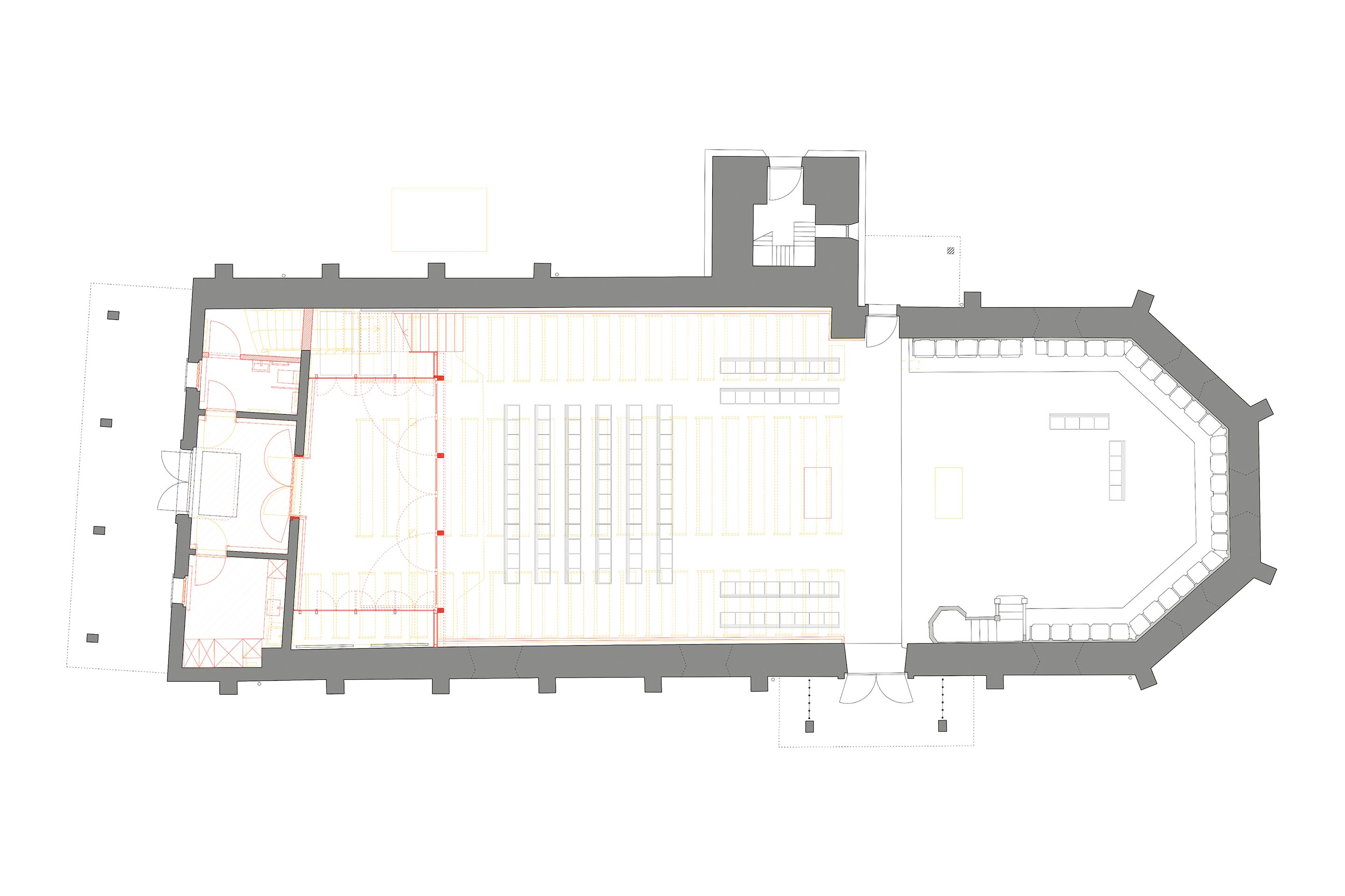
Le bâtiment n’a pas changé d’apparence: il a été délesté des éléments de mobilier fixes qui formataient l’espace à un seul type d’usage et accueille aujourd’hui de nouveaux éléments structurels et programmatiques. Ses murs orthogonaux sont ceints, jusqu’à hauteur de tête, de boiseries claires et filigranes dont la couleur et le rythme évoquent les tuyaux de l’ancien orgue, déplacé en tribune. Elles répondent aussi aux stalles du chœur et à la chaire, plus massives, qui entourent l’espace libéré de son autel de pierre. Ces boiseries permettent non seulement d’intégrer de nouvelles techniques, comme les dispositifs électriques, mais elles protègent également les murs existants des chocs. De leur côté, les anciens bancs, lourds éléments parallèles qui ne permettaient qu’un type de réunion – à savoir une assemblée faisant dos à l’orgue et face à l’autel – ont été enlevés et remplacés par de fins bancs mobiles en bois. Ces éléments peuvent aisément être déplacés par deux personnes et permettent ainsi différents scénarios d’utilisation de la nef.

Enfin, le lieu a subi quelques interventions précises qui permettent de nouveaux usages: un lieu de réunion a notamment été délimité sous la tribune. Il peut être séparé physiquement et acoustiquement de l’espace sacré par le biais de portes vitrées pliantes, afin d’autoriser des usages profanes, tels que des concerts, des apéritifs et, tout de même, des cultes.

Église de Geissberg, Langenthal (BE)

 

Maître d’ouvrage: Paroisse réformée de Langenthal

 

Architecture: Hull Inoue Radlinsky Architekten

 

Mobilier: Schindlersalmerón

 

Procédure: Planerwahlverfahren, 2017, 1er rang

 

Réalisation: 2017-2020

Sur ce sujet