Ni vu ni connu: la face ca­chée de Bril­lant­mont

Si à l’ouest de Lausanne des «géants» sortent de terre sur le site de l’EPFL¹, à l’est de la ville un projet demeure enfoui. Livrée en juillet 2012, la Salle Françoise Frei-Huguenin sports et culture ne signe sa présence au cœur du campus de Brillantmont que par les quatre lanterneaux discrètement placés tout autour du terrain de sport extérieur d’origine. Une architecture introvertie qui invite à un voyage d’or et de lumière à seulement quelques pieds sous terre

Date de publication
16-07-2013
Revision
23-10-2015

Fasciné par la voûte stellaire et nourri de transcendance, l’homme se tourne instinctivement vers le ciel. Il en analyse les moindres recoins. Ce même homme s’avère pourtant moins entreprenant lorsqu’il s’agit d’étudier ce qu’il a sous les pieds. L’espace chtonien est-il un milieu si hostile ? Si, à bien des égards, l’utilisation du sous-sol demeure souvent limitée et opaque à toute forme d’investigation autre qu’imaginaire, elle est parfois une réponse pertinente à la densification d’une parcelle déjà bien garnie et riche de mémoire. Focus sur la face cachée de Brillantmont.

Un passé conséquent


Si une jeune écolière² vous avait narré ses souvenirs de classe lorsque l’école internationale de Brillantmont – autrefois appelée « Pensionnat Heubi » – fut créée en 1882, elle vous aurait probablement parlé du somptueux château moyenâgeux de Lutry. Aucun souvenir de l’actuel établissement, sis aux numéros 12, 14 et 16 de l’avenue de Secrétan à Lausanne, n’aurait été évoqué ; à cette époque, rien de Brillantmont n’existait à l’adresse susmentionnée. En revanche, l’ex-propriétaire de ce lopin de terre de plus de 12 000m² se serait peut-être chargé de vous décrire la beauté champêtre des vignobles qui parsemaient, jadis, les flancs de cette colline en surplomb du Léman. 
Quelques années plus tard, à cette même évocation de souvenirs, une autre pensionnaire vous aurait sans doute livré une description toute différente de Brillantmont. Point de bâtisse lutryenne à mentionner. Point de terres viticoles non plus. Si le pensionnat a bel et bien pris possession de la parcelle située le long de l’avenue de Secrétan, les pieds de vignes ont quant à eux totalement disparu pour laisser progressivement place à la construction de trois édifices – désormais inscrits à l’inventaire des monuments du canton de Vaud – de 1896 à 1910 (image). Trois petites villas familiales sont également venues se greffer au sud de la propriété, finalisant – faute de place supplémentaire – le développement du campus en 1927. A cette date, la jeune élève vous aurait sûrement fait l’éloge de l’implantation exceptionnelle de Brillantmont à deux pas du parc de Mon-Repos. Peut-être vous aurait-elle fait part de l’imposant cèdre planté à l’ouest de la parcelle et de la richesse des bâtiments d’aspect Heimatstil exhibant en façade tous les attributs du style néogothique qui font aujourd’hui l’identité de la prestigieuse institution. 
Pourtant, si le campus a su préserver l’intégrité de cette face visible et se contenter de la surface de plancher offerte par les édifices depuis leur construction, le développement d’activités extrascolaires – sportives, artistiques et culturelles – a récemment révélé le besoin accru de disposer d’une nouvelle salle polyvalente. En réponse à cette commande privée et directe, il s’agissait donc pour les architectes du bureau lausannois Frei Rezakhanlou de réaliser un édifice ancré dans son époque tout en conservant la mémoire et l’identité du lieu, si chères à Brillantmont. L’humilité et le bon sens des architectes ont primé. Une sage décision qui a davantage porté sur des stratégies de manipulation des données du site que sur un choix de formes et de compositions époustouflantes.

Architecture sous terre, architecture soumise ?


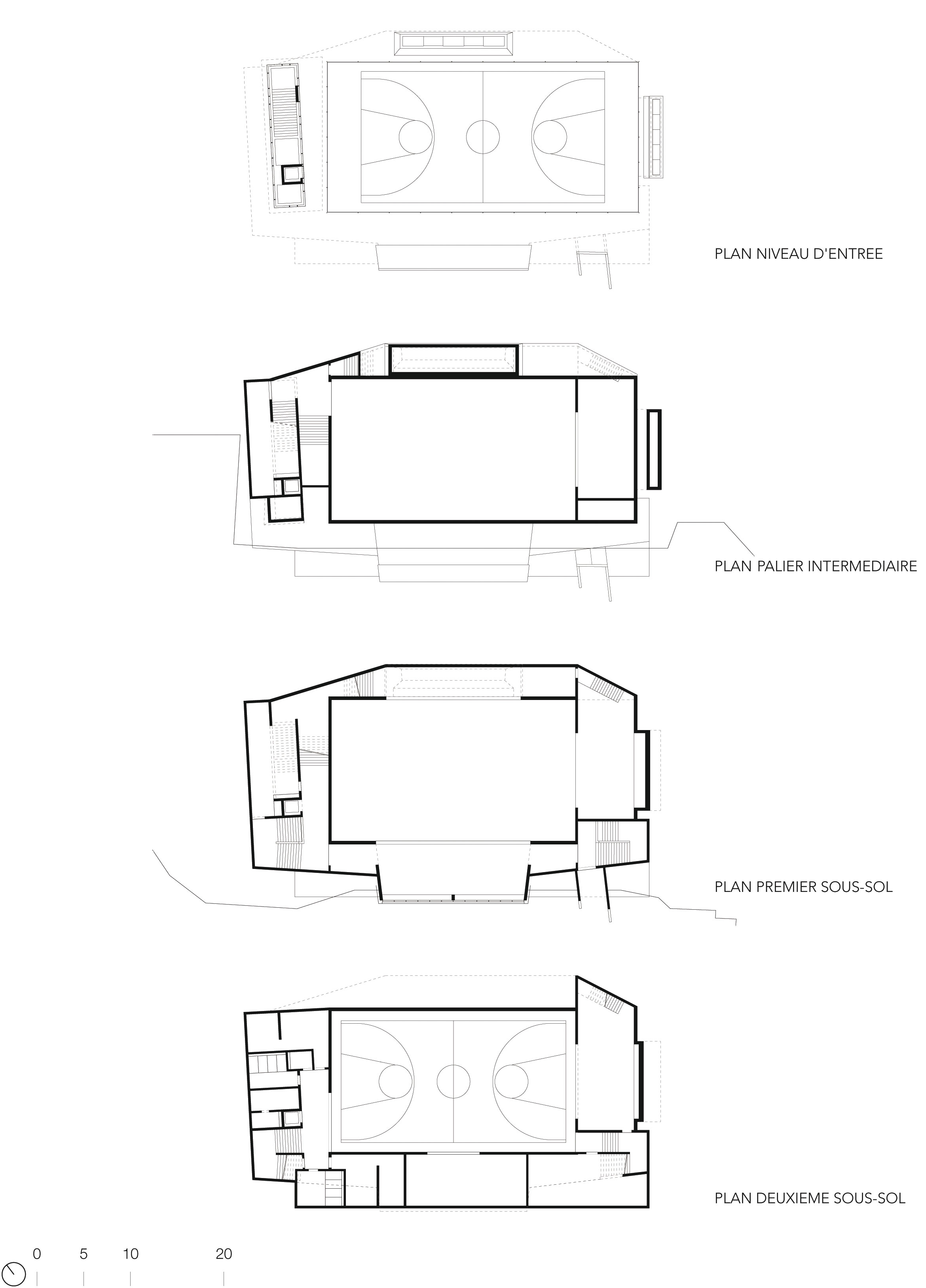
Après 14 mois de travaux et un an de mise en service, presque rien ne transparait du nouvel équipement implanté sur le site de Brillantmont. Seuls quatre timides édicules vitrés pointent le bout de leur nez. Enterré à dix mètres sous terre, le terrain de sport se superpose à l’aplomb de son homologue extérieur qui lui sert désormais de couvercle protecteur. 
En choisissant l’enterrement, les architectes pouvaient-ils s’affranchir de toutes les contraintes réglementaires qu’aurait occasionné une construction hors sol ? Pas vraiment. Si les propos de Jacques Lucan, « creuser n’est pas construire, n’est pas fabriquer une pièce ou fabriquer un espace. Creuser est dégager un vide dont la forme peut être soit fondamentalement indifférente, soit le résultat de contraintes contextuelles ou programmatiques assumées de façon littérale »3, dépeignent une vision peu glorifiante de l’architecture souterraine, ils mettent cependant en exergue une composante essentielle de la salle polyvalente de Brillantmont : son absence volontaire de forme. Un constat pleinement assumé par l’architecte Eric Frei qui présente chaque partie du projet, telle une « soumission » à une donnée contextuelle ou programmatique imposée. En effet, pas de recherche spécifique de forme à revendiquer. « Ici, les constructions existantes ont limité l’excavation, et là, ce sont les racines du vieux cèdre », explique-t-il.
Au-dessus comme en-dessous, l’architecture se résume-t-elle à additionner contrainte sur contrainte ? En admettant que la « gastronomie commence quand la nourriture vise autre chose que la satiété »4, est-il possible de convenir que l’architecture débute quand l’édification vise autre chose que la résolution de contraintes ? Pour les architectes Frei Rezakhanlou, résolument oui. Révéler les marques temporelles – paysagères et architecturales –qui constituent les fidèles remémorateurs du site dans lequel le projet s’immisce, leur a permis de dépasser la fastidieuse addition de « soumissions ». En effet, si la géométrie d’ensemble respecte parfaitement les obligations contextuelles, elle les flatte également par l’intermédiaire des quatre oculi disposés tout autour du grand vide rectangulaire central. Ainsi, du dedans, chacun des petits puits vitrés invite le visiteur à scruter successivement les éléments qui auraient été décrits du dehors par les jeunes écolières d’antan ; branches du vieux cèdre, azur du ciel, ornements des bâtiments Heimatstil ou encore les petites villas familiales.
Outre la démarche dialectique et leur manière d’abolir le sentiment d’enfouissement, ces ouvertures sur l’extérieur ont également un intérêt hautement sécuritaire. En effet, s’il n’existe pas de réglementation spécifique pour les constructions en sous-sol, les prescriptions de protection incendie en vigueur sont bien plus contraignantes pour un bâtiment enterré que pour un bâtiment en surface. Les lanterneaux, dont les ouvertures ont été judicieusement positionnées, assurent l’accès, l’évacuation sécurisée, le désenfumage et la ventilation. 

Un voyage d’or et de lumière dans une architecture polyvalente


Outre les nombreuses courbettes en faveur du contexte historique et la résolution des contraintes sécuritaires, garantir le bien-être des usagers n’a pas échappé au bureau lausannois. Pourtant, animer un monde largement assimilé à celui des ténèbres et des sépultures peut s’avérer un véritable casse-tête. Pour y parvenir, les architectes ont bien saisi l’importance de la lumière naturelle. Si elle est en surface une composante inhérente à l’architecture, elle devient en milieu souterrain l’élément vital de l’espace. La déduction est logique : l’édifice n’a pas d’autre choix que de se tourner vers le ciel pour y puiser son éclairement. 
Fidèles au poste, les quatre lanterneaux permettent d’assurer un lien permanent avec le dehors, de sorte que le contact avec la lumière du jour ne soit jamais rompu. A l’ouest, le plus grand de cette famille d’objets miniatures renferme l’accès au nouvel équipement. 
La lumière endosse son rôle de guide dès la première volée de marches inaugurant la descente sous terre (image). De plus en plus ténue, elle gagne en magie et crée des staccati de clair-obscur évoluant au fil des heures sur les parois de béton de type II qui structurent l’ensemble de l’espace. Par souci d’économie, il s’agit d’un béton d’exécution standard coffré avec des banches métalliques. Laissé apparent, sans dessin particulier ni calepinage des joints, sa sobriété sublime l’élégance de cet espace introverti. Fin de la volée, premier arrêt.
Regarder par la fenêtre du palier intermédiaire permet de découvrir la salle de sport de 15 m x 26 m située en contrebas (image). En face, un écran blanc et opaque se détache de la paroi en béton. Deux travées latérales diffusent indirectement des halos lumineux dans le terrain qu’elles surplombent de quelques mètres. A gauche de la fenêtre, un petit escalier aboutit à l’une d’entre elles ; un espace laissé vacant dans lequel s’engouffre la lumière zénithale et où s’organisent spontanément des tournois de tennis de table et autres activités extrascolaires. Une chape minérale, dont la surface a été poncée, recouvre le sol. Il est possible d’y observer, lorsque le soleil se montre coopérant, des particules colorées. Fortement appréciées par les architectes, les teintes olive et ocre se retrouvent sur les façades des lanterneaux, les éléments de menuiserie, les portes et les mains courantes.
En face, un large bandeau vitré dégage une vue sur la seconde travée ; un espace scindé en son centre par une paroi coulissante abrite deux petites salles de classe (image). Grâce à la série de fenêtres ouvertes sur les villas côté sud, les salles bénéficient d’un éclairage naturel optimal. En ce point du projet, le volume n’est pas enterré mais vient s’ancrer à flanc de colline, permettant ainsi de dégager une évacuation conforme aux normes sécuritaires (image). Si cette mise en scène est habile et favorise sans conteste la diffusion de la lumière, les ouvertures toute hauteur de la salle de cours en surplomb du terrain de sport semblent en revanche perturber la concentration de certains élèves. Les architectes étaient-ils clairvoyants ? Sans doute, puisque des rideaux coulissants permettent d’occulter en une simple pression de l’interrupteur toutes ou chacune des trois travées lors de l’occupation temporaire du terrain.
Lorsque le sport cède sa place à la représentation d’une pièce de théâtre ou d’un discours de promotion, les rideaux se ferment, les tracés rectilignes du terrain disparaissent sous un sol d’apparat et, tandis que les spectateurs se hâtent dans le vide central, le mystère de l’écran blanc visible depuis là-haut se lève (image). Derrière cet écran opaque qui se divise en de multiples panneaux coulissants, une scène s’ouvre. Au fond, sur la paroi de béton, une source de lumière incertaine se dévoile. Le quatrième lanterneau est démasqué (image).
Pour garantir l’apport subtil de lumière dans les espaces chichement éclairés, les architectes ont eu recours au savoir ancestral de l’écrivain Tanizaki. Si le doré des rideaux participe largement à l’immersion dans l’univers du spectacle, il contribue également « par l’utilisation judicieuse de ses propriétés réfléchissantes, à donner plus de lumière »5.  
Même si la lumière met en valeur l’essentiel des espaces excavés, l’exception confirme la règle. Plongée dans la pénombre, une salle de musique aux géométries décousues a été créée dans l’espace résiduel dégagé par le massif des escaliers principaux, juste au-dessus des vestiaires situés au deuxième sous-sol. Un lieu improbable qui confirme à lui seul l’enfouissement du projet quelques pieds sous terre.

Mise en garde


Si la Salle Françoise Frei-Huguenin sports et culture demeure un projet de l’ombre, qui a su s’intégrer sur le site de l’école internationale de Brillantmont d’une manière particulièrement respectueuse, elle supplante pourtant les compositions naturelles des 8000 m3 de terrain excavé. Qu’il s’élève vers le ciel ou qu’il s’enfonce dans les profondeurs de la terre «  un bâtiment vient toujours s’ajouter à la terre – il n’est pas la terre»6.  Néanmoins, face à la densification de la ville existante, la conquête du territoire souterrain n’est pas à exclure. Cependant, si ces projets font profil bas en apparence, ils demeurent loin d’être « bon marché ». La cave d’aujourd’hui sera-t-elle le « bel étage » de demain ?

 

Notes

1 Lire articles pp. 12, 18 et 21
2 Jusqu’en 1970, le pensionnat n’était ouvert qu’aux filles.
3 Jacques Lucan, La généalogie du poché, Matières, janvier 2009, p. 41
4 André Comte-Sponville, Le sexe ni la mort, Albin Michel, Paris, 2012
5 Junichirò Tanizaki, Eloge de l’ombre, ed. Verdier, 2011 
6 Betsky Aaron, Gauthier Patricia, Lignes d’horizon : l’architecture et son site, ed. Thames&Hudson, collection Essais, 2002, p. 2  InformationsMaître d’ouvrage : Brillantmont Françoise Frei SA
Maître d’œuvre / direction des travaux : Frei Rezakhanlou SA
Date d’exécution : mars 2011 à juillet 2012
Surface de plancher : 1576 m2
Volume bâti : 8000 m3 (SIA 416) 

Étiquettes

Sur ce sujet