Luxueuse sim­pli­cité

Au sein du nouveau quartier de Lysbüchel Süd à Bâle, atelier Neume réalise des logements modestes sans se refuser une recherche de nouvelle esthétique pour la domesticité.

Date de publication
31-01-2023

Le site de Lysbüchel se trouve au nord du quartier St. Johann, dans la ville de Bâle, à proximité de la frontière française. Pendant longtemps, la zone a été vouée à une activité ouvrière puis commerciale. Conscients du besoin toujours croissant en logements, la Fondation Habitat et le Canton de Bâle-Ville acquièrent la parcelle en 2013 afin de transformer le lieu en un quartier résidentiel. De cette négociation naît le projet Lysbüchel Süd. Ils divisent le lot en 15 parcelles, dont douze sont redistribuées à des coopératives et communautés de construction (Baugemeinschaften).

L’origine de Dirty Harry ne peut se dissocier de ce contexte. En effet, le projet est l’une des pièces qui composent cet ensemble majeur de douze bâtiments juxtaposés autour d’une cour commune. Le plan de quartier fait ainsi référence au tissu urbain avoisinant, composé d’ensembles similaires. Cette distribution imite la diversité du quartier St. Johann, dont les maisons ont été réalisées aux cours des 19e et 20e siècles. Le résultat est un ensemble haut en couleurs et matérialités diverses qui se lie par mimétisme à son contexte.

La coopérative Point Commun a été fondée par un groupe d’amis, dont les architectes d’atelier Neume font partie. L’opération de logements qui naît de cette initiative, appelée Dirty Harry, est donc l’un de ces cas intéressants où l’architecte est également maître d’ouvrage. Les cohabitants ont postulé pour obtenir une parcelle au sein du quartier avec deux idées simples, qui ont suffi pour convaincre la Ville : construire en terre et partager une cuisine.

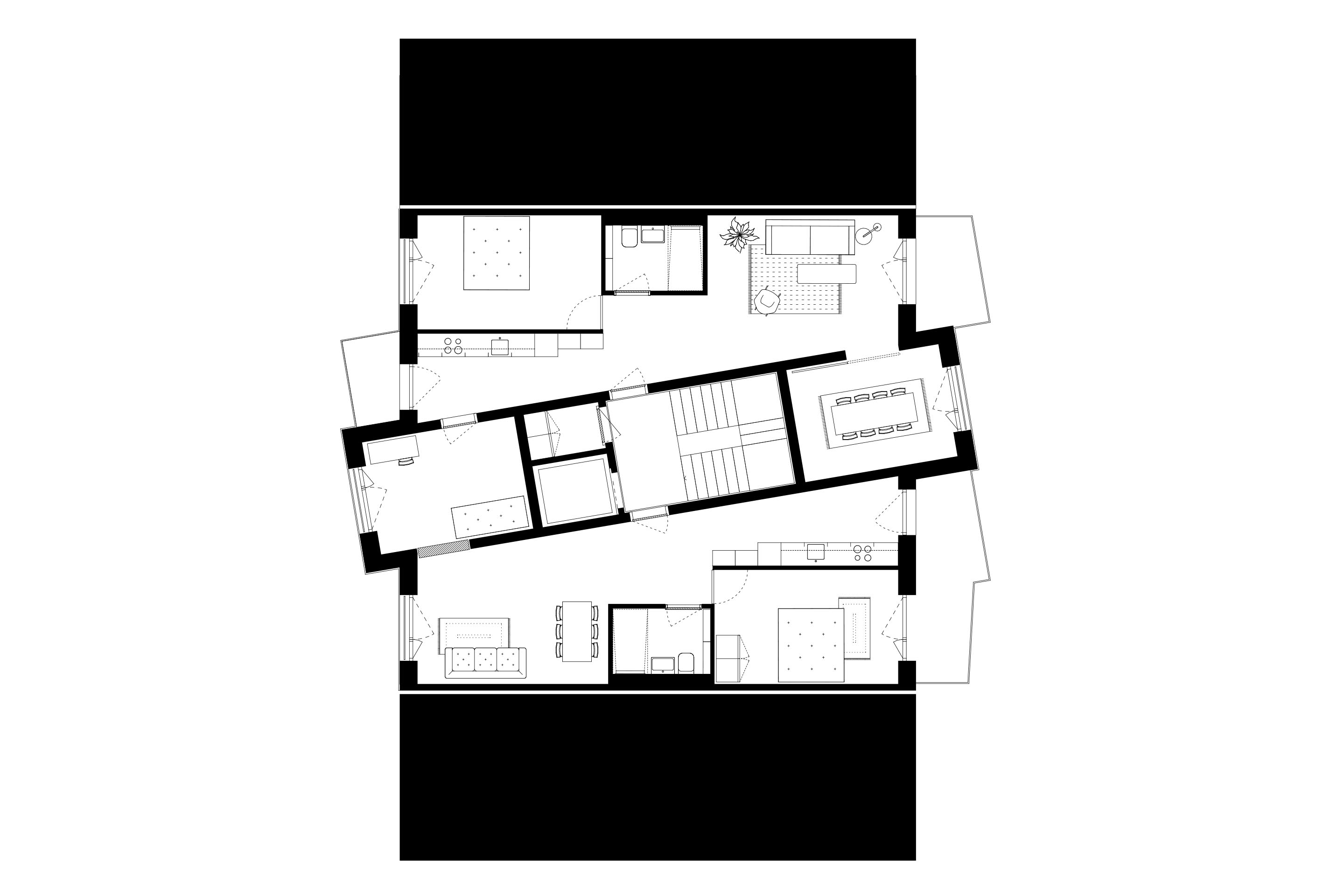
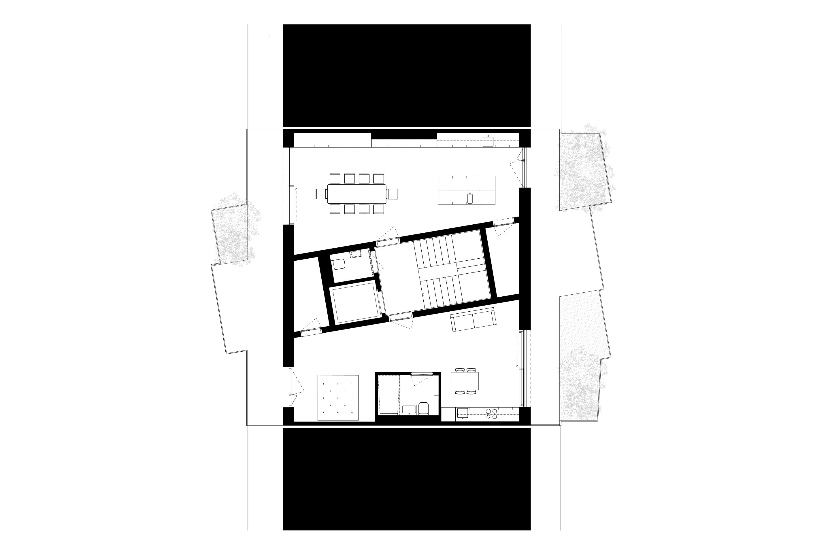
Typologies diagonales et versatiles

La réalisation s’élève sur cinq étages de logements et deux niveaux en attique. Le bâtiment est conçu comme une communauté, dans laquelle tous les habitants ont leur propre appartement, mais partagent aussi des espaces communs situés en attique, ainsi qu’une buanderie en lien direct avec le jardin communautaire au rez-de-chaussée.

Le plan d’étage est réglé par la trame des murs porteurs séparant le volume en deux appartements. Ces murs ne sont pas perpendiculaires, mais en diagonale par rapport à la façade, ce qui dynamise l’espace traversant tout en valorisant la fluidité du plan. À cette hiérarchie spatiale s’ajoute une recherche de flexibilité hautement appréciée. L’une des pièces autour du noyau possède deux ouvertures, d’un côté une porte battante ou coulissante donnant sur le séjour et de l’autre une ouverture murale donnant sur l’appartement voisin. Cette dernière est comblée par un panneau en bois isolé acoustiquement pouvant être enlevé. Ainsi, les logements pourront être convertis en 2.5 pièces, 3.5 ou 4.5, selon les besoins changeants au fil des années.

La vie collective prend place aux étages supérieurs de la construction. Au 6e et dernier étage se trouve une chambre pour invités, une terrasse commune, ainsi qu’une salle de bain accessibles à tous les résidents. Au 5e, les habitants profitent d’une deuxième terrasse ainsi que d’une cuisine collective professionnelle, le cœur de cette maison de ville. Ils peuvent également y rencontrer des personnes invitées, locataires de la chambre d’hôte. La cuisine devient donc un véritable dispositif social alors que les pièces communes viennent rajouter de la générosité dans un contexte de vie collective: il est possible de choisir quand et comment on souhaite s’exposer à la collectivité.

Une esthétique de la domesticité

La façade est traitée comme conséquence directe du plan. La diagonale qui la transperce dote les deux côtés d’un caractère spécifique, dynamisant le volume. Elle est aussi une référence subtile au quartier. Dirty Harry accepte le contexte urbain qui lui est imposé et fait allusion à ses origines industrielles, mais aussi aux différents immeubles résidentiels de la région par l’utilisation de la brique apparente et l’intégration des stores en lamelles de bois. Toutefois, il s’agit ici de briques en terre compressée non porteuses, choisies pour leur aptitude à réguler la température intérieure. La façade autoportante est stabilisée contre les forces horizontales par des poteaux métalliques.

Malgré une vérité constructive altérée, l’influence de l’esthétique brutaliste est puissante à l’intérieur. Or, elle dépasse la tendance actuelle à se contenter d’une fascination pour le béton dénudé et incline à une relecture de ce mouvement. La matérialisation de la façade est visible à l’intérieur, tout comme la structure en béton qui reste apparente; les éléments non porteurs sont construits en bois aggloméré plaqué en bouleau. Dirty Harry se réfère plutôt à l’esthétique «as found»1 de la Soho House, projet d’Alison et Peter Smithson. L’ouvrage anglais est un témoin de leur recherche; non seulement exposer le béton dans son état brut, mais aussi tous les matériaux de construction, la structure ainsi que ses installations.2

Si la bâtisse baloise s’assimile à la démarche pragmatique des Smithson, atelier Neume assume un penchant pour l’élégance. Certes, les architectes affirment rejeter toute couverture de matériau pour des raisons économiques et renoncer en conséquence à certaines finitions comme les plinthes. Mais ils n’excluent pas pour autant les détails raffinés. Ainsi, les parois en bois aggloméré sont plaquées de bouleau à la texture uniforme. Les coffrages du béton ont été dessinés afin de créer différentes compositions murales et plafonnières. Les portes, véritables pièces murales toute hauteur, privilégient la fluidité de l’espace. Le projet s’inscrit de ce fait dans un minimalisme qui confère à l’espace toute son originalité; une recherche qui, au travers de choix constructifs pragmatiques, esquisse une esthétique sobre pour la domesticité.

Dirty Harry, logements en coopérative, Bâle (BS)

 

Maître d’ouvrage
Point commun, Bâle

 

Architecture
Neume, Bâle

 

Génie civil
Berchtold Tosoni, Sissach et Sperisen Ingenieure, Breitenbach

 

Direction de travaux
Knecht Bauunternehmung, Münchenstein

 

Procédure
Mandat direct

 

Réalisation
2020-2022

 

Surface
1290 m2

 

Prix
3.79 mio CHF

Notes

 

1 «The ‹as found› was more than an object or an image but also an attitude where art was created in the process of selection rather than design. It was a new way of seeing found poetic in the simple and the ordinary», propos cité dans M. Christine Boyer, Not Quite Architecture, The MIT Press, 2017, p. 87

 

2 Max Risselada et Dirk van den Heuvel, Alison and Peter Smithson – from the House of the Future to a house of today, 010 Publishers, 2004, p. 136

Magazine

Sur ce sujet