Loyers abor­dables et qua­lité de vie : la so­lu­tion mo­du­laire

La première étape de la rénovation du lotissement situé sur le Hirtenweg, à Riehen (BS), est une réussite: les résidentes et ­résidents du premier bâtiment démoli ont été relogés en mars 2021 dans le premier des nouveaux bâtiments construits. Cette offre doit donc être financièrement abordable pour eux, tandis que le projet doit aussi être rentable pour le maître d’ouvrage. Comment y parvenir ?

Date de publication
31-05-2021

En réaction à l’initiative constitutionnelle « Droit au logement », le Canton de Bâle-Ville a décidé en 2019 de mettre sur pied un programme de construction de logements appelé « Wohnbauprogramm 1000+ » afin de créer d’urgence des logements supplémentaires à prix modérés pour répondre à une forte demande. D’ici 2035, le Canton souhaite ainsi construire plus de 1000 nouveaux logements et les proposer à des loyers abordables. Les loyers devraient être 15 à 20 % inférieurs à ceux du marché pour un logement comparable. Pour y parvenir, les projets doivent être optimisés et bien conçus. Ils doivent s’appuyer sur des plans de logements compacts et les loyers doivent être indexés sur les coûts de construction. Ce principe de définition des loyers en fonction des coûts supportés par le bailleur – et non des prix du marché – s’applique par exemple depuis 2018 dans la zone résidentielle Maiengasse (Esch Sintzel Architekten, voir TRACÉS 1-2/2019).

Un concours remporté grâce à une réalisation par étapes

En 2018, le promoteur public, Immobilien Basel-Stadt, lançait un concours portant sur les études et la réalisation de logements à prix modérés en vue de remplacer les constructions situées sur le Hirtenweg. Le lotissement jouxte à l’ouest le cimetière am Hörnli, à proximité immédiate de la commune allemande de Grenzach-Wyhlen, séparée du Rhin par une étroite zone de construction récente située côté allemand, par la voie ferrée et la route de liaison.

Cinq équipes, composées d’une entreprise totale, de bureaux d’architectes et d’architectes du paysage ainsi que d’ingénieurs spécialisés, se sont mises en quête d’une stratégie optimale pour rénover le lotissement à peu de frais et le densifier, le potentiel de la parcelle n’ayant pas encore été totalement exploité par les cinq bâtiments existants. Les équipes ont ainsi proposé des concepts urbanistiques plus ou moins rigides afin de transformer durablement et complètement la structure urbaine organisée en courtes rangées de bâtiments.

C’est le projet élaboré par Harry Gugger Studio et Erne Holzbau qui est sorti du lot, non seulement sur le plan économique, mais aussi parce qu’il a su prendre en compte les arbres et bâtiments déjà présents. L’implantation urbaine des trois nouvelles constructions découle des distances à la limite, de la conservation des groupes d’arbres caractéristiques, de l’optimisation de l’orientation des logements, de typologies rationnelles, de l’utilisation des sous-sols existants et d’une réalisation phasée. Le projet retenu est le seul à proposer la mise en place d’une opération tiroir permettant de maintenir sur place toutes les personnes résidentes. L’idée est d’occuper l’espace libre existant avec un premier nouveau bâtiment plus petit, pour permettre aux personnes qui occupent le bâtiment à démolir d’y emménager. Une seconde construction est érigée sur l’emplacement dégagé. Plus grande que la précédente, elle est à son tour destinée à accueillir les habitants concernés par l’étape de démolition suivante. Le projet proposé prévoit donc de remplacer deux bâtiments existants par de nouvelles constructions plus grandes. Le second bâtiment sera achevé à l’automne 2021 et le troisième en 2022. Avec leurs sous-sols partiels, les bâtiments sont agencés pour coïncider avec les sous-sols existants afin de réduire le volume d’excavation, les frais de transport et, en conséquence, les émissions de CO2. La rangée de trois bâtiments située le plus à l’est était exclue du concours, car elle se trouvait dans un meilleur état. Elle est actuellement rénovée par d’autres architectes.

Avantages de la construction modulaire en bois

Étant donné que le propriétaire devait mettre les logements en location à des prix modérés, il a fallu limiter considérablement les coûts des nouveaux bâtiments de remplacement. La construction modulaire en bois proposée par Harry Gugger Studio et Erne Holzbau joue un rôle déterminant à cet égard : en tant que branche hautement industrialisée dans le secteur du bâtiment, la construction bois présente des avantages grâce à la préfabrication en usine, à l’abri des intempéries. Comme les travaux sont entièrement planifiables et réalisés par des modules préfabriqués avec précision, tous les autres corps de métier impliqués ont pu proposer leurs services à des prix compétitifs par rapport à une intervention sur un chantier classique. En outre, la bonne isolation acoustique ainsi que la séparation nette des structures primaire, secondaire et tertiaire plaident en faveur de la construction modulaire en bois.

Les modules ont été entièrement préfabriqués dans l’usine d’Erne Holzbau, à Stein (AG), où ils ont été équipés de fenêtres et de salles de bain avant d’être acheminés sur le chantier à l’aide d’une remorque surbaissée. Les modules, mesurant jusqu’à 15 mètres de long et entre 3,85 et 4,15 mètres de large, ont été empilés sur trois étages sur la cave en béton coulée sur place à l’aide d’une grue mobile.

Le premier bâtiment, composé de 18 modules, a été érigé en seulement quatre jours. Quant aux deux autres bâtiments, plus grands, ils se composeront chacun de 38 modules, étage en attique compris. Le temps de construction réduit et la limitation des nuisances sonores qui en découlent sont pensés en vue de ménager le voisinage.

L’architecte Harry Gugger relève les avantages de la préfabrication à grande échelle : « Souvent, les constructions modulaires donnent l’impression d’un empilement monotone de caissons dont la structure rigide, y compris à l’intérieur, génère des espaces exigus. Nous avons voulu l’éviter en maximisant les relations spatiales en diagonale et avons exigé des constructeurs bois des ouvertures maximales dans les modules. » Il suffit de jeter un œil dans les logements pour s’en convaincre : tous les logements donnent sur deux façades au moins, avec des fenêtres allant du sol au plafond, tandis que de vastes ouvertures à l’intérieur dissimulent habilement la structure de base. Toutefois, le degré d’ouverture des parois s’est avéré être un défi particulièrement complexe pour le transport des modules, car une torsion pouvait endommager les espaces intérieurs achevés.

Plans rationnels

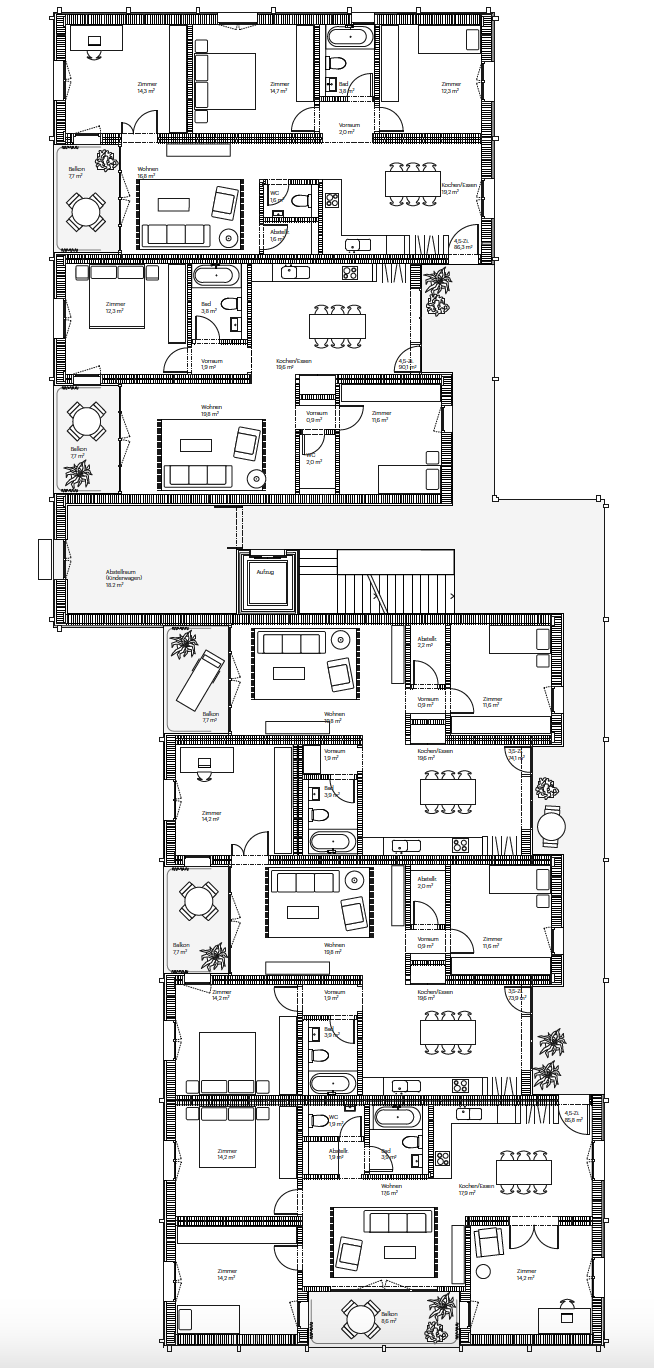
Afin de limiter le plus possible les surfaces chauffées, les nouveaux bâtiments sont desservis par des coursives avec, à chaque fois, une cage d’escalier ouverte. Trois logements sont desservis à chaque étage dans le premier bâtiment et cinq dans les autres bâtiments. Les logements se caractérisent par des plans compacts sans surfaces de circulation classiques. À titre d’exemple, les logements de 4,5 pièces sont agencés sur 85 m². L’accès aux logements se fait directement via un espace cuisine/séjour combiné. La caractéristique du projet est son principe d’imbrication décalé : le séjour et sa loggia attenante sont décalés d’un axe sur la trame.

Tout comme dans les maisons Baumgartner, très prisées à Bâle, une pièce peut être reliée à l’espace central par une large porte à deux vantaux. Les pièces elles-mêmes présentent des surfaces au sol carrées presque identiques, ce qui rend les logements flexibles. Compte tenu du prix modeste des loyers, le standard d’aménagement est robuste et n’offre aucune surprise, hormis peut-être l’armoire encastrée très profonde – qui manque cruellement dans de nombreux appartements plus onéreux. Chaque logement dispose d’une loggia accessible depuis plusieurs pièces. Quant aux rideaux de protection solaire, ils sont moins onéreux que les stores et apportent une note colorée.

En 2022, l’aménagement des espaces libres entre les futurs bâtiments sera également bien perceptible. Pour les personnes établies de longue date ainsi que pour les résidents des 31 loge- ments supplémentaires, les talus herbeux existants ainsi que les arbres anciens seront enrichis par un aménagement paysager composé de plantes vivaces et d’arbustes traversé de chemins, de petites zones gravillonnées, de jardins potagers et d’une aire de jeux agrémentée de places assises.

Alexander Felix vit à Bâle. Il est architecte ingénieur diplômé TUM.

Trois immeubles d'habitation à loyer modéré au Hirtenweg, Riehen (BS)

 

Concours avec entreprise totale : Avril 2018 à mai 2019

 

Réalisation maison A : Avril à décembre 2020

 

Représentant du maître d’ouvrage : Département des travaux publics et des transports du Canton de Bâle-Ville, Office des bâtiments

 

Entreprise totale : ERNE AG Holzbau, Laufenburg

 

Architecture : Harry Gugger Studio, Bâle

 

Architecture du paysage : Fontana Landschaftsarchitektur, Bâle

 

Volume des constructions : 14 584 m3

 

Surface de plancher (SP) : 5097 m2

 

Surface utile principale (SUP) : 3498 m2

 

Surface locative (SL) : 3364 m2

 

Étages :
3 étages complets plus attique
43 logements (bâtiment A : 9 logements, bâtiment B et C : 17 logements)

 

Types de logements :
9 logements de 2,5 pièces,
10 logements de 3,5 pièces,
24 logements de 4,5 pièces

Sur ce sujet