Les Pla­teaux, théâtres ato­mi­sés

Livrées fin septembre dernier, les deux salles ont été conçues et construites en seulement 15 mois sur la Friche la Belle de Mai dans la cité phocéenne, dans l’élan de Marseille-Provence 2013.

Date de publication
16-01-2014
Revision
12-10-2015

La Belle de Mai. C’est le nom romanesque d’un quartier populaire de Marseille, situé à quelques pas de la gare Saint-Charles. En 1868, la Seita, une manufacture de tabac et d’allumettes, y pose ses valises pour finalement fermer boutique au début des années 1980. Elle laisse derrière elle douze hectares de friche industrielle. Une décennie a passé, et la zone connaît un second souffle sous l’impulsion de producteurs et d’artistes qui s’y installent. Ils créent ensemble l’association Système Friche Théâtre, dont Philippe Foulquié prend la direction et Jean Nouvel la présidence – tous deux ont aujourd’hui quitté leurs fonctions. 
Dès le départ, l’objectif est clair : faire le lien entre la fabrique de la ville et la création artistique, reconnecter une portion de ville à son quartier ; un « projet culturel pour un projet urbain » (voir article paru dans TRACÉS n° 10/2009). En 2007, l’association se mue en Structure de société coopérative d’intérêt collectif. Sous la présidence de Patrick Bouchain – aujourd’hui président d’honneur –, elle se donne pour mission d’aménager et gérer la Friche la Belle de Mai, selon un schéma directeur évolutif (nous en sommes actuellement à la troisième version, datant de 2008). Trois ans plus tard, la structure obtient le titre de Service d’intérêt économique général1
Au fil des ans, les réalisations ont germé sur le site : un restaurant – Les Grandes Tables –, un skatepark, une crèche pouvant accueillir 60 enfants, 7500 mètres carrés de bureaux et d’ateliers. Et puis, Marseille est élue en septembre 2008 capitale européenne de la culture 2013. De par son caractère expérimental et foisonnant, la Friche a assurément joué un rôle dans cette nomination. En retour, le titre de capitale culturelle a permis de donner une impulsion considérable à la poursuite de la reconversion de l’ancienne zone industrielle de 4.5 hectares, la plus grande friche urbaine d’Europe. 
Dans le cadre de l’année culturelle 2013, 23 millions d’Euros ont été injectés pour les Magasins de la Friche, des lieux de résidences artistiques, des bureaux, des ateliers, des locaux pour Radio Grenouille. 50 structures, pour la plupart des associations, ont pris leurs quartiers dans ces nouveaux lieux (70 en tout occupent le site de la Friche). En quelques mois, de nouveaux espaces d’expositions ont été inaugurés – le Panorama–, un toit de 7000 m2 offre désormais un superbe point de vue sur la ville et accueille les publics pour des événements en tout genre, fêtes, shows de skateboard, projections de films (image). Une aire de jeu et des jardins potagers ont également été agencés et mis à disposition. Les Plateaux, dont l’élaboration a été instiguée par Patrick Bouchain, constituent le dernier élément de cet élan.

Les Plateaux

Il s’agit de deux espaces dédiés aux arts du spectacle, déployés sur 1900 m2, livrés fin septembre dernier et construits en un temps record. A peine 15 mois se sont écoulés entre le début de la phase de conception et la livraison, et sept mois ont suffi à son édification. Si ce pôle théâtre était achevé en 2013, en s’inscrivant ainsi dans le cadre de Marseille-Provence 2013, la Ville s’engageait à verser une partie (l’autre étant versée par l’Etat) des fonds nécessaires à sa réalisation. D’où la rapidité de l’opération. Le schéma directeur de la Friche2, voté en conseil municipal, contient deux chapitres essentiels. L’un concerne le pôle des arts plastiques et des résidences artistiques, le second celui des arts vivants. Les Plateaux s’inscrivent dans ce dernier.
Deux résidents du pôle théâtre de la Friche ont été porteurs du programme de la construction des salles : François Cervantes, directeur artistique de la compagnie l’Entreprise, résidente historique de la Friche, et Catherine Marnas, devenue depuis directrice du théâtre national de Bordeaux, à l’époque à la tête de la compagnie Parnas. Avec le directeur technique de la Friche Christophe Ohana et le scénographe du projet Daniel Sourt, ils ont réfléchi aux besoins de la Belle de Mai en termes d’arts vivants. Avec les directeurs techniques des deux compagnies précitées, Xavier Brousse et Carlos Calvo, tous ont accompagné le projet durant la totalité de l’opération. 
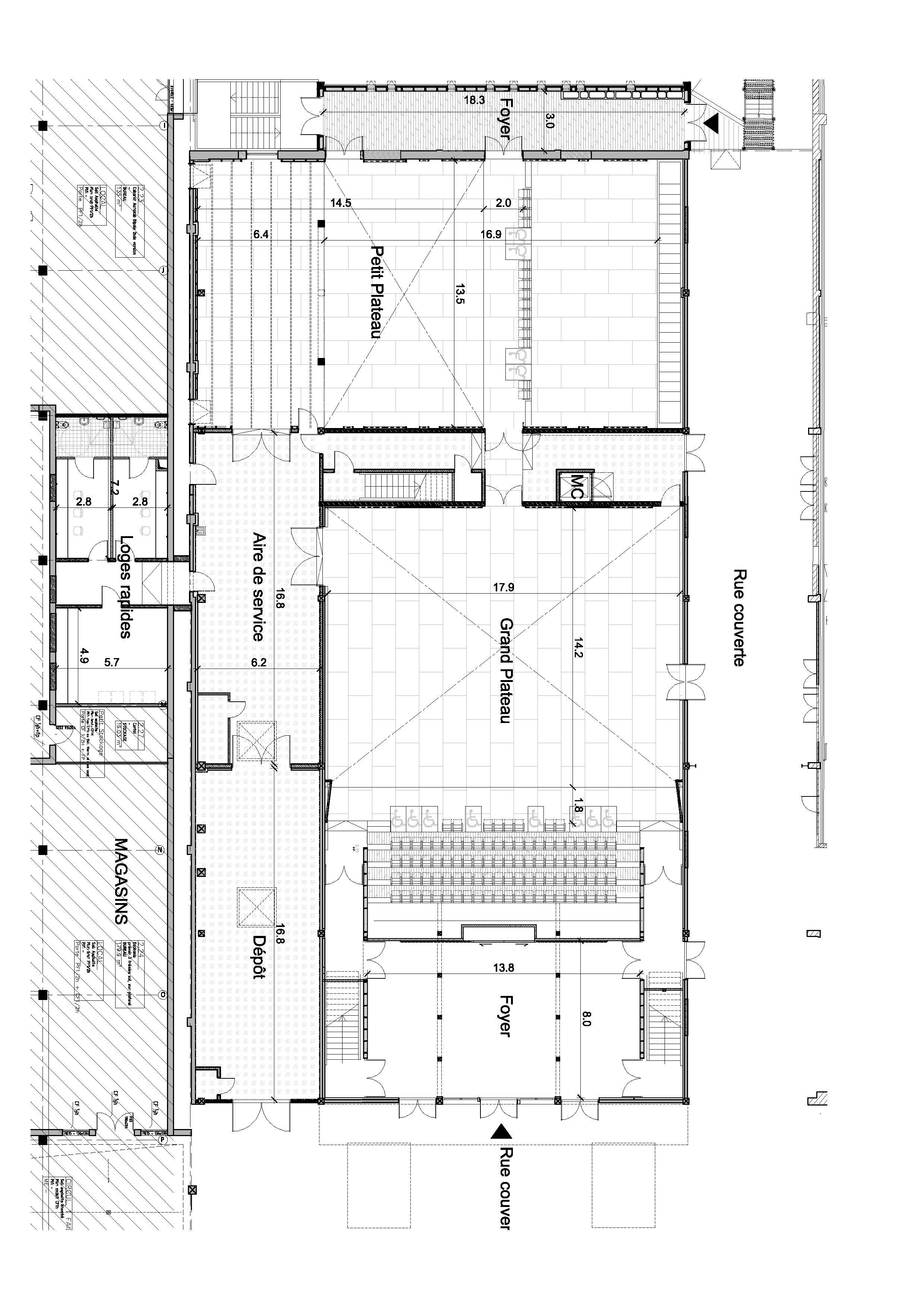
Les deux salles, dont les caractéristiques découlent des besoins des compagnies résidentes, peuvent, si cela est jugé nécessaire, fonctionner simultanément. Les espaces complémentaires, indispensables pour le fonctionnement des lieux, sont quant à eux mutualisés. Il en va ainsi des loges qui se trouvent dans l’attique. Tout ce qui ne pouvait pas entrer dans le parallélépipède a trouvé place quelque part ailleurs dans la Friche. Le restaurant adjacent, point névralgique de la Belle de Mai, sert de lieu d’accueil au public. Quant aux bureaux, ou encore aux lieux de stockage, ils se trouvent dans les Magasins : à quelques mètres des théâtres. Le stockage in situ se limite aux usages fonctionnels immédiats. On perçoit ce que ce projet peut avoir d’authentiquement novateur : l’ensemble constitue un véritable système scénique déstructuré ; un théâtre atomisé dans un volume en béton. Les deux scènes, emboîtées dans le volume désaffecté, sont le cœur d’un ensemble d’espaces dispersés dans l’ancienne fabrique.

Construire en bois

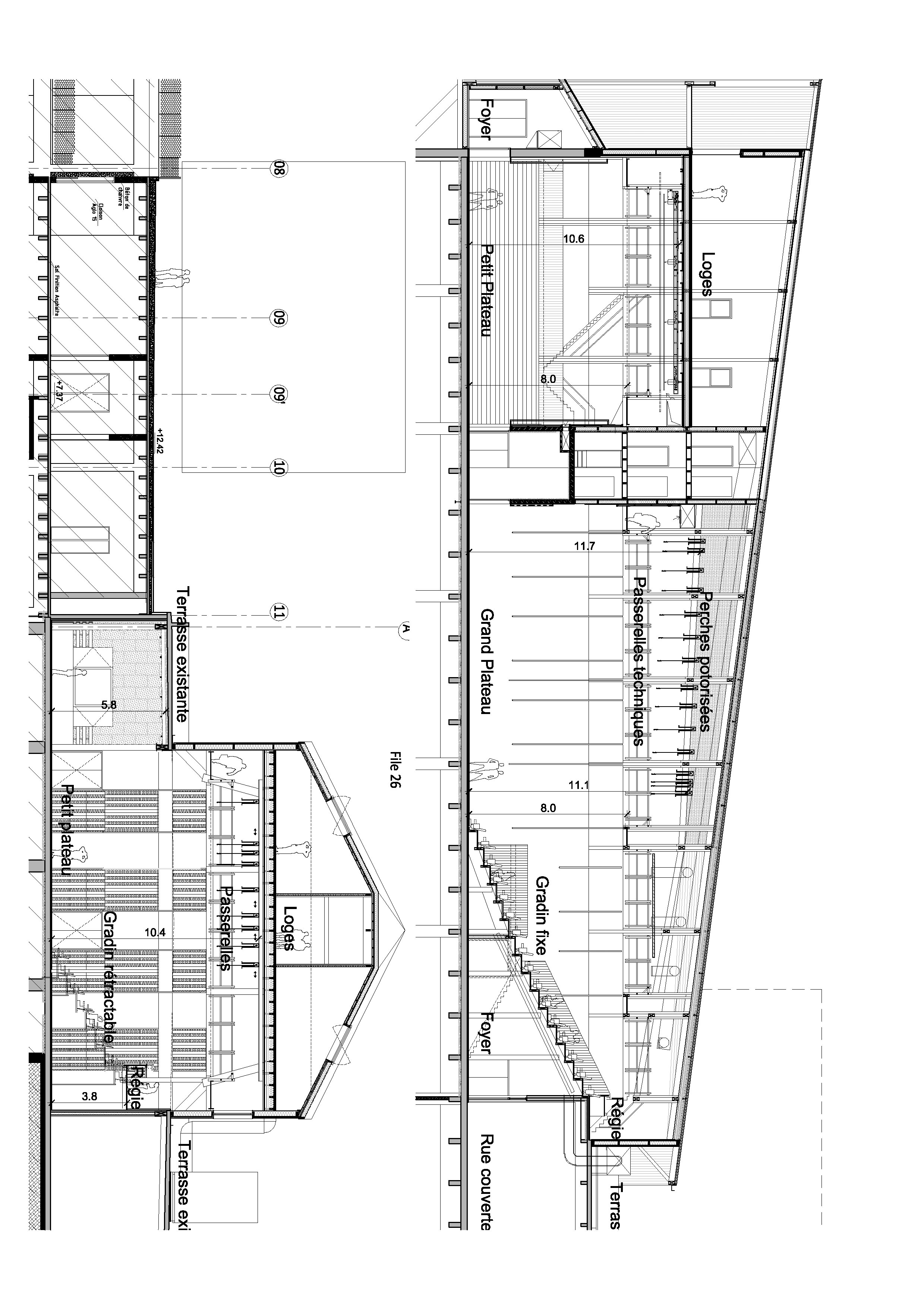
Au regard des impératifs financiers et de temps, les maîtres d’œuvre Sébastien Eymard et Loïc Julienne, de l’agence Construire, ont choisi de travailler avec le bois, prolongeant ainsi leur expérience (lire article lié), mettant à nouveau à profit les atouts de la préfabrication et du bois, qui permettent de progresser rapidement. La charpente repose sur une structure béton existante (un ancien hangar de stockage d’allumettes et de cigarettes) de cinq mètres sous plafond, dont la dalle a été percée pour permettre la création des hauteurs scéniques requises (la hauteur au faîtage est désormais de 18 m). La surélévation consiste en une série de portiques en bois, disposés au fur et à mesure. En un peu plus de deux mois, l’entier de la charpente était monté. Le revêtement des façades du théâtre, une tôle ondulée, fait écho à plusieurs autres constructions de la Friche – le Panorama en onduline lactée, le futur Institut méditerranéen des métiers du spectacle en aluminium brillant ondulé. L’ensemble présente ainsi une certaine cohérence. 
Les pignons arrière et avant constituent les seuls éléments extérieurs en bois. Les architectes ont souhaité que le bois soit noir, pour faire écho à l’obscurité des salles de spectacle où tout doit être le plus sombre possible ; l’extérieur préfigure ainsi l’intérieur. Pour atteindre la noirceur souhaitée, le bois a été brûlé à la manière japonaise, remise au goût du jour par Terunobu Fujimori. Cela donne une texture sensuelle aux planches de bois (image). On aurait envie d’y passer doucement le doigt. Mais, à l’image du fusain, le bois brûlé marque de noir qui s’y frotte ; les parties de paroi accessibles ont donc été enduites d’huile de lin. 
Les Plateaux offrent deux espaces de spectacle différents. La grande salle (image), pourvue d’un gradin fixe avec fauteuils individuels, peut accueillir 372 personnes. La scène est intégrée à la salle, sans cadre et de plain-pied avec la première rangée de sièges. La grande passerelle technique périphérique est entrecoupée par deux passerelles transversales. L’une permet un éclairage en douche sur le bord du plateau, la seconde un éclairage traditionnel en biais qui éclaire jusqu’au fond de la scène. Une structure ondulée en bois est installée entre les deux passerelles transversales pour porter la voix loin dans les gradins. Les 25 portiques qui composent la charpente de la salle se reposent sur la dalle existante en béton, et s’échelonnent tous les 4.5 mètres. 
La seconde salle (image), plus petite, a une capacité de 150 personnes et ses gradins sont rétractables ; ils peuvent se ranger sous la régie fixe. Ce second espace s’apparente davantage à une black box (lire article lié), lieu où l’agencement gradin-scène est plus flexible, modulable. L’espace peut donc faire office de salle de concert – sans gradin, il peut accueillir quelque 900 personnes – ou de grande salle de répétition et laisser davantage de liberté à l’équipe de mise en scène et au scénographe. 
Les deux salles sont reliées par des locaux techniques et des loges qui peuvent héberger une quinzaine de personnes. Cette aire, cernée par de grandes portes acoustiques, sert également de sas isolant, permettant aux deux espaces de fonctionner simultanément. Dans les deux théâtres, à l’instar des autres projet de l’agence Construire, l’accent est mis sur les conforts techniques. Plus modulable qu’un gril fixe3, un système de perches motorisées est ici employé. Les perches, qui supportent notamment les projecteurs, peuvent être déplacées sur des poutrelles métalliques. Les passerelles, par leur importante largeur et la puissance électrique qui y est installée, permettent aussi de libérer le plateau du matériel technique. L’entier de la distribution est apparent, chaque utilisateur est ainsi libre d’ajouter ou retirer des éléments techniques. 
D’ordinaire placées dans le soubassement, les loges prennent ici place au-dessus de la petite salle. Elles constituent un grand espace collectif, avec les poutres de la charpente apparentes, qui se poursuit à l’extérieur avec un grand balcon donnant sur la ville et sur la mer (image). 
Avec les Plateaux, Construire, tout en se concentrant davantage sur l’aspect fonctionnel qu’architectural, a livré un bâtiment remarquable, d’autant plus si l’on considère le peu de moyens financiers et de temps mis à disposition. A l’intérieur, la technique est mise en scène, tout est apparent : la charpente de bois – qui supporte une couverture à trois pentes, chacune en forme de faisceau –, les passerelles (image) et les flux. Cela confère un caractère à la fois brut et chaleureux aux salles de spectacle. De l’extérieur, l’édifice semble surgir du sol, un volume de bois qui émerge du béton. Le pignon côté petite salle et loges est plus haut que le pignon opposé ; le bâtiment, d’un seul tenant, s’élève donc à mesure qu’il s’avance vers la ville.

 

Notes

1. Les services d’intérêt économique général (SIEG) sont définis par la Commission européenne comme des « activités de service marchand remplissant des missions d’intérêt général et soumises de ce fait par les Etats membres à des obligations spécifiques de service public ».
2. Le point principal de la troisième version du schéma directeur (« Jamais 2 sans 3 ») de la Friche : « Développer des activités sur un ancien site industriel à l’abandon afin de créer des emplois, tout en valorisant et désenclavant le quartier environnant. »
3. Un gril est un plancher métallique à claire-voie supportant la technique (perches, projecteurs, câbles ; etc.).

Sur ce sujet