La man­sarde du pia­niste

Les maisons d’habitation sont les constructions qui confèrent à leurs usagers le plus de souplesse. Des enfants qui grandissent, des instruments de musique qui encombrent l’espace. Voilà deux raisons qui ont motivé l’extension de la maison familiale de mélomanes renanais. Depuis le printemps 2012, le « chef de famille » a donc pris possession, des 143 mètres carrés offerts par le nouvel étage joliment baptisé mansarde du pianiste. Si le métal triomphe à l’exté le bois de l’ossature a permis au burreau lausannois graf & rouault architectes de remporter une mention au Prix Lignum 2012.

Date de publication
03-09-2013
Revision
06-10-2015

D’une manière générale, les architectes parviennent à faire preuve d’originalité pour intituler leurs projets universitaires. Pourtant, sitôt devenus professionnels, ils retombent souvent sur des dénominations nettement plus terre à terre, qui se résument, dans une majeure partie des cas, à additionner le programme et la situation géographique – quand ce n’est pas le nom du commanditaire, du partenaire ou du mécène – de l’objet en question. Le résultat est incontestablement pragmatique. La mansarde du pianiste semble a priori déroger à la règle.
Si le titre est «ce qui oriente notre perception en nous livrant le sujet»1, comme l’énonce le philosophe français Mikel Dufrenne, cet enchaînement poétique pourrait aisément se référer à l’univers balzacien évoqué dans cet extrait de La Peau de chagrin: «Rien n’était plus horrible que cette mansarde aux murs jaunes et sales, qui sentait la misère et appelait son savant. (…) Il y avait place pour un lit, une table, quelques chaises, et sous l’angle aigu du toit je pouvais loger mon piano.»2 Tel n’est pas le sort de la mansarde du pianiste. 

Contexte

Au chemin des Vignes 3, une modeste maison de plain-pied constituée de cinq pièces, chapeautée d’une toiture recouverte de tuiles et agrémentée d’un petit jardin en pente, fut construite dans les années 1970, au milieu d’un quartier résidentiel calme et boisé de la commune de Renens. Il y a une quinzaine d’années, un couple de la région décida d’y faire son nid. Après les naissances successives de leurs trois enfants, toutes les chambres furent occupées. Les années passant, la maison commença à craquer aux coutures. Lorsque le rez-de-chaussée fut entièrement sollicité, ce fut au tour du sous-sol d’être investi. En revanche, impossible d’en faire autant des combles froids et humides, dont la hauteur sous la panne faîtière ne permettait pas même de se tenir debout. 
Ayant été transmise de père en fils, la passion pour la musique eut finalement raison de la maison familiale dès lors trop exigüe pour contenir en son antre piano, batterie et autres merveilles de mélomanes. Il fallait donc trouver une solution pour pallier au manque d’espace, problème récurrent, voire banal, des familles qui s’agrandissent. Par chance, les anciens propriétaires de la maison n’avaient pas consommé tous les mètres carrés constructibles de la parcelle. L’agrandissement était donc permis.
Liés d’amitié avec le maître des lieux, le bureau lausannois graf & rouault architectes fut mandaté pour donner vie à ce projet. Dès les études préliminaires, l’enveloppe budgétaire a écarté toute éventualité de construire une villa neuve. Le gain de surface se fera donc au moyen d’une greffe architecturale, la solution de l’entre-deux qui offre l’atout majeur de ne privilégier ni la conservation dans un état « idéalisé » – puisque appartenant au passé –, ni la démolition irréversible.
Si lors des premiers balbutiements la possibilité d’augmenter la surface habitable par extension latérale a été émise, les clients ont finalement opté pour la surélévation, préservant ainsi l’entier du jardin – dont une partie s’avère déjà inexploitable à cause du nivellement prononcé du terrain – et leur tranquillité, puisqu’il a été convenu que la jeune génération resterait au rez-de-chaussée.

Une mansarde ?

En s’engouffrant dans le dédale de ruelles biscornues qui mène au chemin des Vignes 3, chercher du regard le clinquant qu’exhibe parfois certains projets contemporains est inutile. Sise au bout de l’impasse, la mansarde du pianiste se fait bien plus timide que les clichés photographiques ne la laissent paraître. Une impression qui peut être induite par la couleur grise dont le crépi de la construction existante – autrefois teinté d’un jaune crème – se revêt désormais.
Juxtaposées au crépi, les feuilles patinées d’acier inoxydable qui constituent le plaquage extérieur de la surélévation semblent déjà avoir roulé leur bosse. Si l’utilisation de ce matériau se réfère au zinc caractéristique des mansardes parisiennes – justification possible du titre de l’ouvrage –, s’en approcher permet de détecter certaines subtilités d’exécution qui affirme le caractère contemporain du projet. Contrairement au calepinage régulier – tous les 50 cm – des toits mansardés de Paris, l’enveloppe de la surélévation est constituée de feuilles de trois largeurs différentes, dont le brassage aléatoire peut laisser planer le doute sur une éventuelle recherche de composition, sinon la manifestation d’une esthétique au «goût du jour». Le système de jonction entre deux feuilles a lui aussi été revisité ; l’agrafure simple, qui rythme d’ordinaire la surface du toit en la scandant régulièrement de bourrelets extérieurs, est ici éliminée et remplacée par un procédé qui tend à estomper toute jonction. Ainsi, par grand beau temps, la peau d’acier qui reflète les rayons du soleil semble parfaitement lisse.
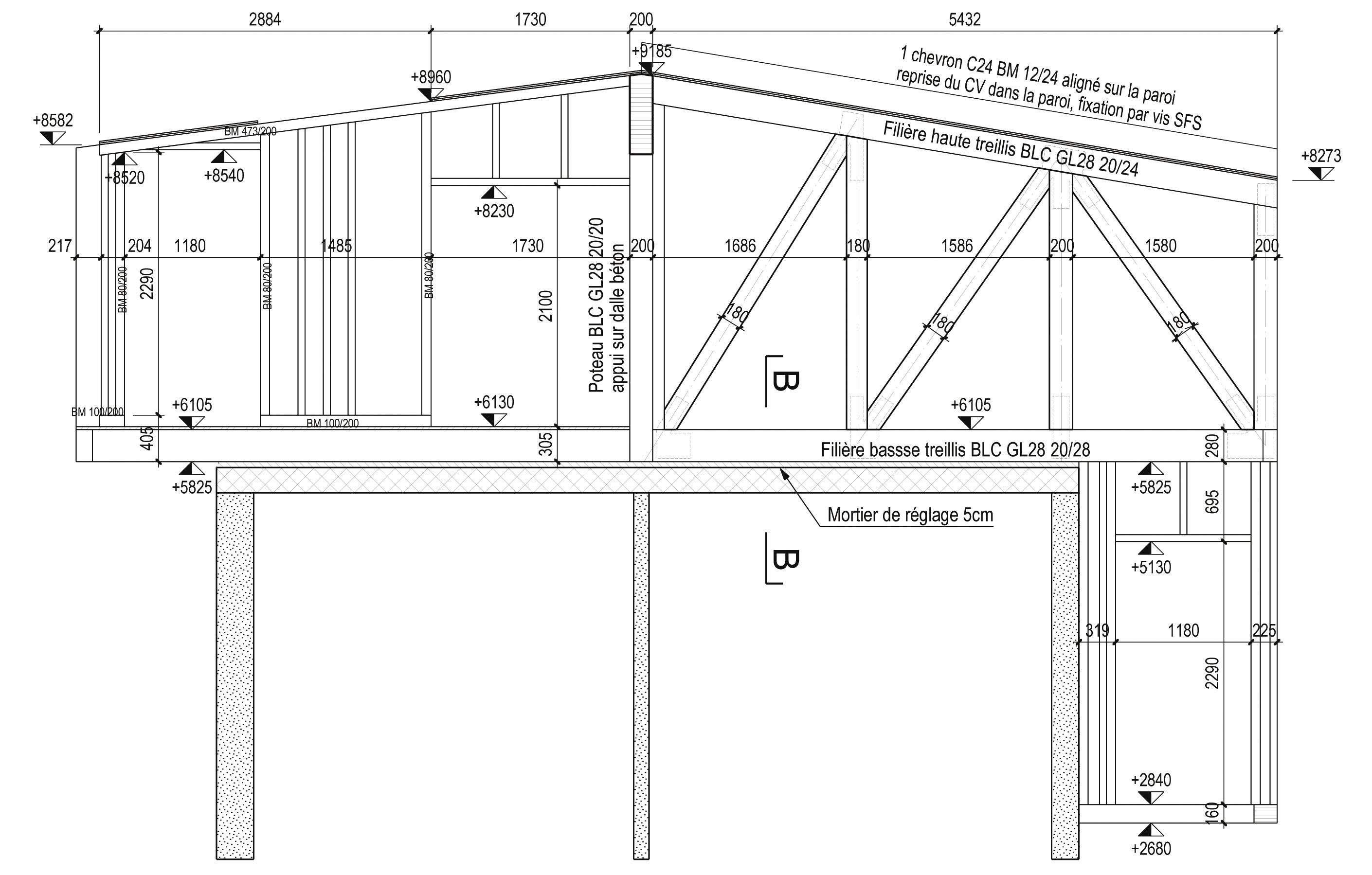
Sous cette carcasse métallique se développe une ossature de bois (schéma). Rien de moins étrange que l’utilisation du bois comme matériau structurel dans les projets de surélévation. Rappelons que son faible poids combiné à ses excellentes capacités statiques, son encombrement restreint, ses atouts thermiques, mais aussi et surtout sa rapidité de mise en œuvre en font le matériau idéal.
Déployé sur un niveau, le nouveau volume de 550 m3 supplante la toiture d’antan. Sitôt démontée, un solivage a été disposé sur la dalle existante des combles (schéma). De géométrie irrégulière, le plancher créé ne suit pas le tracé rectiligne généré par les murs du rez-de-chaussée. En débordant de toutes parts, il permet de couvrir la surface maximale autorisée par la réglementation en vigueur et confère également des avant-toits au niveau inférieur. L’entrée au nord est ainsi protégée, de même que les fenêtres les plus exposées au sud.
Si le rez-de-chaussée a conservé sa composition d’origine pour des raisons fonctionnelles et économiques, l’entrée affiche désormais une toute autre allure. Entièrement repensée et intégrée à l’ossature en bois, elle constitue l’articulation entre le nouveau et l’ancien. A l’intérieur, le gris du linoléum qui recouvre le sol des parties fraîchement annexées fait écho à la teinte de l’enveloppe extérieure ; un renvoi chromatique qui se retrouve également dans les embrasures et sur les menuiseries des fenêtres.
Gravir les marches de l’escalier permet d’accéder à ladite mansarde. Pourtant, une fois arrivé là-haut, pas de combles brisés. La hauteur sous plafond est généreuse. Les parois et le plancher forment un angle, on ne peut plus droit. L’étage se scinde en deux espaces séparés par une paroi (schéma) : la salle de musique où le piano cohabite avec des rangements et des éléments bas de cuisine, et une suite conjugale agrémentée d’un dressing et d’une salle de bains parfaitement équipée. La disposition sporadique des multiples percements permet une mise en lumière optimale et crée ainsi une galerie de tableaux dans lesquels les éléments naturels du paysage environnant deviennent toile de fond.
Hormis la longue panne faîtière, l’ensemble de la structure porteuse est intégralement recouverte de panneaux en OSB qui font à la fois office de contreventements, de parement intérieur et de meubles de rangement scrupuleusement dessinés par les architectes. Si ce n’est la vie qui reprend toujours ses droits, dans ce projet de dentelle, du cadre de fenêtre à l’éclairage tamisé des armoires (image), rien n’est laissé au hasard. 

Extrapolations


En visitant la mansarde du pianiste, l’architecte a maintes fois souligné l’importance du budget octroyé par le maître d’ouvrage, auquel se sont ajoutées les inévitables contraintes réglementaires. Il demeure néanmoins réducteur de ramener cet acte de création à de seuls critères économiques et urbanistiques. Dans la tradition helvétique, n’est-il pas implicitement « convenu » de conserver la maison familiale pour la transmettre à ses descendants ? Cet esprit de conservation est en effet largement identifiable. Malgré certaines réticences, Le Corbusier l’admettait déjà en 1942 : « Quant au bien de famille, une fois ajusté, après bien des coutures, souvent, et bien des rapiéçages, aux sages dimensions que conseille le terroir, il présente un caractère tout à fait particulier (…) Le corps principal du bâtiment, de par ses dimensions constructives, ses formes et ses matériaux, sera fait pour défier le temps. Cela, bien qu’on sache à l’avance que chaque troisième génération éprouvera le besoin de poser sa marque distinctive sur l’habitation, en ‹ modernisant ›, en ajoutant ou en retranchant appentis ou dépendance : mais ce ne sont que les branches mineures ou surgeons d’un chêne dont le tronc reste inflexible. »3
Qu’en sera-t-il de la mansarde dans trois générations ? Nous ne le saurons probablement pas mais quoiqu’elle advienne, loin de la « mansarde nue, froide, aussi mal peignée que la perruque d’un naturaliste »4 que laissait présager le titre, le projet dévoile en réalité un espace vaste, lumineux et résolument contemporain, où l’écartèlement entre mémoire et innovation valide les réflexions corbuséennes.

 

Notes

1. Mikel Dufrenne, De l’expressivité de l’abstrait, Esthétique et philosophie, Paris, 1967, p. 208 
2. Honoré de Balzac, La Peau de chagrin, éditeurs Gosselin et Urbain Canel, 1831
3. Le Corbusier et François de Pierrefeu, La maison des hommes, édition originale Librairie Plon, 1942, réédition La Palatine, 1965, pp. 149-150 
4. Honoré de Balzac, La Peau de chagrin, éditeurs Gosselin et Urbain Canel, 183

 

Informations

Maître de l’ouvrage: Privé
Architectes: graf & rouault architectes sàrl, Lausanne
Ingénieur civil: Chabloz & partenaires SA, Lausanne
Construction bois: Robert & Pascal Sallin SA, Villaz Saint-Pierre
Date d’exécution: septembre 2011 à mars 2012
Surface de plancher: 143 m2 (SIA 416)
Volume bâti: 550 m3 (SIA 416)
Prix/m3 (CFC 2): 1310 CHF/m3

 

 

Informations relatives au bois

Structure: carrelets d’ossature 1.5 m3
BLC: 48 m3
Panneaux murs et plafonds: OSB 15 mm, 760 m2
Panneaux sol: OSB 25 mm, 110 m2
Voligeage : 27 mm, 10 m3

Sur ce sujet