Ha­bi­ta­tions in­di­vi­duelle et col­lec­tive : l’ac­tua­lité d’une hy­bri­da­tion

Le croisement de ces deux types d’habitat dans la production architecturale contemporaine renouvelle l’architecture résidentielle de multiples façons. Petit tour d’horizon

Date de publication
17-06-2015
Revision
22-10-2015
Frédéric Frank
Professeur de théorie de l’architecture et de la ville à la Haute école d'ingénierie et d'architecture de Fribourg

La production résidentielle helvétique a connu un cycle de réflexion et d’expérimentation particulièrement remarquable durant la seconde moitié du 20e siècle dédié aux transpositions des qualités de l’habitation individuelle dans l’habitation collective. Cette production a été notamment marquée par l’ensemble Halen près de Berne construit par l’Atelier 5 (1955-1961). D’autres réalisations ont suivi, investiguant les modalités d’agrégation d’unités individuelles dans des structures collectives, donnant naissance à des réalisations parfois complexes, se référant à des structures villageoises ou se développant en terrasses.

Jusque dans les années 1990, les réflexions issues de ces premiers ensembles ont engendré à plusieurs types de réalisations, dont de nombreux habitats groupés qui ont catalysé ces questions. Ces habitats ont ensuite progressivement disparu, de même que le terme qui les décrivait. Est-ce que cela signifie pour autant que les transpositions des qualités de l’habitation individuelle dans l’habitation collective désintéressent les architectes depuis lors ? En interrogeant la production helvétique récente, il s’avère que ces préoccupations demeurent, tout en se matérialisant de façon inédite.

Habitat intermédiaire : définition et enjeux


Afin d’analyser la production contemporaine, nous adopterons dans cet article le terme d’habitat intermédiaire, dans sa définition large1. Il permet d’interroger des immeubles collectifs intégrant des qualités de l’habitation individuelle sans se restreindre à un type, à une morphologie ou à des modalités d’agrégation entre unités. 

L’hybridation possible entre individuel et collectif se révèle en effet bien plus vaste que la seule juxtaposition ou superposition d’unités individuelles au sein d’un ensemble. A l’instar de la créature de L’invention collective de René Magritte (1934) (image), l’hybridation peut donner naissance à des organismes surprenants, car elle ne s’effectue pas toujours comme on l’imaginerait. Dans l’œuvre de Magritte, si les deux composantes sont identiques à celle d’une sirène, le résultat obtenu est pourtant radicalement – et ironiquement – différent.

Pour saisir de quelle façon ce champ d’expérimentation peut être vaste, Christian Moley propose de s’interroger d’abord sur les habitations individuelle et collective, catégories qui s’avèrent souvent plus imbriquées qu’il n’y paraît : « La standardisation progressive du pavillon l’a rapproché de la cellule en collectif et a uniformisé son aspect, tandis que l’immeuble massifié a nourri le besoin de personnalisation. »2 Avant de laisser de côté l’habitation individuelle stricto sensu, il est utile de relever la dimension paradoxalement collective qu’acquiert le pavillonnaire lorsqu’il est le fruit d’une production standardisée. Noyé dans la masse des constructions qui lui ressemblent, l’habitat individuel standardisé peine à accomplir sa fonction identificatoire.

Qualités d’usage, qualités d’image


Explorant les hybridations entre habitations individuelle et collective, Christian Moley propose deux catégories pour les caractériser, les qualités d’usage et les qualités d’image : « On a alors cherché à conjuguer les avantages de l’immeuble et de la maison, en envisageant celle-ci dans ses qualités d’usage (accès privatif, jardin, orientations multiples, possibilité d’extension) et d’image (symbolique domestique, échelle, quatre façades). »3

Etonnamment opérationnelles, ces deux catégories nous guideront dans l’analyse des édifices. Nous interrogerons d’abord ceux qui entretiennent une relation forte avec l’habitation individuelle pour nous intéresser ensuite à ceux dont le caractère collectif est plus marqué, démontrant ainsi que la pondération entre ces catégories peut être effectuée de différentes manières.

Unités individuelles juxtaposées


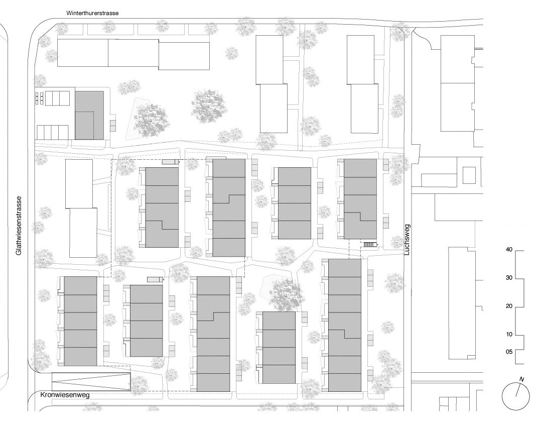
A Zurich, l’ensemble Kronwiesen construit par Beat Rothen en 2007 semble être constitué, à première vue, de simples maisons en rangée. La lecture du plan révèle une imbrication des logements qui dépasse pourtant la juxtaposition d’unités répétées à l’identique (plan). L’architecte dispose des unités de 4 et 5 pièces, tout en répliquant rigoureusement certaines séquences spatiales d’un appartement à l’autre, telle que l’arrivée de l’escalier à l’étage dans un hall distribuant les chambres de façon identique, indépendamment des décalages horizontaux entre niveaux. Ces décalages imbriquent fortement les unités entre elles et leur confèrent davantage le statut d’appartements que de maisons, même si chacune d’entre elles se développe de façon verticale, du jardin à la toiture, à l’instar d’un pavillon. Dès lors l’ensemble acquiert une dimension plus collective, où il est assumé que le regard d’un habitant de l’étage supérieur s’égare dans le jardin du voisin au niveau inférieur.

Dans la même commune, l’ensemble Grünmatt (schéma) construit par Graber & Pulver en 2013 apporte des réponses différentes à une question similaire. Accueillant plus de 150 logements, les quatre rangées de bâtiments réinterprètent le Zeilenbau caractéristique de ce quartier, en lui faisant subir de subtiles inflexions. La diversité des logements produits dans cette opération est notamment caractérisée par un mélange entre simplex, duplex et triplex. La majorité des appartements sont accessibles par une cage d’escalier centrale, symbole par excellence de l’immeuble collectif. Les triplex, par contre, ont des accès individualisés et fonctionnent comme des maisons en rangées. 

L’expression architecturale similaire adoptée pour ces deux types de logement donne à voir un ensemble plus homogène qu’il n’est en réalité. Disposés devant tous les appartements, les grands balcons en façade sud y contribuent de façon éloquente. Les architectes ont donc opté pour un nivellement de la diversité plutôt que pour une exagération de celle-ci, comme de nombreuses opérations ont tendance à le faire, parfois bien maladroitement. La compréhension de l’ensemble est donc jugée prioritaire sur la compréhension de l’unité individuelle, une préoccupation qui n’est peut-être pas étrangère au fait que le maître de l’ouvrage est une coopérative d’habitation.

Unités individuelles superposées


Franchissant un pas supplémentaire en direction de la collectivité, l’ensemble Burriweg (photo et coupe), construit il y a un peu plus de dix ans par Frank Zierau à Zurich, traite l’agrégation des unités résidentielles non par juxtaposition, comme dans les duplex de Kronwiesen ou dans les triplex de Grünmatt, mais par superposition. Il parvient à le faire sans avoir recours à une cage d’escalier collective, en projetant dans les espaces entre les bâtiments les accès individualisés aux appartements des étages supérieurs. Le recours à une forme d’habitat intermédiaire spécifique découle ici de la commande du projet qui consistait à détruire des maisons en rangées préexistantes tout en relogeant certains de leurs habitants dans les nouveaux bâtiments. L’architecte a choisi de réactiver la mémoire des habitations détruites en superposant littéralement deux unités au sein des nouvelles constructions. Le traitement entre les unités se veut le plus égalitaire possible, l’architecte renonçant notamment à attribuer des jardins privatifs aux appartements des niveaux inférieurs, comme dans un immeuble.

Accès individualisés


Ayant des accès individuels similaires à ceux du Burriweg, les deux bâtiments construits à la Neumattstrasse (photo et plans) à Aesch par Buol & Zünd en 2008 investissent une zone pavillonnaire de la périphérie bâloise. Alors que les deux niveaux à construire semblaient immédiatement suggérer la construction de maisons en rangées, le parti adopté par les architectes fut celui de construire deux petits immeubles accueillant uniquement des simplex. 

Le désir de collectivité se retrouve dans le plan masse où les deux bâtiments se regroupent le long d’une place centrale sur laquelle s’ouvrent séjours et cuisines, indépendamment de l’orientation solaire. Les architectes créent ainsi une forte dissociation entre les pièces communes de l’appartement, qui donnent sur la place par l’intermédiaire des prolongements extérieurs privatifs, et les chambres à coucher s’ouvrant sur la périphérie de la parcelle accessible à tous. Ils formulent ainsi une critique des pavillons et petits immeubles avoisinants où les espaces de rencontre entre voisins sont inexistants.

Toutefois, les deux bâtiments n’hésitent pas à réinterpréter certains éléments propres à l’habitation individuelle. En plus des accès privatifs, le projet établit une deuxième relation avec celle-ci, en offrant aux appartements soit un jardin, soit une spatialité généreuse sous la toiture. Dès lors, il y a, pour les habitants, une accession partielle à une des caractéristiques fondamentales de la maison qui se « différencie dans le sens de sa verticalité », comme le décrivait Gaston Bachelard, en se développant entre la cave et le grenier4 ou, ici, entre le jardin et la toiture.

Multiples orientations


Si les exemples précédents réinterprètent principalement les qualités d’usage de la maison, l’édifice construit à la rue du Grand-Pré 22 (photo 1 et 2) à Fribourg par 0815 architectes en 2013 explore également les qualités d’image de celle-ci. Chaque appartement se développe sur un étage complet, ayant quatre façades à sa disposition, comme dans une maison. Ces orientations multiples individualisent fortement chaque habitation, quand bien même elles prennent place dans une structure collective, identifiable par le hall et la cage d’escalier en commun.

Fruit d’une réflexion contextuelle, les architectes ont donné un léger biais aux piliers portant les balcons pour conférer à l’édifice le gabarit le plus homogène possible, malgré un règlement de construction stipulant de distinguer l’attique des autres étages. Il est intéressant dès lors de noter que cette réponse architecturale rend chaque étage plus autonome – et visuellement individuel – que si les piliers avaient été alignés sur un axe vertical, ce qui aurait accentué la sérialité de l’édifice.

A l’intérieur, les références au pavillon se multiplient, aussi dans les qualités d’usage qui sont repérables dans les vastes prolongements extérieurs privatifs auxquels ont accès les pièces principales de l’appartement ainsi que quelques chambres. Les balcons évoquent dès lors le jardin pavillonnaire, souvent accessible lui aussi par plusieurs pièces. Les habitants se sont par ailleurs généreusement appropriés ces balcons ; un succès pour les concepteurs de l’édifice.

D’autres éléments de cette villa urbaine5 renvoient quant à eux à l’immeuble collectif. En plus du hall et de la cage d’escalier, les architectes ont inscrit au cœur de l’édifice une courette qui relève d’une intention forte puisqu’elle n’éclaire aucune pièce de façon vitale. Elle introduit une dimension collective en permettant les regards croisés entre appartements. Elle évoque ainsi les tissus denses et compacts de la ville historique. La poétique de ce dispositif spatial, introduit dans un bâtiment sis hors ville, évoque non seulement l’hybridation entre individuel et collectif, mais également l’hybridation entre urbain et suburbain. 

Richesse et complexité


Le croisement entre habitations individuelle et collective confère aux réalisations présentées ici une richesse et une complexité particulière, qui se traduit par le fait qu’elles ne sont pas immédiatement appréhendables ou classifiables. Par cette exploration de l’habitat intermédiaire, les architectes établissent des relations plus ou moins étroites avec les contextes bâtis dans lesquels ils inscrivent leurs bâtiments, conciliant des données parfois antagonistes au moyen de choix peu ordinaires. Ils réalisent de la sorte des appartements aux caractéristiques peu communes, voire inédites, qui renouvèlent l’architecture résidentielle de multiples façons.

Frédéric Frank est architecte et chercheur post-doc à l’Institut d’architecture (IA) de la Faculté ENAC de l’EPFL.

 

 

Notes

1. Voir à cet effet la définition détaillée dans l’article de Bruno Marchand
2. Christian Moley, L’immeuble en formation. Genèse de l’habitat collectif et avatars intermédiaires, Mardaga, Bruxelles, 1991, p. 12
3. Christian Moley, L’immeuble en formation, op. cit., p. 16
4. Gaston Bachelard, La poétique de l’espace (1957), Presses Universitaires de France, 1974, pp. 34-35 
5. Pour une définition de la villa urbaine, voir la recherche suivante : Didier Challand, Habiter la ville ouverte. Nouvelle actualité de la villa urbaine, Thèse EPFL n° 4579, Lausanne, 2009

Sur ce sujet