Ra­di­ca­le­ment nou­veau – le centre sco­laire de Da­vos

Plutôt que de démolir l’ancienne école, les architectes de CURA l’ont intégrée au nouveau centre scolaire de Davos. Résultat : un lieu d’enseignement moderne, fonctionnel et chaleureux.

Date de publication
17-12-2025

Les premiers projets d’un bureau d’architectes sont souvent radicaux. Les jeunes ont moins à perdre et osent des choix clairs et affirmés. C’est exactement le cas du centre scolaire de Davos, inauguré à l’automne 2024, signé par Marc Ritz et Otto Closs du bureau munichois CURA. Alors que l’appel d’offres prévoyait une reconstruction complète, ils ont pris le parti de préserver le bâtiment existant, conçu en 1958 par les architectes locaux Krähenbühl & Bühler.

« Nous voulions montrer ce que signifie pour nous la durabilité. Il était évident qu’il fallait conserver l’école pour préserver l’énergie grise qu’elle contient », explique Marc Ritz lors d’une visite. Un pari gagnant face à des bureaux plus établis, les jeunes architectes ont su convaincre. Leur choix a permis d’économiser environ 1355 t de CO2 par rapport à une reconstruction neuve.

Un mariage entre ancien et nouveau

Le centre scolaire s’inscrit dans un campus plus vaste, bordé par deux bâtiments des années 1970 aux façades en béton lavé. À proximité, une cour de récréation s’étend jusqu’à la nouvelle salle de sport triple, réalisée par le bureau zurichois Neff Neumann. Espaces de jeux et jardin d’enfants complètent l’ensemble.

À l’extérieur, rien ne laisse deviner que l’ancien bâtiment subsiste. Pour répondre au programme demandé et accueillir une structure scolaire à la journée, les architectes ont enveloppé l’édifice d’une nouvelle coque en bois, teintée de vert. Le résultat se compose de 40 % d’ancien et 60 % de neuf. « Nous avons retiré les deux façades longitudinales, mais tout le reste est resté: planchers, murs et cages d’escalier », précise Otto Closs. La structure en béton et en maçonnerie a été entièrement rénovée, les façades renforcées pour répondre aux normes parasismiques actuelles et un étage supplémentaire ajouté. La nouvelle façade en bois améliore l’isolation et apporte une expression soignée : bandeaux en laiton pour protéger les fenêtres, bardage vertical, panneaux métalliques perforés… Un rythme qui joue avec la lumière et les saisons. L’hiver, le bâtiment se détache de la neige, tandis qu’en été il se fond dans les forêts environnantes.

Un chantier rapide et efficace

Les extensions reposent sur une ossature en bois rationnelle, alignée sur la trame du bâtiment existant. Les portées courtes ont permis d’optimiser les dimensions et les coûts. La plupart des éléments ont été préfabriqués par l’entreprise Künzli à Davos, puis montés rapidement sur place. Grâce à cela, le gros œuvre a été terminé avant l’hiver, permettant de poursuivre les travaux intérieurs pendant la saison froide. Entre le concours et l’ouverture, seules deux années se sont écoulées – un délai rendu possible par la confiance mutuelle, le pragmatisme de chacun et la réactivité de la maîtrise d’ouvrage.

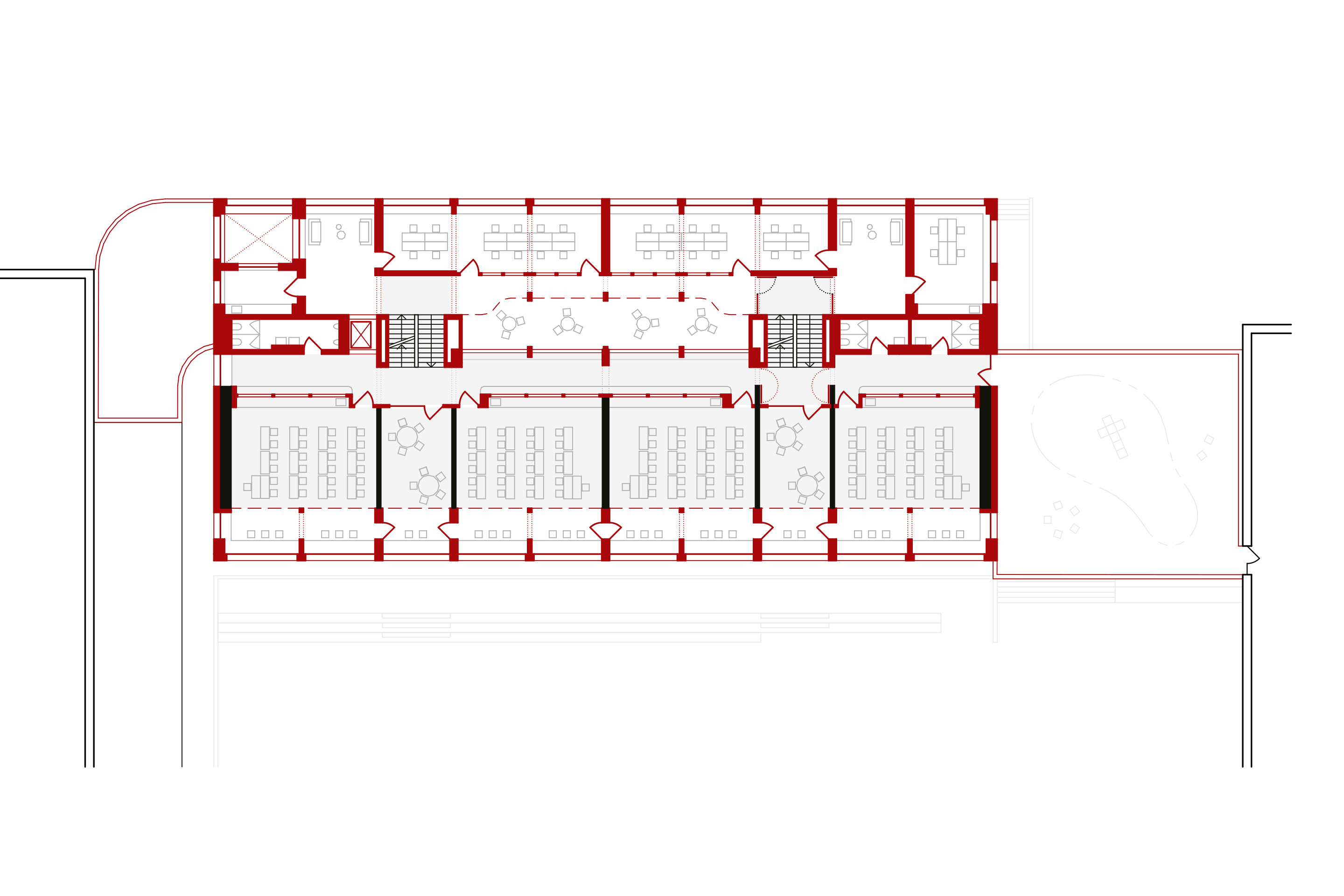
Le centre abrite désormais 13 salles de classe et quatre salles de groupe modulables, des ­bureaux pour la direction et les services sociaux, des salles de réunion, une cantine, une aula, un atrium multifonctionnel, ainsi que les sanitaires, douches et vestiaires pour les élèves sportifs. Sur le toit, un jardin offre une réserve d’espace, transformable si besoin en salles de cours supplémentaires.

La lumière au cœur du projet

À l’intérieur, l’organisation en demi-niveaux surprend. Les cages d’escalier, désormais centrales, desservent chaque palier et non plus un étage sur deux. Ce jeu de niveaux a donné naissance à un atrium, véritable lieu de vie qui favorise aussi la ventilation naturelle. L’édifice suit un principe « low-tech » : en été, les salles se ventilent simplement par ouverture des fenêtres et des lanterneaux. L’atrium agit comme une cheminée, évacuant l’air chaud vers le haut. L’énergie provient de sondes géothermiques et de panneaux photovoltaïques.

Des passerelles et liaisons variées relient ancien et nouveau, tout en maintenant des perspectives ouvertes au centre. Les éléments préexistants et les ajouts ont été différenciés afin que la transformation reste lisible. L’association du bois, de la lumière naturelle et de l’espace central crée une atmosphère agréable et conviviale. Les nouveaux aménagements ne permettent pas seulement des méthodes d’enseignement modernes, ils renforcent aussi la vie scolaire dans son ensemble.

Cet article a été publié dans: «Façades -  Une culture de la transformation portée par le secteur public». Vous trouverez d'autres articles sur ce thème dans notre dossier digital.

Centre scolaire Davos Platz

Maître de l’ouvrage: 
Gemeinde Davos

 

Architecture: 
CURA Architekten

 

Gestion de construction: 
Baulink

 

Structure porteuse: 
Conzett Bronzini Partner

 

Planification CVCS: 
Caviezel Klima + Collenberg Energietechnik

 

Physique du bâtiment: 
Kuster & Partner

 

Protection incendie: 
Bachofner

Facts & Figures

 


Réalisation: 

2024


Coûts: 

14.5 Mio. CHF


Surface de plancher: 

3750 m2


Volume : 

13 500 m3


Approvisionnement énergétique : 
Geothermie


Type de panneaux solaires installés, puissance : 
Typ JAM54S30-420/GR, 38.64 kWp

Magazine

Sur ce sujet