Mehr als ein Haus

Für zwei Bauherrschaften mit benachbarten Grundstücken haben Graser Troxler Architekten in Zürich Oerlikon einen ungewöhnlichen Bau in Stahlbauweise entworfen. Auf der Parzellengrenze stehend, in zwei Hälften mit unterschiedlichem Raumprogramm geteilt, erscheint er doch als konstruktive Einheit.

Publikationsdatum
14-07-2022
Christoph Wieser
Architekturtheoretiker, Dozent an der FHNW für Konstruktion und Verfasser von denkmalpflege­rischen Gutachten

Vieles an diesem Haus ist aussergewöhnlich, die Entstehungsgeschichte ebenso wie die Konstruktion. Mit ihrem Gebäude wollen die Architekten eine spezielle Denkweise zum heutigen Bauen zur Debatte stellen.

Dafür eignet sich der Stahlbau besonders gut, weil ein solcher nicht einfach «gezeichnet» werden kann, sondern «konstruiert» werden muss. Diese feinsinnige Unterscheidung stammt vom Schweizer Architekten Paul Artaria (1892–1959).

Er bezog sie auf den modernen Holzbau, dessen Elemente im Vergleich zur herkömmlichen Massivbauweise viel genauer ausgelegt werden mussten. Hugo Häring – Initiator der Bewegung des Neuen Bauens in den 1920er-Jahren – sprach deshalb von der «Leistungsform», die es zu finden gilt. Vielleicht steht der Stahlbau hierzulande an einem ähnlichen Punkt wie damals das fortschrittliche Bauen mit Holz. Im aktuellen Wohnungsbau ist die Stahlbauweise wenig verbreitet, sodass für jedes Projekt das passende System gefunden werden muss.

Materialgerechtigkeit statt Reinheit

Bezeichnend für das Wohnhaus am Herbstweg in Zürich – und für die Forderung nach umfassender Nachhaltigkeit – ist jedoch, dass man zugunsten einer hybriden Bauweise auf eine «reine» Materialisierung verzichtete: Jedes Material kommt seinen besten Eigenschaften entsprechend und nur dort zum Einsatz, wo es am meisten bewirken kann.

Diese in der Nachkriegszeit in Vergessenheit geratene Tugend ist in Bereichen wie dem Fahrzeugbau längst etabliert. Doch auch in der Architektur gewinnen die Prinzipien des Leichtbaus mit dem Ruf nach einem ressourcenschonenden Einsatz von Baustoffen erneut an Aktualität.

Der amerikanische Architekt, Konstrukteur und Zukunftsforscher Buckminster Fuller (1895–1983) schrieb dazu: «Über die Bauten von Architekten der internationalen Bauhaus-Schule, die das Verhältnis von investierten Ressourcen zu Einheiten der Leistungsfähigkeit angeben. Veröffentlicht auch nur einer von ihnen, was seine Bauten wiegen?»

Heute sind bei der Wahl der Baustoffe neben den grundlegenden Eigenschaften immer häufiger auch die Herkunft, die graue Energie und die CO²-Bilanz entscheidend. Künftig werden, wie Jürg Graser und Beda Troxler betonen, auch die Umweltbelastungspunkte (UBP) an Bedeutung gewinnen. Beim Herbstweg bestehen die primären Bauteile aus Stahl, Beton und Holz, wobei der Stahlbau den Charakter des Gebäudes von innen heraus bestimmt und in den Wohnungen atmosphärisch prägend ist.

Zwei in einem

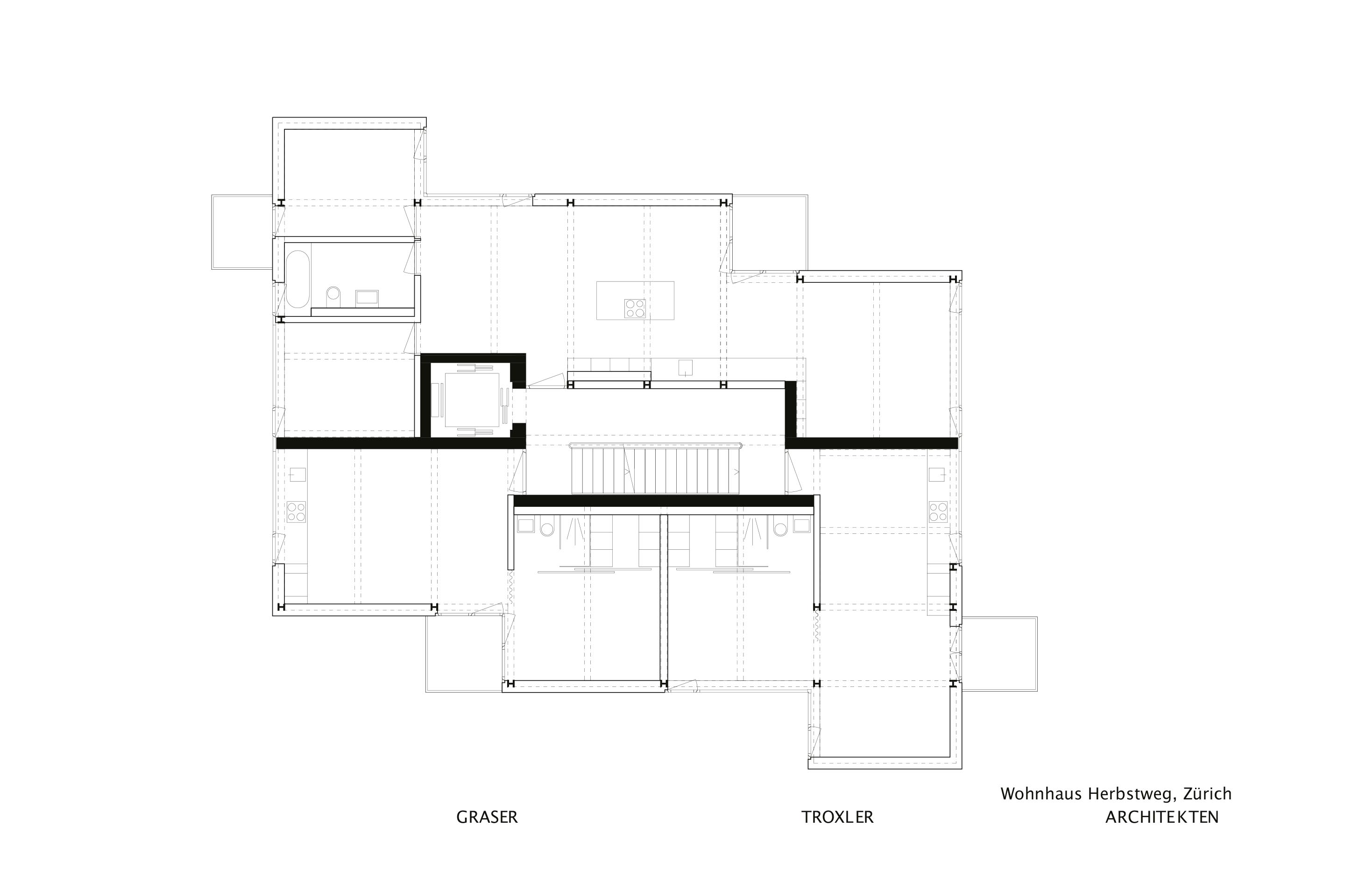
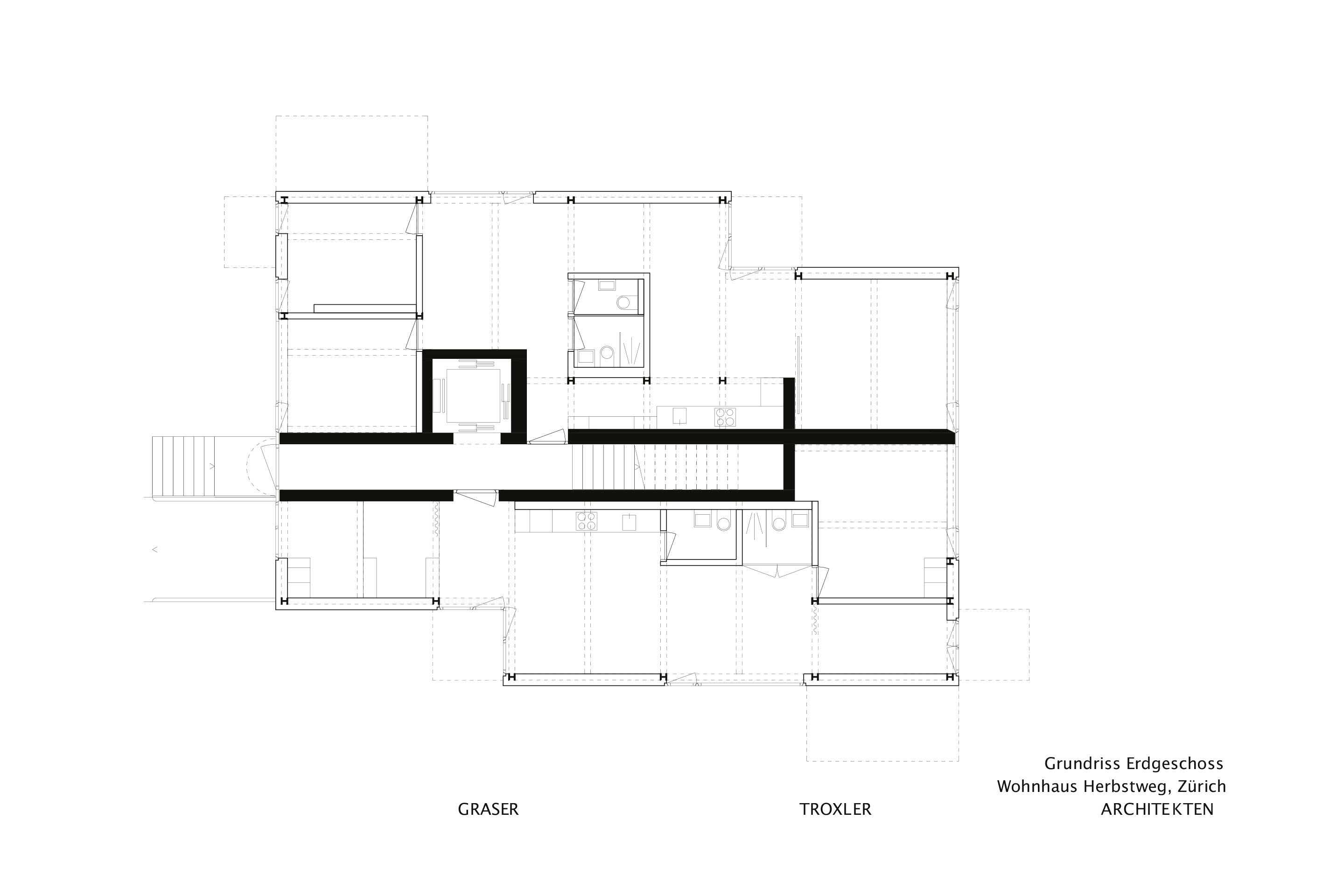
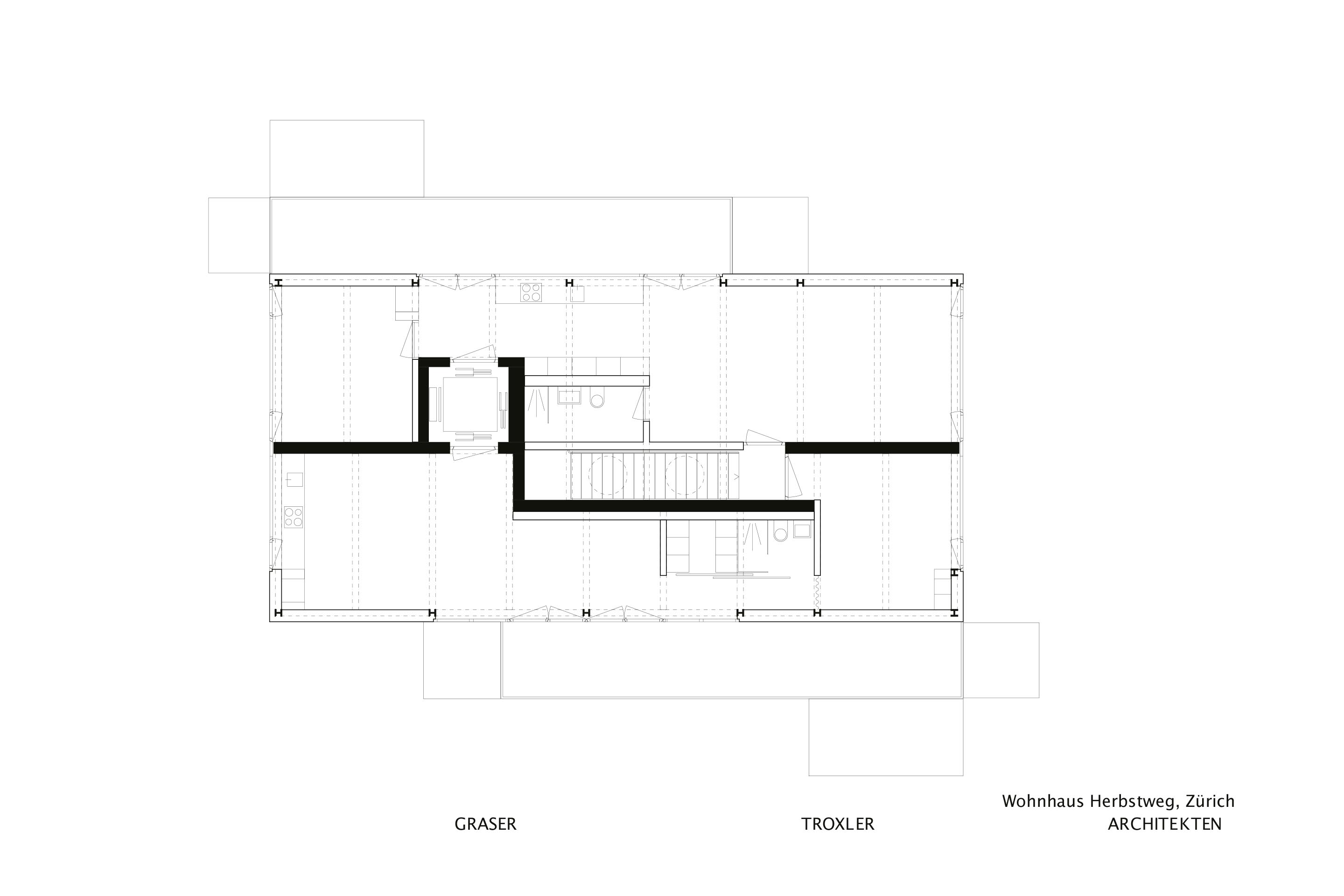
Wo sich heute ein Mehrfamilienhaus mit 13 Wohnungen befindet, gab es vorher zwei zusammengebaute Häuser (Baujahr 1918) mit je sieben Zimmern. Mit dem Neubau konnte die Wohnfläche vervierfacht werden. Eine ähnlich markante innere Verdichtung hat das gesamte Quartier erfasst, das ursprünglich aus kleineren, frei stehenden Mehrfamilienhäusern bestand und seit der Eingemeindung von 1933 die beiden Stadtteile Oerlikon und Schwamendingen miteinander verbindet.

Von der Hauptstrasse aus betrachtet, steht das Wohnhaus am Herbstweg in zweiter Reihe, es überragt mit seiner Höhe aber die Gebäude der näheren Umgebung. Die stadträumlich geschickte Gliederung mit Erkern, Balkonen und Attika kann nicht verhindern, dass sich das neue Volumen bezüglich Besonnung auf das nordseitig angrenzende Haus nachteilig auswirkt.

Eine gewisse Kompensation erfolgt über die Materialisierung der Fassade aus eloxiertem Aluminium, deren feine Profilierung das Tageslicht reflektiert und streut. Weil die Paneele nahtlos um die Ecken geführt sind, wirkt sie wie ein leichtes Kleid, das das Volumen fliessend umhüllt.

Weitere Beiträge zum Bauen mit Stahl finden Sie in unserem E-Dossier.

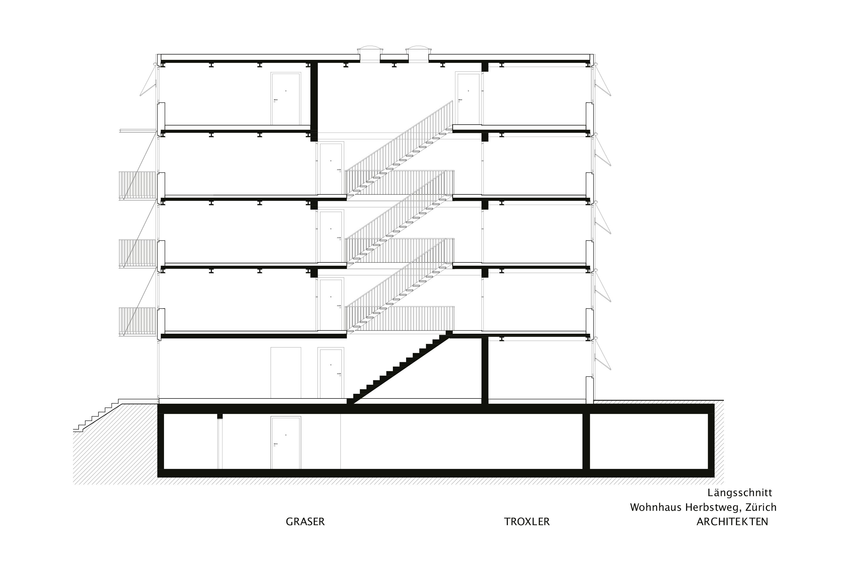
Das Metall verweist auf den Stahlbau. Doch da ist zunächst einmal Beton: Über der Tiefgarage als Basis erhebt sich eine skulptural gefaltete Brandmauer, die das von aussen als Einheit wirkende Gebäude in zwei Hälften teilt. Die Brandmauer ist die Folge der Entstehungsgeschichte. 2019 wurde die Liegenschaft am Herbstweg 4 verkauft. Der neue Besitzer wollte das Gebäude erweitern und gelangte deshalb an die Nachbarn mit der Bitte um ein Näherbaurecht. Diese wiederum wandten sich an Graser Troxler Architekten, weil ihnen deren in Fussdistanz gelegenes Wohnhaus an der Regensbergstrasse (2012) – auch ein Stahlbau, aber ganz anders konzipiert – positiv aufgefallen war.

Eine Studie und baurechtliche Abklärungen ergaben erstens, dass nur ein gemeinsamer Neubau die Nutzungsreserve der beiden Grundstücke optimal ausschöpfen kann, und zweitens, dass eine Auflösung der Parzellenstruktur grosse steuerrechtliche Nachteile mit sich brächte. Deshalb entschlossen sich die Parteien trotz unterschiedlichen Zielen zu einem gemeinsamen Vorgehen.

Die Besitzer vom Herbstweg 6 wollten je eine Wohnung für die Eltern und die beiden erwachsenen Kinder; der Eigentümer vom Herbstweg 4 möglichst viele Kleinwohnungen zum Vermieten. Die Herausforderung bestand somit darin, das längs geteilte Volumen in zwei exakt gleich grosse Flächen zu trennen, die unterschiedliche Besonnung wettzumachen und eine gestalterische Einheit zu erreichen.

Gewerk für Gewerk addiert

Selbstredend sollte für Wände, Decken und Erschliessung möglichst wenig Fläche verbraucht werden. Dank Oberlicht und Treppenstufen aus Gitterrosten ist das schmale, in den Obergeschossen breitere Treppenhaus dennoch angenehm hell. Die Minimierung der konstruktiven Elemente ermöglicht der schlanke Stahlbau industrieller Prägung.

Für Stützen und Deckenträger kamen durchwegs Standardprofile von 16cm zum Einsatz (HEB 160). Dieses Gerüst mit Trägerabständen von 2m ist deshalb so fein gewebt, weil die dünnen Profilbleche der Decken bei solchen Distanzen gerade noch selbsttragend sind. Somit kam die Montage ohne Hilfsmittel aus.

Hier wurde Stahl also nicht wegen seiner Eignung für weite Spannweiten eingesetzt, sondern als leichtes, filigranes Tragwerk in Kombination mit Blechverbunddecken. Die Bleche dienten als verlorene Schalung und wurden anschliessend mit Beton ausgegossen. Diese Bauweise erlaubt keine Auskragungen. Deshalb liegen die Träger und Stützen jeweils am Feldrand – und damit auch in der Fassadenebene.

Zur Reduktion der Wandstärke verwendete man Holzelemente, die mit den Stahlstützen bis aufs bauphysikalisch vertretbare Mass verschränkt sind. Deren Steifigkeit ermöglicht zudem die langen Fensterbrüstungen ohne zusätzliche Unterkonstruktion.

Die ausführliche Version dieses Artikels ist erschienen in TEC21 23–24/2022 «Konstruktion und Kreisläufe».

In steeldoc 03/22 wird das Wohnhaus am Herbstweg neben weiteren Gebäuden unter dem Thema «Rückbaubare Konstruktionen» diskutiert. Ein speziell für die Werkstückhalle der ZHAW erstelltes Mock-up der Konstruktion des Hauses wird am 31. Oktober 2022 mit einem Fachgespräch in die Sammlung eingeführt.

 

-> steeldoc, die Bautendokumentation des Stahlbauzentrums Schweiz (SZS)

 

steeldoc 03/22 erscheint Ende September 2022.

Wohnhaus am Herbstweg, Zürich

 

Architektur / Bauleitung
Graser Troxler Architekten, Zürich

 

Bauingenieur
Büeler Fischli Bauingenieure, Ibach SZ

 

Elektroplanung
HHM Bern

 

HLKS-Planung
NBG Solothurn

 

Bauphysik
Herrmann Partner, Andelfingen ZH

 

Baumeister
Bretscher, Wallisellen ZH

 

Stahlbau
Senn, Oftringen AG

 

Holzbau
Wohlgensinger, Mosnang SG

 

Fenster
Langenegger, Gersau

 

Sonnenschutz
Kästli Storen, Zürich

 

Elektroplanung
Elektro Kasper, Zürich

 

Heizung/Sanitär
Koster, Zürich

 

Aufzug
Schindler, Ebikon LU

 

Schreinerarbeiten/Küchen
Hobel Genossenschaft, Zürich

 

Termine

 

Planung
2018–2019

 

Ausführung
2020–2021

 

Volumen
4256 m³

 

Geschossfläche
1474 m²

 

Baukosten
5.1 Mio. Fr.

Magazine

Verwandte Beiträge