En­er­gie aus dem Bau­kas­ten

Zum 15. Mal hat das Bundesamt für Energie (BFE) in diesem Jahr den nationalen Energiepreis Watt d’Or vergeben. Sieger in der Kategorie «Gebäude und Raum» ist das mit einer innovativen Raumklimatisierung versehene Wohn- und Gewerbehaus «neuRaum» in Horw LU. Der Bauherr will damit den modularen Holzbau in die Zukunft führen.

Publikationsdatum
12-01-2022

Der Name deutet es an: Der «neuRaum» ist Prototyp für ein «RaumRaster» genanntes System, mit dem der Bauherr Walter Schär den Versuch unternimmt, standardisierte Holzbauweise mit energieeffizienter Wärme- und Stromversorgung unter einen Hut zu bekommen. In Personalunion ist Schär zugleich noch Projektentwickler und Bewohner des Hauses.

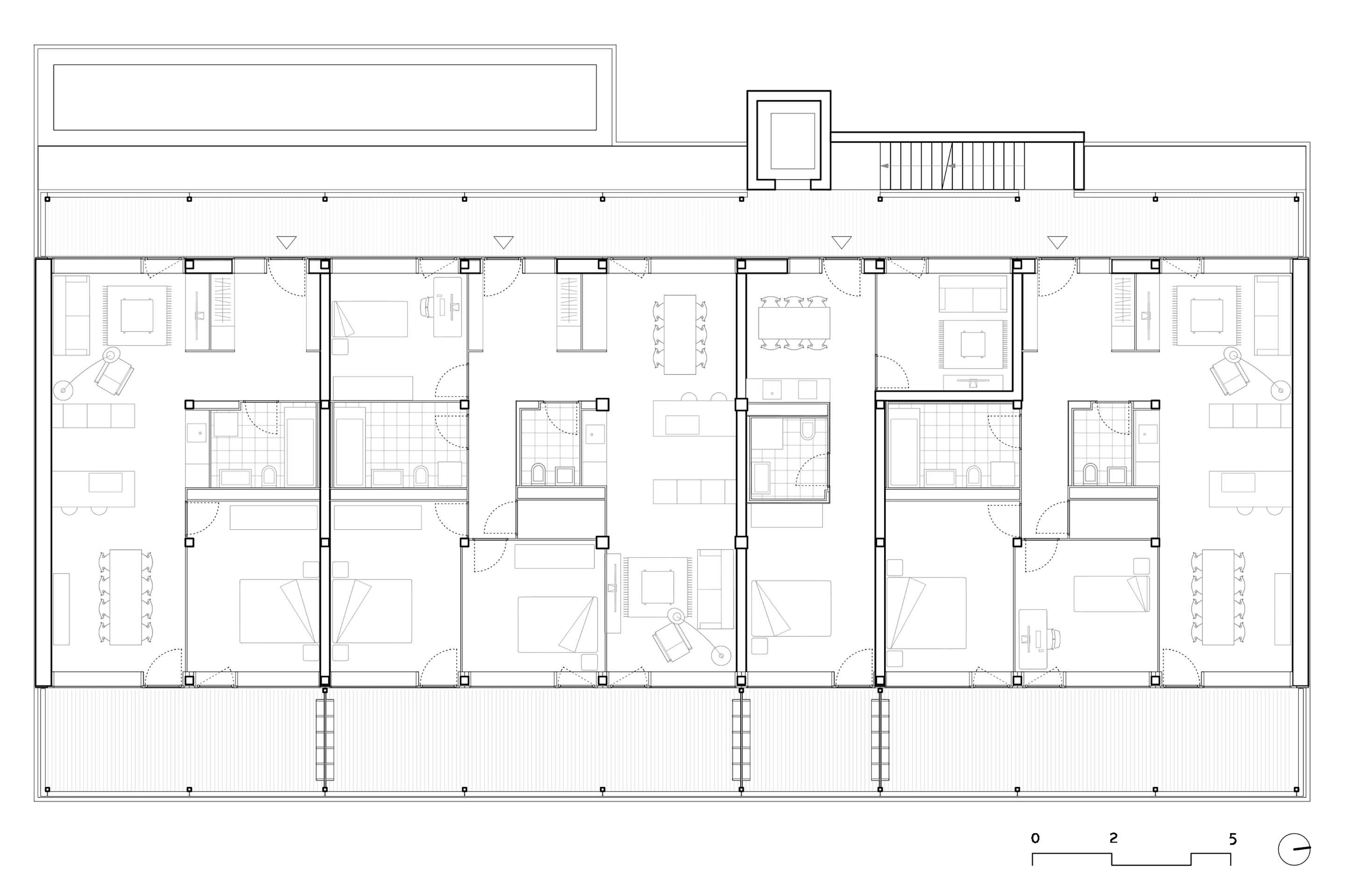
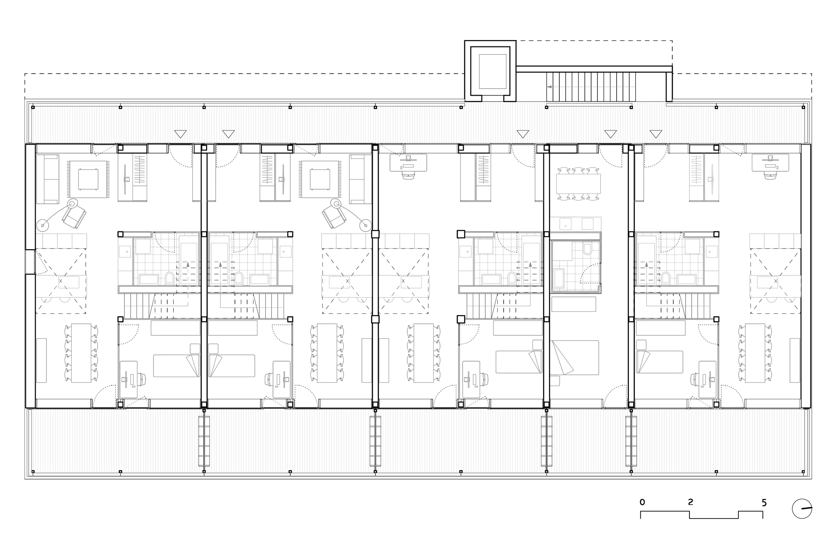
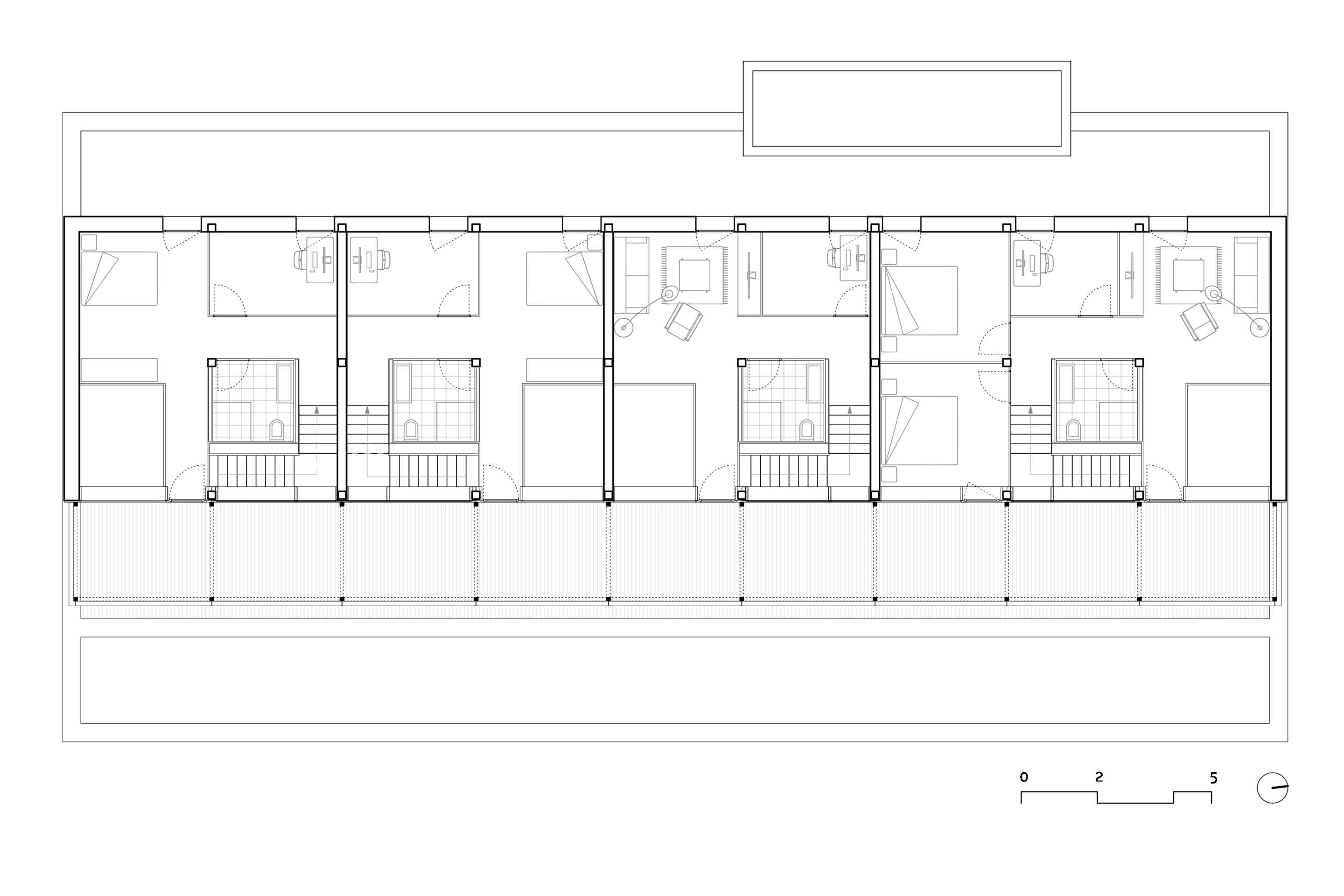
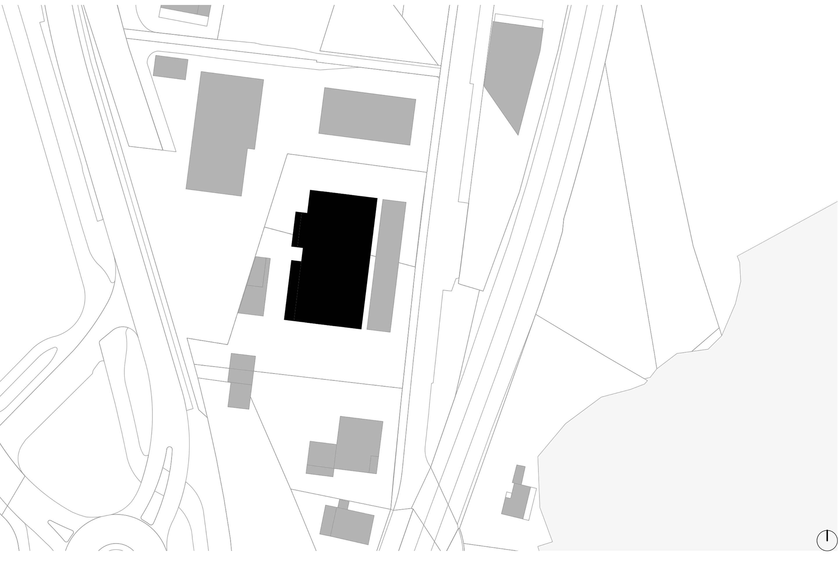
Dem auf einem ehemaligen Gewerbeareal errichteten Neubau in Horw liegt ein von Holz- und Stahlstützen gebildeter Konstruktionsraster von 3.50 x 3.50 x 3.00 m zugrunde, in das sich die einzelnen, frei zusammenschaltbaren Räume einfügen. Im unteren Geschoss sind Ateliers untergebracht, während die (inklusive Attikageschoss) vier oberen Geschosse 13 Wohnungen aufnehmen. Erschlossen werden diese über Laubengänge, denen ein Erschliessungsturm aus Beton vorgesetzt ist. Die Beschränkung der tragenden Bauteile im Wohn- und Atelierbereich auf die Stützen macht flexible Anpassungen bei Grösse und Zimmerzahl möglich, was der Veränderbarkeit und damit der nachhaltigen Nutzung des Gebäudes zuträglich ist.

Das Wohn- und Gewerbehaus plante Schär mit dem Hergiswiler Büro Unit Architekten bis zur Baueingabe. Als erfahrener Holzbauer übernahm der Bauherr die Ausführungsplanung gemeinsam mit dem Büro Bettler aus Zell und vergab den Auftrag für die Holzarbeiten an die inzwischen von seinen Söhnen geführte schaerholzbau ag.

In dieser Konstellation erscheint das «RaumRaster», das als eine Art Baukasten angeboten wird, wie ein profitables Geschäftsmodell. Schär spricht aber nicht von einem Produkt, sondern von einem «Open Source-Modell». Mit dem vorgeschlagenen Bausystem wolle er einen Denkanstoss für das nachhaltige Bauen geben.

Energetisches Update

Allen Wohnungen gleich ist die zentrale Positionierung eines gebäudetechnischen Moduls, in das neben Badezimmer und Spüle sämtliche Anlagen für Heizung, Lüftung und Kühlung integriert sind – etwas irreführend «Kachelofen 2.0» genannt. Zwar erinnert der Ausdruck daran, dass das ziemlich alte Prinzip der Luftheizung dank Konvektoren ein Update erfahren hat. Die gängige Vorstellung des wärmeabstrahlenden Ofens aber bedient die Box nicht, vielmehr ist sie eine kompakte Installationseinheit für die sanitären und haustechnischen Installationen – knisterndes Feuer exklusive.

Die Wärmeenergie kommt anderswoher: Eine Wärmepumpe, die sich geothermisch versorgt, liefert die Grundwärme, den Strom für den Betrieb der Gebäudetechnik erzeugt eine eigene Photovoltaikanlage. Innerhalb der Wohnungen erfolgt der Wärme- beziehungsweise Kältetransport auf Niedertemperaturniveau. Dazu wird die Raumluft aktiviert, weitere Installationen in den einzelnen Räumen sind nicht nötig. Einzig der Luftaustausch zwischen ihnen muss mit Ventilationselementen über den Zimmertüren sichergestellt werden.

Die konsequente Kombination dieser Komponenten zur Raumklimatisierung mit einem standardisierten Skelettbau, der die Wärmespeicherung nicht mithilfe seiner Masse bewerkstelligen kann, macht einen weiteren innovativen Ansatz des «RaumRasters» aus. Dank einem hohen Grad vorfabrizierter Bauteile und -komponenten profitiert die Bauherrschaft von einem schnellen «Return on Investment»: Das Haus in Horw war nach nicht einmal acht Monaten bezugsfertig. Dies dürfte das System für künftige Bauherren ökonomisch interessant machen.

Der Watt d’Or wird für «aussergewöhnliche Leistungen im Energiebereich» vergeben, deshalb war die Energiebilanz des Gebäudes ein wichtiges Kriterium für die Prämierung. Übers Jahr gesehen soll der «neuRaum» die doppelte Menge des benötigten Stroms selbst produzieren – überschüssige Energie, die in einem 54 kWh fassenden Akku gespeichert und vor allem ins lokale Stromnetz eingespeist werden kann.

Dies ist indes ebenso abhängig von jahreszeitlichen Schwankungen wie von zeitlichen Verschiebungen bei Stromproduktion und -konsum, sodass auch das Haus in Horw nicht ohne netzbezogenen Strom auskommt. Basierend auf Betriebsdaten des ersten Halbjahrs 2021 konnten 40 % des vor Ort produzierten Stroms intern konsumiert werden, 60 % wurden ins öffentliche Stromnetz eingespeist – bei gleichzeitigem Netzbezug von rund 40 %.

Überschüssige Wärme kann über Erdsonden im Boden eingelagert werden. Das Verwenden regional gewonnener und verarbeiteter Hölzer ist ein probates Mittel sowohl zur Reduktion grauer Energie als auch zur lokalen Wertschöpfung. Beim «neuRaum» kommt das Fichten-, Weisstannen- und Buchenholz aus der Schweiz, allerdings ebenso aus dem deutschen und österreichischen Alpenraum. Auch die Frage der zukünftigen individuellen (Auto-)Mobilität ist bei dem gut ans öffentliche Verkehrsnetz angeschlossenen Haus mitbedacht: Hauseigene Elektroautos können nach dem Carsharing-Prinzip genutzt und mithilfe des Stroms aus den Photovoltaikmodulen geladen werden.

Im Raster-Korsett

So effizient das Verweben der haustechnischen Anlagen im «neuRaum» auch gelingt, mag doch just in diesem Punkt eine Anfälligkeit erkannt werden: Sie bedürfen der Wartung und müssen eines Tages womöglich durch neue ersetzt werden. Wie gut sie in 20 Jahren funktionieren, wird sich erst noch erweisen müssen. Einen radikaleren Suffizienzansatz mit Verzicht auf technische Hochrüstung erkunden aktuell etwa drei vom Münchner Architekten Florian Nagler entworfene Versuchshäuser in Bad Aibling, von denen eines ein Holzbau mit grosser thermischer Speichermasse ist.

Die konstruktive und architektonische Ausformulierung des «neuRaums» ist wenig innovativ. Vielmehr ist das Prinzip des vorgefertigten Holzbaus – wie er im frühen 20. Jahrhundert spätestens durch Unternehmen wie Christoph & Unmack etabliert war – ein logischer Schritt zur Kostenreduktion. Damit einher geht auf lange Sicht das Einsparen von Planungsleistung, wenn denn das System in der mit dem Prototyp realisierten Weise bei späteren Projekten fortgeführt wird.

Die Gliederung von Baukörpern und Räumen im Raster ist natürlich ebenfalls alles andere als neu. Weitet man den Blick über den Holzbau hinaus, so mag Otto Steidles Wohn- und Bürohaus Genter Strasse in München aus dem Jahr 1972 ein Beispiel für ein ähnlich geartetes Modell abgeben, das ungeachtet des Korsetts seiner (energetisch katastrophal schlechten) Betonstruktur grosse Freiheiten bei Raum- und Grundrisslösungen bot.

Im «neuRaum» hat die Pragmatik des Bauens im Raster ihre gestalterische Kehrseite: In strenger Kastenform bleibt das Haus – dieses Wortspiel sei erlaubt – doch recht hölzern. Schon das Wechselspiel geschlossener Räume und offener Loggien respektive Laubengänge aber dürfte einen Weg zu einer gefälligeren Durcharbeitung zukünftiger Bauten dieses Systems weisen.

Bei der Preisverleihung am 6. Januar jedenfalls sprach Schär mit Blick auf die Rasterung des Prototyps von «Regeln» als Vorbedingung von «Freiheit», diese aber müssten «spielerisch angewandt werden» können. So darf man auf weitere Bauten hoffen, die neben der energetischen Vorbildhaftigkeit auch ungenutzte architektonische Potenziale des Systems erkunden.

Der Watt d’Or

Das Bundesamt für Energie (BFE) vergibt jährlich den (undotierten) Energiepreis Watt d’Or. Mit der 2006 ins Leben gerufenen Auszeichnung in Form einer Schneekugel werden Projekte, Personen oder Organisationen prämiert, die «Energietechnologien der Zukunft» vorantreiben und Standards setzen für praktische Lösungen im Bereich der Energieeffizienz, «die unseren hohen Ansprüchen an Komfort, Ästhetik und Wirtschaftlichkeit gerecht werden», so die Ausloberin.

Preise

 

Gebäude und Raum
schaerraum ag für das Wohn- und Gewerbehaus «neuRaum» in Horw


Energietechnologien
Schweizerischen Bundesbahnen (SBB) für ihr Konzept der Laststeuerung zur Stromeinsparung bei Lastspitzen

 

Erneuerbare Energien
Verora AG für ihr Verfahren zur Herstellung von Pflanzenkohle

 

In der Kategorie «Mobilität» ist in diesem Jahr keine Auszeichnung vergeben worden.