Ein Ka­lei­do­skop un­ter der al­ge­ri­schen Son­ne

Collagen, Referenzen, Fragmente: Beim Wettbewerb für die Residenz des Schweizer Botschafters in Algier wurde der Ideenreichtum der Architekten belohnt. Statt kontextueller Anleihen finden sich ­darin Bezüge zur Kunst- und Architekturgeschichte sowie zur eigenen Praxis. Die Jury unterstützt damit eine Haltung, die für eine architektonische Autonomie eintritt und mutige Varianten zur traditionellen Pavillontypologie einer Botschaft liefert.

Publikationsdatum
09-11-2020

Die Zutaten für das überraschende Projekt der künftigen Residenz in Algier sind eher in den Hinterhöfen des Zürcher Binz-Quartiers als in Algerien zu finden. Dort wird die Idee der «Fragmentierung der architektonischen Elemente», die den Projektverfassern Oliver Lütjens und Thomas Padmanabhan so am Herzen liegt, offensichtlich.

Begibt man sich ins Atelier der Architekten, überquert man einen Hof zwischen Künstlerateliers und -depots, wo sich Blech, Holz, Fliesen und Glas angesammelt haben und Autos und Lieferwagen parkieren. Man passiert ein Gebäude mit Öffnungen aus einfachen, aus dem Feinputz ausgeschnitten Rechtecken, schlüpft in das Gewirr der Volumen, klettert einige Stufen hoch, stellt sich neben die metallenen Stege und findet den Eingang im Schatten der hohen Bäume, die den schmalen, mit Blättern bedeckten Weg überdachen.

Ein Blick durch eine breite Glastür genügt, um einen Eindruck der grosszügigen, hellen Werkstatt zu erhalten. Von dort steigt man noch ein paar hölzerne Stufen auf zwei Stahlwangen hinunter, um zu den langen, auf Stativen gesetzten Tafeln zu gelangen – und den beeindruckenden Modellen aus weissem Karton im Massstab 1 : 20 darauf. Eines davon ist das ­Projekt «Papillon», das die Architekten für die neue Residenz des Schweizer Botschafters in Algier entwarfen.

Von diesem Arbeitsplatz in Zürich aus schaffen die Architekten von Lütjens Padmanabhan eine lebendige und wagemutige Architektur. Mit einer urbanen Collage, so vielfältig wie das Quartier Binz, haben sie eine originelle Antwort auf die Frage nach der Repräsentativität einer Residenz des Schweizer Botschafters gefunden, oder – wie es im Jurybericht heisst – «wie man die Werte Offenheit, Integration und Innovation vermitteln und gleichzeitig eine offenkundige Sachlichkeit»1 vermitteln kann.

Für die Residenz lehnen Lütjens Padmanabhan jegliche Form des Orientalismus rigoros ab und setzen vielmehr auf ei­ne entspannte Ausdrucksform – eine nicht kontextualisierende Haltung, die typisch für ihr Werk ist2: Arbeiten sie in der Schweizer Agglomeration, betrachten sie die einzelnen Bauten als eigenständige und isolierte Objekte im städtischen Gefüge.

In Algerien ist ihr Projekt aber auch teilweise eine Antwort auf die von Bakker und Blanc gestaltete Botschaft, die 2013 fertiggestellt wurde. Mit ihrer Maschrabiyya-Fassade und der klaren Volumetrie verfügt diese bereits über eine dem Standort angemessene Monumentalität und stellt einen ausreichenden Bezug zur mittelalterlichen und arabischen Kunst her.

Pavillon-Collage

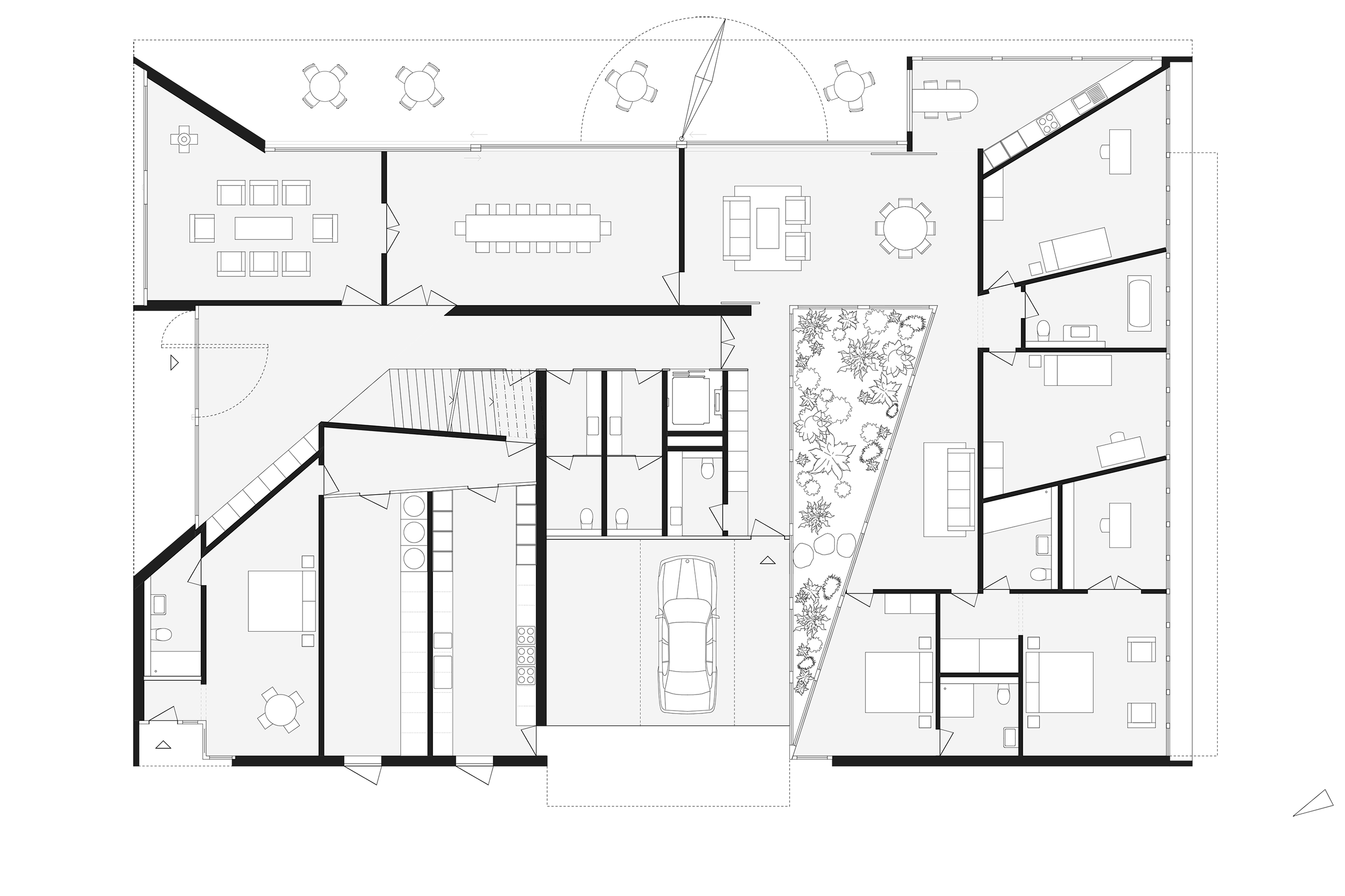
«Papillon» ordnet fast das ganze Programm auf einer Ebene an und gehört so auch zu den ökonomischsten Projektvorschlägen. Das Projekt ist als grosser Gartenpavillon konzipiert. Der Entwurf misst sich unweigerlich mit dem von Ludwig Mies van der Rohe für die Weltausstellung 1929 in Barcelona entworfenen Pavillon: eine grossartige Dachfläche, ­unter der alle konstruktiven und programmatischen Elemente vereint sind.

Um dem Miesianischen Prototyp zu entkommen, hoben Lütjens Padmanabhan sozusagen die Aussenwände an und brachten die Dachplatte zum Verschwinden. Die mit Faserzementtafeln verkleideten Fassaden und die grosszügigen Vordächer bieten schattige Aussenräume da, wo sie nach hinten versetzt angeordnet sind. Jede monolithische und monumentale Wirkung wird dadurch aufgehoben.

Um die Einfachheit des Miesʼschen Pavillons in Barcelona wettzumachen, wenden sich die Architekten einer anderen prominenten Figur zu: Picasso und seinem kubistischen Gemälde «Aficionado» aus dem Jahr 1912. Der Maler experimentierte hier mit der Verwendung von Collagen und Assemblagen aus Scherenschnitten: Banderillas, eine Gitarre, im Gemälde auftretende und verschwin­dende Hörner.

In Algier wird die Entwurfsidee durch die Gegenüberstellung heterogener, expressiver oder rationaler Prinzipien auf ähnliche Weise fragmentiert – ein Mosaik an Systemen, aus denen räumliche Figuren abgeleitet werden, ein Streben nach Ambivalenz. Bei der Betrachtung der Pläne tauchen diese Figuren auf und verschwinden gleichzeitig wieder. Sind sie einmal gebaut, wird man von den auf den Mauern angebrachten geometrischen Motiven begleitet werden. Den Reichtum an Wegen und die zahlreichen räumlichen Entdeckungen kann man sich bereits vorstellen. Es handelt sich um einen «kaleidoskopischen Plan», der dazu einlädt, sich «wie in einem Garten» zu bewegen.3

Durch die räumliche Durch­lässigkeit setzt sich der Weg von den repräsentativen Räumen und durch die Loggia in Richtung des Palmengartens fort. In Barcelona waren die modernis­tischen Räume offen und miteinander verbunden. In Distanz zur puristischen Abstraktion ist in Algier das Raumgefüge gekammert und fliessend zugleich.

Konstruktiv erweist sich die Strategie der Architekten, einen postmodernen Pavillon vorzuschlagen, der aus mit Faserzementtafeln verkleideten Fassaden und Vordächern sowie grossen Holzfenstern zusammengesetzt ist, als angemessen. Im Nachkriegsalgerien begünstigten die Erträge aus den Erdölvorkommen Importe im grossen Stil und schwächten so das lokale Handwerk. Die Fassadenelemente und die Fenster werden daher aus der Schweiz importiert und von einem lo­kalen Bauunternehmen montiert. Der Beton wird vor Ort gegossen, auch der Marmor stammt aus Algerien.

Das Verfahren

Es ist deshalb so erfreulich, über das ­Siegerprojekt sprechen zu können, weil dieser Architekturwettbewerb auch weitere hervorragende Ergebnisse hervorgebracht hat. Das Bundesamt für Bauten und Logistik BBL wählte eine Jury aus, die in der Lage war, das vielfältige Repertoire der ausgewählten Architekten zu beurteilen.

So entspricht beispielsweise das Projekt von Made in (3. Rang, 1. Anerkennung) nicht den Wettbewerbsregeln, erweitert aber den Umfang der Fragestellung. Diese neuen Sichtweisen schaffen die Grundlage für Jury und Auftraggeber, die angemessenste Antwort auf die Problemstellung zu finden. Dank den Mechanismen des Wettbewerbs wurde für die Residenz in Algier ein Vorschlag unterstützt, der «ebenso überzeugend wie überraschend» ist, wie es im Bericht der Jury heisst. Fast wagt man, von einladenden, unter der Loggia servierten Mahlzeiten zu träumen oder von köstlichen Aperitifs, die im Palmenhain oder auf der Panoramaterrasse mit Blick auf das Meer genossen werden.

Um noch vorbildlicher zu sein, wäre es wünschenswert, dass das BBL in Zukunft mehr Büros der nächsten Genera­tion berücksichtigt, die noch keine vergleichbare Referenz aufweisen. Das ist ein Vorgehen, das sich in der Schweiz bei einigen Organisatoren von Projektwettbewerben glücklicherweise etabliert hat. Es führt zu einer stärkeren Vielfalt und ermöglicht es gleichzeitig, den Nachwuchs zu fördern.

Anmerkungen


1 Bericht der Jury, Residenz des Schweizer Botschafters in Algier, Architekturwettbewerb, BBL, 2018.


2 «Beyond context», Vortrag vom 7. November 2016 an der Eidgenössischen Technischen Hochschule Lausanne.


3 luetjens-padmanabhan.ch/de/projects/algier

Am Bau Beteiligte

 

Bauherrschaft
Schweizerische Eidgenossenschaft, Bundesamt für Bauten und Logistik
Projektleiter: Josiane Imhof

 

Architektur
Lütjens Padmanabhan Architekten, Zürich

 

Baumanagement
Vollenweider Baurealisation, Schlieren
MLM Mohamed Larbi Merhoum, Algier (Algerien)

 

Tragwerksplanung
SJB Kempter Fitze AG, Frauenfeld;
Djamel Tebaili (MLM), Algier (Algerien)

 

Energieplanung
Waldhauser + Hermann AG, Münchenstein;
Mounir Bouguettaya, Algier (Algerien)

 

Gebäudetechnik
Waldhauser + Hermann  AG, Münchenstein;
Mounir Bouguettaya, Algier (Algerien)

 

Bauphysik
Zimmermann & Leuthe GmbH, Aetigkofen

 

Akustikplanung
MEP Akustik & Bauphysik AG, Luzern

 

Elektroplanung
fux & sarbach Engineering AG, Gümligen
Amira Bachar, Algier (Algerien)

 

Sanitärplanung
Mounir Bouguettaya, Algier (Algerien)

 

Sicherheitstechnik
SBS Ingenieure, Bern

 

Facts & Figures

 

Nutzung
Residenz

 

Wettbewerb im selektiven Verfahren, 2017

 

Planung
2018–2019

 

Ausführung
2020–2021

 

Grundstücksfläche
5342 m2

 

Gebäudevolumen SIA 416
2342 m3

 

Geschossfläche SIA 416
677 m2

 

Hauptnutzfläche SIA 416
519 m2

 

Gesamtkosten BKP 1–9
2.89 Mio CHF

 

Verwandte Beiträge