«Wir er­bau­en Städ­te aus Ge­bäu­den, nicht auf­grund gros­ser Mas­ter­plä­ne»

Swiss Architectural Award

Das Pariser Büro Bruther ist der Gewinner des Swiss Architectural Award 2020. Die Gründer Stéphanie Bru und Alexandre Thériot sprechen über die Auszeichnung für ihren architektonischen Ansatz, sich beharrlich für die Förderung von Bauten als politisches und soziales Instrument einzusetzen.

 

Publikationsdatum
31-03-2021
Yony Santos
Head of education espazium.ch | Architekt | Redaktor

espazium.ch: Zuerst die klassische Frage: Was bedeutet Ihnen diese Auszeichnung?

Stéphanie Bru: Wir hatten das überhaupt nicht erwartet und waren sehr überrascht. Vor allem ist es sehr befriedigend zu sehen, dass unsere Architektur aus vielen nominierten, allesamt sehr qualifizierten Architekten ausgewählt wurde.

Ziel des Swiss Architectural Award ist es, «eine Architektur zu fördern, die sich mit ethischen, ästhetischen und ökologischen Fragen auseinandersetzt, indem der öffentliche Diskurs darüber vorangetrieben wird». Wo ist Ihre Architektur anzusiedeln, und mit welchen dieser Themen identifizieren Sie sich?

Stéphanie Bru: Es ist schwierig, unsere eigene Arbeit zu definieren. Unsere Projekte scheinen in diese Beschreibung zu passen. Sicher deshalb, weil alle drei Aspekte miteinbezogen wurden und sich die Waage halten. Alle unsere Projekte verbindet, dass sie uns erlauben, Standards zu hinterfragen in der Art, wie wir das in unserer letzten Publikation über den Hyperkomfort -Dixit#01- beschreiben. Darin geht es eben genau um diese Neudefinition von Wohlfühlstandards in der Architektur.

Alexandre Thériot: Wir versuchen den Ansatz zu verfolgen, vor allem auf soziale Fragen zu antworten, und nicht – zumindest nicht bewusst – von ästhetischen oder stilistischen Vorstellungen angetrieben zu sein.

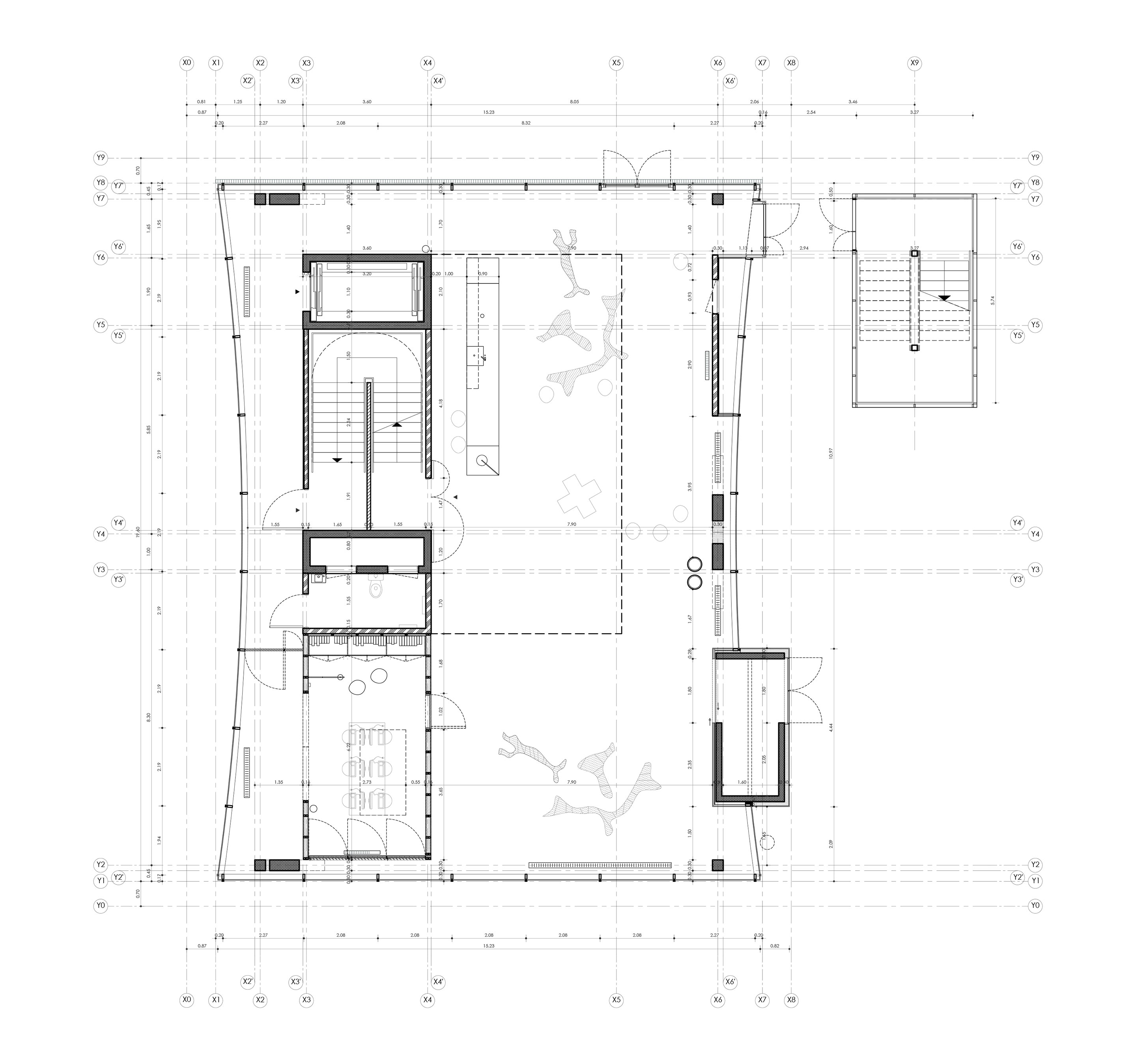
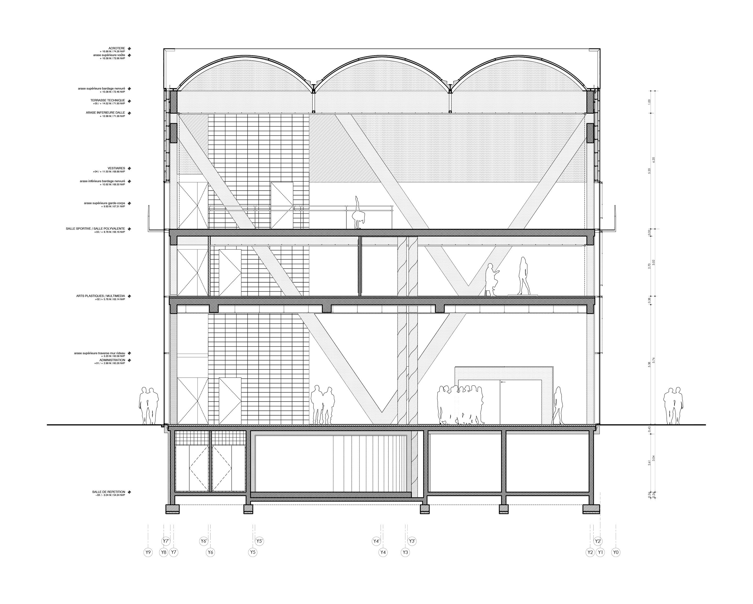
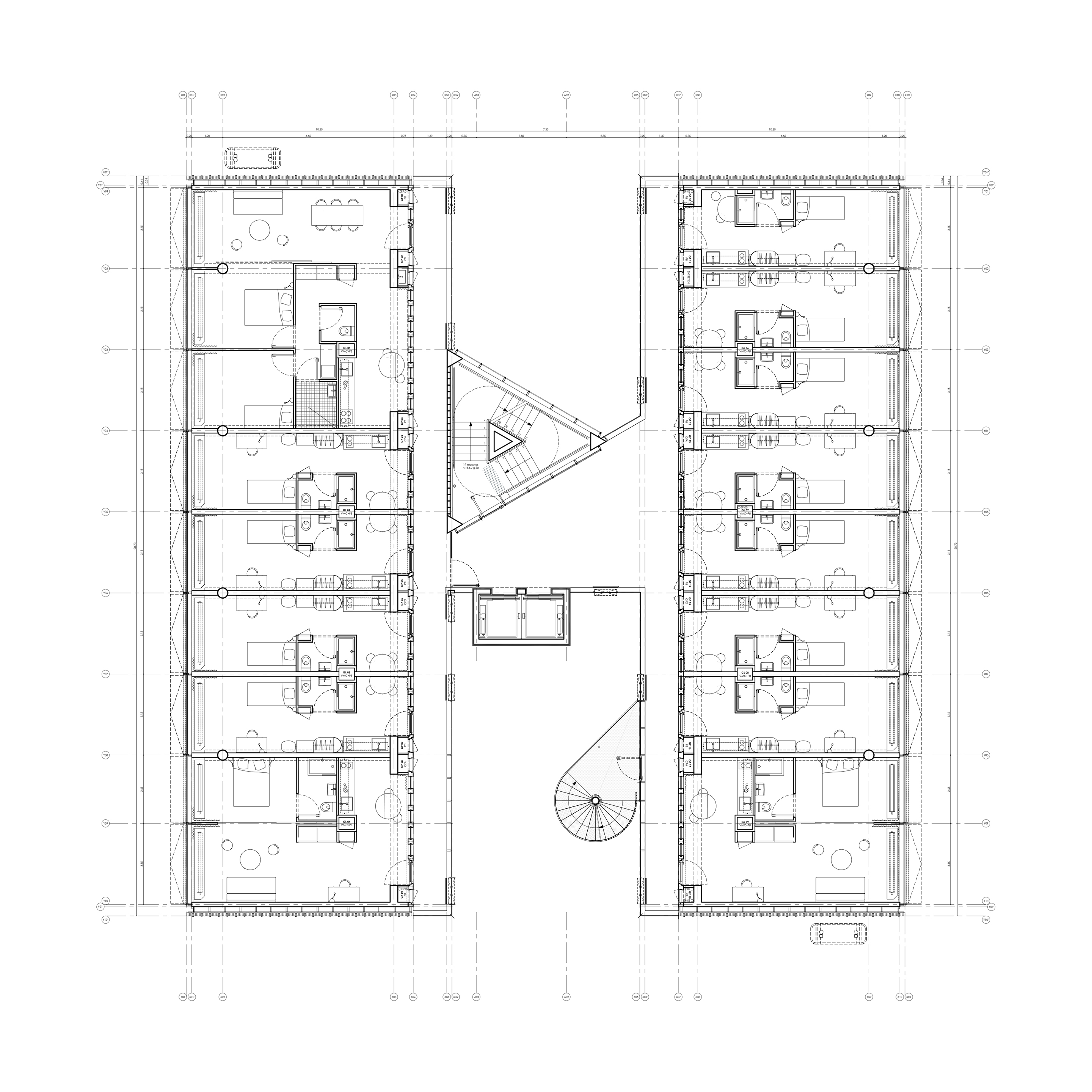
Sie haben den Preis für drei Projekte bekommen, die sich alle in der Peripherie grosser Städte befinden. Kann die Architektur in einem solchen Kontext als gesellschaftliches Instrument fungieren?

AT: Diese Gegenden werden oftmals vernachlässigt. Nicht wegen der dort vorherrschenden Bedingungen, sondern wegen ihrer Lage abseits der Stadt. Wir versuchen an diesen Orten durch unser architektonisches Handeln einen Ausgleich zu schaffen. Wir arbeiten gern in diesen Gegenden, weil wir da auf soziale Fragen reagieren müssen. Unsere Antwort besteht darin, dass wir die Stadt aus Gebäuden erbauen und aufgrund grosser Masterpläne.

SB: Unsere Werke sind in etwas angespannten sozialen Kontexten angesiedelt, das stimmt. Aber dadurch, dass wir selbst in Vororten aufgewachsen sind, können wir mit einer gewissen Natürlichkeit auf diese Art Umgebung reagieren. Wir möchten aber vermeiden, dass diese eher stadtplanerischen Fragen unseren Ansatz verzerren, der vor allem architektonischer Natur ist. In der Funktion als Energieträger überzeugt uns die Architektur viel mehr als die Stadtplanung.

Auf Ihre Antwort bezogen: Speisen sich Ihre architektonischen Prinzipien aus diesen eher heterogenen und diffusen urbanen Umgebungen?

AT: Der heterogene Charakter dieser Kontexte stimuliert uns ganz besonders. Wie erschafft man nicht mit der Wiederholung von Elementen eine Form von Identität, sondern mit einer Form von Komplementarität? Wie gehen wir mit Kontexten um, die eine Reihe von «Unreinheiten» aufweisen? Diese Fragen interessieren uns, weil sie konfrontierend wirken. Das Zusammenleben von unterschiedlichen Fragmenten braucht es nicht nur in der Architektur, sondern auch in unserer Gesellschaft. Wir glauben mehr an die Verknüpfung von Logiken und Systemen als an die Suche nach einer Form von Reinheit.­

SB: Es sind Kontexte, die uns stimulieren und die unsere Fantasie anregen. Das nennen wir in unserem Büro «Umgebungsnutzer». Auch in unserer Funktion als Dozenten behandeln wir diese Art von Kontexten gern mit unseren Studierenden.

Sie sind Vertreter einer Generation von Architekten, die ihre Büros während einer speziellen Epoche gründeten, nämlich während der Wirtschaftskrise von 2007. Welchen Einfluss haben diese wirtschaftliche Situation und diese Rezessionsjahre auf ihre Architektur?

SB: Die transversale Praxis ist eine der Fragen, die uns am meisten beeinflussten, als wir unser Büro gründeten. Wir wurden hauptsächlich mit Wohnbauprojekten betraut, die auf wirtschaftlicher Ebene sehr herausfordernd waren. Im Wohnungsbau ist alles sehr teuer, wohingegen es in anderen architektonischen Typologien wie Büroräumen möglich ist, effizientere Lösungen zu finden. Die Auseinandersetzung mit der Transversalität ist eine der Möglichkeiten, die es uns erlaubte, an diese erste Zeit im Beruf positiv heranzugehen.

AT: In unserer Arbeit sprechen wir oft von Aktion–Reaktion. In diesem Sinn war die wirtschaftliche Situation eine der Herausforderungen, der wir uns stellten, indem wir systematisch passende Lösungen suchten, die uns erlaubten, ohne grosse Mittel Architektur zu betreiben. Wir haben versucht, diese Situation nicht als Nachteil zu empfinden, sondern als Möglichkeit, diesen zufälligen Faktor in unsere Architektur zu integrieren und in eine stimulierende Kraft zu verwandeln.

Sie entwickeln zusammen mit BAUKUNST ein Projekt in Lausanne, den Campus von Dorigny, und unterrichten an der ETH Zürich. Was lernen Sie aus Ihren helvetischen Erfahrungen?

AT: Sie bieten uns die Möglichkeit, in einem ständigen Zustand der Unwissenheit zu sein. Am Anfang unserer Selbstständigkeit mussten wir eine Reihe von administrativen und grundlegenden Herausforderungen meistern. Die Tatsache, dass wir unsere Tätigkeit ins Ausland exportieren, bietet die Möglichkeit, uns beruflich neu zu erfinden und das, was wir in der Vergangenheit gelernt haben, infrage zu stellen.
In Bezug auf die Praxis gibt es einen erheblichen Unterschied zwischen den beiden Kulturen. Vor allem, was die zeitliche Dimension angeht und das Verhältnis zur Bauzeit, das sind zwei der kulturellen Hauptunterschiede zwischen den beiden Ländern. Das Unterrichten ist ganz einfach eine bereichernde Erfahrung, die an die Praxis von Architekten und Erbauern anknüpft und sie vervollständigt.

Frankreich wird mit dem Pritzker-Preis an Lacaton Vassal und Ihrem Swiss Architectural Award eine grosse Ehre zuteil: Zeugen diese Preise von einer Bewegung zugunsten der Architektur, die zurzeit in Frankreich gebaut wird? Sehen sie Gemeinsamkeiten mit der Arbeit von Anne Lacaton und Jean-Philippe Vassal?

SB: Wir freuen uns wirklich für sie und für die Architektur, dass Anne und Jean-Philippe den Preis bekommen haben. Sie zeigen einen Weg auf, der die Architektur in unserer hoch komplexen Gesellschaft gehen kann, und es ist zweifelsohne wegen dieser Selbstverständlichkeit, mit der sie das tun, dass der Pritzker-Preis auf ihre Architektur aufmerksam machen will. Es ist auch eine Auszeichnung für ihre unermüdliche Arbeit. Die Architektur ist kein kurzer Kraftakt, sondern ein Engagement über sehr lange Zeit hinweg.

AT: Bewundernswert ist vor allem dieses Engagement über dreissig Jahre hinweg und das Festhalten an einer präzisen und fast unverrückbaren Leitidee. Und dies vor einem Hintergrund – Frankreich –, wo die private Immobilienwirtschaft in der Architektur fast komplett die Oberhand gewonnen hat. Die Gelegenheiten, qualitative Arbeit zu liefern, sind rar gesät, und es zu schaffen, das über lange Jahre hinweg zu tun, ist ein beachtliche Leistung.
Ihre Herangehensweise ist sowohl sehr pragmatisch als auch wertschöpfend. An ihrem Werdegang ist sehr schön zu sehen, dass sie diese Hartnäckigkeit haben herauszuarbeiten, was in der Architektur wichtig ist, und sich dabei nicht nur an Architekten zu wenden, sondern auch an die Gesellschaft im Allgemeinen. Diese Hartnäckigkeit ermutigt uns, unserer Arbeit unermüdlich nachzugehen.

Sie sind auf dem Höhepunkt Ihrer beruflichen Karriere. Mit welchen Herausforderungen und Konflikten möchten Sie sich in Zukunft noch intensiver auseinandersetzen? In welche Richtung soll sich Ihr architektonisches Schaffen in Zukunft entwickeln?

AT: Wir dachten nie daran, Karriere zu machen, deshalb ist es schwierig, darauf eine gute Antwort zu geben. Wir haben viele Überzeugungen, aber sehr wenig Sicherheiten, was uns aber nicht daran hindert, uns jedes Mal mit den gleichen Themen auseinanderzusetzen und zu versuchen, sie zu verbessern und sie möglichst spezifisch und einzigartig zu gestalten. Wir sind bemüht, während aller Projektphasen wie auch im Alltag eine Form von Unschuld und Unbefangenheit zu bewahren.

SB: Natürlich drängen sich durch die konstante Suche und die Innovation neue Produktionsmittel auf, aber es ist vor allem der Blick und die Haltung, die wir in unserer Arbeit langfristig als Konstante behalten möchten.

7. Swiss Architectural Award 2019/2020


Preisträger: Bruther - Stéphanie Bru und Alexandre Theriot, Paris


Jurymitglieder: Mario Botta (Vorsitzender), Riccardo Blumer, João Luís Carrilho da Graça, Dieter Dietz, Christophe Girot.


Die siebte Auflage führte erstmals die drei Schweizer Architekturhochschulen zusammen: die Università della Svizzera italiana – Accademia dell’ architettura; die EPF Lausanne – ENAC, und die ETH Zürich – Departement Architektur. Die drei Hochschulen waren in der Jury vertreten.


Die Preisverleihung findet am 1. April 2021 im Auditorium des Auditorio del Teatro dell'architettura der Università della Svizzera italiana in Mendrisio statt. Bei dieser Gelegenheit wird auch die Ausstellung eröffnet, die die 33 Nominierten aus 19 Ländern zeigt. Die Schau ist vom 2. April bis zum 24. Dezember 2021 zu sehen.

Weitere Informationen finden sich auf der Website des Swiss Architectural Award.

Verwandte Beiträge