Sa­clay: gi­gan­ti­sme à la fra­nçai­se

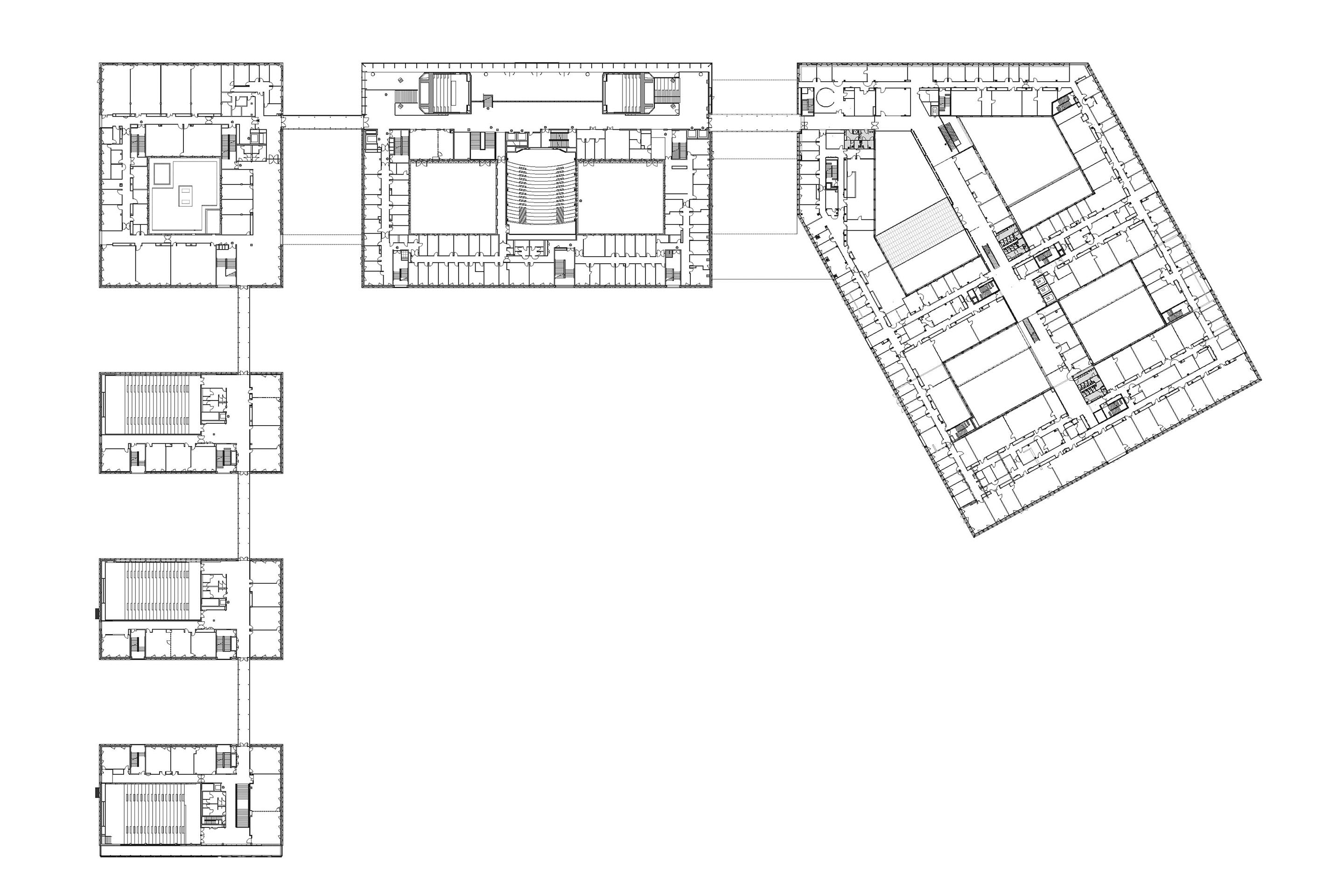
Le plateau de Saclay est une terre de superlatifs. Retour sur trois projets universitaires – Lab City, le Pôle Biologie-Pharmacie-Chimie et AgroParisTech –, des bâtiments-ville, autant d’entités dont la taille nous oblige à les considérer comme des quartiers, au sein d’une constellation d’insularités similaires.

Data di pubblicazione
12-06-2023

Le choix de la France de faire construire un méga-campus capable de la hisser dans le classement des universités internationales pourrait évoquer l’œuvre des autocrates qui décident par décret présidentiel de déplacer un fleuve ou de construire une nouvelle capitale administrative. Ce n’est pas nécessairement une erreur, mais ce geste sollicite forcément une architecture de la table rase, conçue autant pour fonctionner que pour faire image. À Paris, le choix de mise en scène a porté sur le plateau venteux de Saclay, à 30 km au sud-ouest du centre-ville, en bordure de l’aire urbaine. Si la création du pôle universitaire apparaît, par la concomitance des chantiers, comme un projet ex nihilo, il s’agit en réalité d’une extension/densification d’un campus existant et historiquement orienté vers la recherche scientifique. C’est ici, par exemple, que les Français ont implanté leur premier réacteur nucléaire de recherche dans les années 1950. Pour donner à ce pôle le poids requis, il est prévu d’y relocaliser de grandes écoles parisiennes renommées. Nous n’en dresserons pas la liste. Elle est longue et comprend une vingtaine d’établissements prestigieux qui représentent 13 % de la capacité de recherche du pays1. Pourtant, alors que les bâtiments sont livrés, les transports en commun manquent encore: des navettes tentent tant bien que mal de combler cette lacune, dans l’attente du métro périphérique du Grand Paris Express, en construction.

Lab City de OMA: subvertir la grille

Chaque école est une île d’un archipel dont les composantes communiquent peu. Il y a un plan d’ensemble, des axes, mais le fonctionnement de ces entités académiques est fortement centré sur elles-mêmes. Les quelques équipements mutualisés sont rares et peinent à créer de vraies interactions entre les différents établissements. C’est à cette insularité qu’essaye de répondre Lab City, l’un des deux pôles de l’école d’ingénierie CentraleSupélec conçu par OMA – l’autre pôle, d’une superficie de 25 000 m2, a été réalisé par Gigon Guyer.

Pensée comme une ville dans un édifice, l’organisation du bâtiment de 48 700 m2 dispose les laboratoires autour d’une grande halle centrale baignée de lumière zénithale. Les unités de recherche et d’enseignement sont comme branchées sur le grand espace transitoire qui fait office de lieu de socialisation, d’espace de travail informel et de restauration. La lumière du jour qui inonde la place intérieure animée recrée les conditions d’un extérieur. La toiture légère est constituée de coussins translucides en éthylène tétrafluoroéthylène (ETFE).

La halle centrale, qui présente tous les attributs d’un learning center, est située sur la rue intérieure, un axe aux allures de canyon qui traverse en diagonale le bâtiment orthogonal. Le choix de faire ville à l’intérieur du bâtiment est accentué par le traitement du volume sombre qui fait l’angle de l’ensemble. La façade extérieure en béton noir se poursuit à l’intérieur le long de l’axe couvert, créant un effet de contraste qui évoque l’alternance des bâtiments d’une rue.

Lab City renoue avec certains concepts d’origine du fondateur de l’OMA, Rem Koolhaas: la Bigness, l’éloge du désordre, mais surtout la déconstruction de la grille, un thème qui traverse son œuvre depuis ses débuts. Si la grille koolhaassienne n’a jamais été rigide, celle du Lab City en est l’ultime version, en parfaite résonance avec l’esprit de réversibilité et d’indétermination qui caractérise les nouveaux espaces d’apprentissage et de travail. Ainsi subvertie, la grille ne sert pas à délimiter les fonctions qui participent à la configuration du lieu de savoir. Elle est plutôt la trame sur laquelle ces fonctions se croisent, s’entremêlent pour finalement fusionner2. Lab City opte pour le décloisonnement généralisé, avec tout ce que cela implique: la fin de la hiérarchie inscrite dans les gènes de l’édifice et la garantie que tout ce qui y trouve une place le mérite.

Travelling de Bernard Tschumi

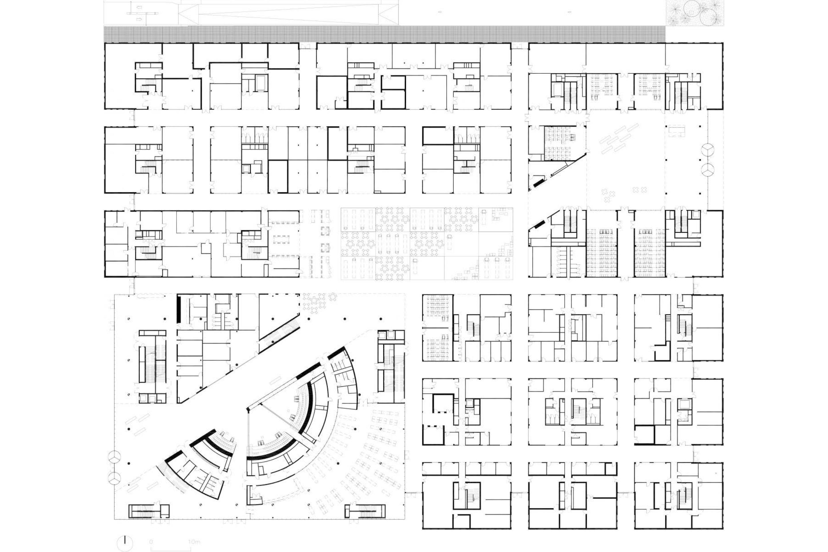
Le bâtiment de Bernard Tschumi est également travaillé par cette intention de faire ville. Il est gigantesque, avec une volonté forte d’inclure une dimension urbaine en plus des qualités organisationnelles liées à sa fonction. Le centre de recherche et d’enseignement Biologie-Pharmacie-Chimie fait exactement ce que son nom indique: il arrime un centre de recherche de pointe à un centre d’enseignement dans un ensemble en forme de fer à cheval traversé par une rue intérieure de plus de 500 m de long. Le cœur de cette rue, qui sépare les deux entités, est une piazza structurée symétriquement autour des tribunes amphithéâtrales qui se font face. Deux estrades à l’échelle du bâtiment cadrent l’entrée et créent les conditions d’une centralité proportionnée. Ce choix permet de qualifier ces espaces d’homogènes et nécessairement répétitifs compte tenu de la surface titanesque du bâtiment (70 000 m2). Le vaste espace d’accueil est revêtu du même matériau que celui déjà utilisé par Bernard Tschumi pour l’amphithéâtre du Rosey à Rolle (VD): des panneaux OSB acoustiques, c’est-à-dire protégés par une résine et perforés afin d’en faire des éléments de revêtement intérieurs. L’utilisation de ces panneaux pour matérialiser deux volumes contenant des amphithéâtres de part et d’autre de l’entrée s’est révélée être une trouvaille scénographique capable de créer un espace qualitatif au sein d’un ensemble plutôt déterminé par des enjeux de quantité.

La qualité urbaine du bâtiment culmine dans la rue intérieure qui traverse les différents blocs et relie le pôle de recherche au pôle d’enseignement. Des passerelles à deux niveaux assurent une transition optimale entre les différents bâtiments. Elles relient les grands amphithéâtres accessibles par le haut au centre de recherche en passant par la piazza de l’accueil. La grande réussite de ces traversées, outre leurs vertus circulatoires, est de mettre en scène le bâtiment. L’alternance entre les parties vitrées extérieures et les parties intérieures donne l’impression de quitter le bâtiment pour y entrer à nouveau. Ce jeu avec les circulations ne va pas sans évoquer les travaux de Bernard Tschumi sur la cinétique et la filiation cinématographique de l’architecture. Emprunter ces axes traversants revient alors à éprouver l’architecture de ce bâtiment-ville sur le mode du travelling cinématographique.

AgroParisTech, l’écrin de recherche contesté

Dédiée à la recherche agroalimentaire, AgroParisTech associe un centre de recherche à des espaces d’enseignement. L’école déploie son ensemble de huit bâtiments autour d’un jardin paysager conçu par l’agence TER. Ce grand parc arboré rend plus supportable l’austérité des blocs de laboratoires, ordonnés autour de patios. Ici plus qu’ailleurs, l’école semble partagée entre une partie manifeste et visible et une partie plus technique constituée d’un emboîtement optimal de fonctions indispensables.

Chaque département a ses laboratoires, chaque enseignant-chercheur son petit bureau. Quand on sait que l’institution compte plusieurs centaines de professionnels justifiant d’un bureau individuel, on imagine vite le défi infernal qu’a dû représenter la mise à disposition pour chacun d’entre eux d’un espace privatif. La pléthore de tuyaux, la succession de petites boîtes blanches, les douches règlementaires tous les 20 m et la signalisation alarmiste des zones sensibles ou dangereuses ne vont pas sans évoquer l’absurdité administrative telle qu’elle a été immortalisée par Terry Gilliam dans le film Brasil.

Cette partie très utilitaire et quelque peu ingrate est compensée par la coursive extérieure qui longe les bâtiments côté parc et lui sert d’épine dorsale. Elle est dans la continuité du grand atrium de l’entrée, où Marc Mimram a déployé tout son art de scénographier des usages publics, tout en donnant l’impression de ne faire qu’une architecture fonctionnelle et technique. Cet espace est complexe, sans en avoir l’air, comme le sont d’ailleurs les bandeaux de fenêtres composés d’ouvertures de taille variée et qui ne s’alignent pas dans le sens de la hauteur. Quasi imperceptible, cette variation infinie permet d’éviter l’écrasante monumentalité des trames régulières.

Le principe de la boîte dans la boîte utilisé pour le bâtiment d’entrée donne lieu à un espace unitaire composé de dégagements et de terrasses praticables. Un système sophistiqué de poutres métalliques structure le gigantesque atrium en verre. Un dédoublement des parois vitrées permet une climatisation naturelle de ces généreux espaces, chauffés par le sol, pour le confort des usagers, jusqu’à hauteur d’homme. Ce dégagement traversant, qui va du sol à la toiture du bâtiment, génère un espace lumineux, capable d’exprimer dans un volume concis l’échelle réelle du bâtiment. Le défi est à la fois scénographique et structurel. L’abon­dance spatiale de l’atrium rappelle le jeu de dégagement au niveau des circulations verticales de certains aéroports et leur manière d’évoquer l’ascension.

Le décalage entre l’accueil – monumental – et la partie strictement fonctionnelle de l’école reflète le tiraillement entre les impératifs de recherche et de performance d’une industrie indispensable et le scepticisme écologique de la génération d’ingénieurs agronomes qui est en train d’en sortir. L’école a connu son heure de gloire en mai 2022 lorsque huit diplômés de la dernière promotion, baptisés les «bifurqueurs d’AgroParisTech», ont organisé un débrayage médiatique pour rejeter les principes qui leur avaient été enseignés3. AgroParisTech a beau être un haut lieu de la recherche sur l’agriculture durable, elle reste aussi le fleuron du productivisme agroalimentaire du pays. Le greenwashing et l’architecture ne peuvent pas tout faire.

Lab City, Plateau de Saclay, ­ Gif-sur-Yvette (F)

 

Maître d’ouvrage
CentraleSupélec

 

Maîtrise d’œuvre
OMA (architecte), D’Ici Là (paysagiste), Bollinger Grohmann (bureau d’études structure et façade), Alto (bureau d’études fluides), DHV (acousticien), DUCKS (scénographie)

 

Procédure
Concours, 2013

 

Livraison
2018

 

Surface
48 700 m²

 

Coûts
117 mio d’euros

Pôle Biologie-Pharmacie-Chimie, Plateau de Saclay, Orsay (F)

 

Maître d’ouvrage
Université Paris-Saclay, Bouygues-Construction

 

Maîtrise d’œuvre
Bernard Tschumi urbanistes architectes (coordination urbaine et architecturale, Cœur de Pôle et espaces d’enseignement), Groupe-6 (espaces de recherche et laboratoires)

 

Procédure
Concours, 2018

 

Livraison
2022

 

Surface
74 000 m2 (site Henri Moissan)

 

Coûts
283 mio d’euros

Campus AgroParisTech, Plateau de Saclay, Palaiseau (F)

 

Maître d’ouvrage
Campus AGRO SAS – CASAS / Partenariat Public Privé / ADIM – GTM – CBC – Engie

 

Maîtrise d’œuvre
Marc Mimram Architecture Ingénierie (mandataire), Patriarche-Lacoudre Architectures, Agence TER, WSP France, Topager, TEM Partners, Artelia, Franck Boutté, Altétia, Alternative, DAL, Cider

 

Procédure
Concours, 2017

 

Livraison
2022

 

Surface
65 000 m2

 

Coûts
165 mio d’euros

Notes

 

1 Selon le site universite-paris-saclay.fr (consulté le 09.05.2023)

 

2 Lire l’article complet de Christophe Catsaros, «Lab City par l’OMA à Paris-Saclay: de la grille subvertie aux smart grids», TRACÉS 04/2019

 

3 Voir le plaidoyer de Morgan Meyer «S’engager, bifurquer, déserter. Pragmatique des critiques et sensibilités écologiques des élèves ingénieurs», publié en 2022, ou encore les six articles publiés par Le Monde sur le sujet

Articoli correlati