Schli­ch­ter Ku­bus mit rei­chem In­nen­le­ben

Für die aargauische Gemeinde Birrwil haben Brandenberger Kloter Architekten (Basel) ein Schulhaus entworfen, das die Kinder zum Entdecken einlädt. Anfang September 2022 wurde der Bau in Betrieb genommen.

Data di pubblicazione
12-10-2022

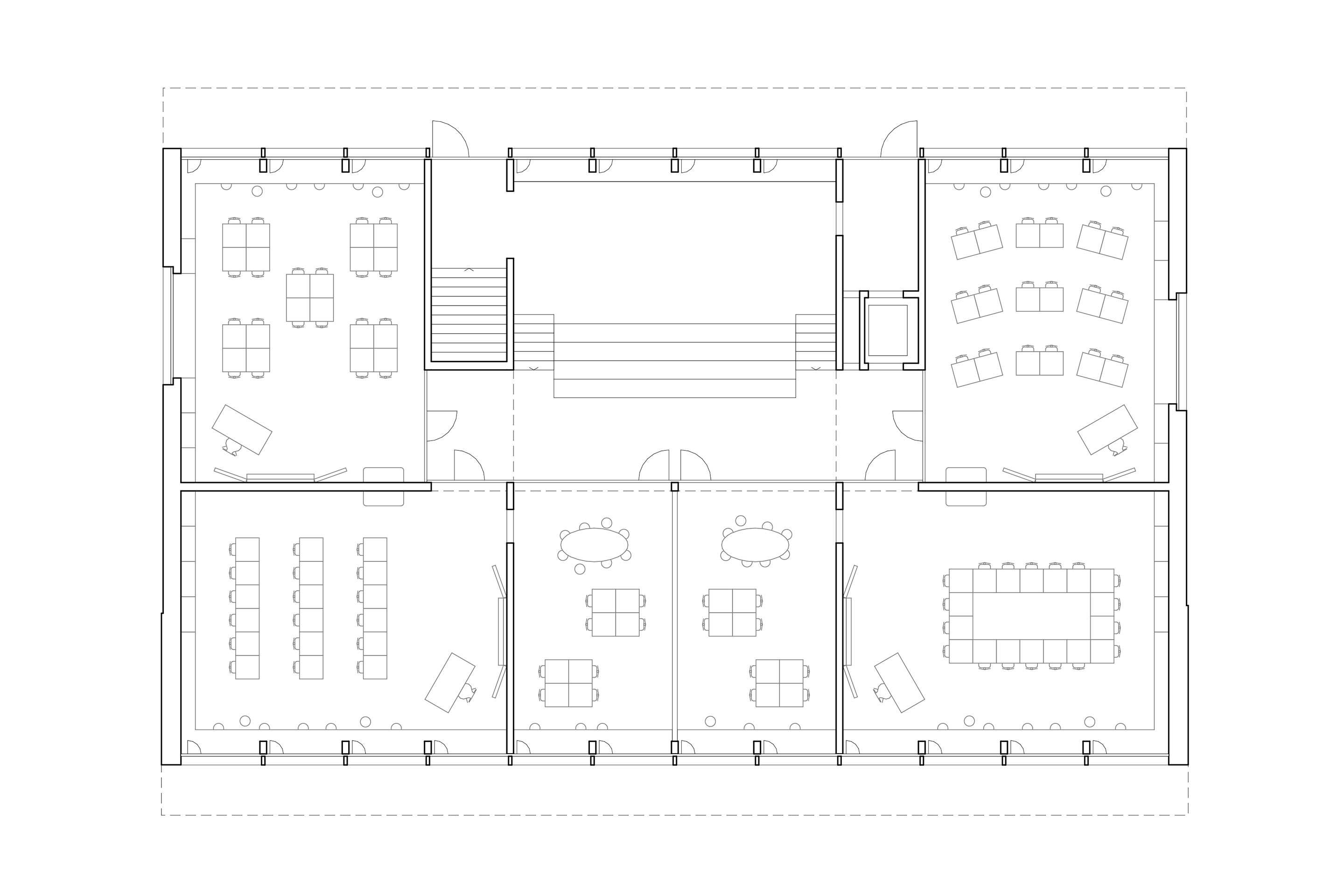
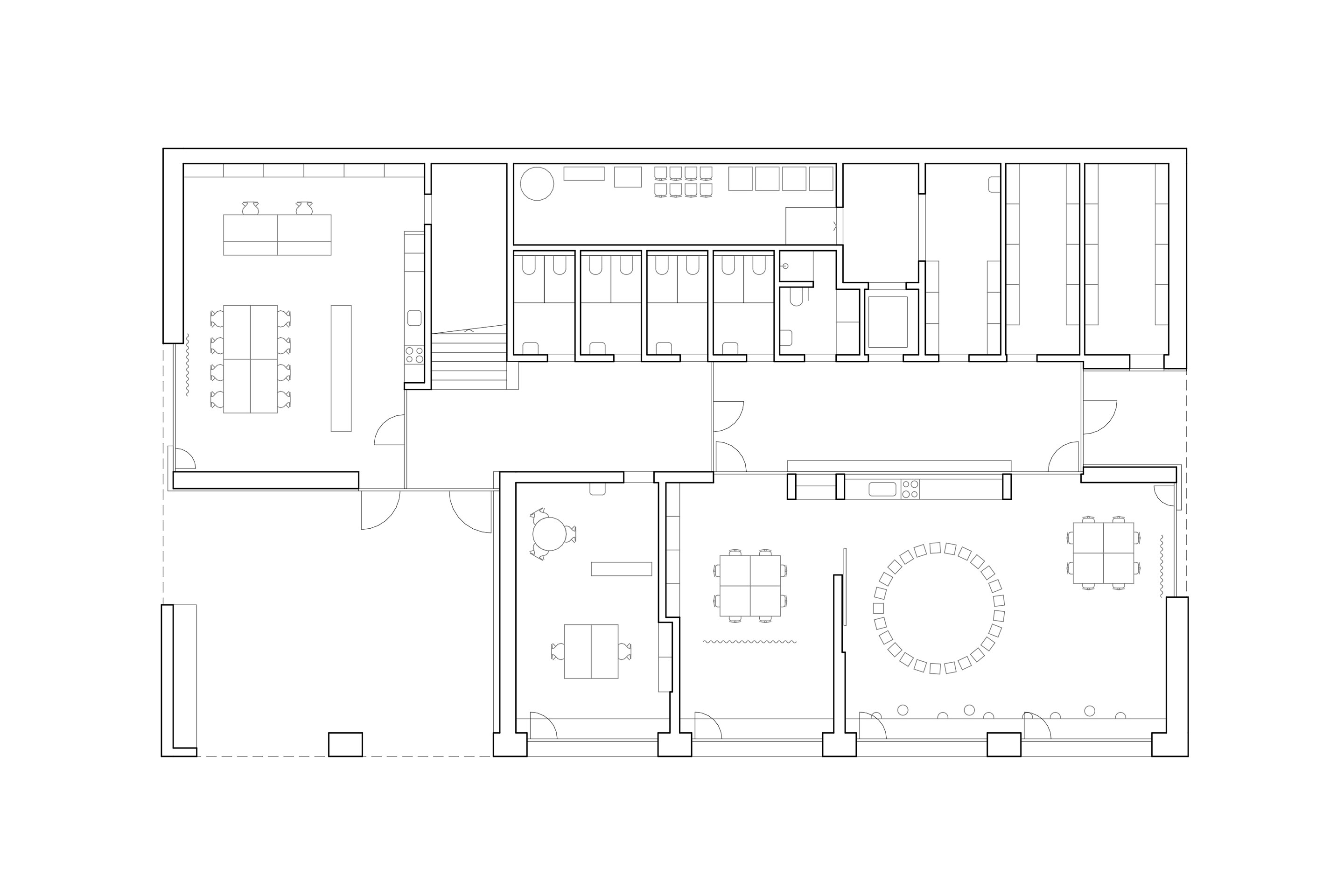
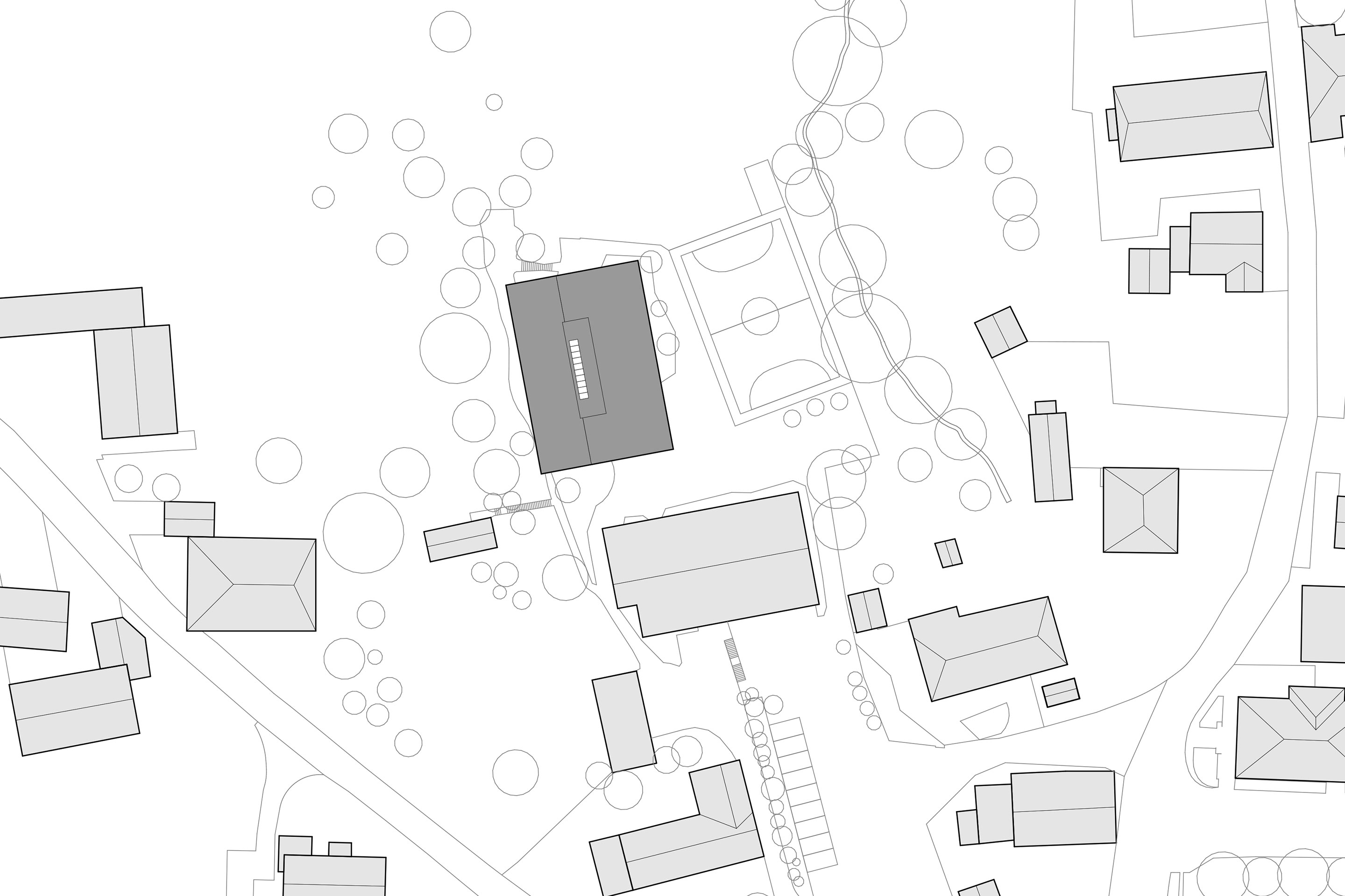
Die Volksschule der Gemeinde Birrwil ist vom Kindergarten bis zur Primaschule stufenübergreifend angelegt. Die Schulräume waren bisher auf drei Standorte verteilt. Sie sind nun in diesem Neubau zusammengefasst, der hinter der bestehenden Mehrzweckhalle am Fuss eines Hügels liegt. Das Gebäude tritt bescheiden auf, schmiegt sich in die Böschung und lässt den Blick zur Landschaft hin offen. Ein Forum im Zwischengeschoss verbindet Kindergarten und Primarschule. Die neue Schule nimmt sich ganz zurück, punktet aber mit diesem zentralen Gemeinschaftsraum, der Forum und Arena zugleich ist.

Schlicht geformt – klug geplant

Um alle Schulräume in Birrwil an einem Ort zu konzentrieren, wurde 2017 ein zweistufiger Wettbewerb für eine stufenübergreifende Schule mit Kindergarten und Primarschule ausgeschrieben. Der Neubau bildet zusammen mit dem Mehrzweckgebäude ein Ensemble, gemeinsam fassen sie den Pausenhof und einen Sportplatz ein. Die Architekten haben das neue Schulhaus aus der Landschaft heraus entwickelt. Während das Erdgeschoss des kompakten Baukörpers im Hang eingebettet ist, entfaltet sich das Obergeschoss auf zwei Ebenen bis unters Dach; von dort sind Ausblicke in alle Himmelsrichtungen möglich.

Mit seinem kompakten Äusseren orientiert sich das Gebäude an den in dieser Gegend typischen Wirtschafts- und Wohnbauten mit weit auskragendem Satteldach, massiven Giebelwänden und filigraner Holzfüllung. Zugleich bezieht es sich mit der schlichten Rasterfassade und den Materialien wie Beton und Aluminium auf den benachbarten Bau aus den 1960er-Jahren.

Die durch das Dach geschützten Fenster an der Traufseite sind aus Holz gefertigt, die der Witterung stärker ausgesetzten Fenster an den Giebelseiten hingegen aus natureloxiertem Aluminium. In Anlehnung an die Mehrzweckhalle besteht das traditionelle Satteldach aus nicht eingefärbtem Faserzement.

Der Haupteingang an der Hofseite unterscheidet sich klar von den drei Nebeneingängen. Diese sind auf eine Stirnseite sowie auf die gegenüberliegende Hangseite verteilt, wo sich auch der erhöhte Schulgarten, das Aussenklassenzimmer und der Spielplatz befinden.

Erschliessung und Forum in einem

So kompakt und schlicht das Gebäude von aussen erscheint, so überraschend ist der gestaffelte und aussergewöhnliche Aufbau im Innern. Er animiert die Kinder vom Kindergarten bis zur Primarstufe zum Entdecken und Erkunden der vielfältig nutzbaren Innenräume. Vom hohen Eingangsraum führt eine breite Treppe nach oben zur zentralen Halle im Split-Level, die durch einen tribünengleichen Aufgang in zwei Ebenen unterteilt ist. Die überhohen Stufen dienen auch als Sitzplätze, sodass dieser Raum nicht nur als Erschliessungsraum dient, sondern auch als Forum. Hier sind Veranstaltungen möglich, oder man trifft sich um sich auszutauschen.

Auf der unteren Ebene des Forums sind die Garderoben angeordnet, auf der oberen Ebene liegt ein offener Erschliessungsgang, der die vier Klassenzimmer miteinander verbindet. Zwischen den über Eck belichteten Räumen befinden sich zwei kleinere Gruppenräume, die sich bei Bedarf zu einem fünften Unterrichtsraum zusammenlegen lassen.

Anregende Gestaltung

Zu den ungewöhnlichen Details im Gebäude gehören die Raumkojen oberhalb der Klassenzimmer. Diese sind direkt unter das Satteldach eingepasst. Über eine Leiter und durch eine kreisrunde Öffnung können die Kinder dort hineinklettern, sich verstecken oder diese als Lesenische nutzen. Ein kleiner runder Glasbaustein erlaubt einen geheimnisvollen Blick zurück in das Forum.

Auch im Kindergarten sind verspielte Räume zu finden. Hinter einem Vorhang, der im zugezogenen Zustand eine Schneckenform bildet, können sich die Kinder verstecken. Die Schiebewände und Wandoberflächen sind hier aus recycelten PET-Flaschen hergestellt. Sie dienen der besseren Akustik und als Pinnwand. Als einzige Farben im Innern leuchten die blauen Kacheln an den Wänden der Toiletten und hinter den Waschbecken in den Unterrichtsräumen, sowie die Vorhänge in unterschiedlichen Blautönen.

Low-Tech statt Minergie

Die Thermik hat sich als stärkster und preiswertester «Lüftungsmotor» bewährt, deshalb wurden zwei Lüftungshöfe in das Satteldach integriert. Von den kleinen Fensterflügeln an der Fassade strömt die frische Luft über grosse Lüftungsklappen in die Lüftungshöfe unter dem Dach – eine optimale Querlüftung und Nachtauskühlung ist so gewährleistet. Eine teure Lüftungsanlage ist überflüssig.

Das Oberlicht im Firstbereich und die Fenster an der Westfassade lassen viel natürliches Licht in den Binnenraum bis hinunter zum Erdgeschoss eindringen. Dieses gleichmässig einfallende Tageslicht schafft eine angenehme Atmosphäre und reduziert den Einsatz von Kunstlicht.

Wie bei anderen Bauten für Kinder nahmen die beiden Basler Architekten auch hier die Perspektive des Kindes als Grundlage für den Entwurf. Zuvor realisierten sie das Schulhaus Pfeffingen (BL), dessen kubischer Baukörper ein leicht verständliches Raumkonzept bietet. Der Doppelkindergarten in Winkel (ZH), eine einfache Schottenstruktur am Hang, ist durch den Einsatz von Klinkerstein und Eiche sinnlich erfahrbar, und die Primarschule Aarwangen (BE) erweitert eine bereits bestehende Anlage mit einem grosszügigen, vertikal erschlossenen Sichtbetonbau.

Am Bau Beteiligte

 

Bauherrschaft              
Einwohnergemeinde Birrwil

 

Architektur                  
Brandenberger Kloter Architekten, Basel                                    

Bauherrenvertretung    
Butscher Projektsteuerung, Aarau

 

Tragkonstruktion        
Haller Ingenieure, Baar

 

Landschaftsarchitektur
Bischoff Landschaftsarchitekt, Baden

 

Bauleitung                   
Hauri Baumanagement, Aarau

 

HL-Planung        
Wyder Elektroplanung, Zürich

 

Bauphysik/ Elektroplanung
Calorplan, Reinach

 

Sanitärplanung/Brandschutz/Akustik
Buri Bauphysik & Akustik, Volketswil

 

Geologie                     
Dr. Heinrich Jäckli, Baden

 

Geometer
Flury Planer + Ingenieure, Lenzburg

 

Baudaten

 

Baubewilligung: April 2020
 

Planungszeit: März 2019 – April 2020
 

Bauzeit: Juli 2020–März 2022
 

Bruttogeschossfläche inkl. Keller + Technik: 2411.5 m2
 

Nettonutzfläche: 2076 m2
 

Fassadenfläche: 1067 m2
 

Dachfläche: 685 m2
 

Gesamtkosten BKP 1–9: 5.5 Mio. Fr.
 

Gebäudekosten BKP 2: 4.4 Mio. Fr.
 

Gebäudevolumen inkl. Keller und Technik: 4279 m3 (SIA 416)