Una nuo­va piaz­za a la­go

Scuola media, Caslano

Data di pubblicazione
19-04-2022
Francesca Belloni
arch. PhD professore, ricercatore ABC POLIMI, redattrice espazium quaderni

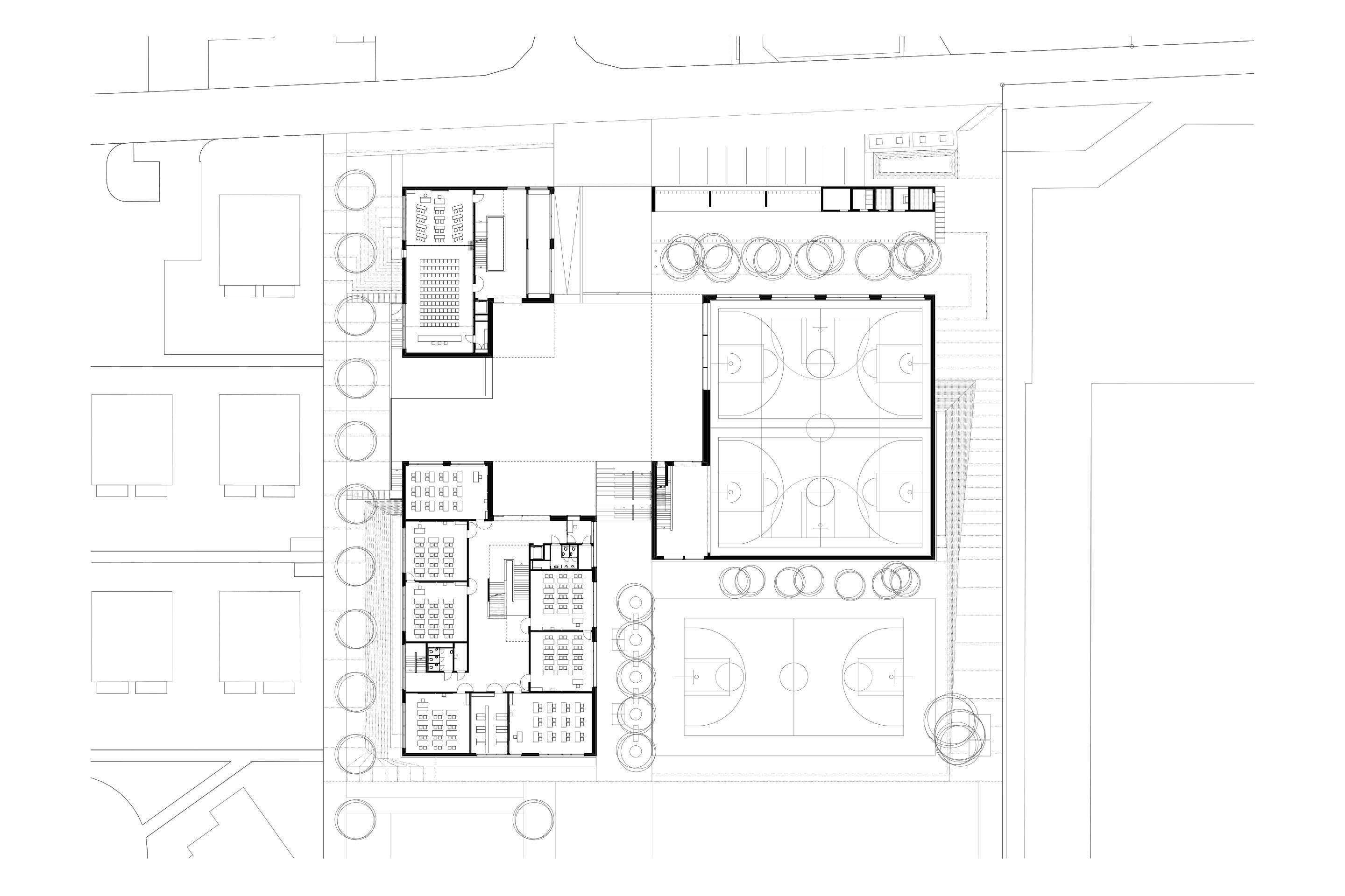
Il progetto per la nuova scuola media ha rappresentato l’occasione per un ripensamento generale degli equilibri dell’intero abitato di Caslano: attraverso la rilettura delle caratteristiche insediative e paesaggistiche del contesto, il progetto opera infatti una trasformazione di senso della zona di espansione novecentesca, sviluppatasi a ovest dell’antico nucleo. La collocazione privilegiata dell’area in prossimità del lago è stata interpretata dai progettisti come occasione per costruire una ideale progressione architettonica degli spazi dell’educazione verso l’acqua, mettendo a sistema il nuovo intervento con le esistenti scuola dell’infanzia e scuola elementare, in rapporto ideale con la piazza Lago del nucleo storico.

Al di fuori del centro, Caslano manca di veri luoghi di relazione e socializzazione; anche gli edifici sorti intorno alla stazione e le varie strutture di servizio dislocate nel territorio comunale si presentano più come risposte tecniche a esigenze funzionali di vario genere che come luoghi urbani. Il contesto paesaggistico è invece di un certo pregio, per la presenza del Monte Sassello e per la vicinanza del lago. A questo si aggiungono alcuni elementi minori, che il progetto ha saputo interpretare come risorse: un’urbanità diffusa favorita dalla bassa densità edilizia, la presenza di numerosi giardini e la sezione ridotta delle strade, che conferiscono al contesto un carattere domestico.

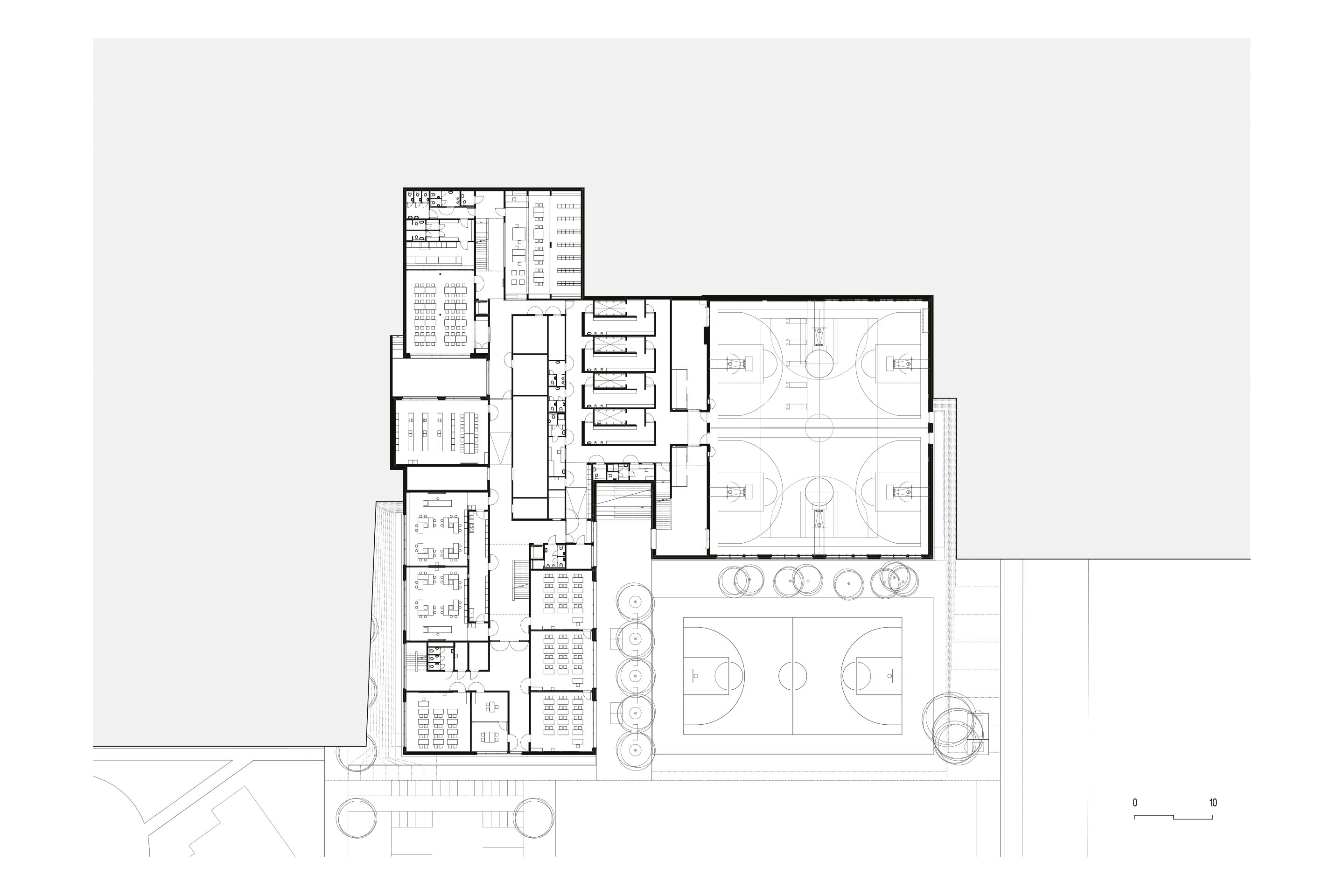
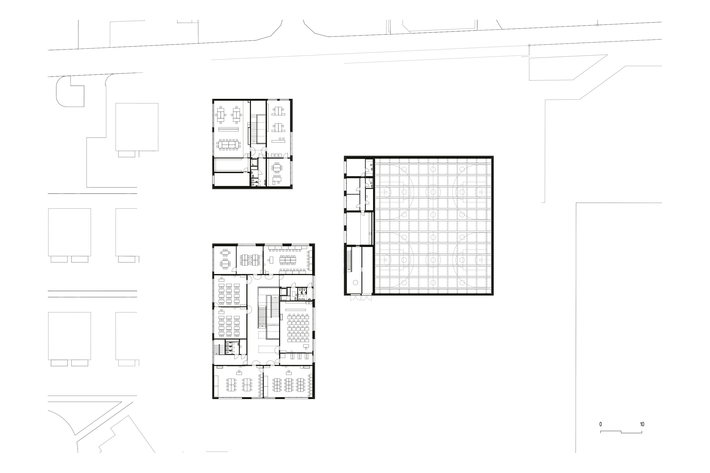
L’organizzazione planimetrica generale gioca sull’aggregazione di tre corpi di fabbrica collocati su un grande podio, a creare, secondo un principio insediativo che rimanda alla spazialità greca, relazioni a distanza tra oggetti chiaramente individuati. Gli edifici, isolati seppur strettamente in relazione tra loro, confermano la struttura ortogonale della maglia stradale e costruiscono una nuova piazza, ideale conclusione del percorso di collegamento del nuovo polo scolastico con le scuole esistenti e fisicamente in continuità con il resto dell’abitato. Tale disposizione si traduce, a livello compositivo, in tema progettuale: i portici di accesso, ottenuti per omissione scavando nei volumi compatti, grazie alla loro intrinseca appartenenza alla configurazione generale, trasformano il vuoto tra gli edifici in luogo urbano unitario e riconoscibile. A questo di associano le coperture, caratterizzate da lievi inclinazioni che, secondo un principio centripeto, si rivolgono verso lo spazio collettivo centrale. Anche la definizione dei prospetti partecipa a tale disegno, introducendo un trattamento materico differente a seconda che siano orientati verso la piazza – nel qual caso sono in laterizio a vista – o verso l’esterno – dove invece è impiegato intonaco a grana grossa. Secondo principi analoghi viene trattato il dislivello esistente, in modo da individuare tre ambiti gerarchicamente distinti: l’accesso alla scuola, con la pensilina per le biciclette; la piazza centrale, leggermente rialzata, con gli ingressi agli edifici; l’area sportiva a sud, ribassata e in continuità con la palestra e il campo sportivo. In tal modo la topografia artificiale lavora in accordo con il carattere urbano del progetto, sfruttando il vincolo tecnico per definire una rinnovata spazialità urbana.

L’organizzazione planimetrica consente di utilizzare gli edifici in maniera indipendente e, a seconda delle necessità, con tempi e modalità differenti: a sud il volume delle aule, protetto dai rumori del traffico; a nord la zona amministrativa, la biblioteca e l’aula magna; a est la palestra, in stretta relazione con il complesso sportivo. In continuità con tale disposizione, la struttura dei percorsi urbani diviene matrice dell’organizzazione planimetrica del progetto: il disegno degli ingressi, dei percorsi e l’intera distribuzione è tutta volta a definire ripetute e reciproche relazioni visuali tra interno ed esterno non meno che tra i differenti ambienti di un medesimo edificio.

La struttura a setti ortogonali in cemento, si sviluppa in sezione con due diversi tipi di solaio, ossia solette piene in calcestruzzo armato e solai misti in legno/cemento per i solai intermedi delle aule e per la grande luce delle palestre. I serramenti sono in alluminio e le aperture dei fronti che si affacciano sulla piazza presentano bordature esterne in calcestruzzo prefabbricato ad accentuare il carattere di centralità del luogo.

Luogo
Caslano

 

Committenza
Repubblica e Cantone Ticino, Dipartimento delle finanze e dell'economia, Divisione delle risorse, Sezione della Logistica, Dipartimento dell'educazione della cultura e dello sport, Divisione della scuola, Bellinzona

 

Architettura
Adolfo Zanetti architetto con Lucia Ravagni, Alvise Marzollo, Andrea Cremasco, Venezia;Stefano Micheli, St. Antonino

 

Collaboratori
A. Danese, A. Favero, M. Sonego, L.Ugolini, A. Berta

 

Ingegneria civile
Monotti Ingegneri Consulenti SA, Locarno; Borlini & Zanini SA, Pambio Noranco

 

Progetto impianti RVCS
CS progetti Sagl, Bedano

 

Progetto impianti elettrici
Elettroconsulenze Solcà SA, Mendrisio Fisica delle costruzioni: Franco Semini, Lugano; UCE Sagl, Paradiso

 

Acustica
Franco Semini, Lugano; UCE Sagl, Paradiso Fotografia: Luis Asín, Madrid

 

Impresa
Giovanni Quadri SA, Cadempino

 

Carpenteria lignea
Carpenteria Alpina SA, San Vittore

 

Carpenteria metallica
Poretti e Gaggini SA, Bedano

 

Date
concorso 2011-2012, progetto 2014-2015, realizzazione 2015-2018

 

Pianificazione energetica
UCE Sagl, Paradiso

 

Certificazione o Standard energetico
Minergie 2019, TI-550

 

Intervento e tipo edilizio
costruzione nuova

 

Categoria intervento (Ae)
impianti sportivi 1433.8 m2, amministrazione 151.2 m2, scuole 3.425.9 m2, amministrazione 349.4 m2, totale 5360 m2

 

Fattore di forma (Ath/Ae)
impianti sportivi 2.52, amministrazione 3.01, scuole 1.23, amministrazione 1.69, totale 1.69

 

Riscaldamento e acqua calda
teleriscaldamento AIL di Caslano, centrale a cippato di legno proveniente dalla regione

 

Requisito primario involucro dell’edificio
19.9 kWh/m2a (limite 33.1 kWh/m2a)

 

Indice Energetico Complessivo (da certificazione)
29.8 kWh/m2a (limite 36.0 kWh/m2a)

 

Particolarità
Distribuzione calore con sistema radiante a pavimento, ventilazione meccanica controllata centralizzata con recupero di calore, oscuramenti esterni automatizzati e raffrescamento con sistema in parte a pavimento ed in parte a convettori