Do­me­sti­co e ur­ba­no nel­la ca­sa uni­fa­mi­la­re in Sviz­ze­ra

Il saggio ripercorre l’evoluzione recente della casa unifamiliare, tra riletture critiche, mutamenti sociali e nuove sperimentazioni. Un quadro aggiornato che mostra come, nonostante il dibattito contemporaneo privilegi l’abitare collettivo, l'abitazione unifmiliare resti un laboratorio essenziale del progetto.

Data di pubblicazione
20-11-2025
Matteo Moscatelli
Architetto e PhD, docente al Politecnico di Milano, redattore espazium quaderni

English version at this link

Cambio di paradigma

Rispetto ad altri temi tipologici che gravitano attorno all’abitare analizzati negli scorsi anni dalla rivista – il progetto dello spazio pubblico,1 della residenza collettiva2 e del rapporto tra pieni e vuoti nelle città del Cantone Ticino3 – quello dell’abitazione unifamiliare sembra oggi suscitare meno interesse nel dibattito architettonico elvetico.

Pur non così numerose, alcune recenti pubblicazioni ci permettono di rintracciare le più significative traiettorie di ricerca in questo ambito. Nella rassegna presentata nel 2010 in Ville in Svizzera, la più completa su questo argomento, Mercedes Daguerre ha sottolineato come il tema della casa, dallo châlet all’edilizia abitativa degli anni Venti e Trenta e poi degli anni Sessanta e Settanta, fosse in quel momento un ambito di sperimentazione ancora molto fertile. I diciassette casi contemporanei presi in esame – sette nel Cantone Ticino, quattro nel Cantone Zurigo, due nel Cantone Lucerna, uno nei Cantoni di Argovia, Giura, Turgovia e Vaud – dimostrano la rinnovata attenzione di quegli anni verso le componenti paesaggistiche, grazie agli spunti creativi offerti dagli elementi archetipi delle montagne, dei laghi e della vegetazione, e allo stesso tempo verso manifestazioni artistiche che hanno introdotto nell’iter progettuale temi legati alla percezione, al movimento e alla temporalità.4

Prima di quest’analisi, la raccolta pubblicata in Ville in Italia e Canton Ticino da Paola Gallo e Silvio San Pietro aveva evidenziato – attraverso le case di Michele Arnaboldi e di Franco e Paolo Moro – la messa in discussione dei dogmi linguistici e ideologici del passato e, allo stesso tempo, l’esplorazione di nuovi «paesaggi d’interni» in cui poter veicolare i piccoli «universi privati» agognati dalla committenza o, con un approccio più autobiografico, i frammenti della memoria raccolti dai progettisti.5

L’indagine più recente, Case in Ticino di Tiziano De Venuto,6 ha invece riportato l’attenzione sul rapporto tra architettura e costruzione attraverso un percorso tra gli edifici residenziali a Carabietta (2010) di Stefano Moor, a Bellinzona (2012) di Guidotti architetti, a Gordola (2012) di Baserga Mozzetti e a Locarno (2018) di Inches Geleta, focalizzandosi su categorie interpretative legate a modalità di interazione tra forma e struttura come il sollevare e il sospendere. Più frequenti rispetto alle rassegne sul contemporaneo, arrivando ai nostri anni, sembrano invece essere le riletture di alcune opere germinali dell’architettura svizzera del Novecento.

La monografia dedicata alla Casa a Paros (1992-1998) di Silvia Gmür e Livio Vacchini7 esamina le caratteristiche dell’opera tratteggiandone l’immaginario culturale. Nel suo racconto, Roberto Masiero rimarca l’essenzialità figurativa dell’edificio, dichiarando il suo essere «nient’altro che una grande piattaforma-terrazza difesa da due muri giganti», il suo essere pensato innanzitutto in relazione alla luce naturale e, in omaggio al Modulor di Le Corbusier, il suo essere dimensionato in orizzontale e verticale a partire dal modulo determinato dallo spessore del muro e del solaio.

Anche lo studio di Davide Fornari, Giacinta Jean e Roberta Martinis sulla Casa Zentner a Zurigo (1963-1969) di Carlo Scarpa analizza l’opera attraverso i suoi elementi ispiratori, soffermandosi sul ruolo della committente Savina Zentner, sull’avvicendamento delle varie versioni del progetto e sulla descrizione di un processo creativo in cui l’edificio risulta esito non di una mera operazione nostalgica ma della composizione di un «atlante per figure» dell’identità di Savina.8

A riportare l’attenzione sulla relazione tra committenza e progetto è anche la pubblicazione dedicata alla Casa a Brusino Arsizio (1959-1960) realizzata da Flora Ruchat-Roncati insieme al padre ingegnere, Giuseppe Roncati. Nel suo saggio Satisfaction de l’esprit, Nicola Navone sottolinea a questo proposito come la casa sia stata da lei concepita come una narrazione riguardante la sua storia, i suoi riferimenti culturali e il suo rapporto con la figura del padre: quello reale, Giuseppe Roncati, da cui aveva cercato in questa occasione di affrancarsi, e quello «nobile», Le Corbusier, di cui si era invece sforzata di evidenziare l’influenza.9


 

La ripresa di un tema

La redazione di Archi si è occupata della casa unifamiliare fino al 2015 con una certa assiduità.

Il numero 1 del 2013 ha analizzato il rapporto tra edificio e suolo attraverso la ricognizione messa a punto da Tomà Berlanda di una serie di opere di Luca Coffari, Bonetti e Bonetti, Silvia e Reto Gmür, Jachen Könz e Ludovica Molo, Nicola Baserga e Christian Mozzetti con Pedrazzini Guidotti e Ivano Gianola. Approfondendo questo stesso tema, il successivo testo di Ilka e Andreas Ruby illustra la concezione del terreno come un’ecologia dell’architettura identificandone le molteplici interpretazioni nel progetto moderno e contemporaneo, dallo «svuotamento fisico e semantico» di Le Corbusier alla «neutralizzazione concettuale» di Ludwig Mies van der Rohe e dallo «strato superiore di un palinsesto» al «suolo infrastrutturale» di Rem Koolhaas.10

Il numero 4 del 2014 ha riguardato invece il ripensamento del ruolo della finestra in alcuni progetti della Svizzera italiana – la Casa Guidotti a Monte Carasso (2009-2011) di Luigi Snozzi, la Casa a Brissago (2010-2013) di Wespi de Meuron Romeo, la Casa unifamiliare in mattoni si cotto (2009-2011) di Colombo+Casiraghi, la Casa di legno a Cugnasco (2013-2014) di Gionata Epis e la Casa di legno a Lugano-Besso (2014) di Bruno Keller11 – in cui la ricerca sui temi costruttivi è stata assunta come priorità del processo progettuale.

Le opere sono precedute da un significativo saggio, L’intérieur tradizionale insidiato dalla finestra a nastro,12 che racconta un’opera emblematica del Novecento come la Petite Maison a Corseaux (1924) di Le Corbusier e la relativa controversia con Auguste Perret sulla scelta delle finestre a nastro. Bruno Reichlin prima espone la gestazione del progetto, sottolineando come l’idea di realizzare una «casa purista a forma di vagone»13 fosse dettata dal tentativo di ridurre ogni spreco di superficie a vantaggio del salon e di valorizzare il più possibile la vista verso il paesaggio tramite le aperture a sviluppo orizzontale, poi esamina puntualmente le due posizioni in contrasto, quella di Perret secondo il quale «una finestra è fatta per illuminare, per dar luce a un interno»14 e quella del maestro svizzero-francese che, costernato per la scarsa collegialità di Perret, sosteneva che le finestre fossero il suo «assillo di tecnico e di esteta» e che il disegno delle sue facciate fosse dettato non dal mero «piacere della stravaganza» ma dall’idea di «far entrare il più possibile, a torrenti, l’aria e la luce» nelle sue case.15

Il numero 1 del 2015 ha proposto infine un ritratto delle case di vacanza sudalpine tramite un testo sulla nascita del paesaggio turistico di Claudio Ferrata e una riflessione di Luca Ortelli sul modo di relazionarsi al paesaggio di opere come la Villa Senar a Hertenstein (1933) di Alfred Möri e Karl-Friedrich Krebs, la Casa per un poeta a Ronco sopra Ascona (1939) di Paul Artaria, la stessa Petite Maison a Corseaux (1924) di Le Corbusier e la Casa Malaparte a Capri (1937) di Libera/Malaparte.16 Nel commento introduttivo alle opere presentate nel numero Judit Solt  analizza invece tre casi recenti – la Casa Kuoni a San Nazzaro (2012) di Conradin Clavuot, la Casa Bula a Mergoscia  (2013) di Bearth & Deplazes e la Casa a Monte - Castel San Pietro (2014) di Sergison Bates – individuando una matrice comune nel loro favorire, attraverso la valorizzazione delle vedute e le scelte materiche degli spazi interni, uno stato di «ritiro contemplativo».17


 

Principi di relazione

Per riannodare il filo col passato, riportando la discussione ad alcuni riferimenti disciplinari che riteniamo applicabili anche al progetto contemporaneo, il tema della casa unifamiliare sembra ancora oggi interessato da tre principi di relazione.

Il primo principio è il dialogo con il luogo. Nell’apertura del suo La villa: forma e ideologia (1992), James Ackerman ha ricordato che «la villa non può essere compresa prescindendo dal suo rapporto con la città» perché «essa esiste non per assolvere funzioni autonome ma per controbilanciare valori e vantaggi della vita urbana», proponendo come esempio un antico rilievo romano che rappresenta una città fortificata e una villa suburbana all’esterno della cinta muraria.18 Tale aspetto sembra valido anche nel quadro attuale per molti autori, esprimendosi in forme di relazione che si attuano sul piano morfologico e tipologico, diretto e indiretto, percettivo e simbolico.

Il secondo è invece la sperimentazione sul comfort abitativo. In Il progetto domestico. La casa dell’uomo: archetipi e prototipi, Georges Teyssot ha spiegato da questo punto di vista come il progetto della casa derivi da due tradizioni, una riferibile a Vitruvio, che narra come l’origine dell’architettura sia da collocare nella capanna costruita dai primi uomini agli albori della civiltà, e l’altra riconducibile alla tradizione moderna, nella quale la pianificazione dell’habitat inizia a monopolizzare la pratica progettuale e il dibattito teorico.19 Teyssot ha poi presentato un prezioso itinerario di spazi abitativi – che passa dalle corti barocche inglesi e francesi alle case di campagna con giardino, dai prodotti della «rivoluzione domestica» del XIX secolo agli esiti della preoccupazione per l’igiene della fine del XIX secolo e dall’abitare più libero e anticonvenzionale delle case degli artisti fino alla disaffezione dei «nuovi nomadi» verso una sola e unica abitazione – mostrando l’evoluzione del concetto di comfort a seconda dei mutamenti culturali e sociali e indicando quindi la necessità di un suo ripensamento secondo le nuove esigenze del suo tempo.

Il terzo principio di relazione, ineludibile anche in questo ambito tipologico, è quello riguardante la rielaborazione della lezione dei maestri. In uno dei testi più emblematici di questa posizione, Inaki Ábalos ha raccontato alcuni casi storici – dalla Casa a patio di Mies van der Rohe alla Capanna di Martin Heidegger a Todtnauberg nella Selva Nera e dalla Macchina per abitare ritratta da Jacques Tati in Mon Oncle alla Factory a New York di Andy Warhol – riconoscendo l’eterogeneità e il valore delle case del XX secolo, facendo luce sull’origine e sul significato delle fantasie che proiettiamo sulle case ma, allo stesso tempo, promuovendo l’attualizzazione di questo retaggio culturale e uno sforzo metodologico volto a «dimenticare la modernità».20

Un approccio simile è rilevabile in un numero monografico di «Lotus» di qualche anno prima incentrato sull’attualità di una serie di case del Novecento, dalla Casa Malaparte a Capri (1937) di Libera/Malaparte alla Casa Schroeder a Utrecht (1924) di Gerrit Rietveld e dalla Petite Maison a Corseaux (1924) di Le Corbusier alla Villa Planchart a Caracas (1957) di Gio Ponti. Avvalendosi della figura retorica dell’hysteron proteron (secondo la quale l’ordine della sintassi risulta inverso rispetto al naturale svolgersi delle azioni) Pierluigi Nicolin descrive nel suo editoriale la (impossibile) influenza su queste opere da parte di autori operativi negli anni successivi (da Álvaro Siza a Santiago Calatrava e da Peter Eisenman a John Hejduk), cercando di dimostrare, attraverso questo paradosso, come la lettura di alcuni edifici contemporanei ci permetta a volte di aprire gli occhi su altre opere del passato a cui direttamente o indirettamente attingono.21


 

L’abitare contemporaneo

Volgendo il nostro sguardo al quadro attuale, l’individuazione delle conseguenze dei mutamenti sociali, economici e culturali della contemporaneità sulla concezione dell’abitare alimenta gli approfondimenti di diverse ricerche.

Bill Bryson ha ripercorso in Breve storia della vita privata l’evoluzione degli ambienti di una casa-tipo, mostrando le profonde differenze che intercorrono in diversi momenti storici non solo tra gli spazi ma anche tra gli arredi, tra gli utensili e tra le materie prime che li costituiscono.22

In Le case che siamo Luca Molinari ha descritto una serie di modelli di casa – solida, dominante, sacra, trasparente, democratica, senza radici, invisibile – avvicendatisi nel tempo sostenendo, come nell’assunto con cui abbiamo aperto queste note, che quello della casa è l’ambito più amato e stabile della nostra vita ma anche «il fenomeno su cui si sta meno riflettendo in questo primo quarto di secolo».23

Con un principio analitico complementare e analogo a quello di Bryson, e traslando l’oggetto dall’analisi dai modelli di abitazione ai singoli spazi che li compongono, lo stesso autore ha dedicato il successivo Stanze. Abitare il desiderio – e, in parte, le riflessioni del suo saggio in questo numero di Archi – alla trasformazione degli ambienti domestici nel tempo, ricordandoci come corridoi, scale, soggiorni, cucine, biblioteche, bagni, spogliatoi, camere da letto, balconi-terrazze e cantine-soffitte24 siano composti non solo da muri, finestre, porte e arredi ma anche da una serie di elementi legati al mondo della percezione – come la luce e il colore, il rumore e l’odore – che, combinati insieme, compongono ciò che Peter Zumthor definisce col termine «atmosfera».25

Questa riflessione ci riporta alla memoria la radicale svolta verificatosi in Europa tra le due guerre quando, come ha osservato Ignasi de Solà-Morales in un saggio del 1991, il dibattito sul progetto dell’abitazione ha visto il passaggio da parole come «progresso, razionalità e felicità» a parole come «intimità e soggettività»,26 orientandosi verso un rapporto più stretto con la dimensione umana e con la percezione sensoriale. È proprio in questa stagione storica, come possiamo osservare nelle forme di sperimentazione che caratterizzano le case di quegli anni, che la cultura architettonica ha iniziato ad anteporre il benessere dell’individuo a quello della comunità e in cui, come ha osservato Alvar Aalto in una sua celebre critica al principio della machine à habiter, la misura umana – intesa in senso sia fisico che spirituale – diventa il nuovo punto di riferimento del processo progettuale: «la ricostruzione è una necessità senza limiti in una guerra che distrugge la prima e più antica protezione dell’uomo, la casa (…) una casa deve provvedere alla protezione elementare dell’individuo, mentre una comunità deve provvedere all’intera popolazione».27

Gli ultimi trent’anni sono stati contrassegnati anche da due ulteriori mutamenti. Il primo riguarda la crisi di un modello abitativo basato sulla privacy in favore delle nuove forme di convivenza determinate dalle innovazioni della cultura digitale,28 di cui sono rappresentativi i casi-studio – dalla Maison a Bordeaux (1998) di Rem Koolhaas alla Glass Video Gallery a Groningen (1990) di Bernard Tschumi e dalla Möbius House a Het Gooi (1998) di UN Studio alla Kew House a Melbourne (1997) di Sean Godsell – presentati nel 1999 da Terence Riley nella mostra The Un-Private house al MoMA di New York.

Il più recente momento di ripensamento della spazialità domestica è invece coinciso con gli anni della pandemia, che ha portato ad alcune riflessioni di carattere interdisciplinare e interscalare riguardanti il modo di pensare la città e l’edificio, lo spazio interno e l’arredo, la dimensione materiale e immateriale. Due recenti pubblicazioni curate da Michela Bassanelli ci hanno invitato a questo proposito a restituire importanza ad alcuni luoghi come gli spazi privati esterni (logge, balconi e terrazze), gli spazi intermedi (atrio, pianerottolo e ballatoio) e i servizi condivisi29 e a esplorare nuovi principi di inclusività basati sulla considerazione della differenza, della compresenza di specie diverse e del desiderio di comunità.30


 

Quattro case

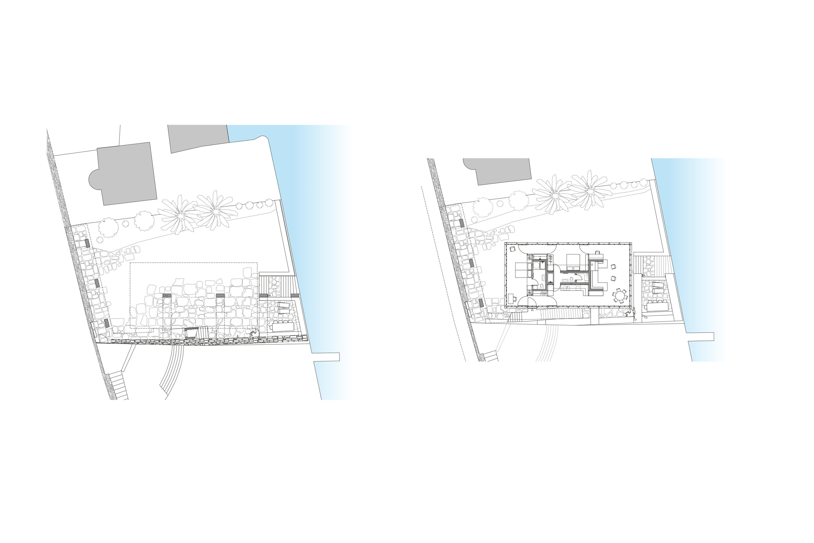
Il principio di fondo che ha guidato la selezione di questo numero, come in altre occasioni passate, è rappresentare l’eterogeneità dell’architettura della residenza unifamiliare attraverso un ventaglio di esempi significativi: la Casa a San Nazzaro - Gambarogno (2021) di Wespi de Meuron Romeo, la Ca’ del Tero / Casa Cortile a Minusio (2022) di Bartke Pedrazzini, la Casa a Baden presso Vienna (2024) di Balissat Kaçani con Jann Erhard e la Casa Bula a Schüpfen (2024) di Bearth & Deplazes Architects.

Alcune differenze tra queste opere sono elementari: tre sono nuove costruzioni, una la trasformazione di un edificio esistente; due sono nel Canton Ticino, una è nel Canton Berna e una è in Austria (ma di architetti del Canton Argovia); due si basano su geometrie semplici, due su un deciso superamento di questo principio; due impiegano materiali moderni, due materiali tradizionali (pietra e legno). Più sottili, invece, sono i diversi modi di intendere tre dicotomie della cultura del progetto che, nell’ambito della casa, riteniamo decisivi nella definizione del suo carattere.

Per quanto riguarda il primo, che consiste nel rapporto tra spazi serventi e serviti, mentre nella Casa a San Nazzaro, nella Casa Bula e nella Ca’ del Tero / Casa Cortile gli elementi distributivi si pongono in modo geometricamente coerente rispetto alla suddivisione degli spazi in pianta, optando piuttosto per una sperimentazione sui dettagli costruttivi dei corrimani e dei gradini, nella Casa a Baden la doppia scala è intesa come elemento di rottura rispetto alla regolarità dello spazio interno, determinando l’assetto volumetrico scultoreo degli spazi abitati che attraversa.

Rispetto alla relazione tra spazi privati interni ed esterni, mentre nella Casa Bula e nella Ca’ del Tero / Casa Cortile le superfici verdi o aperte si estendono intorno all’intero corpo di fabbrica, nella Casa a San Nazzaro sono su due lati e nella Casa a Baden sono solo su uno, accentuando la gerarchia tra i fronti e rendendo quindi opportuna una più decisa variazione tra i fronti e nel sistema degli accessi.31

Passando al dialogo tra edificio e contesto, infine, mentre nella Ca’ del Tero / Casa Cortile la ricerca di continuità trova riscontro nelle scelte riguardanti i materiali, nella Casa a San Nazzaro questo aspetto si concretizza più sul piano simbolico, con forme irregolari e tessiture materiche in continuità con il paesaggio lacustre e montano in cui il corpo di fabbrica è immerso. Pur nella loro diversità, la Casa a Baden e la Casa Bula interpretano questo rapporto secondo un’ulteriore chiave di lettura, quella morfologica e tipologica, con i volumi che riprendono le forme del paesaggio urbano e naturale e gli elementi costruttivi che ne richiamano alcune costanti (in primis la copertura a falde, che in questi due episodi risulta comunque rielaborata nei materiali e nell’assetto geometrico).

Da questo punto di vista, la diversa natura delle aree di intervento (in alcuni casi libere da ostruzioni visive, in altri circondate da corpi di fabbrica a breve distanza, in altri ancora incastonate tra infrastrutture o edifici esistenti) influisce in modo diretto sulla configurazione dei volumi e delle superfici: il territorio libero attorno alla Casa Bula permette di plasmare una costruzione estroversa, con un nastro vetrato ininterrotto lungo tutto il perimetro del piano terra; i tracciati viari che cingono il lotto della Casa a San Nazzaro portano alla definizione di un edificio massivo e introverso; la particolare collocazione tra i binari del tram e di un giardino protetto della Casa a Baden suggerisce l’evidente differenziazione delle due facciate, con aperture singole da una parte e una superficie interamente trasparente a tutta lunghezza dall’altra; l’affaccio su strada di uno solo dei quattro lati della Ca’ del Tero / Casa Cortile produce una variazione nel dimensionamento e nella distribuzione delle aperture.

Nel loro rappresentare differenti forme di sperimentazione, sul piano sia tipologico che costruttivo, le case di Baden, Gambarogno, Minusio e Schüpfen ci conducono a una doverosa riflessione conclusiva sul significato della nostra ricognizione.

Nel suo Filosofia della casa Emanuele Coccia sostiene che, nonostante la modernità filosofica si sia concentrata unicamente sul tema della città, il futuro del pianeta non possa che essere domestico. L’invito è di tornare a pensare al tema della casa, rispondendo all’urgenza di «fare di questo pianeta una vera e propria dimora» ma, allo stesso tempo, di «fare della nostra abitazione un vero pianeta».32

Da alcuni anni il progetto della casa unifamiliare, pur presente per frammenti in numeri dedicati ad altri temi, non ha trovato esito in un numero di Archi specificatamente dedicato. In quest’ottica, sostenendo un cambio di paradigma già in atto perlomeno a livello culturale, si è preferito dedicare più attenzione ad altre espressioni dell’architettura residenziale, particolarmente quelle relative all’abitare collettivo, ispirate da più lungimiranti politiche di sviluppo territoriale finalizzate al controllo dell’espansione urbana, all’ottimizzazione delle risorse e allo sviluppo della socialità.

Questo non significa che, nel frattempo, la ricerca sulla casa singola non abbia prodotto esiti degni di attenzione. A conclusione di questa annata – e di questo ciclo della rivista – ci è sembrato quindi opportuno riprendere un tema protagonista di tante uscite passate e riconoscere il valore di alcune nuove realizzazioni che hanno saputo misurarsi con le questioni emergenti della contemporaneità.

 

Note

1 Cfr. Luoghi collettivi nella città contemporanea, «Archi», n. 4, 2021.

2 Cfr. L’abitare collettivo, «Archi», n. 5, 2023.

3 Cfr. Forme di qualità urbana, «Archi», n. 5, 2024.

4 M. Daguerre, Artificiale per natura, in Id., Ville in Svizzera, Electa, Milano 2010, p. 5.

5 P. Gallo, S. San Pietro, Ville in Italia e Canton Ticino, L’Archivolto, Milano 2001, p. 7.

6 T. De Venuto, Case in Ticino, Libria, Melfi 2023, p. 9.

7 R. Masiero, Una macchina per pensare. La casa a Paros di Silvia Gmür e Livio Vacchini, Mimesis, Milano-Udine 2009.

8 R. Martinis, Stratigrafie di un’idea, in D. Fornari, G. Jean, R. Martinis, Carlo Scarpa. Casa Zentner a Zurigo: una villa italiana in Svizzera, Electa, Milano 2020, p. 57.

9 N. Navone, Satisfaction de l’esprit. Progettare, costruire e narrare una casa, in N. Navone, A. Ruchat, Una casa sul lago, Officina libraria, Roma 2023, pp. 34-36.

10 I. Ruby, A. Ruby, Groundscapes. L’incontro con il suolo nell’architettura contemporanea, «Archi», n. 1, 2013, pp. 17-22. Il testo è anche l’introduzione al volume I. Ruby, A. Ruby, Groundscapes. The rediscovery of the ground in contemporary architecture, Gustavo Gili, Barcelona 2007.

11 A queste opere si aggiungono due residenze collettive | These works are complemented by two collective housing projects Cristiana Guerra, Casa d’appartamenti a Bellinzona (2013-2014), Michele Arnaboldi, Raffaele Cammarata, Residenze al Gaggio a Orselina (2008-2012).

12 B. Reichlin, L’intérieur tradizionale insidiato dalla finestra a nastro, «Archi», n. 4, 2014, pp. 43-49. Il testo è un estratto dei saggi contenuti in Dalla «soluzione elegante» all’«edificio aperto». Scritti intorno ad alcune opere di Le Corbusier, Mendrisio Academy Press, Mendrisio 2013, che raccoglie alcuni scritti dedicati dagli anni Sessanta in avanti da Bruno Reichlin a Le Corbusier.

13 G-É. Jeanneret, Diario in data 27 dicembre 2023: «Ed fait des plans très simples, d’une maison puriste, forme wagon, un seul rez de chaussé».

14 G. Baderre, M. Auguste Perret nous parle de l’architecture, «Paris-Journal», n. 2478, 07.12.1923, p. 5.

15 G. Baderre, Une visite à Le Corbusier-Saugnier, «Paris-Journal», n. 2479, 28.12.1923, p. 3.

16 L. Ortelli, Balconi, terrazze, paesaggi e storie di gente che ha cambiato nome, «Archi», n. 1, 2015, pp. 31-36.

17 J. Solt, Il prezzo della bellezza, in Archi», n. 1, 2015, p. 41.

18 J. Ackerman, La villa: forma e ideologia, Einaudi, Torino 1992, p. 3.

19 G. Teyssot, Figure d’interni, in Id., Il progetto domestico. La casa dell’uomo: archetipi e prototipi, Electa, Milano 1986, p. 18.

20 I. Ábalos, Il buon abitare. Pensare le case della modernità (2000), Marinotti, Milano 2009, p. 220.

21 P. Nicolin, Abitare nell’architettura, «Lotus», n. 60, 1988, p. 5.

22 B. Bryson, Breve storia della vita privata, Guanda, Parma 2010.

23 L. Molinari, Le case che siamo, Nottetempo, Milano 2020, p. 11.

24 L. Molinari, Stanze. Abitare il desiderio, Nottetempo, Milano 2024, pp. 20-21.

25 P. Zumthor, Atmosfere, Electa, Milano 2008.

26 I. de Solà-Morales, Architettura e esistenzialismo: una crisi dell’architettura moderna, «Casabella», n. 583, 1991, pp. 39-40.

27 A. Aalto, La fine de la machine à habiter, «Metron», n. 7, 1946, pp. 2, 4.

28 T. Riley, The Un-Private House, The Museum of Modern Art, New York 1999.

29 M. Bassanelli (a cura di), Covid-Home, LetteraVentidue, Siracusa 2020.

30 M. Bassanelli (a cura di), Abitare oltre la casa. Metamorfosi del domestico, DeriveApprodi, Bologna 2022.

31 Su questo specifico aspetto si veda anche l’innovativa interpretazione degli spazi esterni coperti, presentata nelle prossime pagine, della Casa sul Mar Nero di Laura Cristea e Raphael Zuber.

32 E. Coccia, Filosofia della casa. La spazio domestico e la felicità, Einaudi, Torino 2021, p. 11.