Con­trap­pun­ti com­po­si­ti­vi

Bearth & Deplazes Architects, Ferrari Gartmann

Un nuovo edificio residenziale di Bearth & Deplazes a Schüpfen rilegge la tipologia locale attraverso un impianto modulare e una sequenza di spazi concentrici. Tra podio, reticolo strutturale e copertura solare, la casa esplora variazioni geometriche che definiscono carattere e gerarchie dell’abitare contemporaneo.

   
Data di pubblicazione
25-11-2025
Matteo Moscatelli
Architetto e PhD, docente al Politecnico di Milano, redattore espazium quaderni

English version at this link

Studio House Bula, Schüpfen BE

Schüpfen è un piccolo agglomerato a nord di Berna composto da case in legno dalle caratteristiche coperture a falda. All’estremità meridionale del costruito, circondato da ampie distese verdi e rivolto verso il Seeland bernese e del Giura, si trova un nuovo edificio residenziale di Bearth & Deplazes Architects.

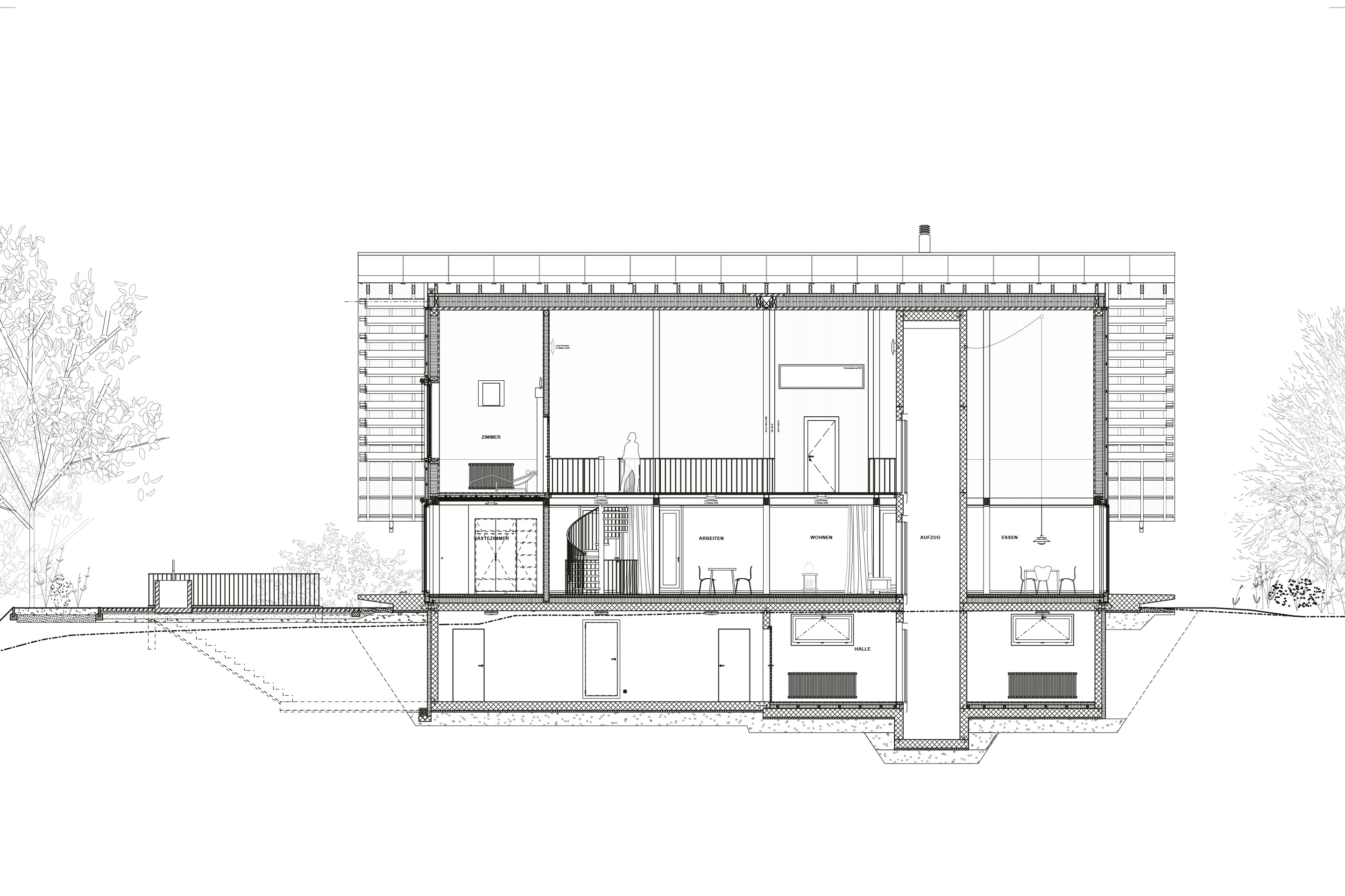
L’intervento è concepito come una matrioska, in cui gli spazi sono contenuti uno dentro l’altro secondo una successione di layer concentrici. Dallo strato più esterno, costituito da un muro di contenimento, si passa a un giardino lineare, poi a un percorso basso e alla rampa che conduce al podio, quindi alla superficie definita dall’aggetto dalla copertura e infine, dopo l’involucro vetrato, al nucleo abitato.

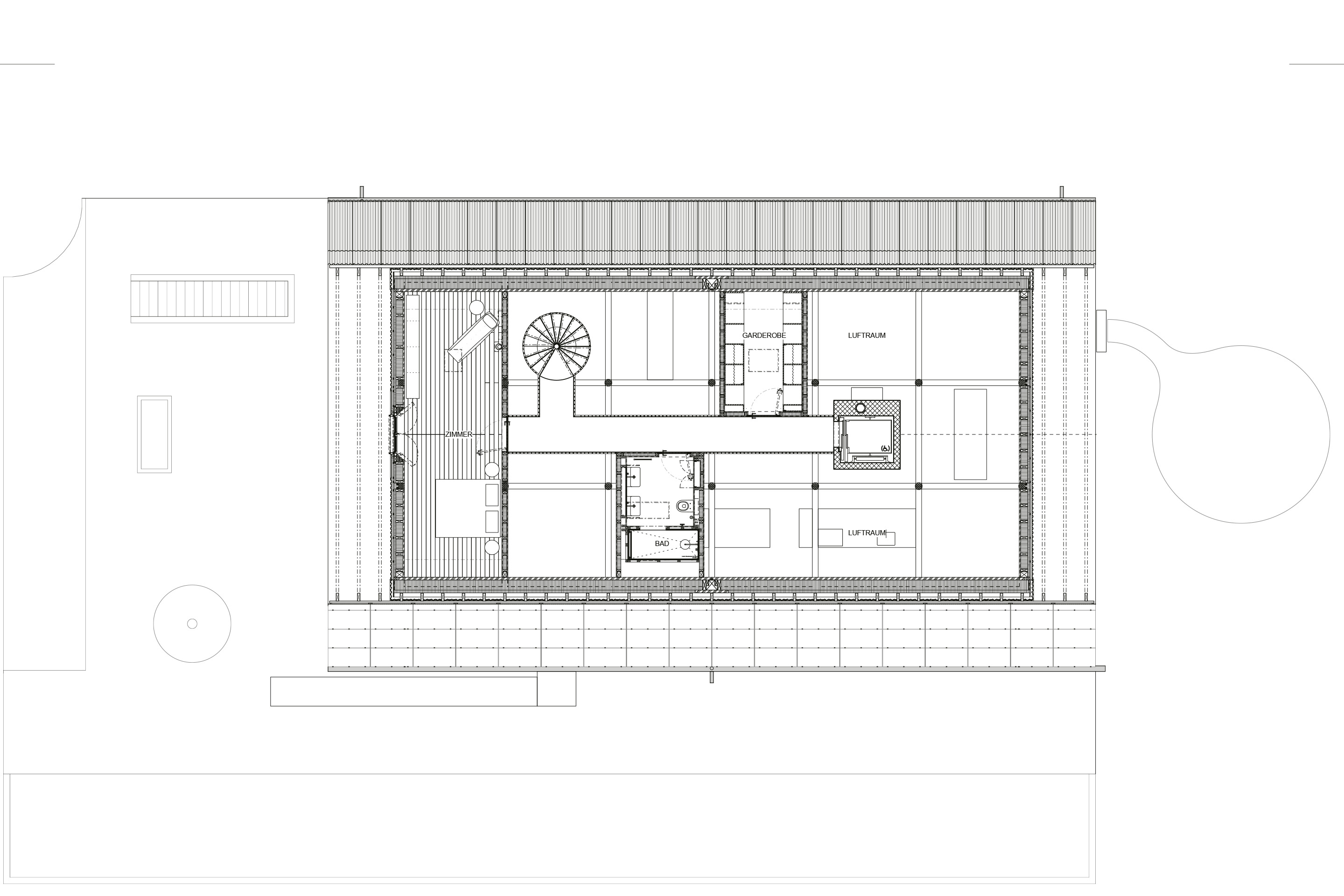
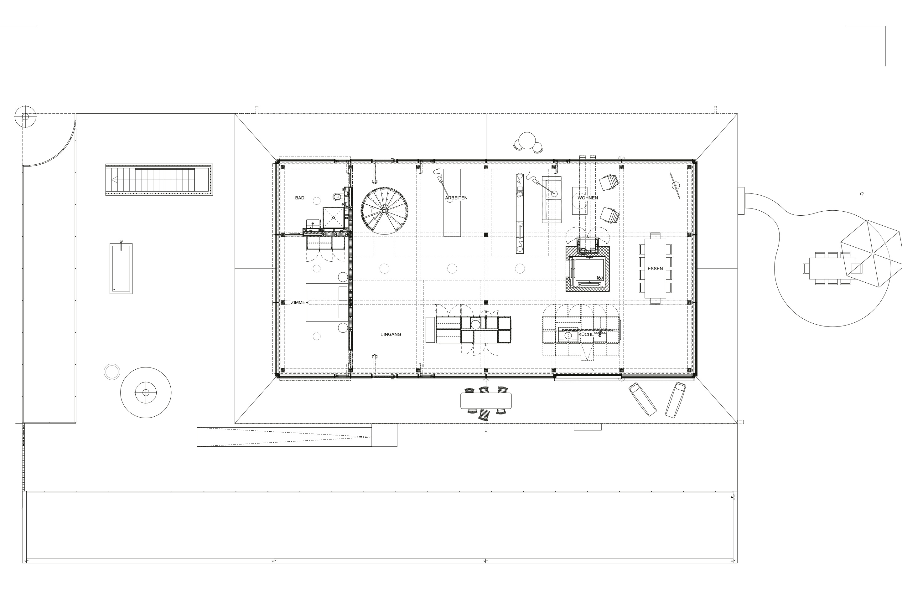
All’interno lo spazio accoglie la camera degli ospiti, la zona studio e la zona giorno al piano terra, la camera da letto principale, il bagno e il guardaroba al piano primo e i locali di servizio al piano interrato. La distribuzione tra i tre livelli avviene tramite la scala elicoidale antistante all’ingresso e il campanile di cemento dell’ascensore che divide la zona studio dalla sala da pranzo valorizzando con la sua verticalità la generosità spaziale delle doppie altezze. I collegamenti al piano primo sono invece garantiti da una passerella sospesa che, attraversando la grande cavità della casa, porta dalla camera da letto ai blocchi del bagno e del guardaroba.

L’edificio è costituito da gesti essenziali dettati da precise logiche compositive e funzionali. Il podio, che crea un distacco visivo dal terreno e una distinzione simbolica tra artificio e natura, permette di ricavare la fessura che porta luce al piano inferiore e uno spazio esterno coperto affacciato sul giardino e sull’area di ingresso. La copertura, rivestita da pannelli fotovoltaici, riprende e attualizza un tema tipologico ricorrente del costruito storico. La superficie vetrata al piano terra incrementa la permeabilità visiva tra dentro e fuori grazie all’impiego di pannelli ad ampia specchiatura inframmezzati da sottili montanti che – grazie al contenimento dello spessore e alla soluzione dell’«angolo negativo» sugli spigoli – si differenziano visivamente rispetto alle colonne che punteggiano lo spazio interno.

La parte portante – un reticolo tridimensionale in legno tinto di rosso di 18x18 cm in verticale, 18x20 in orizzontale – genera una sorta di spartito musicale su cui si materializzano, come una sequenza di note e di pause, i sei moduli del piano superiore. Al piano primo si alternano il pieno della zona notte, il vuoto dell’ingresso, il pieno del bagno e i tre vuoti della cucina lungo il lato sud (PVPVVV), e il pieno della zona notte, i due vuoti del corpo scala e della zona studio, il pieno del guardaroba e i due vuoti della zona giorno lungo il lato nord (PVVPVV). Questo contrappunto tra volumi non corrispondenti tra un lato e l’altro istituisce chiare gerarchie funzionali tra gli ambienti, suggerendo la separazione tra l’ingresso e la cucina da una parte e tra lo studio e la zona giorno dall’altra.

A garantire continuità, oltre all’assenza di separazioni murarie, è anche la tessitura del legno, da quella naturale degli arredi a quella tinta del reticolo strutturale e della parete tra zona notte e zona giorno, e la trama in granito della pavimentazione, all’interno della quale la griglia modulare della struttura è evidenziata tramite una differenziazione delle finiture tra gli assi del reticolo e le campiture al loro interno.

Dal punto di vista compositivo, la casa è incardinata su un impianto speculare e modulare di dimensione 10x20 m su cui si esercitano sottili variazioni. Oltre che nella dislocazione dei volumi al piano primo, questo aspetto è rilevabile nel confronto tra le due facciate corte, con una sola finestra sul lato ovest, e nella configurazione della copertura, con la falda sud più alta rispetto per aumentare la superficie captante.

Confrontando l’edificio di Schüpfen con altri recenti lavori dello studio è possibile individuare alcuni elementi di continuità. Alcuni riguardano le scelte costruttive, come lo sviluppo della copertura a falde sfalsate che caratterizza anche il progetto della Cantina Obrecht a Jenins (2019-2022) o della Casa Schneller Bader a Tamins (2016) e il tetto solare che ritroviamo in queste stesse due opere e nella Casa Brunner-Bapst a Waltensburg/Vuorz (2019). Temi più sottili ma comunque ricorrenti sono la sperimentazione tipologica sulla configurazione dello spazio domestico, la «complessità implicita» delle scelte formali fondata sull’istituzione di una regola geometrica su cui si esercitano una serie di variazioni coerenti, e la configurazione per livelli spaziali in sequenza che, nel rapporto tra zona giorno e zona notte, tra dentro e fuori e tra edificio e contesto, determina il suo assetto ma anche il suo carattere.

 

  • Luogo Mühlehubelweg 3, Schüpfen 
  • Committenza Ueli und Ruth Bula-Lendenmann 
  • Architettura Bearth & Deplazes, Ladner Architects AG, Chur 
  • Ingegneria civile Ferrari Gartmann AG, Chur 
  • Fisica della costruzione Martin Kant Bauphysik, Chur 
  • Progetto impianti sanitari Marco Felix AG, Chur 
  • Progetto impianti elettrici Scherler AG, Chur 
  • Progetto impianti RVC Collenberg Energietechnik AG, Chur 
  • Fotografia Ueli Bula, Schüpfen 
  • Date realizzazione 2023-2024 
  • Intervento e tipo edificio nuova costruzione  
  • Categoria edificio (Ae) abitazione Casa unifamiliare 500 m² 
  • Riscaldamento e acqua calda 100% pompa di calore geotermica 
  • Elettricità impianto fotovoltaico 256 m2 moduli  modules 3S 233 Megaslate II L 195 Wp, 45.44 kWp 
  • Produzione fotovoltaica annua 53 MWh