Com­po­si­tio­nal coun­ter­points

rth & Deplazes Architects, Ferrari Gartmann

Publikationsdatum
23-10-2025

Testo in italiano al seguente link

Studio House Bula, Schüpfen BE

Schüpfen is a small settlement north of Bern, composed of wooden houses featuring characteristic pitched roofs. At the southern edge of the built environment, surrounded by expansive greenery and facing the Bernese Seeland and the Jura, Bearth & Deplazes Architects has inserted a new residential building.

The intervention is conceived as a matryoshka, with spaces nested within one another according to a sequence of concentric layers. Beginning with the outermost layer, a retaining wall, one passes through a linear garden, a low walkway and the ramp leading to the podium, the roof overhang defining the next plane, and finally, beyond the glazed envelope, the inhabited core.

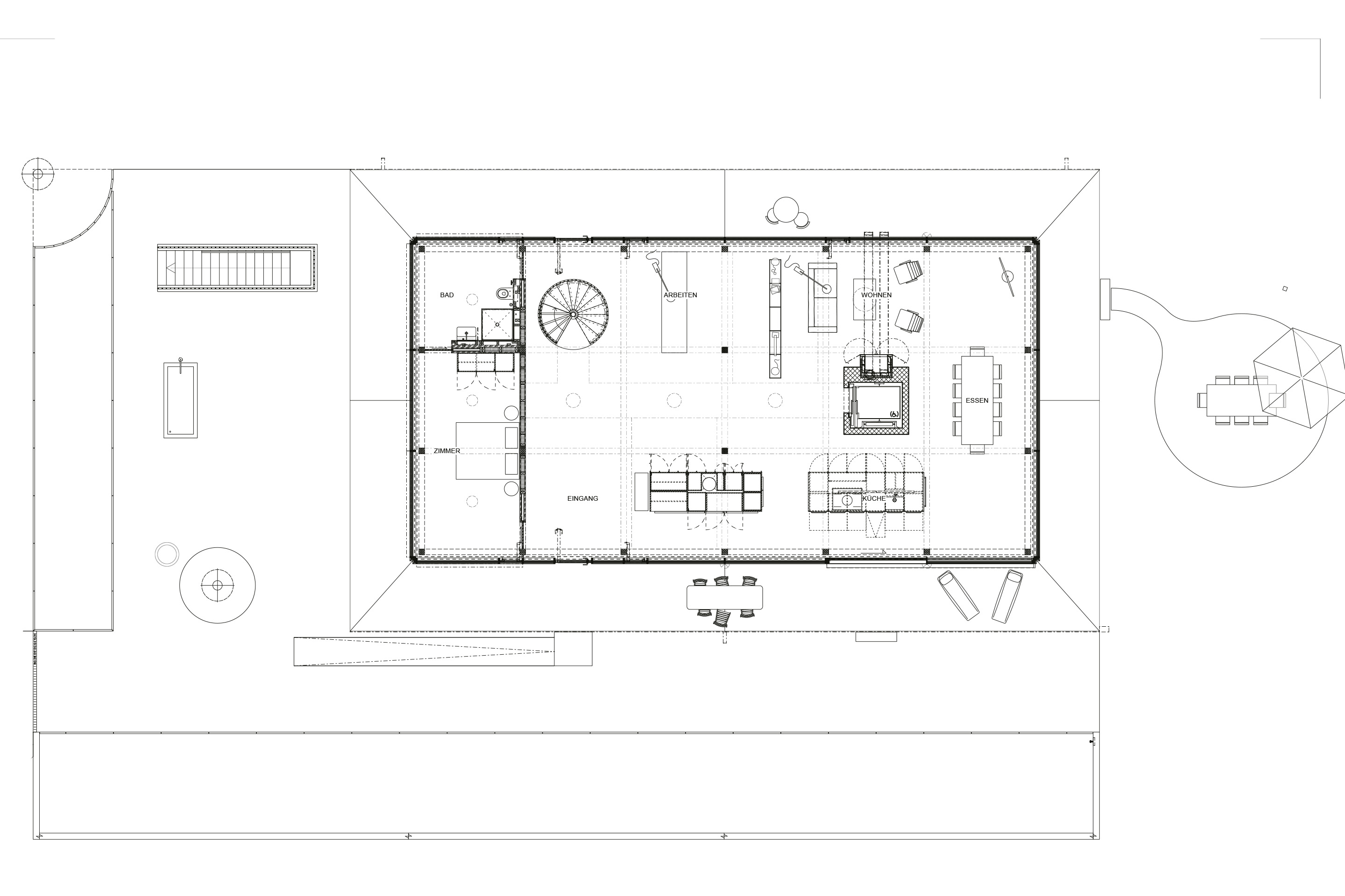
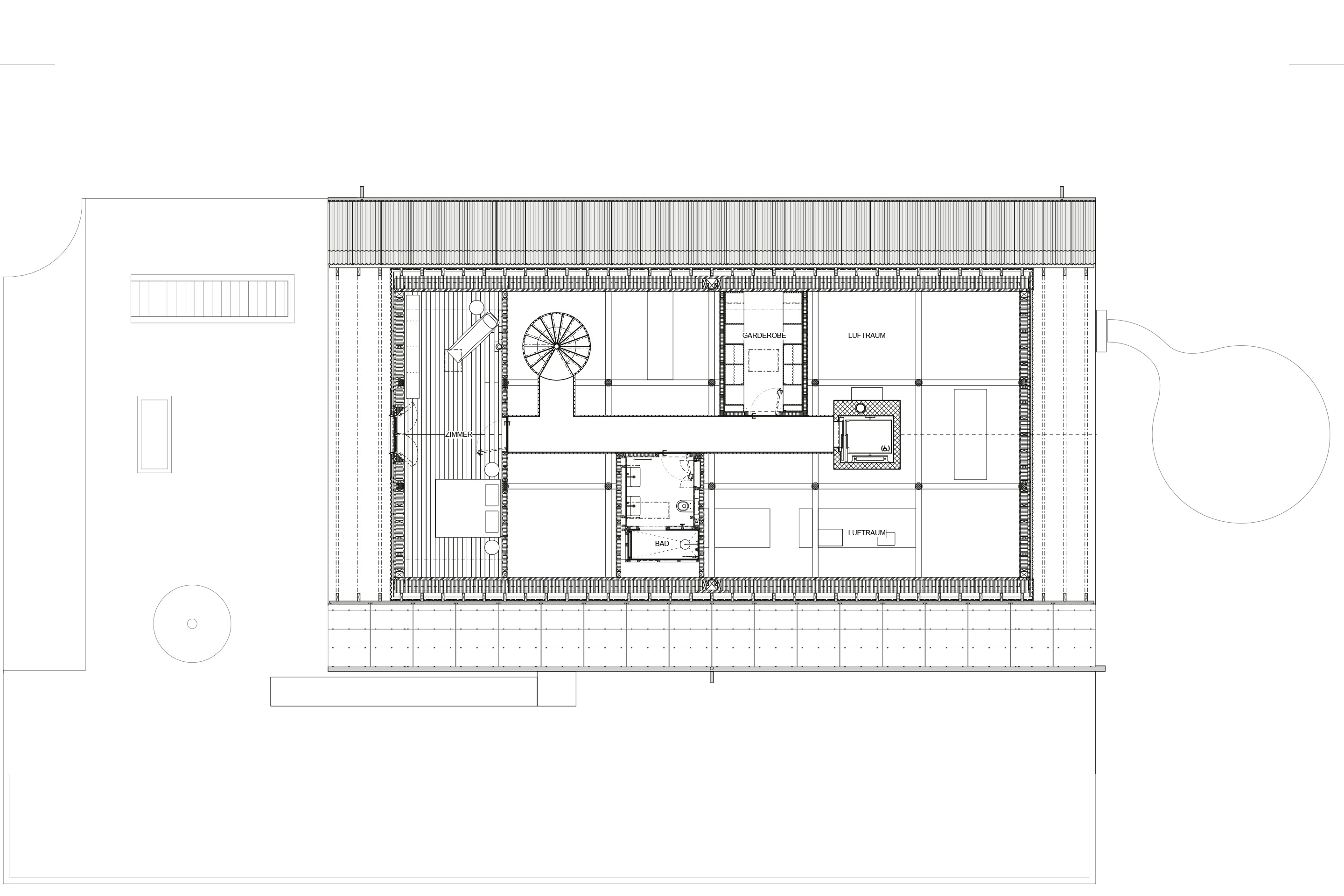
Inside, the layout accommodates a guest room, a study area, and the living zone on the ground floor; the master bedroom, bathroom, and wardrobe on the first floor; and service rooms in the basement. Circulation between the three levels is facilitated by a helical staircase at the entrance and the concrete elevator tower, which separates the study from the dining area, emphasizing the spatial generosity of the double-height zones. Access to the first floor is also enabled by a suspended walkway, which crosses the large void of the house, connecting the bedroom to the bathroom and wardrobe blocks.

The building is composed of essential gestures dictated by precise compositional and functional logics. The podium, creating a visual detachment from the terrain and a symbolic distinction between artificial and natural elements, allows for a slot bringing light to the lower floor and a covered outdoor space overlooking the garden and entrance area. The roof, clad with photovoltaic panels, references and updates a typological motif recurring in the historical context. The ground-floor glazing increases visual permeability between interior and exterior, achieved through large panes interrupted by slender mullions, whose minimal thickness and “negative corner” solution at the edges visually distinguish them from the columns punctuating the interior.

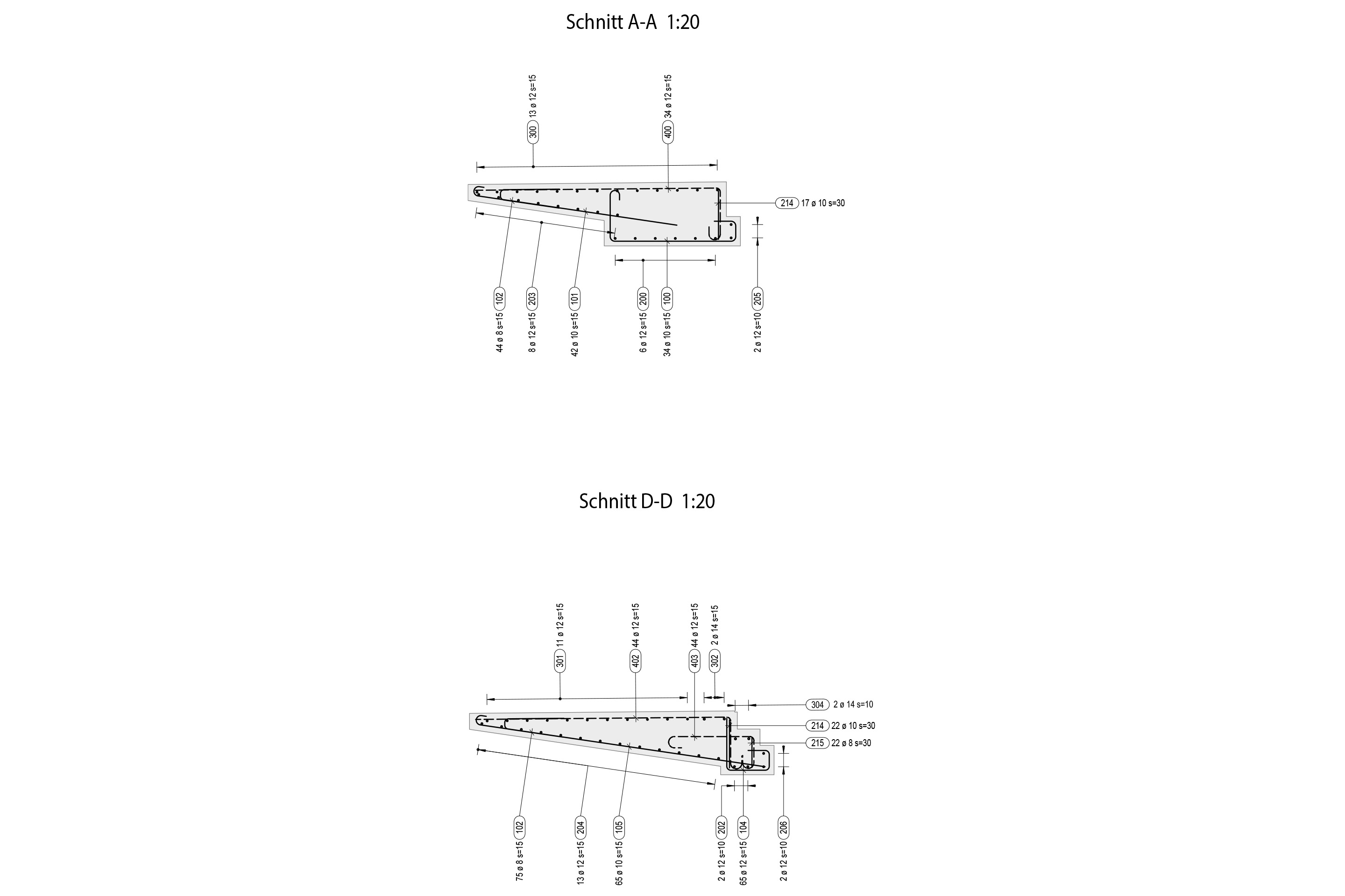
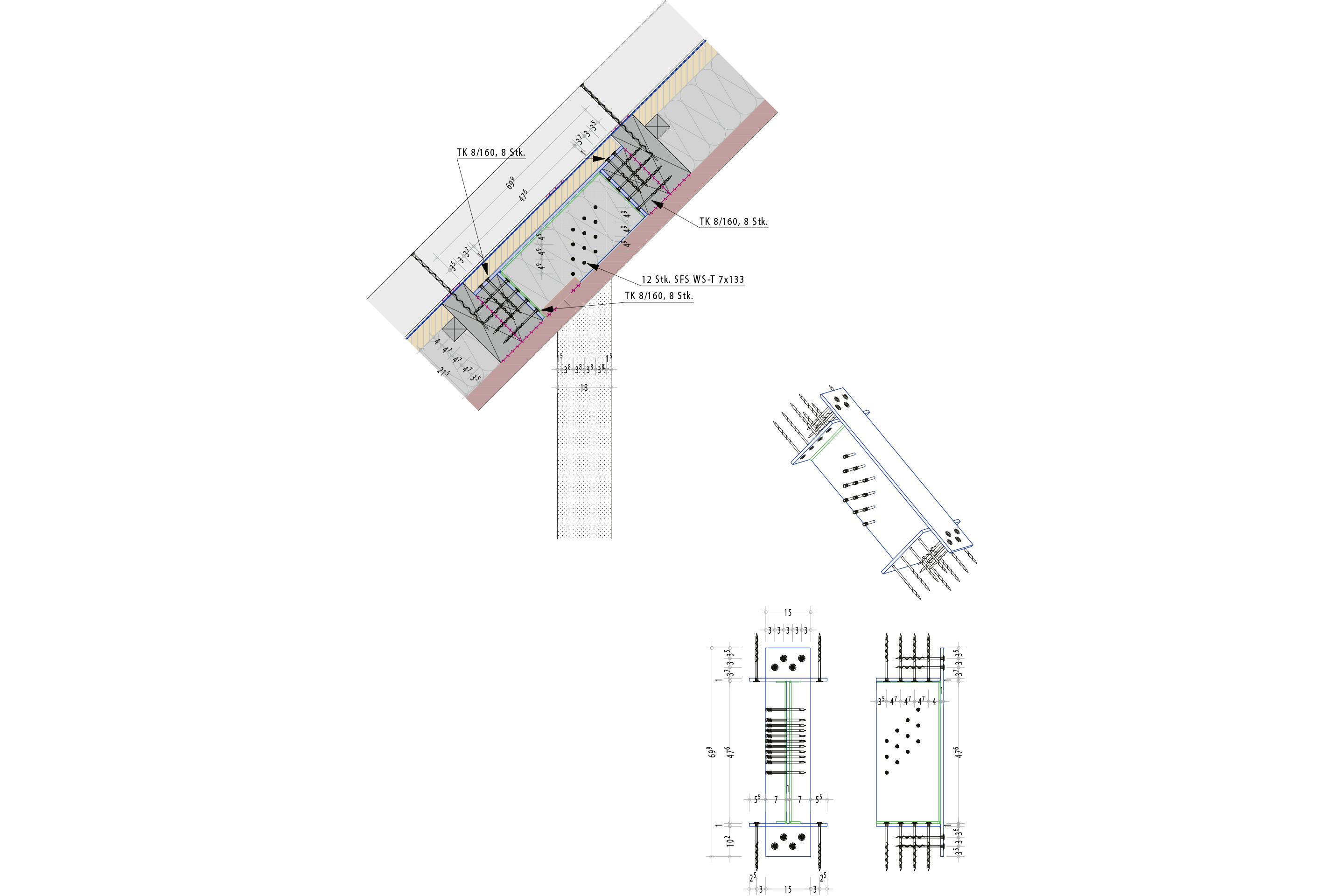
The structural component – a three-dimensional latticework structure made of red-stained wood, measuring 18 cm by 18 cm vertically and 18 cm by 20 cm horizontally – creates a kind of musical score on which the six modules of the upper floor materialize, like a sequence of notes and rests. On the first floor, the full mass of the sleeping area alternates with the void of the entrance, the full volume of the bathroom, and the three voids of the kitchen along the south side (PVPVVV); similarly, the full sleeping area alternates with the two voids of the stairwell and study, the full wardrobe, and the two voids of the living area along the north side (PVVPVV). This contrapuntal arrangement between non-corresponding volumes establishes clear functional hierarchies, separating entrance and kitchen on one side, study and living zone on the other.

Continuity is reinforced not only through the absence of partition walls but also via the timber texture, from the natural finish of the furnishings to the stained structural grid and the wall separating sleeping and living areas, and the granite floor, where the structural grid is highlighted through differentiated finishes between the grid members and the panels within.

Compositional logic rests on a mirrored and modular 10 × 20 m plan, subtly varied in certain aspects. These variations are evident in the first-floor volumetric distribution, in the contrast between the two short façades with a single window on the west side, and in the roof configuration, where the southern slope is raised to increase solar capture.

Comparing the Schüpfen house to other recent works by the studio reveals several elements of continuity. Some concern construction choices, such as the development of staggered pitched roofs also found in the Obrecht Winery in Jenins (2019–2022) and the Schneller Bader House in Tamins (2016), as well as the solar roof, present in these two projects and in the Brunner-Bapst House in Waltensburg/Vuorz (2019). More subtle but recurring themes include typological experimentation with domestic spatial configuration, the «implicit complexity» of formal decisions based on a geometric rule subjected to coherent variations, and the layered sequencing of spaces – between living and sleeping areas, interior and exterior, building and context – which defines both the organisation and the character of the house.

  • Place Mühlehubelweg 3, Schüpfen 
  • Client Ueli und Ruth Bula-Lendenmann 
  • Architecture Bearth & Deplazes, Ladner Architects AG, Chur 
  • Civil engineering Ferrari Gartmann AG, Chur 
  • Fisica della costruzione | Building physics Martin Kant Bauphysik, Chur 
  • Sanitary facilities project Marco Felix AG, Chur  
  • Electric systems project Scherler AG, Chur 
  • HVAC system project Collenberg Energietechnik AG, Chur 
  • Photography Ueli Bula, Schüpfen 
  • Timeline realizzazione | realisation 2023-2024 
  • Intervention and building type nuova costruzione | new construction 
  • Building category (Ae) abitazione Casa unifamiliare 500 m² | single family residential 500 m² 
  • Heating and hot water 100% geothermal heat pump 
  • Electricity photovoltaic system 256 m2  modules 3S 233 Megaslate II L 195 Wp, 45.44 kWp 
  • Yearly energy production 53 MWh