Flexi­bel und durch­mischt

Projektwettbewerb Holliger Baufeld U2

Auf dem Baufeld U2 im Holliger Bern plant die AG für nachhaltiges Bauen (npg AG) Wohnraum für breite Bevölkerungsschichten. Das Projekt «Stromboli» von pan m/gud Architekten, Zürich, erhielt den ersten Rang. Die Jury lobt als Erstes das filigrane und doch markante Stahlsystem, das dem Projekt Gestalt verleiht und als verbindendes Element wirkt.

Date de publication
13-02-2020

Auftraggeberin für das Projekt Baufeld U2 im Holliger, Bern, ist die AG für nachhaltiges Bauen (npg AG). Ihre Suche geht nach Projekten, die dem Ziel entsprechen, Wohnraum für breite Bevölkerungsschichten zu schaffen. Dabei soll das Entstehen urbaner Lebensentwürfe durch das Nutzen von Synergien in Gemeinschaftlichkeit und in der Förderung einer neuen individuellen Genügsamkeit ermöglicht werden. Städtisches Leben in seiner ganzen Vielfalt soll sich so entwickeln und möglich werden. Ort ist das Baufeld U2 im neuen Quartier «Holliger» auf dem Gelände der ehemaligen KVA der Stadt Bern.

Mit diesen Worten war die Aufgabe in der Aussschreibung umschrieben. Weitere aufgeführte Stichworte sind Durchmischung, vielseitige Nutzung, kostengünstiges Wohnen für Haushalte mit Kindern und Grosswohnungen. Insbesondere wurde gefordert, dass die Wohnungen vielseitig nutzbar sein sollen und sich durch einfache Massnahmen unterschiedlichen Lebenssituationen anpassen können. Genannt wurden Schaltzimmer, Studios, Zusammenlegen von Wohnungen. Erklärtes Ziel der npg ist es, eine gute Durchmischung unterschiedlicher Altersstufen und Lebensformen zu ermöglichen.

Ein Schwerpunkt sei auch das Angebot kostengünstiger Wohnungen für Haushalte mit Kindern. Auf Bereiche für Erschliessungen, die die Begegnungen der Bewohner fördern und erleichtern, wurde ebenfalls Wert gelegt.

Kriterien für die Beurteilung

Die gewählten Beurteilungskriterien legen aus einer Gesamtsicht heraus Wirkungen bzw. Qualitäten und Defizite der Projekte bezüglich der drei Säulen einer nachhaltigen Entwicklung offen.

  • Planungsidee/Gestaltung
  • Nutzung/Funktionalität
  • Wirtschaftlichkeit
  • Ökologie/Nachhaltigkeit

Aufgrund einer Präqualifikation wurden acht Projekte eingereicht und zur Beurteilung zugelassen. Die Jurierung fand Ende August 2019 statt. Nach der ersten Selektion verblieben vier Projekte in der engeren Wahl. Das Projekt «Stromboli» von pan m/gud Architekten, Zürich, erhielt den ersten Rang und wurde von der Jury zur Ausführung empfohlen.

Kompakte und prägnante Form

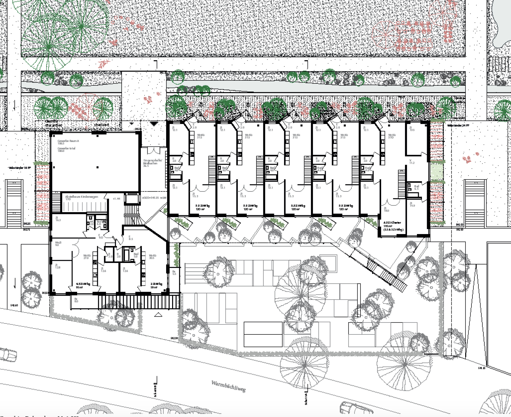
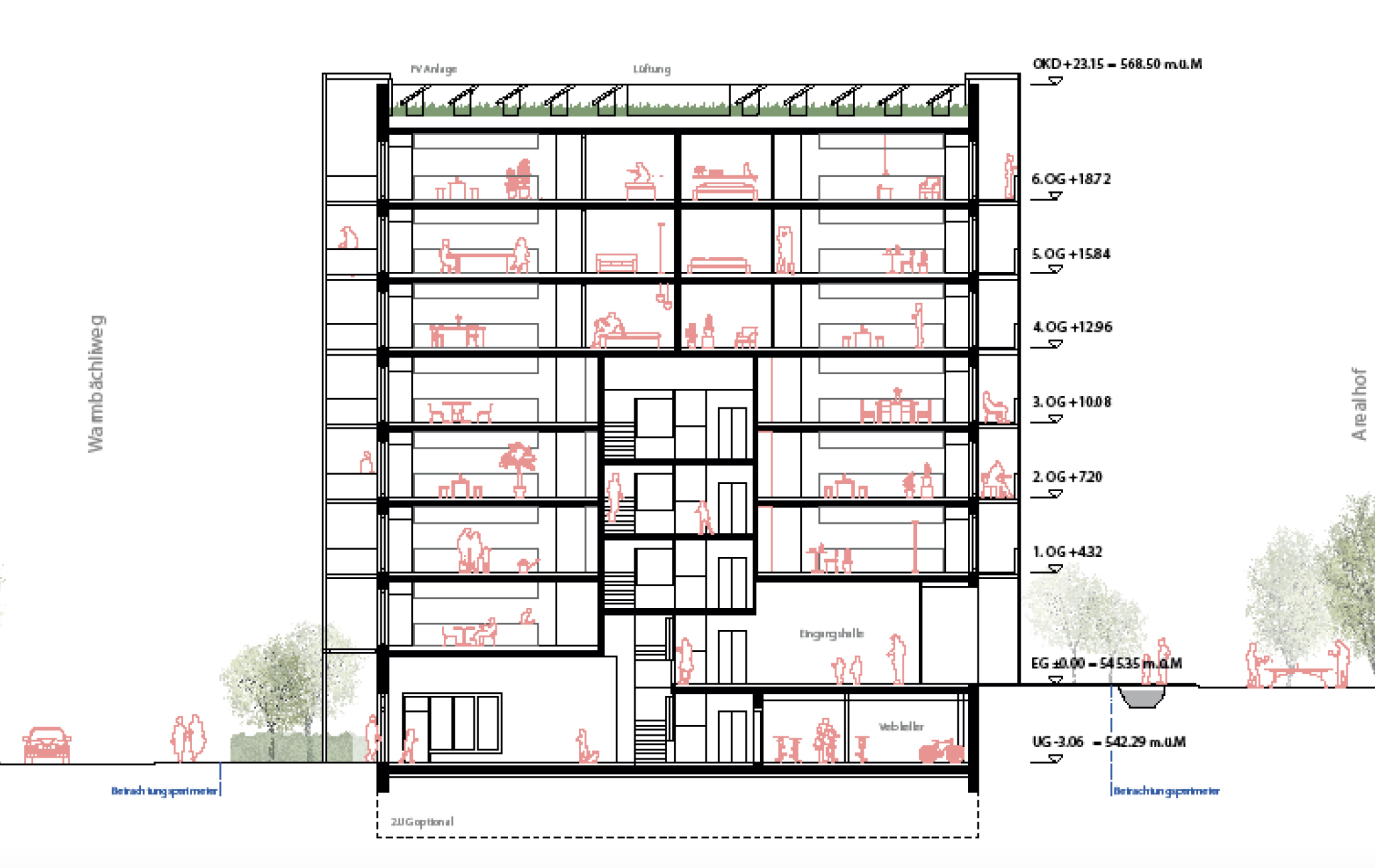
Die Jury lobt als Erstes das filigrane und doch markante Stahlsystem, das dem Projekt «Stromboli» Gestalt verleiht und als verbindendes Element wirkt. Tragstruktur und Decken sind in Massivbauweise erstellt, die Fassaden sind aus vorgefertigten, gedämmten und mineralisch verputzten Elementen in Holzrahmenbau konstruiert. Die klare und flexible Grundstruktur überzeuge, auch im Innern des Baus sind die Ebenen Arealhof und Warmbächliweg verbunden und führen so zu einer guten Adressbildung, betont der Bericht.

Durch die hohe und grosszügige Eingangshalle sind die Wohngeschosse im Turm halbgeschossig versetzt. Das erzeugt Durchblicke, Überschneidungen und reizvolle Verbindungen und schafft so Sichtbezüge und Möglichkeiten für Begegnungen und Austausch. Treppenhaus und Aufzug erschliessen die Wohnungen im hohen Gebäude und über Laubengänge jene im Längsbau. Dem gemeinschaftsorientierten Wohnen und der Kommunikation förderlich dürften der gemeinsame Zugang zum Gebäude, geräumige Laubengänge mit kleinen, den einzelnen Wohnungen zugeordneten Patios und der gemeinschaftliche Garten auf der Südseite sein.

Die insgesamt 47 verschieden grossen Wohnungen dienen unterschiedlichen Wohnformen. Auf Seite Warmbächliweg finden sich im Tiefparterre und Erdgeschoss grosse Maisonettewohnungen mit direkter Verbindung zum Garten. Die Wohnungen im Turm sind kompakt geschnitten und übereck ausgerichtet, alle mit eigenem Balkon. Die Möglichkeit, einzelne Wohnungen zu grösseren Einheiten zu verbinden, ermöglichen Wohngemeinschaften oder das Generationenwohnen.

Die Jury schätzt die kompakte Baustruktur als wirtschaftlich und langfristig flexibel ein. Sowohl in Bezug auf Energieverbrauch wie auch auf graue Energie erreiche das Projekt die erforderlichen Auflagen gut.

Weitere Pläne und Visualisierungen zum Wettbewerb finden sich auf competitions.espazium.ch

Auszeichnungen

1. Rang «Stromboli»
pan m Architekten, gud Architekten, Basler & Hofmann Ingenieure Planer und Berater, Caroline Riede Landschaftsarchitektin
2. Rang «Mondmatros»
Jaeger Koechlin Architekten, Gartenmann Engineering, Architekt und Stadtplaner Martin Josephy
3. Rang «See you around»
Stereo Architektur, Meta Landschaftsarchitektur, Wh-p Ingenieure, Durable Planung und Beratung
4. Rang «Gleich aber anders – Anders aber gleich»
E2A Piet Eckert und Wim Eckert Architekten

SachpreisrichterInnen

Günther Ketterer, Bern Verwaltungsratspräsident npg; Marc Lergier, 
Immobilien Stadt Bern, Geschäftsleitungsmitglied

FachpreisrichterInnen

Daniel Buchner, dipl. Architekt FH SIA BSA, Basel; Vorsitz Franziska Manetsch, dipl. Architektin ETH HTL SIA, Zürich; Susanne Vögeli-Gygax, dipl. Architektin FH, Bern Verwaltungsrätin npg; Thilo Jennewein, dipl. Architekt, Stadtplanungsamt Bern, Leiter Bereich Planung

Étiquettes

Sur ce sujet