Vi­site gui­dée

A l’hôtel Waldhaus Sils, où logent et travaillent quotidiennement plusieurs centaines de personnes, densité et qualité vont de pair.

Date de publication
13-02-2014
Revision
13-10-2015

Lors de la visite de ce bâtiment, tout aussi compact que gigantesque, nous nous sommes entretenus avec son propriétaire Urs Kienberger. Ce dernier nous explique comment – selon lui – la densité génère la qualité de vie de cet établissement hôtelier. Regard sur la juste mesure de l’architecture et sur l’attention portée aux services et à la régie quotidienne de l’utilisation des espaces communs. 

L’homme et l’espace


La visite débute par quelques réflexions sur l’organisation spatiale de l’étage des salles dont le hall est «le cœur de la maison». C’est en effet autour de ce vaste espace que tout s’articule: en connectant la salle à manger au fumoir, la bibliothèque au bar et les salles de conférence à la cage d’escalier, ce cœur concentre aussi l’ensemble des flux. C’est également ici que se croisent les quatre axes visuels. L’un d’eux s’étend de l’entrée principale aux grandes fenêtres situées à l’extrémité du hall semi-circulaire de l’hôtel. Les trois autres sont disposés perpendiculairement à ce dernier. «Ces axes visuels ont été partiellement interrompus par des éléments encastrés. Très jeune, je souhaitais déjà qu’ils puissent être réouverts. C’est aujourd’hui chose faite à deux endroits, grâce aux fenêtres du foyer et celles du restaurant «Arvenstube». Nous essayons de lier visuellement les espaces, d’obtenir une continuité ou d’en créer de nouvelles. Ce n’est pas toujours évident, mais c’est nécessaire pour la perception de l’espace.»

Jugée essentielle, la perception de l’espace sera abordée à maintes reprises par Kienberger lors de notre visite. Sans cesse, il remet en place un meuble, ouvre en grand une porte battante, ferme un rideau ou réajuste un bouquet de fleurs. Le diable – l’effet spatial recherché – se cache dans les détails1. Ceux-ci doivent être adaptés selon l’heure du jour, l’incidence de la lumière et la fréquentation des pièces. Lorsque l’occupation de l’hôtel est faible, la salle des mariages reste par exemple fermée: «On doit répartir les clients de manière à ce qu’ils aient suffisamment de place, mais on doit aussi les «concentrer» pour qu’ils ne se sentent pas isolés. Il ne doit pas y avoir de coins morts.»

Proposition de densité sociale


Avant de se rendre dans la salle des mariages, nous passons par l’élégant salon Empire et traversons la salle à manger où les tables sont en train d’être dressées. «L’hôtel est un lieu de vie partagé où les clients doivent et veulent se rencontrer. La formation de groupes isolés qui s’ignorent les uns les autres est à éviter.» Un tel constat démontre que les connaissances sur les hommes et la spatialité acquises par Kienberger au fil des années ne se limitent pas seulement à son hôtel. Ses phrases pourraient tout aussi bien servir de maximes dans le cas d’un projet de développement urbain offrant un degré de qualité sociale élevé.
«Un hôtel fréquenté ne doit pas être privatif: aucun groupe ne doit prendre le dessus, monopoliser l’hôtel ou dominer les espaces. C’est pourquoi nous renonçons à accueillir des conférences ou des évènements de trop grande importance.» Lorsque la densité est assumée, elle devient alors vecteur de qualité sociale. Au Waldhaus, elle est une option non une contrainte.

Espaces non définis et utilisations variables


En dépit d’un programme culturel chargé, le Waldhaus met à disposition de nombreux espaces propices à la détente comme la bibliothèque ou le hall avec ses sofas disposés près de la cheminée. Il y a également dans la cage d’escalier et dans les larges couloirs des coins lecture agrémentés de fenêtres offrant des vues splendides sur le paysage environnant. «Lorsque l’occupation d’un lieu est dense, les espaces sans fonction – comme par exemple le foyer – sont nécessaires pour éviter tout sentiment de contrainte. Ils créent une sorte de respiration, au sens acoustique et social du terme. Ces espaces délibérément indéfinis doivent cependant être soignés et présenter un caractère fort, sinon ils courent le risque de paraître inhospitaliers et de rester vides», explique Kienberger. Pour la direction de l’hôtel, la modération de la densité et l’optimisation des espaces se traduisent par une présence toujours discrète, une observation précise et une réaction rapide face aux variations des heures de la journée et des besoins. Les espaces se voient affecter plusieurs usages et les meubles sont souvent déplacés. D’un jour à l’autre, le salon Empire passe d’une scène d’animation musicale à un buffet de fromages. Quant au hall, il sert tantôt de salon de danse, tantôt de salle de lecture. «La qualité est invisible. Les meubles, la lumière, l’acoustique, la ventilation, les services hôteliers, tout nécessite un contrôle permanent. Et cela pour préserver le caractère de l’établissement. C’est parfois un exercice périlleux.»

Histoire et identité

 
Au fil de la visite, une série de chambres datant de différentes époques se succède: un grand salon d’inspiration Art déco, une suite avec salle de bains moderne ou encore une mansarde où il n’y a la place que pour un lit de petite longueur. De taille extrêmement variable, chaque chambre a son caractère propre et toutes ont leurs habitués. Globalement, les espaces privatifs sont plutôt de dimensions modestes. Quelques mètres carrés ne suffisent-ils pas lorsque les espaces collectifs sont généreux? «Il doit y avoir un équilibre entre le nombre de chambres et celui des espaces partagés. Etant donné que les besoins varient, nous devons sans cesse faire des transformations. A cela vient s’ajouter le besoin toujours croissant de confort et de nouveaux services. Certaines utilisations passent de mode.»

Après les chambres, l’imposante cuisine, les caves à provisions, la cantine, les locaux de séjour du personnel et les logements des apprentis. Ici, l’intérieur est plus sobre. Après une visite de la buanderie, place au «pont des machines» situé à l’étage inférieur. Plus on descend, plus la température et le bruit augmentent. Si le hall incarne le cœur de l’hôtel, nous sommes actuellement dans ses poumons, mais aussi dans sa mémoire. Au quatrième sous-sol se trouve un musée insolite installé par l’artiste Gisueppe Reichmuth, dans ce qui était autrefois la boulangerie. Tandis que des objets en provenance du débarras de la grand-mère de Kienberger, des ustensiles de cuisine et des jouets usagés, reprennent discrètement vie, des skieurs évoluent dans une baignoire à pattes de lion et des voitures de sport traversent le four. Dans une autre pièce, un stock de skis en bois et des valises abandonnées par des clients qui ne sont jamais revenus au Waldhaus après 1945.

«Tout en respectant le plus possible la tradition, nous essayons de renouveler l’hôtel en permanence.» La conservation historique se fait jusque dans les moindres détails. C’est pourquoi, dans les caves du Waldhaus, il y a – en plus du musée – l’atelier du mécanicien de l’hôtel, Guido Schmidt. Ses activités sont tout aussi variées que la diversité et la richesse des machines et appareils de l’hôtel. A son actif, la réparation de neuf horloges murales de 1908 dispersées dans tout l’établissement – ces dernières sont commandées par une impulsion électrique de l’horloge mère située dans le bureau –, ou encore celle du piano mécanique Welte-Mignon qui joue des mélodies oubliées depuis des lustres – lesquelles sont enregistrées sur des cartes perforées. Aujourd’hui, c’est sur une machine à café des années 1950 qu’il se penche avec son collaborateur. Selon lui «n’importe qui peut remplacer, mais réparer c’est tout un art». Réparer c’est perpétuer la culture de la durabilité». Et quelle est l’importance du programme culturel pour le Waldhaus? «On pourrait aussi bien s’en passer», concède Kienberger. «Mais je crois que ça ferait longtemps que je ne serais plus ici. La durabilité, c’est aussi être capable d’organiser son travail de manière à aimer le faire pendant longtemps.»
De retour dans le hall, la visite s’achève sur une dernière question: quelle est la quintessence de la philosophie du Waldhaus? «Je crois que ce n’est pas la question ‹Qu’est-ce-qui est rentable?› qui se trouve au cœur de nos préoccupations mais plutôt ‹Que pouvons-nous nous permettre?› Qu’est-ce-qui est apprécié au niveau des espaces, des offres de services et du programme culturel que nous aimerions offrir de sorte que cela améliore la qualité de séjour des clients et notre qualité de vie? D’ailleurs, la question complémentaire: ‹A quoi pouvons-nous renoncer?› est tout aussi intéressante. Il est parfois surprenant de prendre conscience de tout ce dont nous n’avons en réalité pas besoin.» Fin de la visite.

Habiter comme à l’hôtel?


En tant qu’entreprise privée, le grand hôtel dépend financièrement de la fréquentation de sa clientèle. Les clients dépensent en moyenne 10 000 francs par personne et par mois; cet argent finance une grande partie des salaires dédiés aux prestations de services. Les résidents se répartissent en deux catégories: la clientèle privée et les employés. 
Le travail domestique est monétisé à 100%: le nettoyage, la cuisine, le service des lits etc. sont compris dans le prix de la chambre2. Les clients s’offrent des commodités dont ils n’auraient en réalité nullement besoin: tous les jours, ils bénéficient d’un ou deux menus composé(s) de cinq plats, des nouvelles serviettes, de concerts. En supprimant ces frivolités, et si les clients prenaient eux-mêmes en charge une partie du travail domestique, il ne resterait que les services à proprement parler. 
Différents projets d’habitation sont déjà en train de mettre en pratique cette démarche ; la coopérative Karthago de Zurich dispose depuis 16 ans d’une salle à manger avec cuisinier; au sein du lotissement James, l’investisseur a mandaté une entreprise pour la mise en place de services de conciergerie. Dans le projet multigénérationnel Giesserei de Winterthour (TEC21 9/2013), les coûts des infrastructures communautaires sont méticuleusement détaillés: les habitants ont dressé une liste des obligations quotidiennes et des activités communautaires – de la maintenance des installations techniques des bâtiments à la modération des groupes de travail. Au final, 36 heures de participation active par an et par habitant seraient nécessaires pour réaliser l’ensemble de ces prestations.
C’est sans doute la future coopérative Kalkbreite de Zurich qui pousse le plus loin cette démarche, en développant un complexe hybride dans lequel habiteront et travailleront quelque 350 personnes. Ce projet qui sera prochainement inauguré, est né d’un processus participatif pluriannuel et propose une multitude de prestations de services. En plus des offres gastronomique, commercial et culturel, qui peuvent fonctionner de manière autonome dans un site urbain, il y aura une petite pension, des chambres, des espaces de travail en location, un hall d’entrée avec une conciergerie, une cafétéria, une halte-garderie, une laverie et un jardin suspendu avec sauna attenant. Les logements prennent aussi un caractère hôtelier: les petits studios sont regroupés et se partagent une salle commune; les plus grands disposent d’une salle de restaurant et d’une cuisine gastronomique.
Pour mettre en œuvre des qualités hôtelières dans la planification urbaine, trois possibilités peuvent être combinées : des services offerts par des restaurants ou des bars peuvent, par exemple, être intégrés au programme de construction en tant qu’exploitations commerciales privées. Si la demande est trop faible pour des exploitations commerciales, il est possible d’opter pour l’une des multiples formes d’utilisations collectives des rez-de-chaussée. Il est finalement envisageable de concevoir des formes d’organisation mixtes – par exemple avec la participation de la commune –, qui peuvent combiner services d’utilité publique et offres commerciales.

Apprendre du grand hôtel 


L’hôtel de luxe Waldhaus Sils montre comment économiser tout en étant généreux: les espaces privatifs peuvent ainsi être réduits si une administration compétente soigne suffisamment l’entretien des espaces communs. Le grand hôtel illustre aussi comment un lieu social dans lequel toutes les formes d’échange sont possibles peut être un endroit agréable et de qualité. Cependant, dans les projets de planification et les concours où la fonction prend le dessus, ce sont les dépenses liées à l’entretien des entrées, des cages d’escalier et des couloirs qui sont minimisées. Pour compenser l’inhospitalité ainsi générée, les espaces individuels s’agrandissent3. Le recours à l’organisation communautaire dans la vie quotidienne – que ce soit pour la garde d’enfants, l’aménagement des loisirs ou les personnes âgées – ne cesse d’augmenter. L’organisation communautaire est non seulement nécessaire pour maintenir l’équilibre personnel de chacun, mais elle offre aussi un potentiel capable de générer des modes de vie durables. C’est en agissant ainsi que le lien entre prospérité croissante, individualisation et gaspillage des ressources pourra être brisé. Les espaces communautaires jouent un rôle capital dans la planification de lotissements et de quartiers résidentiels. La question qui mène à la production d’un mode d’habitat durable n’est pas : comment faire des constructions à haute performance énergétique, à des coûts avantageux et nécessitant peu d’entretien? mais devrait plutôt être : quels beaux espaces, quelles prestations de service et quel soin souhaitons-nous offrir lors de l’entretien quotidien des espaces? Ceci remet en question les stratégies courantes de planification et leur donne une nouvelle orientation : qui peut prendre en charge de véritables surfaces communautaires (il ne s’agit pas ici des espaces qui doivent être remis à l’administration après la fête d’anniversaire des enfants)? Qui peut exploiter des espaces ordinaires, leur donner du caractère, réagir à l’évolution des besoins et les réaménager en permanence pour maintenir leur attractivité? 
L’analyse de l’hôtel Waldhaus révèle une chose capitale: tant que le développement urbain et l’urbanisation n’engageront pas de larges débats sur la qualité de vie et l’organisation sociale, ils demeureront dépourvus de sens et ne contribueront en rien à un développement durable.

 

Notes

1. En référence à la célèbre phrase énoncée par Mies van der Rohe «Gott steckt im Detail» (Dieu est dans les détails). 
2. La vérité des coûts s’applique ici aussi dans une perspective globale: les salaires sont versés en francs suisses, les employés sont correctement rémunérés, les clients ne «profitent» pas de l’exploitation du personnel comme dans le cas des voyages à forfait pour vacances à la plage dans les pays à bas salaires.
3. A ce sujet, voir Alexander Mitscherlich, Die Unwirtlichkeit unserer Städte, Francfort, 1965. 

 

Hôtel Waldhaus Sils

Avant d’ouvrir leur propre établissement, Josef et Amalie Giger-Nigg ont dirigé avec succès de grands hôtels dans le canton de St-Gall, dans les Grisons et à l’étranger. Lieu de villégiature pour riches européens depuis la seconde moitié du 19e siècle, la Haute-Engadine a connu un essor particulier avec le raccordement au réseau routier et ferroviaire. C’est avec soin que le couple choisit le lieu et l’emplacement du Waldhaus Sils. 
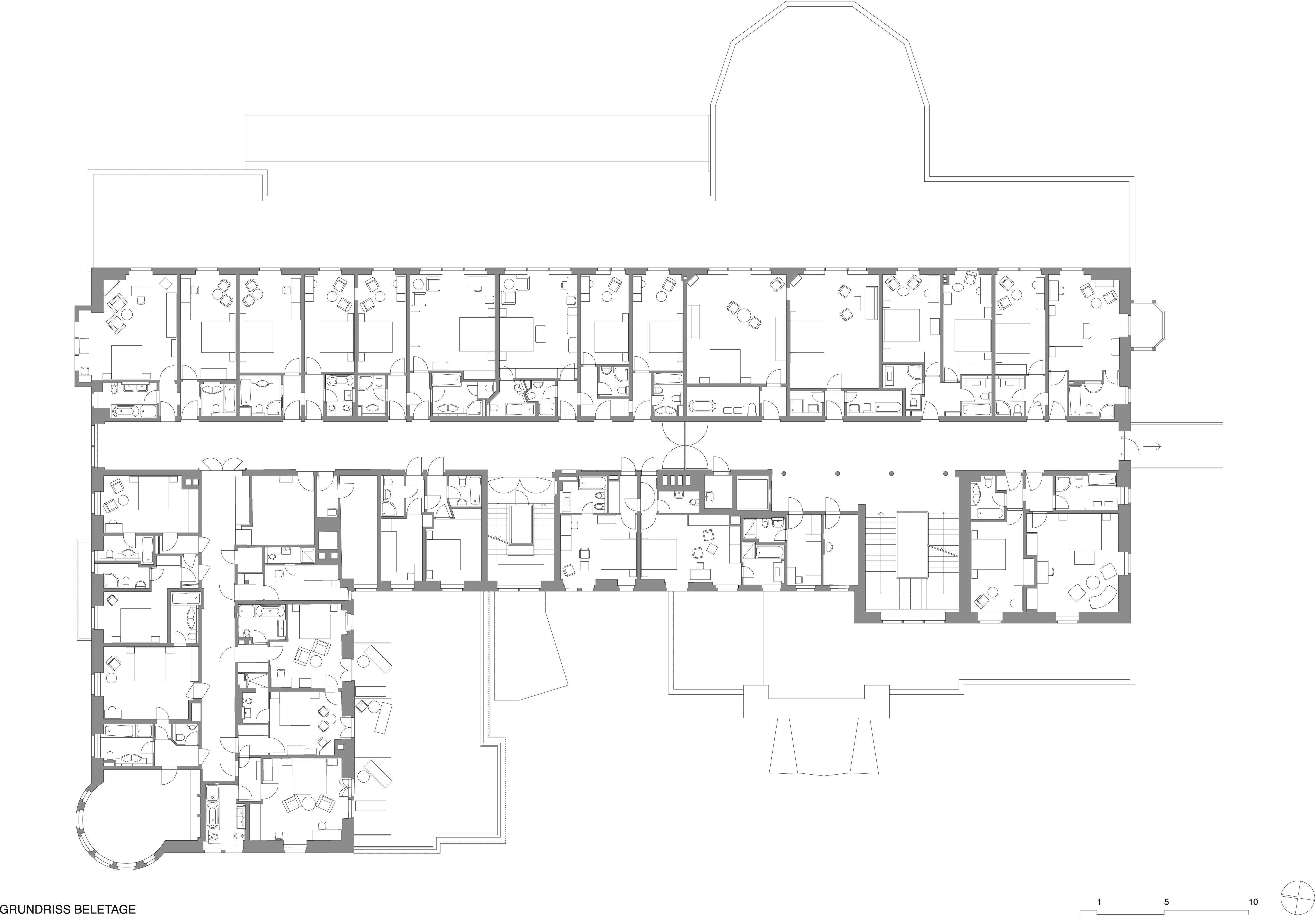
L’imposante construction a vu le jour de 1906 à 1908, d’après les plans du jeune architecte Karl Koller. Il resta toujours propriété de la famille fondatrice. Depuis 2010, il est dirigé par Urs Kienberger et par ses neveux Claudio et Patrick Dietrich. En pleine saison, il compte 290 clients, dont environ 70 enfants, et plus de 150 employés. Le lien familial qui unit propriétaires et exploitants de génération en génération s’inscrit dans la stratégie de développement de l’établissement. Le Waldhaus se veut une patrie temporaire, une auberge, un projet durable. Le volume compact émerge de la paroi rocheuse escarpée et repose sur plusieurs étages en sous-sol. Au niveau de l’entrée, appelée « étage des salles », les espaces de réception et de convivialité se succèdent en belles enfilades. Une grande cage d’escalier relie le hall d’entrée aux quatre étages supérieurs où 140 chambres se déploient le long de larges couloirs.
Ces dernières années, le bureau d’architecture Miller&Maranta a réorganisé et remodelé l’entrée et une partie des salles de séjour (TEC21 13/2009). Trois salles de conférence ont ainsi été créées sur la dolomite tout en préservant le caractère extrêmement compact de l’établissement. Lors de la dernière intervention en 2012, les architectes ont créé un fumoir ovale avec cheminée à la place du petit restaurant qu’ils ont démonté, pivoté de 90 degrés et réaménagé. Presque chaque année, l’architecte Armando Ruinelli de Soglio rafraîchit quelques chambres. Respect pour le bâti existant et esprit du lieu ont guidé ces transformations. Le respect du bâtiment classé monument historique n’est pas perçu par les propriétaires comme une contrainte mais comme un réel travail de mémoire et de mise en valeur d’une riche histoire qui constitue le caractère principal de l’hôtel. Tous les espaces communs d’origine du Waldhaus Sils ont préservé leur taille et leur fonction d’origine alors qu’ils ont fait place, dans les grands hôtels – dont la plupart sont aujourd’hui propriétés de grands groupes d’investissement –, à des boutiques de luxes. A l’inverse de ces derniers, l’offre de remise en forme de l’hôtel grison est modeste. La piscine intérieure, encastrée en 1970 par Otto Glaus et Robert Obrist dans la forêt de mélèzes aux parois rocheuses, est entretenue avec le respect exigé par sa valeur historique.

 

Employés au Waldhaus Sils (état janvier 2013)

Total 154, dont 20 apprentis et stagiaires ainsi que quelques emplois partiels
Gastronomie  78, dont 33 service (chef de service, sommelier, serveuses et serveurs), 25 cuisine, 14 économat, nettoyage de la cuisine, 6 bar
Service des chambres 33, dont 22 étage, 11 lingerie/buanderie
Administration et entretien 32, dont 5 direction, 12 bureau, 10 réception, 5 artisans (installations techniques, sécurité, électricien, menuisier, jardinier)
Programme à l’intention des clients et remise en forme 11, dont 3 musique, 8 piscine intérieure, masseur, garderie, fleuriste, professeur de tennis et de ski

Magazine

Sur ce sujet