Points de mire en dif­féré

À Leysin (VD), meier + associés architectes ont réalisé un bâtiment qui accueille des formations et des camps de vacances. Grâce à un subtil dispositif de façade, le regard des occupants est dirigé vers les majestueuses Dents du Midi.

Date de publication
06-10-2023

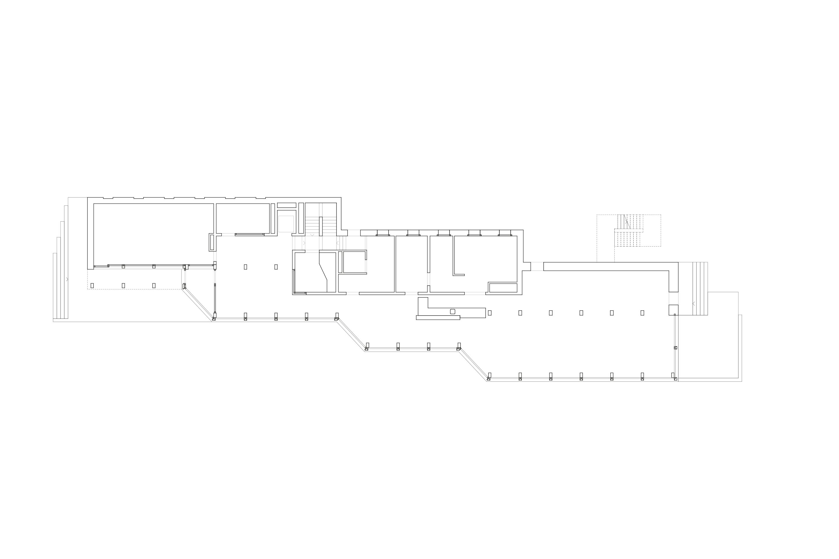
Au premier virage de la route montant du terminus de la ligne à crémaillère arrivant à Leysin-Feydey, le regard se porte immédiatement en hauteur, vers le centre pédagogique «Les Cabris». D’abord, sur sa façade de bois sombre, rythmée par les zigzags verticaux du volume qui scandent le front du bâtiment. Une fois à l’intérieur, c’est le revirement: dans les espaces communs vitrés du sol au plafond, on se ­retrouve face au panorama unique des Alpes, avec les sept cimes des Dents du Midi en point de mire. Un parti subtil a motivé ce dispositif de façade en écho au décor montagneux. Les architectes proposent de grandes fenêtres en angle ouvert invitant les hôtes à se tourner dans la position optimale permettant de jouir de la vue.

Dormir au nord, manger au sud

Leysin s’élève à 1253 m, au nord-ouest du district d’Aigle. Dès 1900, le village s’est fait un nom comme lieu de cure, avec plusieurs sanatoriums spécialisés dans l’accueil d’enfants. Au pic de cette activité, quelque 80 bâtiments érigés sur la pente abrupte y étaient consacrés. Après la ­Seconde Guerre mondiale, l’arrivée des antibiotiques pour traiter les maladies pulmonaires s’est traduite par un effondrement économique, avant que des écoles viennent s’installer dans quelques-uns des grands hôtels et établissements de soins désertés. L’American College of Switzerland et la ­Leysin American School se sont alors ­notamment établis à Leysin.

Cet article est paru dans le numéro spécial «Ville en bois – Hôtels et bâtiments en bois pour les loisirs». Vous trouverez d'autres articles sur le thème du bois dans notre dossier numérique.

Le Centre pédagogique alpin conçu par meier + associés architectes déploie ses ­espaces collectifs en une coursive vitrée sur trois étages qui s’étire sur toute la largeur de la parcelle. Comme les édifices historiques avec leurs vérandas ouvertes sur la vallée, le bâtiment tire parti de l’orientation solaire et visuelle offerte par la situation en balcon. En l’occurrence, ce ne sont pas les chambres mais les locaux communs qui sont tournés vers le sud. Les zones libres permises par les décrochements de la ­façade au rez-de-chaussée et aux étages supérieurs offrent une diversité d’usages aux élèves en camp de ski ou aux enseignants venus pour des formations continues. À l’arrière du ­bâtiment donnant sur l’orée de la forêt, les étages accueillent 25 chambres tout en longueur, tandis que le côté offre dix chambres individuelles supplémentaires pour un ­total de 110 lits. L’aménagement de chacune d’elles consiste en un meuble en bois intégrant des surfaces de rangement et des couchettes en enfilade.

Lumière en façade

La structure apparente est répétitive et scande les espaces par une série de poteaux et de poutres préfabriqués en bois d’épicéa local légèrement lasuré en blanc. À l’intérieur, le concept des matières tend à marier le bois clair aux cailloux du Rhône clairsemés dans le sol en terrazzo du restaurant, aux agrégats des murs en béton du rez-de-chaussée. Pour répondre aux risques naturels, le socle, la cage d’escalier et le sous-sol sont aussi en béton. Un espace en forme de puits à double vitrage offre un mur d’escalade qui va du rez au faîte du bâtiment.

Le traitement de la façade évoque les œuvres du peintre français Pierre Soulages, dont les expériences ne visaient pas la couleur, mais les effets de la lumière sur celle-ci. De fait, l’incidence de la lumière sur le bardage vertical noir à clins en modifie la texture et l’expression. Ce chromatisme évoque encore le chalet d’origine situé en lisière de forêt, dont l’enveloppe noircie par le soleil a donné son nom au chemin du Chalet Noir, qui passe derrière le centre ­pédagogique alpin.

Participants au projet

 

Maître d’ouvrage
Alain Moser, école Moser, Genève

 

Architecture
meier + associés architectes, Genève

 

Direction des travaux
CW Architectes, Sion

 

Ingénieur civil
structurame, Genève

 

Ingénieur chauffage ventilation
SB Technique, Genève

 

Ingénieur électricien
Guerin Guinnard, Vionnaz

 

Acoustique
d’Silence Acoustique, Lausanne

 

Géotechnique
Gadz, Genève

 

Bâtiment

 

Surface utile (SIA 416)
1660 m2

 

Volume
5686 m3

 

Certificat
Label Bois Suisse

 

Prix
2e prix de l’Immobilier romand, 2022

 

Bois et construction

 

Façade
856 m2, sapin blanc (Suisse)

 

Structure porteuse
Bois lamellé-collé GL24H épicea (Jura), 1350 m2

 

Dates et coûts

 

Concours sur invitation
2018

 

Réalisation
2020-2021

 

Montage da la structure en bois
4 semaines

 

Coût du bois (CFC 214)
620 000 CHF

Sur ce sujet