Une icône ja­po­naise à l'EPFL

Sur un campus chargé de bâtiments-signes plus ou moins marqués, Kengo Kuma livre une nouvelle icône qui essentialise l’architecture nipponne.

Date de publication
09-11-2016
Revision
14-11-2016

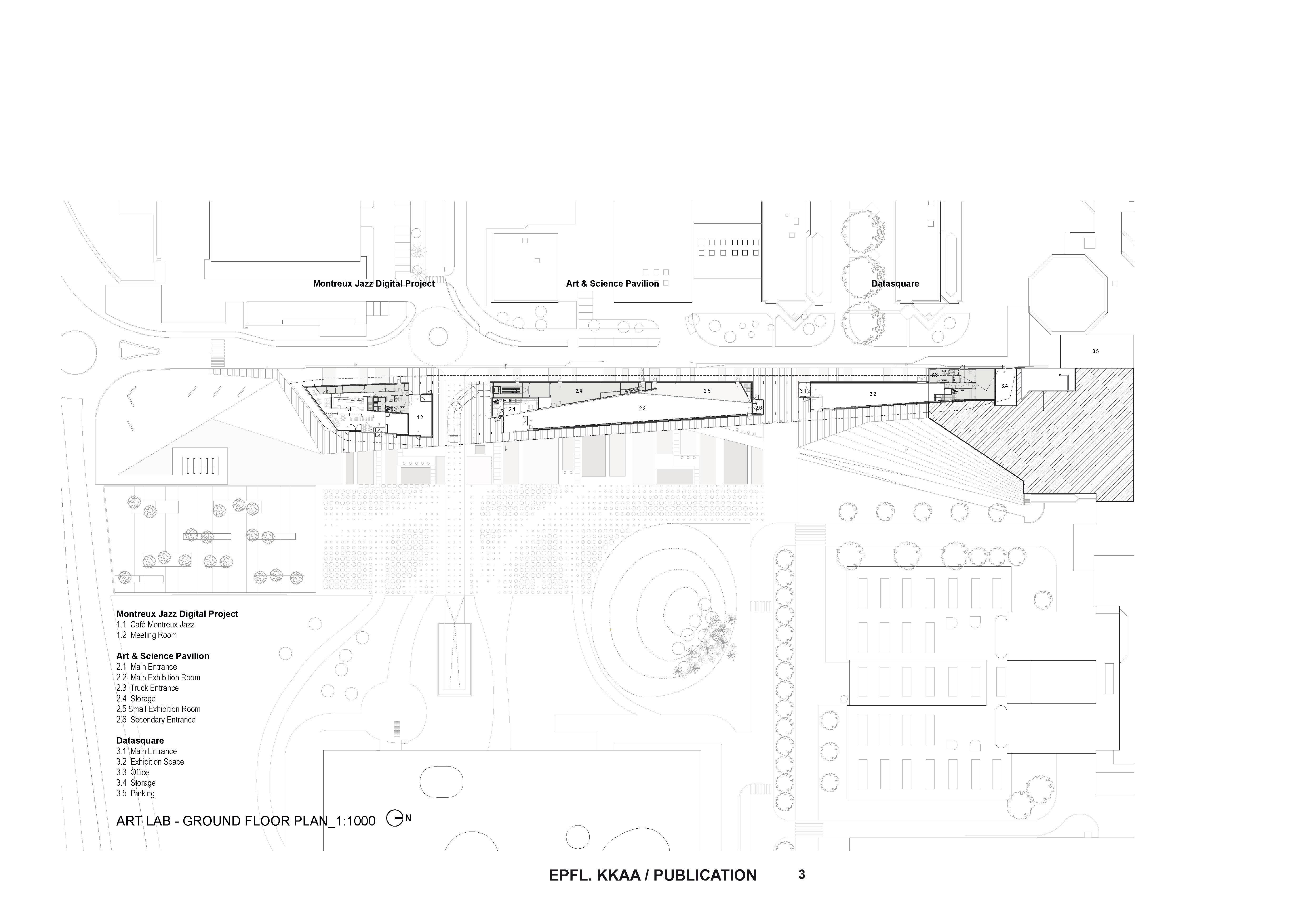
En arrivant depuis l’Esplanade, le nouvel opus architectural de l’EPFL se laisse rapidement saisir dans son entièreté. Une longue toiture à double pan pliée recouvre trois pavillons en bois : deux salles d’exposition et un espace regroupant un café-restaurant et un lieu pour consulter des archives musicales (lire article Inside Under One Roof). Le célèbre architecte japonais associé à un bureau suisse bien rodé aux exigences légales et constructives locales1, accompagnés d’une armée d’ingénieurs et encadrés par un maître d’ouvrage soucieux de son image de marque; tout ce beau monde s’est attelé depuis quatre ans à mener à bien le projet sans perdre de vue le slogan initial du concours remporté : Under One Roof. Le concept architectural et l’effet visuel sont immédiats, mais une telle concision conceptuelle ne risque-elle pas d’enfermer l’architecture dans les limites de son signifié et de la réduire à une icône? 
Depuis la place Cosandey, l’appréhension du projet est moins immédiate, peut-être plus subtile aussi. Avec à gauche le Learning Center et au fond les cimes du Chablais savoyard voilées par la brume automnale, la scène semble tout droit découler d’une estampe de Hiroshige. Même Augustin Berque n’aurait pas pu rêver d’un tel laboratoire mésologique à ciel ouvert2 : sur un même terrain, deux projets réalisés par des architectes revendiquant leurs filiations à la spatialité nipponne se font face, l’un fonctionnant comme le contre-portrait de l’autre.

Mésologies 

Kuma adopte un parti urbain concis et efficace. Selon un axe nord-sud, il implante son bâtiment le long de l’allée de Savoie, fabriquant ainsi un front bâti de plus de 200 mètres qui définit distinctement les limites ouest de la place Cosandey, futur espace public majeur du campus. Ensuite, tel un jeu d’origami géant, il dépose un grand toit à double pente qui se plie pour épouser la topographique accidentée du sol. L’effet visuel est saisissant : la silhouette du faîtage se poursuit avec celle des montagnes au loin. A l’extrémité nord du bâtiment, la toiture se replie et forme un impressionnant porte-à-faux trigonal dont un sommet est posé au sol et l’autre est suspendu dans le vide (lire l'article Structure hybride). Depuis ce préau monumental, il faut longer un long mur aveugle couvert par une marquise continue sur tout le bâtiment pour atteindre les deux porches permettant d’accéder aux espaces d’expositions. A l’extrémité sud du bâtiment, la toiture se rabat une dernière fois vers le sol, cadrant la vue depuis le café-restaurant vers le lac et sa façade montagneuse. A ces attentions contextuelles et plis topographiques du ArtLab rétorque la géométrie autonome, indifférente au site et détachée du sol du Learning Center. Les relations qu’entretiennent les deux projets avec le contexte de dispersion architecturale symptomatique du campus sont diamétralement opposées. Alors que le projet de Sanaa prend part à cet éparpillement urbain, celui de Kuma tente de le résorber, quitte à faire appel à des dispositifs urbains tirés de la ville constituée. Implantation axiale, alignement en front de rue, toiture continue, préau, porches d’entrées ou encore marquise, sont autant d’archétypes architecturaux qu’il est plus habituel de rencontrer dans un centre ville ancien que dans un campus universitaire.
L’effet de loupe que les deux projets exercent l’un sur l’autre s’amplifie au fur et à mesure que l’on se rapproche des bâtiments. Pour le ArtLab, la texture et la teinte du bois de façade, l’ombre projetée par l’avancée de toiture et enfin le relief créé par les saillies des poteaux façonnent une peau épicurienne qui contraste avec l’enveloppe vitrée et lisse du Learning Center. A l’intérieur des bâtiments, les ambiances créées par les deux architectes deviennent littéralement antagoniques. Dans le ArtLab, les espaces dans les pavillons sont déterminés par les exigences de leurs programmations respectives ou encore par la forme extérieure du bâtiment. Les deux salles d’expositions sont seulement éclairées à leurs extrémités cardinales. Fermées sur leurs faces latérales, l’effet de tube est amplifié par la perspective générée par le rythme soutenu des portiques visibles depuis l’intérieur. Dans le café-restaurant, les plis de la toiture et de la façade contraignent grandement la géométrie et la configuration des espaces intérieurs. A l’opposée, dans le Learning Center, l’effacement des limites et l’absence de spécialisation fonctionnelle des espaces engendrent l’atmosphère éthérée qui baigne à l’intérieur. 
A travers ce jeu de miroir grossissant, deux conceptions radicalement opposées se rétorquent. Aux espaces dirigés et spécialisés conçus par Kuma répond un environnement continu et générique dessiné par Sanaa : deux définitions mésologiques de l’espace architectural, que l’on préfère nommer « milieu » au Japon.

Le voyage des modèles

L’architecture japonaise a exercé en Europe une influence continue, et ce depuis au moins le milieu du 19e siècle. Ainsi, pour l’art nouveau en France, elle a constitué un décor à recopier. Chez les pionniers de l’architecture moderne, elle a été un modèle lointain et idéalisé. Plus tard, les métabolistes japonais, inspirés à leurs débuts par le brutalisme européen, dessineront en retour de belles mégastructures en Europe3. Aujourd’hui encore, il suffit de parcourir du regard les rayons des bibliothèques des écoles d’architecture, pour constater que ce voyage des modèles entre Japon et le vieux continent n’a jamais cessé. Le travail de Kuma, si apprécié depuis quelques années dans beaucoup de métropoles occidentales, est révélateur des tendances et préoccupations architecturales actuelles.
Préfaçant une monographie sur lui-même4, Kuma introduit son travail par un plaidoyer pour l’architecture traditionnelle japonaise. Il démarre son propos par une ode aux artisans, paysages et architectures du Tohoku et Shikoku, deux régions qui ont été balayées par le terrible tremblement de terre et le tsunami de 2011. L’emphase atteint des accents bibliques lorsqu’il déclare que «Dieu envoyait le déluge pour punir les hommes» et que «le tsunami était similaire au déluge de Noé» qui va «balayer ces maisons et voitures de styles américains». Dans la seconde partie de son argumentaire, Kuma poursuit son référencement nostalgique à l’architecture traditionnelle japonaise en relatant le voyage de Bruno Taut en 1933 au palais retiré de Katsura à Kyoto. Il s’attendrit alors des larmes d’émotion de Taut devant la beauté ordinaire d’une simple palissade en bambou du palais. Dans la foulée, il fustige le dédain supposé qu’aurait exprimé Le Corbusier lorsqu’il visita le même lieu en 1955. Contre les affres de la modernité, Kuma défend les valeurs oubliées de la tradition. Telle serait alors la bataille qu’il veut mener partout où il construit. Depuis ses premières réalisations postmodernes dans les années 19905, cette opposition manichéenne - un brin moralisatrice – a toujours motivé son travail. Dans ses argumentations de projets, il préfère toujours «une architecture de relations» contre ce qu’il fustige comme du «formalisme». Il se place du côté de l’artisan et du savoir-faire ancestral contre «les hommes arrogants et corrompus». Il choisira enfin la «chaleur» du matériau bois plutôt que l’acier ou le verre. 
Pour le ArtLab, les techniques de construction spécialisées et sophistiquées qui ont dû être employées sont pourtant bien loin du récit de redécouverte de la tradition. L’artisan a laissé place à un gros major de la construction. Les calculs statiques des ingénieurs l’ont obligé à associer de la tôle en acier perforé au bois de structure. Le rêve de la frugalité du vernaculaire a du mal à coexister avec les millions issus d’un partenariat public privé complexe. A des milliers de kilomètres et des centaines d’années du palais Katsura, le lien ancestral à la tradition constructive japonaise est rompu. Il ne reste plus que l’image que véhicule le bâtiment tel qu’il est réalisé, c’est-à-dire un large toit à double pan couvrant des pavillons en bois. Dans beaucoup de projets de Kuma, plus ou moins explicitement, cette forme iconique demeure un vecteur efficace pour figurer une image simplifiée de l’architecture japonaise. 
Pour son projet lausannois, et cette fois-ci très explicitement, c’est un autre modèle architectural traditionnel que l’architecte invoque. L’utilisation de l’ardoise en toiture n’est autrement justifiée que par une référence au chalet suisse6. Le grand écart est encore plus surprenant et de plus en plus difficile à tenir. En ramenant son travail à l’architecture nipponne ou encore à un cliché helvétique, Kuma semble vouloir à tout prix se rattacher à des paradigmes traditionnels, quitte à essentialiser. De l’architecture, il ne laisse alors que l’icône. 
De retour sur la place Cosandey, la scène imaginée d’un paysage de Hiroshige s’est évaporée. Il ne reste plus que des icônes architecturales insensibles les unes aux autres. In fine, la condition urbaine inhérente au campus faite d’objets hétérogènes et dispersés est tenace.


Notes

1. Le bureau lausannois CCHE Architecture et Design SA.    

2. La mésologie est définie comme la science des milieux. Augustin Berque géographe et philosophe enseigne la mésologie à l’Ecole des hautes études en sciences sociales à Paris (EHESS). La première partie de l’article doit beaucoup aux textes et à l’enseignement de Augustin Berque. Sur la mésologie, lire Augustin Berque, Ecoumène, introduction à l’étude des milieux humains, Paris, Belin, 2000 et son blog mesologiques.fr. Sur Kuma, lire Augustin Berque, De terre en monde, la poétique de l’écoumène, dans « L’habiter dans sa poétique première », actes du colloque de Cerisy-la-Salle, publié aux éditions Donner Lieu, Paris, 2008, pp. 231-247

3. Sur le mouvement métaboliste japonais en Europe et le plan de Skopje de Kenzo Tange en 1965, lire Tracés n° 10, 2016.

4. Kengo Kuma, complete works, London, 2012, Thames & Hudson Ltd, préface de Kengo Kuma, pp. 7-9

5. Par exemple, l’immeuble M2 réalisé à Tokyo en 1991.

6. Lire Cedric van der Poel, Tracés n° 13-14, 2013 « L’art de la simplicité »

 

Participants

Architecte: Kengo Kuma and Associates, Tokyo, Japon

Architecte local: CCHE Architecture et Design SA, Lausanne

Entreprise générale: Marti Construction SA, Lausanne

Matériaux de construction principaux: toiture en plaques d’ardoise,
structure porteuses en bois-acier, façades bois-verre

Coûts: construction 30 900 000 CHF ; équipements, démonstrateurs
et scénographies fixes 4 600 000 CHF

Dimensions: volume total de 17 586 m3 ; surface nette totale de 3360 m2

Étiquettes
Magazine

Sur ce sujet