Swiss­made - avec Jac­caud Zein à Londres

Entretien

Si leur année sabbatique à Londres fut une parenthèse professionnelle dans la carrière indépendante des architectes Tanya Zein et Jean-Paul Jaccaud, le projet de logements qu’ils ont tissé ensemble à la Shepherdess Walk est encore aujourd’hui l’une de leurs réalisations les plus accomplies.

 

Rencontre à Genève avec l'architecte Jean-Paul Jaccaud pour explorer une aventure personnelle convertie en projet d’architecture.

Date de publication
10-06-2021

espazium.ch: quelle est l’origine de votre expérience à Londres ? Un besoin ou une opportunité?

Jean-Paul Jaccaud: il s’agit d’abord d’un besoin familial, celui de prendre une pause professionnelle d’une année, qui nous a paradoxalement portés vers cette opportunité de travail à l’étranger et qui s’est transformé en sept années d’activité dans cette ville.

Avant notre séjour à Londres en 2009, nous étions avec Tanya Zein très fortement engagés dans nos structures respectives à Genève et à Lausanne. Notre équilibre entre vie de famille, avec deux enfants, et dirigeants d’un bureau d’architecture s’est avéré de plus en plus précaire. Pour y remédier, nous avons décidé de prendre une année sabbatique à Londres. Cette ville était une destination naturelle car nous y avions vécus plusieurs années auparavant et j’y avais moi-même travaillé de 1995 à 2000 chez David Chipperfield et Herzog & de Meuron.

Sans projets ni bureau d’architecture, comment s’est présenté le projet à la Shepherdess Walk?

Une année est passée très vite. Nous commencions à peine à profiter de la ville. Nous avons donc décidé de rester plus longtemps que prévu. C’est à ce moment que nous avons fondé le bureau temporaire JACCAUD ZEIN architects à Londres, moi-même ayant gardé opérationnelle mon activité à Genève.

Notre première «commande» fut un investissement immobilier personnel qui nous a permis de réaménager une vieille maison victorienne de 1840 à Candem pour en faire notre propre logement. Parallèlement, nous étions en contact avec un investisseur lausannois qui voulait placer des fonds dans l’immobilier à Londres et pour lequel nous cherchions une opportunité urbaine à saisir. Pour y parvenir, nous avons contacté l’architecte et promoteur local Roger Zogolovitch (CZWG) avec lequel nous avons fondé un partenariat pour monter des offres des dossier de candidature – et tenter d’obtenir un terrain. Après plusieurs tentatives, notre démarche a abouti pour une parcelle située à l’angle de Shepherdess Walk et de Wenlock Street à l’est de Londres.

Quel programme avez-vous développé pour cette parcelle et comment est défini le potentiel à bâtir en Grande-Bretagne?

En Grande-Bretagne, le montage d’un projet n’est pas du tout le même qu’en Suisse. Alors que, chez nous, les architectes répondent à des besoins programmatiques issus d’un concours, d’un appel d’offres ou d’une étude de faisabilité, à Londres, la plupart des projets sont des commandes directes où l’architecte formule le programme et détermine les besoins typologiques.

Du point de vue des droits de la construction et des potentiels à bâtir, les logiques sont aussi très différentes. En Suisse, nous sommes habitués à la logique du «gabarit» qui détermine le nombre d’étage et indirectement le potentiel à bâtir. À Londres, tout est beaucoup plus subjectif. Il faut d’abord faire une esquisse suivant nos propres critères et ensuite la présenter aux responsables de l’urbanisme –planners– qui, suivant des critères non réglementés, déterminent si la proposition est convenable ou s’il faut revoir le projet. Cette logique d’un urbanisme au «cas par cas»  est extrémisée à tel point qu’il existe des consultants urbains, des «planning consultants», qui aident les architectes à monter leurs opérations en fonction des responsables qui supervisent tel ou tel secteur.

Y-a-t-il des avantages à cet urbanisme au cas par cas?

Cette manière de faire la ville peut paraitre étrange à nos yeux mais elle présente aussi certains bénéfices. Elle permet aux autorités de changer d’orientation urbaine beaucoup plus rapidement si les conditions démographiques, sociales, environnementales ou économiques changent. En Suisse, nous souffrons du phénomène contraire. La planification fige les projets pendant de longues années, ce qui parfois produit de grands décalages entre une forme urbaine projetée à une certaine période et les besoins réels d’aujourd’hui.

Quelle fut votre réponse urbaine dans un tel contexte?

Paradoxalement, et peut-être heureusement, nous avons été un peu contre-intuitifs. Alors que les promoteurs cherchent à construire un maximum de petits appartements pour se faire un maximum de rendement, nous étions plutôt réfractaires à cette «maladie» des petites surfaces aux grands bénéfices et nous avons volontairement cherché l’opposé. Par chance, les investisseurs lausannois nous ont donné pleine liberté pour composer à notre guise pour autant que nous respections l’enveloppe budgétaire allouée à cette opération, ce qui nous a permis de nous éloigner de ces modèles de marché purement spéculatifs.

Quelles sont les intentions du projet?

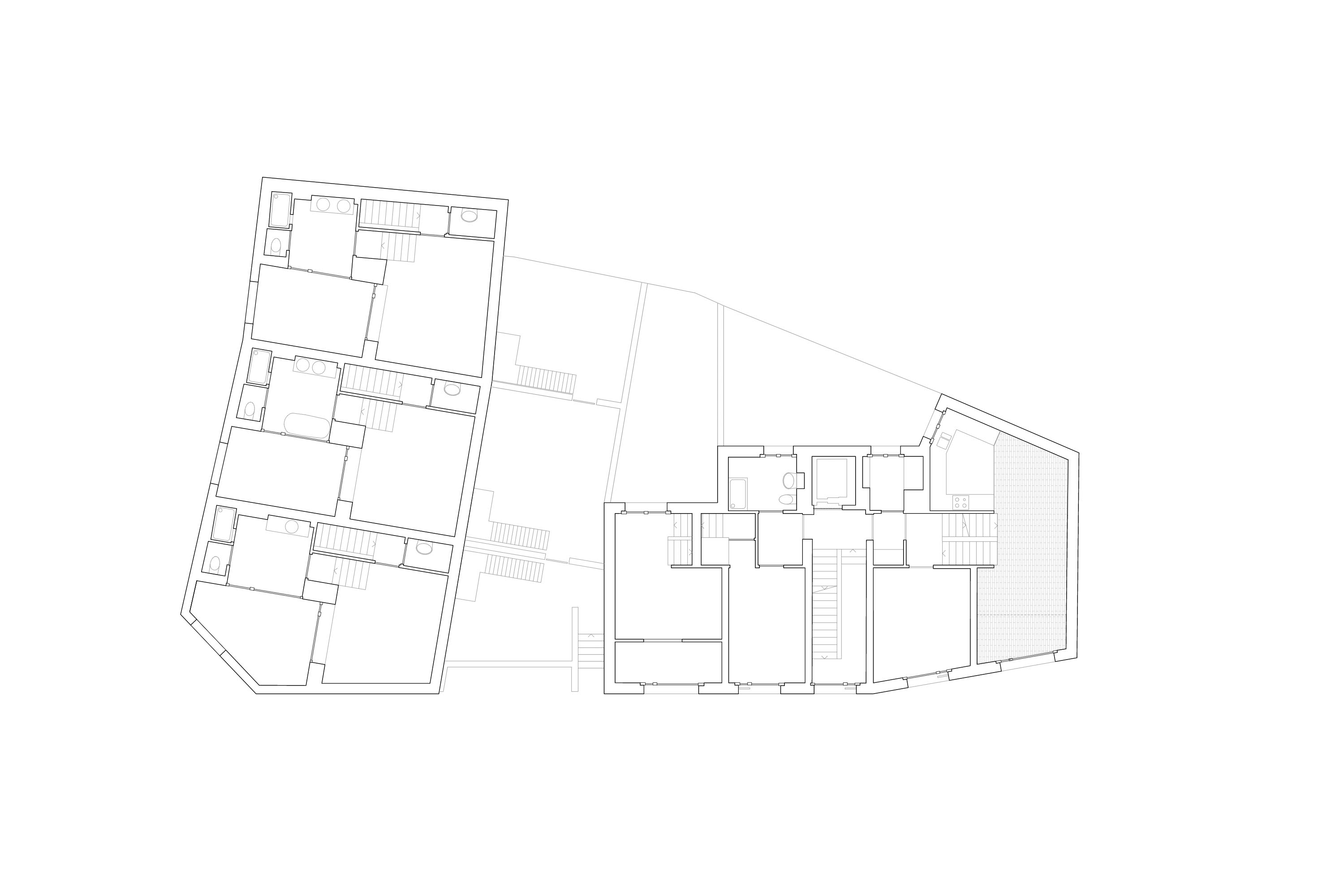
Shepherdess Walk est une artère historique de la fin du 19e composée de constructions basses du style maisons en rangée. La rue perpendiculaire, Wenlock Street, n’a pas du tout le même caractère. Il s’agit d’une artère plus tardive composée de barres de logements des années 1950 où les gabarits sont beaucoup plus élevés. Notre projet se situe à la jonction de ces deux atmosphères et se porte comme médiateur entre ces différentes traces historiques. Le projet qui en résulte est un emboîtement volumétrique de deux programmes complémentaires: trois maisons mitoyennes du côté de Shepherdess Walk et un immeuble de logements de cinq niveaux vers la Wenlock Street. Cette solution nous permet de retrouver une forme de domesticité et de lier cette césure urbaine au travers d’une architecture plus douce et humaine.

Pour ce qui est de la spatialité intérieure des appartements, nous avons exploré une recherche architecturale sur les étages à demi-niveaux portée au même moment par Zogolovitch avec Steven Taylor dénommée «solide spaces». Cette exploration typologique nous a fortement intéressés pour tester des solutions innovantes dans une ville plutôt conservatrice dans ce sens et contrer la tendance aux petits espaces très fragmentés.

À l’intérieur des logements, ce dispositif d’emboîtement vertical des vides par demi-niveaux permet de retrouver des doubles hauteurs ou des hauteurs et demie et proposer des relations spatiales qui nous semblent riches et variées. Même si en plan les appartements semblent très compacts, le paysage intérieur est d’une tout autre nature bien plus généreuse. Les appartements sont tous différents les uns des autres. Il y a même des typologies avec plusieurs portes palières, une par étage, qui optimise la flexibilité et l’usage des appartements dans le temps. Cette solution permet notamment d’isoler fonctionnellement les étages au gré des besoins et de créer des appropriations différenciées telles qu’inviter un ami, un membre de la famille, offrir une colocation ou faire son propre bureau. Il faut savoir qu’à Londres, environ 20% du parc immobilier est voué à la colocation et cette solution est notre réponse architecturale à ce phénomène social.

Méthodologiquement parlant, avez-vous travaillé différemment qu’à Genève?

À Londres, nous nous sommes volontairement positionnés en dehors du système. Ici, nous essayons plutôt de pousser les limites du système mais de l’intérieur, en étant très au fait des contraintes et des règlements, sachant que si on bouscule trop les choses, la solution ne passera pas.

Pour un architecte, la fraîcheur et l’ingénuité avec laquelle nous avons travaillé à Londres ont été une bouffée d’oxygène. L’équivalent ici serait de faire un projet sans connaître la RGL. Sans penser au 25m2 par pièce. Sans tenir compte des pratiques de l’OCLPF ni des catégories de logement. Juste en prenant un crayon dans la main et en s’interrogeant: et si nous devions faire du logement, que ferions-nous?

Il faut dire qu’à Londres, tout s’est enchaîné dans la bonne direction et quand l’œuvre était finie, nous avons tous pensé la même chose: comment sommes-nous arrivés à cette solution ?

Constructivement, avez-vous profité pour expérimenter d’autres solutions?

Au Royaume-Uni, les enveloppes sont très fines et fragiles et nous avions envie de donner de l’épaisseur à notre projet, de faire du solide dans un environnement très minéral de brique. Pour exécuter cette œuvre, Jonathan Sergison nous avait conseillé une entreprise totale et c’est aussi grâce à eux que nous avons pu réaliser le bâtiment tel qu’il est aujourd’hui, malgré le fait qu’il s’agisse d’une solution constructive plus coûteuse.

L’entreprise n’avait pas l’habitude de travailler avec des architectes qui savaient faire de la direction de travaux. Généralement, à Londres, c’est un rendez-vous de chantier par semaine ou deux par mois. Dans notre cas, le fait d’avoir une collaboratrice sur place tous les jours nous a permis de mener à bien ce projet et de garantir l’attention que nous portions à chaque détail.

Pourquoi ce mandat ne vous a-t-il pas permis d’obtenir d’autres commandes par la suite?

L’accès à la commande en Angleterre est un marché cadenassé. Les promoteurs et les architectes ont des relations de longue date et il est difficile de se faire une place comme nouveaux arrivés. Aussi et surtout parce que les concours publics n’existent pas non plus.

Il faut également dire que le «marché» de l’immobilier est formaté à l’extrême. La marge de manœuvre des architectes est minuscule. S’il faut être rentable, il faut construire en structure mixte acier-béton avec une ossature métallique en façade, pas beaucoup d’isolation et de la briquette ou du crépi. Tous les acteurs de l’industrie immobilière sont dans le même tunnel du rendement et c’est très rare de sortir la tête sans prendre des coups ou s’en faire éjecter. Mêmes des bureaux avec qui nous avons beaucoup d’affinité comme Sergison Bates ou Caruso St John ne réussissent pas à avoir beaucoup de travail dans leur propre pays.

En tout, notre année sabbatique s’est transformée en sept années d’activités. Nous aurions pu insister pour avoir d’autres commandes comme celle de Shepherdess Walk, mais nous avons senti que nous aurions un carnet de commandes plus intéressant et varié à Genève. Surtout pour des projets d’une certaine échelle, des projets urbains, qui étaient totalement hors de portée pour nous en Grande-Bretagne.

Certains bureaux en Suisse ont ouvert des cellules de travail à l’étranger pour répondre principalement à des commandes dans ces pays. Externaliser une partie de leurs ressources ne les empêche pas de conserver d’autres avantages, notamment pour participer à des concours en Suisse. Comment perçois-tu à titre personnel ce phénomène?

Si j’analyse la chose d’un point de vue économique, c’est sûr qu’il peut y avoir un gros avantage à situer une partie de sa production à l’étranger, mais je ne pense pas qu’il y ait cette volonté de leur part. Du moins pour nous, il n’y avait aucun avantage à préserver notre cellule à Londres sans projets dans ce pays.

L’autre avantage que je peux comprendre est celui de se confronter à d’autres contextes culturels et d’en extraire un apprentissage professionnel ou une plus grande visibilité. Mais ici aussi, j’en fais une lecture critique fondée sur mes années de travail chez Chipperfield. Cette période était l’apogée de la globalisation. Lui-même passait quatre jours sur cinq de la semaine en déplacement. Si un architecte n’avait pas construit un projet sur tous les continents, il n’existait pas dans le système des architectes stars. Je vois qu’aujourd’hui, pour certains professionnels, l’ambition ou les prétextes restent les mêmes. Mais très sincèrement, par les temps qui courent, il faut s’interroger, et beaucoup, sur cette frénésie du déplacement. Dans mon cas, je prêche plutôt pour un retour au local.

Si la pandémie nous a enseigné quelque chose, c’est à nous satisfaire des ressources qui nous sont proches

 

Swissmade - Entretiens :

 

  1. Entretien avec BUREAU | Daniel Zamarbide. Propos recueillis le 23.03.2021
  2. Entretien avec NOMOS | Katrien Vertenten, Lucas Camponovo, Ophélie Herranz Lespagnol & Paul Galindo. Propos recueillis le 30.03.2021
  3. Entretien avec JACCAUD ZEIN | Jean-Paul Jaccaud. Propos recueillis le 13.04.2021
  4. Entretien avec CATHRIN TREBELJAHR | Propos recueillis le 20.07.2021
Étiquettes

Sur ce sujet