Plaines-du-Loup de Lau­sanne, ré­sul­tat du con­cours de pro­jets d'ar­chi­tec­ture pour la pièce ur­baine E

Ce triple concours de logement dessine le visage de l'une des pièces urbaines maîtresses du futur quartier des Plaines-du-Loup à Lausanne. Le jury a porté son choix sur les propositions de CbmM Architectes, L-architectes et LRS Architectes 

Date de publication
25-04-2018
Revision
30-04-2018

Contexte

Pour mémoire, le premier plan d'affectation des Plaines-du-Loup (PPA1), entré en vigueur en juin 2017, est composé de cinq pièces urbaines qui ont toutes fait l'objet de concours ou de mandats d'étude parallèles.

Fin 2017, la pièce urbaine C a été attribuée à Nicolas de Courten architectes et la paysagiste Aurélie Barral sur la base d'un concours d'architecture en procédure ouverte à un degré (Voir les résutalts du concours). Les jugements des concours organisés pour les pièces A, B et D devraient être rendus publics entre avril et juillet 2018.

Pièce urbaine E
Ce concours d'architecture fait suite aux mandats d'étude parallèles remporté par les bureaux Aeby Perneger & Associés et de paysagisme Hüsler & Associés et qui ont permis d'établir 10 règles d'urbanisme pour le développement des cinq lots de cette pièce urbaine E (lire le compte rendu du concours ici)

D'une surface totale d'un peu moins de 15'000 m2, la pièce urbaine E se caractérise par son positionnement à l'extremité de la première étape de réalisation du quartier, sa façade sud s'ouvrant sur le parc. Elle est divisée entre cinq investisseurs : la société coopérative Logement Idéal, la société Jaguar Realestate SA, la Caisse Inter-Entreprises de Prévoyance Professionnelle CIEPP, la coopérative sociale d’habitants Le Bled et la coopérative d’habitation La Meute.

Des cinq lots dont elle se compose, seuls trois font l'objet du concours d'architecture. En effet, SCCH Le Bled et Coopérative d'habitation La Meute ont, en tant que coopérative d'habitants, déjà choisi leurs bureaux d'architecte: Tribu architecture et Lx1 à Lausanne.

Programme du lot E1 et rapport du jury: logements subventionnés pour Logement Idéal

Le programme proposé par Logement Idéal se concentre principalement sur des logements subventionnés. Le reste du programme est dédié aux activités.
La volonté de la coopérative est de contribuer à la réalisation d’un quartier offrant une mixité fonctionnelle, sociale et intergénérationnelle. Elle permet de réunir des logements familiaux, à prix coûtant qui complètent l’offre privée et en PPE des divers investisseurs pour aboutir à une réelle mixité intégrée.
Pour atteindre ce but, le programme investit une surface de plancher déterminante totale de 8’500 m2 soit : 7'175 m2 attribués aux logements (84.4%) et 1’375 m2 d’activités (15.6%).
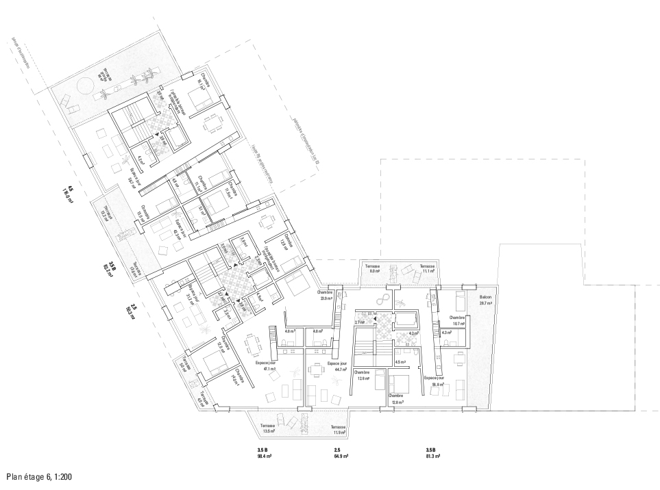
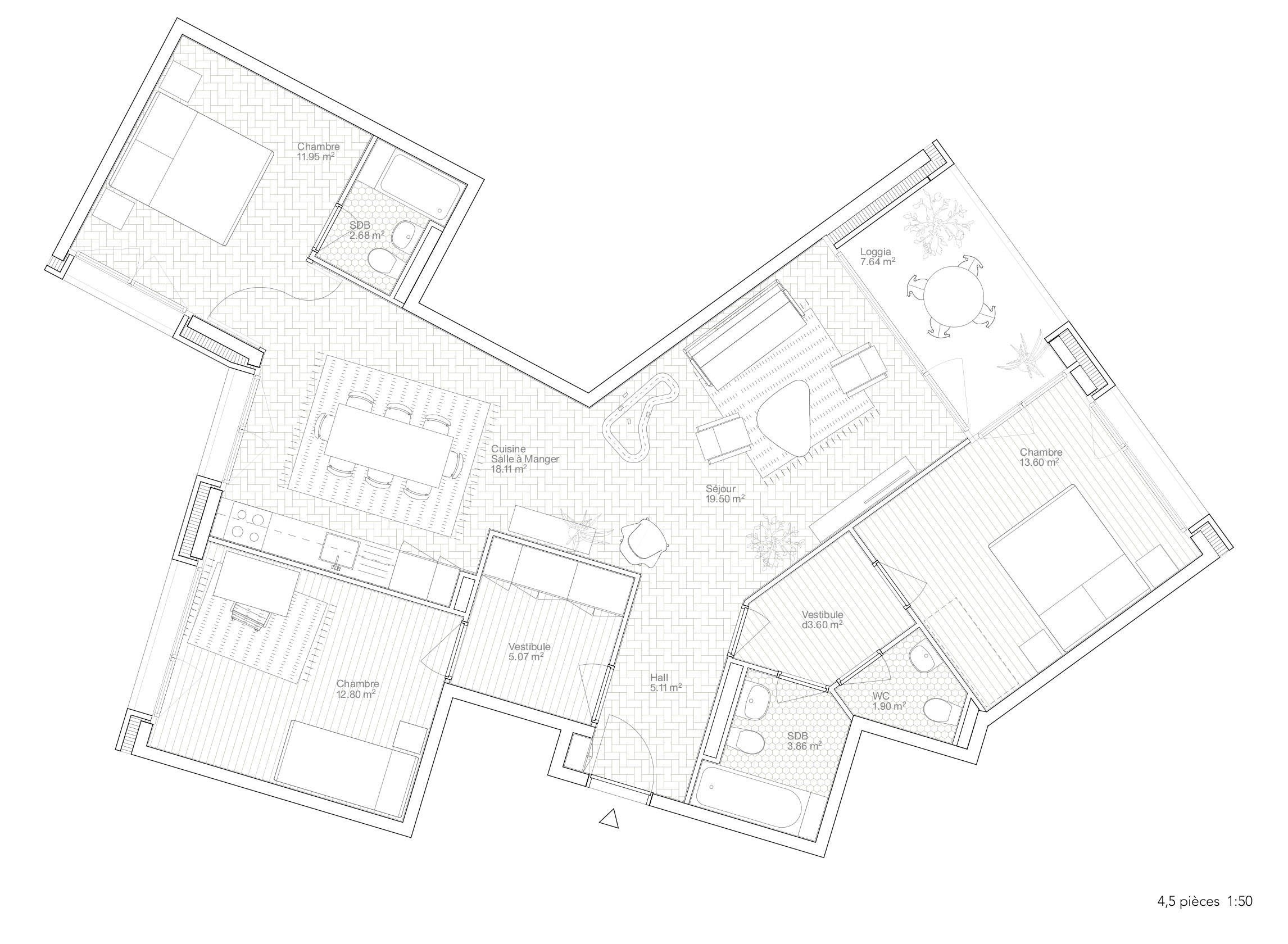
Type de logement: 11 logements de 2,5 pièces (10% de la surface), 31 logements de 3,5 pièces (40% de la surface), 24 logements de 4,5 pièces ( 40% de la surface) et 5 logements de 5,5 pièces (10% de la surface)

1er prix: ALTERITE du bureau cBmM SA Architectes
Le projet propose une implantation compacte avec une différenciation entre le côté cour au sud, composé de redent, et la face rue, traitée plus linéairement. Cette stratégie est conforme aux intentions des règles et concepts urbanistique définis pour la PU-E et respecte les règles du PPA 1.

L’expression de l’ensemble reste unitaire sans pour autant être redondante. L’alternance des zones jour/nuit et les redents couplés aux balcons animent les longues façades. Le projet propose une trame rationnelle tout en offrant de belles qualités spatiales.

Les entrées des bâtiments sont accueillantes et bien proportionnées. Elles sont traversantes et offre des sur-hauteurs intéressantes. Les appartements implantés au rez sont judicieusement surélevés du terrain naturel pour garantir une intimité tout en proposant des accès aux jardins. Les espaces d’activité, bien qu’offrant un visage unitaire sur rue, sont très morcelés. Leur surface est légèrement supérieure à ce qui est demandé.

La majorité des appartements sont traversants et les appartements d’angles sont bi- orientés. Les typologies des appartements proposent divers types d’usages avec des possibilités d’habiter variées. Les appartements sont dépourvus de couloir ce qui optimisent les surfaces utiles. Les espaces jours sont contigus mais clairement définis. Les balcons sont accessibles par le séjour et la cuisine-salle à manger. Certains appartements proposent des réduits qui améliorent le confort d’usage. Les espaces d’entrée aux appartements ont été soignées pour chaque type. Les chambres ont des tailles/proportions généreuses et permettent tout type d’aménagement.

Par sa minéralité, l’expression architecturale de l’immeuble s’inscrit dans les objectifs des principes urbanistiques, son caractère se définit par une recherche de variété dans une figure stable. Le léger retrait d’attique n’est pas pertinent selon le jury.

2e prix: En coulisse Dreier Frenzel Architecture + Communication
En coulisse propose une implantation rationnelle et efficace. Cette rigueur se retrouve dans la répartition des parties de programme (logement et les activités). Les zones d’activité sont découpées en 2 parties dans les têtes.

Le panachage des appartements et leur distribution sont optimisés. La typologie des appartements est très élaborée et appréciée par le jury. Elle semble toutefois un peu éloignée du standard des logements subventionnés et propose des espaces jours ni clairement divisés ni clairement ouverts. L’ensemble des appartements du 2.5 pc au 4.5 pcs profitent du même principe qui toutefois ne génère pas le même niveau de qualités spatiales pour chaque type de logement.

L’expression architecturale de l’immeuble, en particulier la façade nord, ne convainc pas le jury qui regrette que la richesse du plan n’ait pas pu mieux se prolonger dans le thème des façades.

3e prix: TERRA INCOGNITA , Esch Sintzel architekten + Nicolas de Courten architectes
Le projet propose une implantation claire et compacte. L’accès à la cour au travers d’un espace activités ou communautaire n’est pas optimum.
La distribution de 4 appartements par cage impose de placer 2 petits appartements mono-orientés entre 2 grands appartements traversants. Cette stratégie pénalise le projet et s’éloigne du panachage souhaité. Le développé de façade sud est inversement proportionnel à la taille des appartements. La typologie très aboutie des appartements traversants est très appréciée par le jury. Les balcons divisés entre 4 appartements semblent étriqués. La rigueur définie dans le plan se prolonge dans l’expression architecturale de l’immeuble, la recherche de variation entre plein et vide se traduit dans une modénature de façade plutôt sophistiquée.

 

Programme du lot E2 et rapport du jury: Logement PPE pour Jaguar Realestate

Jaguar Realestate SA souhaite mettre sur le marché des lots de PPE. 
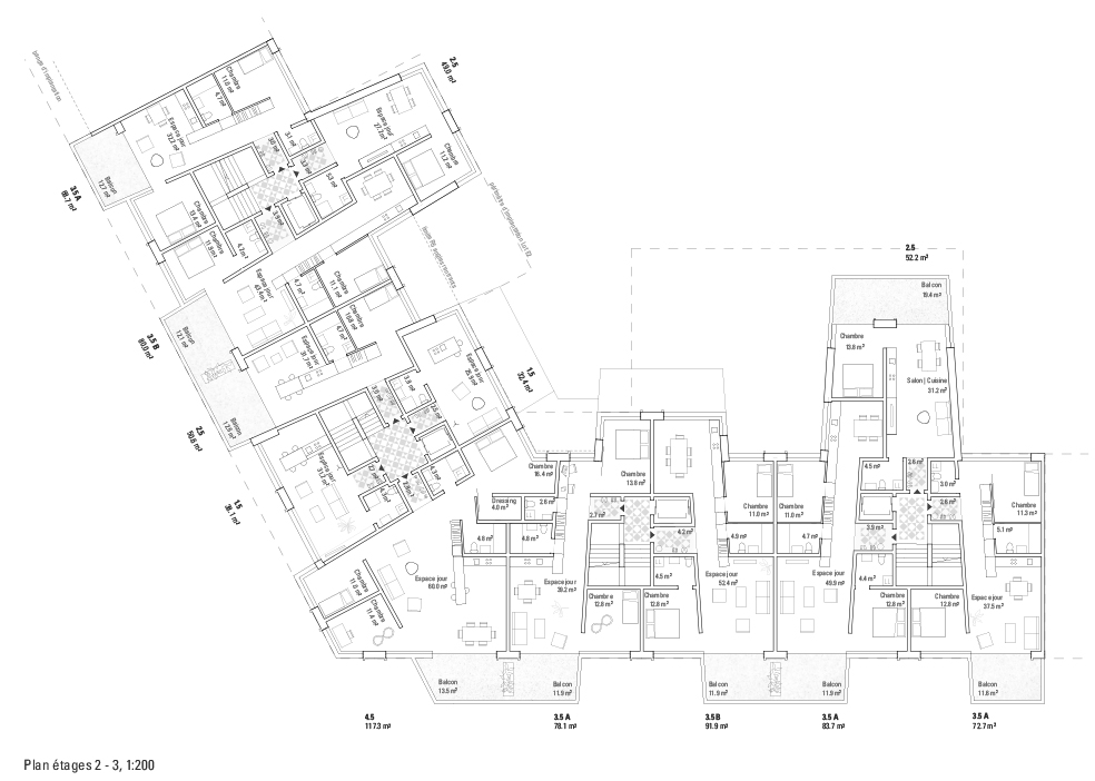
Le projet devra intégrer les typologies et caractéristiques suivantes :2,5 pièces (25% de la surface toatle), 3,5 pièces (60% de la surface) et 4,5 pièces (15% de la surface) .

Il s’agit d’offrir des plans de logements favorisant la commercialisation. Dans cet esprit, il convient de proposer des plans pouvant satisfaire le plus grand nombre d’acquéreurs. Par contre, les plans doivent permettre une flexibilité dans les typologies, de manière à ce que sans modifications de façades ni de la cage d’escalier et en fonction de la commercialisation, un chambre de 10 à 12 m2 puisse basculer d’un lot de PPE à l’autre au moment de la vente des lots (avant construction).

Tiers lieux - Espaces de vie communs
Les espaces de vie communs sont apparus dans de nombreux programmes, type «coopératives» ou «locatif». Jaguar s’est intéressé à ce qui était fait dans ce domaine notamment à Montreal (Quebec) dans les programmes de vente en PPE.
Tout en veillant à ne pas «consommer» de manière inconsidérée des m2 de surface de plancher déterminant (SPd), il est souhaité que le programme comprenne de façon impérative :

  1. Un espace de «co-working at home» de 60 m2 environ: cet espace a pour vocation de permettre au propriétaire d’un lot de PPE qui par exemple fonctionne en « work at home » une journée par semaine, de disposer d’un espace commun privatif à leur immeuble dans lequel ils puissent travailler au calme. Ceci peut permettre aux jeunes familles d’affecter par exemple la deuxième chambre à l’arrivée d’un enfant plutôt qu’à leur bureau, sans avoir à revendre leur appartement.
  2. Un espace destiné à une mini salle de « fitness » de 60 à 80 m2

Et idéalement:

  1. Un espace de 50 m2 environ, permettant de recevoir une zone « spa de nage à contre-courant »
  2. Une terrasse commune accessible sur la toiture pour les résidents avec petit local pour matériel, cuisine d’été, parasol, etc.

1er prix : OAK PARK, L-Architectes Sàrl
Le projet Oak Park s’inscrit avec élégance et décontraction dans le périmètre défini par le PPA et les règles d’implantation propres à la pièce urbaine E. La morphologie proposée exploite les possibilités de redents sur cour au profit d’un abaissement du gabarit sur le parc. Ce faisant, elle atteint les objectifs morphologiques qui sous- tendent les règles de la pièce urbaine. Elle garantit un ensoleillement généreux pour les immeubles disposés au nord de l’ilot ainsi qu’à la cour tout en offrant des terrasses accessibles en toiture. La silhouette accidentée de la toiture prolonge et amplifie le dispositif de redents sur cour. Le mode de composition tridimensionnel utilisé est illustré et renforcé par la grille en béton armé qui passe de la façade extérieure à celle sur cour dans un geste unique. Côté parc, la rencontre de la grille de façade avec le parc, sans traitement particulier, pose la question du statut du sol aux abords immédiats de l’immeuble. En effet, le ppa prévoit une allée piétonne publique longeant la pièce urbaine E, un traitement différencié du socle sera par conséquent nécessaire.

Au rez-de-chaussée, un accès unique sur parc, permet d’atteindre un couloir parallèle à la cour et distribuant les 2 cages d’escalier adossées aux redents. Ce dispositif commun, garant de convivialité et de rencontres, offre aux habitants un accès privatif à la cour. Les activités annexes, co-working et fitness sont réparties sur différents niveaux. Les deux distributions verticales logées dans les corps de bâtiment les plus élevés desservent l’intégralité du programme. Les cages d’escalier ne bénéficient pas de lumière naturelle, elles desservent jusqu’à 6 appartements par palier. Les redents accueillent un à deux logements sur cour par étage. Les autres logements sont, soit traversants, soit mono-orientés sur le parc ou le chemin des Bossons. Une répartition des logements, probablement plus grands, associant les surfaces des redents à des logements traversant permettrait une offre en logements de qualité plus homogène. Les différents angles que présente le bâtiment sur cour posent quelques problèmes de vues droites qui pourraient être résolus avec une imbrication typologique plus complexe.

Les façades se présentent comme une grille d’éléments préfabriqués en béton armé dont les « cases » sont remplies par des éléments en bois contenant les ouvertures. Cette solution permet de garantir une uniformité de traitement bienvenue tout en offrant la possibilité de moduler la taille de surfaces vitrées de cas en cas.

 

2e prix : PARK VIEW, farra zoumboulakis & associés
Le projet Park View exploite les possibilités offertes par le ppa et les règles propres à la pièce urbaine E. La volumétrie sur parc présente une homogénéité bienvenue.

Sur cour la situation est un peu plus confuse en raison de la grande amplitude des redents. Le gabarit proposé maximise le nombre de logement sur parc mais pénalise la cour en réduisant les apports solaires. Le traitement du socle permet un rapport au parc et au chemin des Bossons apaisé tout en garantissant l’habitabilité des logements disposés en rez-de-chaussée surélevé. Les grands balcons/terrasses qui se projettent en direction du parc pourraient toutefois compromettre le caractère public de l’avenue piétonne longeant la pièce urbaine E prévue par le ppa.

Deux halls d’entrée, l’un sur le parc, l’autre sur le chemin des Bossons, distribuent les quatre cages d’escalier centrales de l’immeuble. Ils n’offrent qu’une perméabilité théorique en direction de la cour qui n’est accessible aux habitants qu’au travers des locaux de co-working ou de fitness.

Les cages d’escalier ne bénéficient pas de lumière naturelle. Elles distribuent deux, trois ou quatre logements par palier. La proposition tente une approche typologique systématique articulant redents sur cour et balcon/terrasses sur parc. La faible ampleur de l’opération ainsi que l’angle à gérer induisent néanmoins de nombreuses exceptions. Toutefois, le principe proposé permet le développement de logements profonds et lumineux s’étirant des redents de la cour aux balcons sur le parc ainsi que des logements sur cour dotés de trois orientations. Les appartements traversants proposent des déclinaisons sur un thème commun. Un couloir « habitable » accompagne les habitants de la cour au parc et vice-versa. Bordé par un élément de mobilier multifonctionnel, ce couloir facilite les transitions d’un espace à l’autre et crée un liant nécessaire au sein de ces profonds logements. Il ne parvient toutefois pas à convaincre complètement. L’imbrication des différentes typologies permet de gérer les différents angles et évite les problèmes de vues droites

Le principe de façade recourant à des éléments préfabriqués en béton de type «sandwich» est cohérent avec la composition des façades et propose une modénature intéressante.

3e prix Le Mile-End Atelier Cube SA + Studio SML Sàrl
Le projet se caractérise par un souci de simplification géométrique. Le volume proposé exploite les redents autorisés sur cour et installe côté parc et chemin des Bossons un volume au gabarit unique surplombé par un attique partiel de 2 niveaux. L’unicité du volume est soulignée par le recours à des balcons filants sur parc (interrompus par des percements pour cause de respect règlementaire). Le rapport au sol est traité par un socle de deux niveaux comprenant un étage de caves et un étage de logement. Si cette solution garanti la privacité des logements elle propose un mur borgne aux flâneurs du quartier et pourrait compromettre la rencontre avec les équipements publics prévus au rez-de-chaussée des projets voisins. L’angle parc/rue des Bossons fait l’objet d’un traitement particulier. Un évidement du volume mène à un passage traversant vers la cour et les 3 cages d’escalier. L’usage privilégié de la cour par les habitants de la pièce E est fragilisé par ce dispositif qui n’a pas convaincu le jury.

L’organisation des logements est simple et efficace et évite tout problème de vue droite. Les grands séjours/cuisines/salle-à-manger traversants offrent une grande profondeur visuelle, mais éloignent les cuisines des façades et de la lumière naturelle.

Le principe de façade en éléments préfabriqués de béton armé est décliné en mode horizontal sur le parc et le chemin des Bossons, et sur un mode plus mural et vertical sur cour. Cette différentiation tend à créer un avant et un arrière qui pourrait pénaliser le caractère de la cour de l’ilot.

 

Programme du lot E3 et rapport du jury: Logement subventionné pour CIEPP

Le programme du lot E3 est composé de logements à hauteur d’environ 91 % des SPd, dont 60% de régulés et 40% de libres.

Les logements à loyers régulés sont des logements ouverts à tous, sans conditions de revenu.

Le Maître de l’ouvrage est favorable à ce que les logements régulés et les logements libres soient situés au sein des mêmes immeubles, de manière à créer une réelle mixité sociale, conformément aux voeux de la Municipalité.
Les logements libres devront toutefois être disposés prioritairement dans les étages supérieurs.

Le projet du lot E3 devra intégrer les typologies et caractéristiques suivantes pour les deux catégories de logements régulés et libres :studio (10% de la surface totale), 2,5 pièces (35% de la surface totale) 3,5 pièces (35% de la surface totale) 4,5 pièces (15% de la surface)et 5,5 pièces (5% de la surface totale)

Activités:

  • La totalité de la surface d’activités du lot E3 est à localiser dans les rez-de-chaussée des immeubles.
  • L’objectif visé par le Maître de l’ouvrage est d’affecter cette surface à des activités de commerce de proximité (pour environ 50%) et de services à la personne (pour le solde), dont le bassin de chalandise est essentiellement local et compatible avec les objectifs de mobilité douce du périmètre.

1er prix: LOUVOYONS, LRS Architectes
Les auteurs du projet répondent avec une grande habileté et conviction aux règles d'implantation proposées par l'image directrice du bureau Aeby & Pernegger. Le périmètre extérieur de l'îlot suit avec précision les consignes générales, la solution apportée côté cour est particulièrement généreuse et variée. Les choix proposés en plan se répercutent avec une grande logique et richesse tant en coupe qu'en façade. Les décrochements volumétriques permettent une bonne illumination naturelle de la cour et dégagent un grand nombre d'appartements aux étages supérieurs pouvant profiter d'une vue sur le paysage environnant.

Au niveau d'accès, la hiérarchie des halls d'entrée des logements respecte la volonté urbanistique. Les surfaces commerciales ou d'activités permettent une grande variété d'usages. La typologie des logements est particulièrement intéressante ; elle a su interpréter avec dextérité la géométrie complexe de l'ensemble, en proposant des espaces jour généreux avec un grand potentiel d'usages.

L'expression architecturale correspond aux attentes des règles collectives et interprète avec finesse les thèmes des décrochements volumétriques. Le projet laisse présager des solutions énergétiques et économiques performantes et durables.

2e prix: OSMOSE , dl-c, designlab-construction sa
Le projet interprète avec finesse les principes d'implantation proposés par l'image directrice du bureau Aeby & Pernegger. Les décrochements des volumes en plan sont pertinants, tant dans leurs relations avec l'espace urbain voisinant que dans les solutions typologiques proposées. Une plus grande asymétrie des volumes bâtis donnant sur le parc aurait mieux interpreté la situation d'angle, côté route des Plaines- du-Loup. Les accès au rez-de-chaussée sont précis et pertinants, ainsi que l'organisation des surfaces d'activités. Le positionnement et la grande emprise de l'unique local vélo semble moins intéressante dans la connection avec l'espace public.

La typologie des logements proposés est de qualité, permettant un usage varié des espaces communs. La loggia-balcon côté parc est une solution appréciée par le jury, assurant une certaine intimité aux appartements.

L'expression architecturale est calme et correspond au caractère de l'ensemble proposé ; elle permet de consolider la variété volumétrique du projet. Les potentiels économiques et énergétiques semblent importants, tout en gardant les qualités intrinsèques de l'architecture proposée.

3e prix: NOSTRAMUS, LOCALARCHITECTURE
Le projet NOSTRADAMUS propose une solution pertinente dans son interprétation des règles établies par l'image directrice du bureau Aeby & Pernegger. Les écarts des volumes construits sont intéressants et variés. Le jury a porté un intérêt particulier à la solution proposée d'une coursive côté cour. Tout en étant une solution qui sublime la vie collective d'un immeuble de logements, elle semble produire des situations de vue droite vers les appartements trop intenses. Son emplacement, prioritairement au nord et à l'angle aigu vers la route des Plaines-du-loup, rend les lieux peu accueillants. Les espaces de rencontres communs aux étages sont généreux et intéressants. L'usage collectif qu'ils permettent serait encore à préciser.

Les passages couverts au rez-de-chaussée, pourtant de qualité, ne répondent que partiellement aux intentions urbanistiques du plan directeur. Les typologies des logements sont bien résolues, l'usage de la chambre côté coursive, malgré le vide entre étages, reste plus difficile que dans une solution distributive traditionnelle. L'expression architecturale de l'ensemble est forte et cohérente, les conséquences qu'elle induit sont moyennement économiques. 

Sur ce sujet