Place aux en­fants

À Sion, mijong architectes a transformé et agrandi le sous-sol d’un ancien atelier de mécanique. Leur stratégie d’intervention, reposant sur une exploitation astucieuse de l’existant, attire l’attention à plus d’un titre.

Date de publication
08-12-2021

Situé à l’est de l’agglomération sédunoise, le quartier de Champsec présente les traits de caractère d’un territoire en mutation. Le zonage du bâti et des usages témoigne d’un quartier né au milieu du 20e siècle. Au nord, le cours Roger Bonvin, aménagé sur la tranchée couverte de l’A9 datant des années 1980, offre depuis 2016 un espace public programmé pour unifier à terme les quartiers de Champsec et Vissigen. La route du Manège est située à l’arrière de l’artère commerciale de la rue des Casernes. Elle dessert les immeubles et maisons du quartier. L’atmosphère en milieu de journée y est calme, à peine troublée par quelques parents venus récupérer un enfant à la Pouponnière, la crèche du quartier récemment agrandie et désormais la plus grande de la capitale valaisanne.

Une institution pour l’accueil de la petite l’enfance

Institution historique, l’actuelle Pouponnière valaisanne reste liée au symbole de l’engagement social d’une femme, Marie-Rose Zingg (1897-1975). Bâloise de naissance, elle découvrait le Valais à 18 ans pour y soigner une tuberculose. Touchée par la situation précaire d’une part minoritaire de la population enfantine, elle créait en 1931 un refuge pour nourrissons et enfants orphelins, malades, abandonnés, maltraités ou nés d’une union impossible. À celui-ci s’ajoutaient une école de nurses (1932), une maternité (1946) et un refuge pour mères célibataires et en détresse (1948). Le tout sans aide financière publique. Pour permettre aux mères d’exercer une activité professionnelle, la Pouponnière accueillait dès 1952 des enfants à la journée, préfigurant le développement de la politique valaisanne au service de la petite enfance. Devenue association privée subventionnée en 2000, elle est aujourd’hui gérée par l’Association sédunoise des lieux d’accueil de l’enfance qui exploite depuis 2017 l’ensemble des six structures d’accueil subventionnées.

Pérennisation d’un squat de bambins

L’évolution spatiale de la Pouponnière valaisanne se conte en étapes. Celle qui nous intéresse plus particulièrement commence en 2008, lorsque la crèche-nurserie quitte l’ancien hôpital des Bourgeois, qu’elle occupait depuis 1946. Le bâtiment historique extra-muros classé au niveau fédéral devait en effet être restauré. Les petits pas et les cris des enfants résonnent depuis lors dans l’aile est de l’ancienne usine horlogère Tavaro, une halle industrielle double appartenant à la Commune. Le réaménagement provisoire est confié au bureau Berclaz-Torrent: les salles de groupe prennent la forme de petites maisons en bois clair, donnant à l’ensemble le caractère d’un village structuré par des placettes et des circulations qu’un sol en linoleum vert foncé unifie. Quelque 120 enfants y passent leurs journées entre la nurserie (0 à 18 mois) et la crèche (18 mois à 4 ans).

Dix ans plus tard, alors que la protection du patrimoine et le difficile respect des normes sismiques pour l’accueil d’enfants en bas âge empêchent le retour de la crèche dans l’ancien hôpital, la Pouponnière s’est finalement agrandie au sous-sol et compte une vingtaine de places supplémentaires. Elle entend y rester pour la simple et bonne raison que c’est la première fois de son histoire qu’elle ne s’adapte pas à un bâtiment mais que celui-ci est adapté à ses besoins. D’un point de vue politique, ce projet s’inscrit dans une stratégie communale d’accueil de la petite enfance répondant à la croissance démographique importante du quartier de Champsec et à la volonté de renforcer des structures déjà existantes.

Habiter au sous-sol

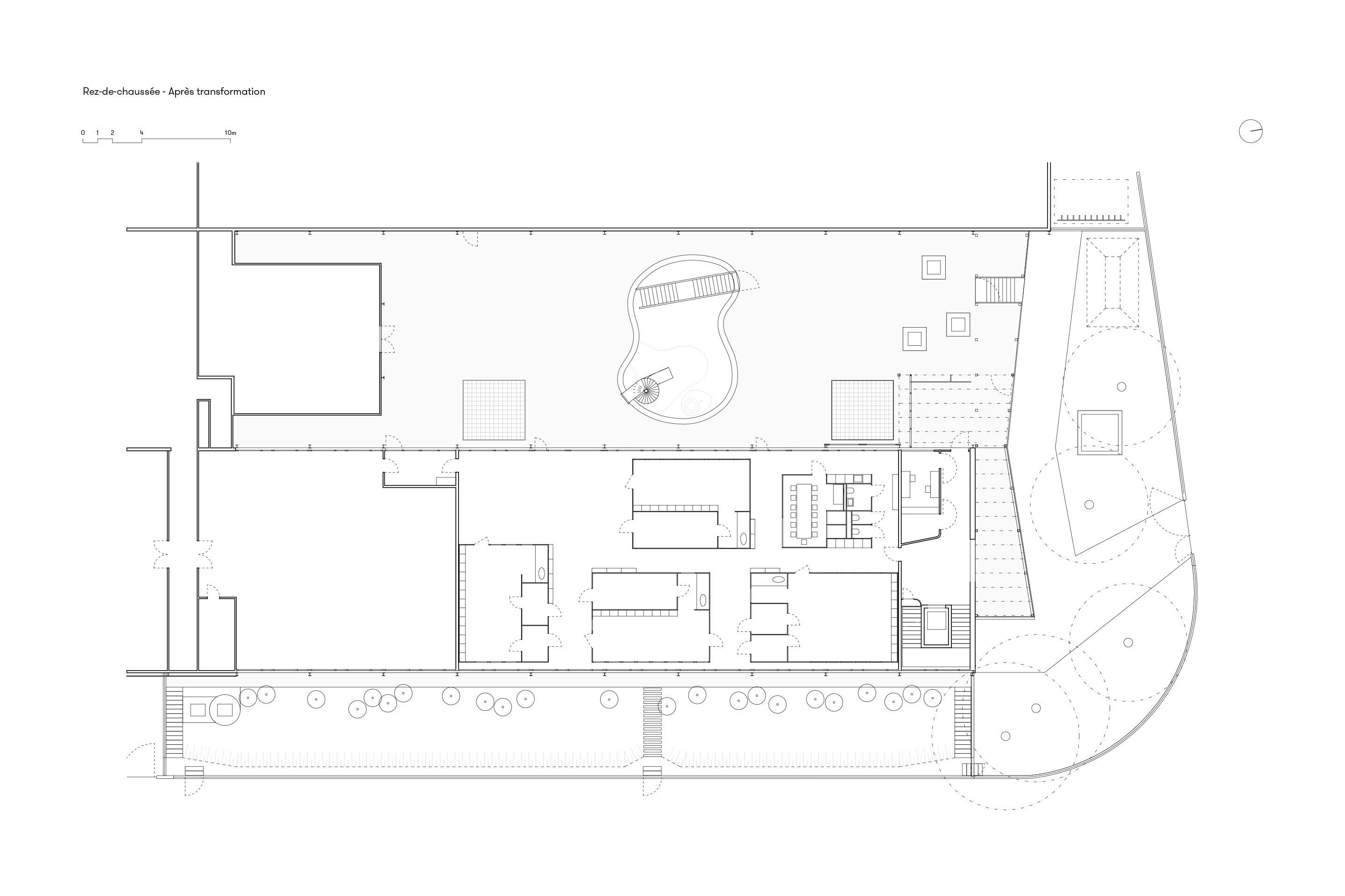
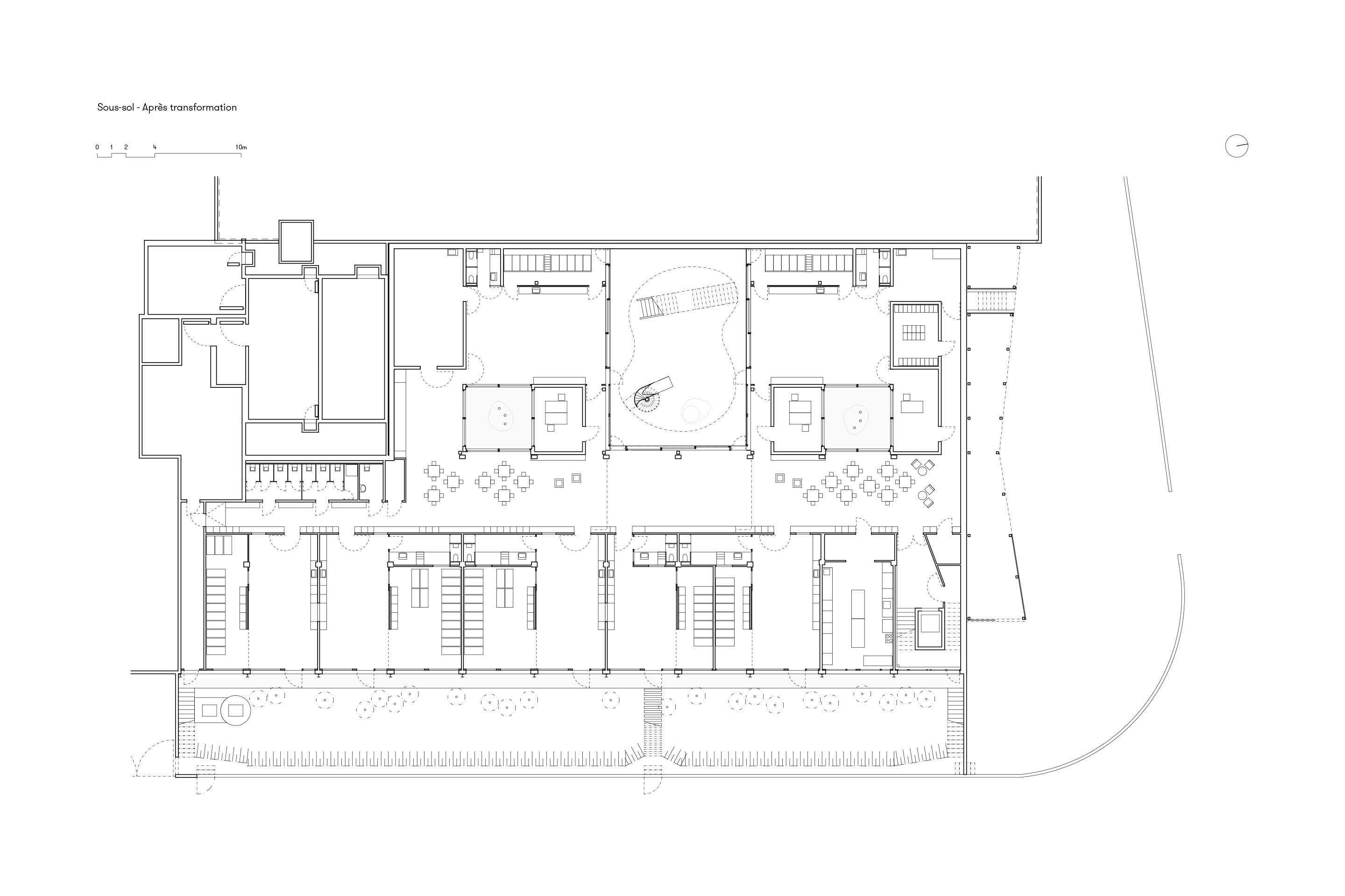
La maxime veut qu’un ouvrage digne de ce nom repose sur des fondations solides et saines, au sens propre comme au figuré. Si l’intervention de mijong illustre à plus d’un égard cette affirmation, on la perçoit à peine depuis l’extérieur. Une rampe mène à une plateforme en caillebotis située à 120 cm du terrain. Des pieds de vignes entreprennent timidement l’ascension d’une treille en profilés d’acier galvanisé qui marque le début d’un nouveau monde : un deck en frêne thermotraité se déploie désormais entre les deux ailes des halles industrielles et abrite une vie souterraine que trois larges trémies laissent entrevoir. Le nouvel aménagement du parvis pallie les manques de l’affectation provisoire: local poussettes amianté, jeux extérieurs de fortune, topographie accidentée et végétation nocive. Au sous-sol, mijong a tiré profit de l’existant pour proposer un projet bicéphale: deux parties de nature différentes mais spatialement unifiées.

La première partie est située au sous-sol du bâtiment existant et dialogue avec sa structure en béton armé. Elle est organisée par une cloison épaisse intégrant les vestiaires des enfants, des placards, des alcôves et les entrées des unités. Chacune d’elles se déploie entre deux trames de la structure existante autour de laquelle sont organisées une salle de soins, une salle principale et une salle de repos aménagée comme une cajute de bateau. Le parquet, les parois en chêne et contreplaqué apprêté blanc associées aux teintes pastel des salles de soin définissent une atmosphère domestique. À l’opposé, l’espace majeur de ce niveau court d’un bout à l’autre du bâtiment. Son sol en terrazzo, composé de cailloux et sables du lac de Neuchâtel, poncé puis imprégné, marque le caractère collectif et partagé de ce lieu. C’est ici que les enfants sont accueillis, mangent ou font de la gymnastique.

Élément clivant d’un point de vue constructif, cet espace opère une jonction spatiale avec l’extension du sous-sol dans la cour qui sépare les deux ailes de la halle industrielle. Des patios entièrement vitrés procurent aux espaces une lumière naturelle douce et constante. Ils ponctuent un plan organisé comme une suite d’espaces regroupant deux grandes unités supplémentaires, la cuisine, les vestiaires et une salle de pause. Les trois patios sont accessibles et intégrés à la pédagogie et à la spatialité de la Pouponnière: par beau temps, l’ouverture des fenêtres à double coulissants permet de multiplier par trois la surface de jeu de l’étage du bas. Le plus grand des patios abrite un toboggan et un escalier qui relie l’espace extérieur majeur de la crèche-nurserie avec l’étage du bas, et vice-versa. L’occasion de donner un peu plus de polysémie à la phrase «ma terrasse est ton toit» ou, plus pragmatiquement, de permettre à tous les enfants de se retrouver facilement et au-delà de la barrière des âges sur un grand terrain de jeux conçu pour eux. Épilogue d’une transformation: continuité et simplicité

Élément clef du projet, la nouvelle cour de la Pouponnière est une réponse aussi efficace qu’inattendue au besoin grandissant en espaces extérieurs d’une structure contrainte dans son emprise. L’ajout de ce nouvel élément qui a permis de redynamiser une structure obsolète tout en en respectant la configuration pré-existante est le résultat d’une stratégie cherchant à identifier des besoins et des potentiels afin de les valoriser et de les compléter. Carole Pont, Céline Guibat et leur équipe ont accumulé une belle expérience dans ce domaine et livrent avec la Pouponnière valaisanne un projet qui s’inscrit dans la continuité. Pas de démonstration de force ni de démarquage territorial: extérieurement, la crèche ressemble à s’y méprendre à l’usine d’origine. Comme par mimétisme avec cette affectation passée, elle présente une conception efficace et simple, sans fard, à l’image de la ventilation simple flux qui complète la ventilation naturelle traversante. Dans un projet dont l’essence se situe quelque part entre la liberté du mouvement, qui a guidé l’organisation du plan, et le principe d’ouverture et de liaison lisible en coupe, les enfants sont invités à trouver leur chemin dans un environnement ouvert favorisant les contacts et la découverte.

La Pouponnière valaisanne, Sion VS

 

Maître d’ouvrage: Ville de Sion

 

Architecture: mijong architecture design

 

Direction des travaux: Suter Sauthier architectes

 

Ingénieur civil: CSD ingénieurs sion-valais

 

Ingénieur électricité: bee bureau d’études électriques

 

Ingénieur cvs: Groupement David Vergères et Technitherm

 

Ingénieur protection incendie: MGAD

 

Acousticien: BS Lucane

 

Surface brute de plancher selon norme sia 416: 1779 m2

 

Volume bâti selon norme sia 416: 8358 m3

 

Coûts CFC 1, 2, 4, 9: 5 593 000 CHF TTC

Sur ce sujet