Pa­so­doble

Façade en céramique

Date de publication
18-07-2022

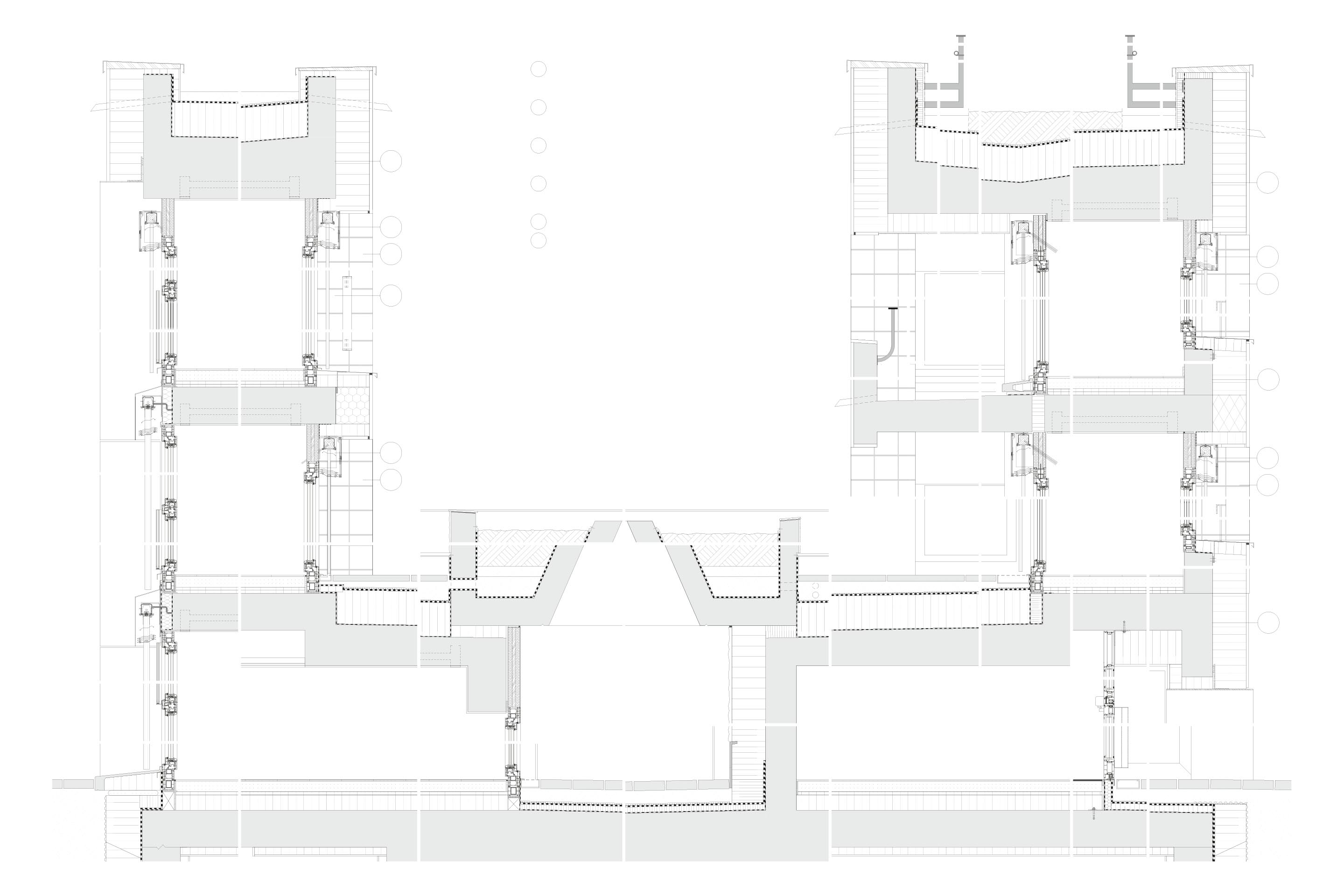
Le pasodoble est une danse espagnole dont le nom signifie «double pas» et où deux corps évoluent ensemble. Nomos y reconnaît des similitudes avec son projet de logements. Deux volumes de programme et stature différents incarnent les deux danseurs. Le premier est un joyau vert de deux étages sur rez, le second se manifeste avec des tonalités neutres. Le bâtiment gris abrite des logements économiques, alors que le vert héberge des logements étudiants ainsi que des habitations de la fondation Sgipa pour personnes présentant une forme de déficience intellectuelle. Les deux encadrent une promenade par moment couverte à travers un jeu d’arches au rez-de-chaussée et composent ensemble un abri avec le quartier situé à l’opposé de la route. L’arcade lie ainsi les deux communautés mais elle perce également le tissu urbain afin de servir une collectivité plus large. Cette idée de collectivité est mise en scène par un délicat système de vues voilées et dévoilées, auquel les carreaux de céramique faits main en Italie de la façade verte ajoutent une touche subtile. Leur matérialité fonctionne à la fois comme caractéristique distinctive et unifiante entre les deux immeubles. Un fin jeu de couleurs et de reflets apparaît suivant les heures de la journée. Par moment jade, puis émeraude, le volume plus compact réfléchit l’image de son partenaire, imposant en taille mais discret en façade.

-> Version longue originale de cet article d'Ana Carvalho

Cet article a été publié dans le numéro spécial «Fassaden | Façades | Facciate – Constructions contemporaines en Suisse».

Bâtiments d’habitation, Lancy (GE)

 

Maître d’ouvrage
Defi TTC pour SGIPA, M. Fulliquet, ­Carouge

 

Architecture
Nomos Architectes, Genève

 

Direction de travaux
RDT Sàrl pour SDC Investissement, ­Petit-Lancy

 

Ingénieur civil
Sbing, Carouge

 

Céramique en façade
La Riggiola, ­Ercolano (Italie)

 


Facts & Figures

 

Procédure
Mandat direct

 

Réalisation
2019-2021

 

Coût HT CFC2
30 Mio CHF

 

Surface de plancher brute
6133 m2

 

Programme
32 appartements collectifs et logements sociaux (ZDLOC, HM), 33 unités Sgipa, espaces commerciaux, centre d’entraînement physique et de réhabilitation, parking souterrain.

Magazine

Sur ce sujet