Pas loin d’un ef­fon­dre­ment

Le 13 janvier dernier, un poids lourd transportant une pelle mécanique heurtait un passage supérieur à proximité de Birmenstorf sur l’A1. Le pont endommagé a vite été sécurisé, mais des calculs statiques montrent que c’est une chance qu’il ne se soit pas effondré.

Date de publication
27-05-2014
Revision
15-10-2015
Thomas Ekwall
MSc. EPFL Bau-Ing., MAS ETHZ Arch., Korrespondent TEC21

L'accident est clairement imputable aux dimensions du convoi : sa hauteur de 4.75 m ne respectait de loin pas les 4.00 m autorisés. Comme pour l’ensemble des passages supérieurs du réseau des routes nationales, le gabarit d’espace libre sous le pont n’était que de 4.50 m et celui-ci a subi d’importants dégâts. Des morceaux s’en sont détachés, endommageant quelques véhicules, mais sans faire de blessés graves.

Sécurité immédiate


L’accident a eu lieu à 8 h 35. A 9 h 15, la police interdisait la circulation sur le passage supérieur. Vers 10 h, et après évaluation de la zone d’accident par un responsable de l’OFROU (lire interview ci-dessous), celui-ci décidait aussitôt de fermer également le tronçon d’autoroute sur lequel près de 125 000 véhicules circulent quotidiennement. Arrivé sur place vers 10 h 45, Harry Fehlmann, ingénieur au sein du bureau Bänziger Partner (BP), confirmait rapidement un danger d’effondrement du passage supérieur.
Sur place, il a estimé les efforts que devraient supporter des dispositifs provisoires de soutien, alors que ses collègues vérifiaient au bureau la validité de ses estimations. A midi, les charges maximales sur les échafaudages étaient définies et la mise en place de ces derniers débutait à partir de 14 h (photo). Après l’évacuation des décombres, la circulation a été réouverte en direction de Zurich et Berne à respectivement 17 h 15 et 18 h 15. Lors du débriefing, l’OFROU est arrivé à la conclusion que la coordination entre la police, le service du feu et les unités territoriales de l’OFROU avait bien fonctionné.

Calcul statique ultérieur


Le bureau BP a ensuite procédé à un calcul statique de la résistance du pont après l’accident. Ce calcul a montré, qu’avec l’aide des échafaudages, le pont est à même de supporter une charge de service de 4 kN/m2 qui garantit sa sécurité. Il a été réouvert à la mobilité douce à partir du 1er mars.
Selon BP, le danger a atteint son paroxysme durant la période qui a précédé la fermeture du passage supérieur. Son effondrement partiel n’a en effet été évité que parce que seule la partie inférieure du béton a été endommagée. En effet, la résistance à l’effort tranchant a été réduite de 65 % à la suite de l’accident. Une résistance suffisante tant qu’il n’y a pas de trafic, mais insuffisante pour supporter le trafic défini par les normes.
Il s’est avéré que, quelques minutes après l’accident, un poids lourd de 30 tonnes a franchi le passage supérieur. Les calculs montrent que la résistance résiduelle à l’effort tranchant a momentanément été dépassée. Par chance, le pont ne s’est pas effondré.

Traduit par Jacques Perret 

 

 

Un passage supérieur identique à des centaines d’autres en Suisse

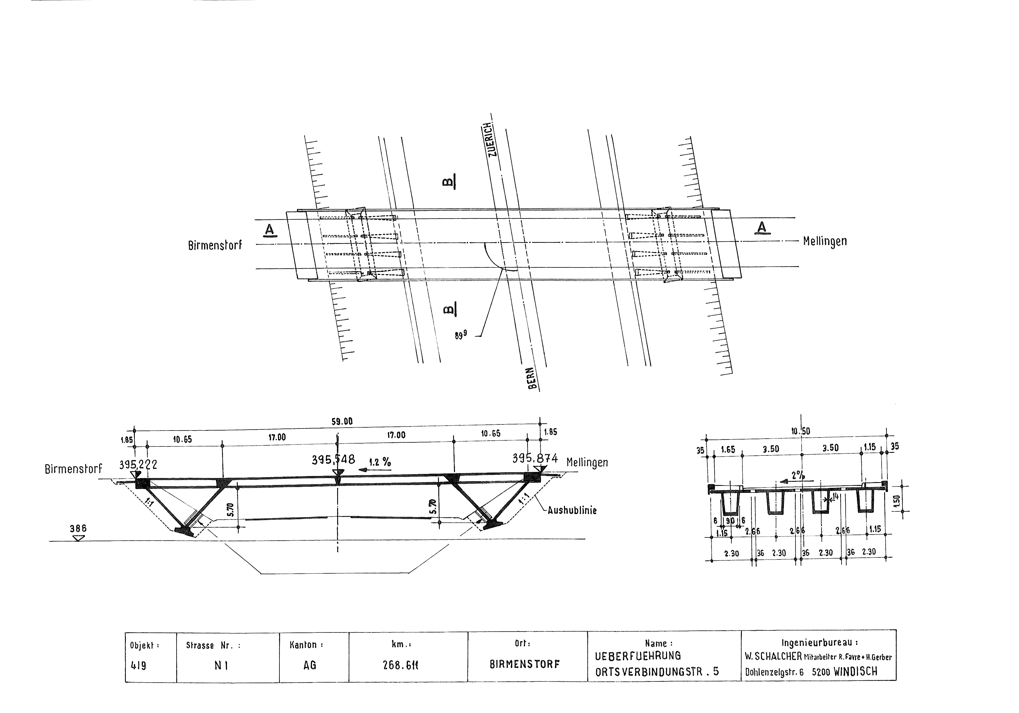
Le pont endommagé à Birmenstorf a été construit en 1967/68 sur la base du modèle standardisé « PS préfabriqué en béton à béquilles en V type 3 » (Projet standard n° 312 du Service fédéral des routes et des digues). Il y a 100 ponts répertoriés de ce type en Suisse, dont 90 sur les routes nationales.
La chaussée est constituée de quatre caissons préfabriqués précontraints par fils adhérents. Une fois les espaces entre les caissons remplis, quatre câbles de précontrainte (deux par âme) supplémentaires par caisson sont mis en tension.  

 

«Les ouvrages d’autrefois sont juste moins résistants» – Entretien avec Richard Kocherhans, OFROU

Après avoir pesé les risques, l’OFROU a décidé de ne pas prendre de mesures particulières pour les passages supérieurs du genre de celui endommagé dans l’accident sur l’A1. 
TEC21 : Le passage supérieur endommagé par un accident en début d’année n’est pour le moment accessible qu’à la mobilité douce. Quelle est la suite?
Richard Kocherhans : Le passage supérieur est important pour la commune, car il conduit à une école. D’un point de vue statique, il serait possible de laisser les véhicules légers y circuler, mais le risque est trop grand qu’un véhicule lourd enfreigne une simple limitation de charge. Le démontage de l’ouvrage et son remplacement devraient commencer en novembre.
Pourquoi avoir procédé après coup à des investigations sur l’état sécuritaire du pont endommagé?
Ces investigations concernaient en premier lieu l’évaluation de son état actuel, avec les échafaudages provisoires. Nous en avons profité pour essayer de mieux comprendre la façon dont l’ouvrage a été endommagé, afin d’en tirer certains enseignements.
Juste après l’accident, la capacité portante de l’ouvrage était insuffisante. Comment expliquez-vous qu’il ne se soit pas effondré?
Il est probable que les 10 cm de béton qui constituent la chaussée aient favorisé la répartition des charges entre les caissons. Le pont était fortement endommagé, ce qui complique singulièrement la mise en place d’un modèle représentatif. Il n’empêche qu’on a eu beaucoup de chance que le pont ne se soit pas effondré, bien qu’un poids lourd l’ait franchi après l’accident.   
L’analyse statique effectuée montre qu’un « effondrement partiel » aurait pu avoir lieu : qu’est-ce que cela signifie?
Qu’il est peu probable que tous les caissons longitudinaux se soient effondrés. Cependant, étant donné que le pont franchit les six voies de l’autoroute sans aucun appui intermédiaire, cela aurait affecté la circulation dans les deux directions, ce qui aurait pu avoir des conséquences très néfastes.
Tirez-vous des enseignements de cet accident concernant la conception, l’entretien ou la signalisation des ponts?
Non. Selon les directives actuelles, qui datent de 2005, les passages supérieurs doivent être dimensionnés pour résister aux chocs latéraux. La loi fixe la hauteur maximale des véhicules : les transports de plus de 4.00 m de haut doivent être au bénéfice d’une autorisation spéciale. Selon nos standards, les passages supérieures prévoient une hauteur libre de 4.60 m. On dispose donc d’une marge de sécurité suffisante.
Les accidents résultant de chocs sous des passages supérieurs sont fréquents. Les ouvrages d’art  des années 1960, dont le passage supérieur sur l’A1 fait partie, n’ont pas été conçus pour y résister. S’agit-il d’un risque accepté?
Non. La question est plutôt de savoir à quel risque nous avons à faire. Dans le cas présent, si le pont avait été dimensionné selon les normes actuelles, il aurait été plus solide. Il est probable que la pelle mécanique se serait renversée et les conséquences auraient pu être bien plus graves. Nous connaissons bien l’état de nos ponts, les ouvrages plus anciens sont juste moins résistants que ceux construits de nos jours. Cela ne justifie pas une remise en cause fondamentale de notre stratégie de maintenance.
Richard Kocherhans est ingénieur civil EPF. Il travaille à l’OFROU, où il dirige la division infrastructure de la filiale de Zofingen. Il était responsable des opérations pour l’OFROU le jour de l’accident.
Propos recueillis par Thomas Ekwall, rédacteur TEC21
Traduit par Jacques Perret

Étiquettes

Sur ce sujet