Lo­ge­ment so­cial amé­ri­cain au 21e siècle: le cas de Su­gar Hill

Le projet new-yorkais de logement social Sugar Hill, commandité par la fondation Broadway Housing Communities et réalisé par l'architecte David Ajaye, est à l'origine d'un nouveau concept de développement communautaire économiquement durable. Analyse de l'architecte Léonore Nemec.

Date de publication
20-04-2020

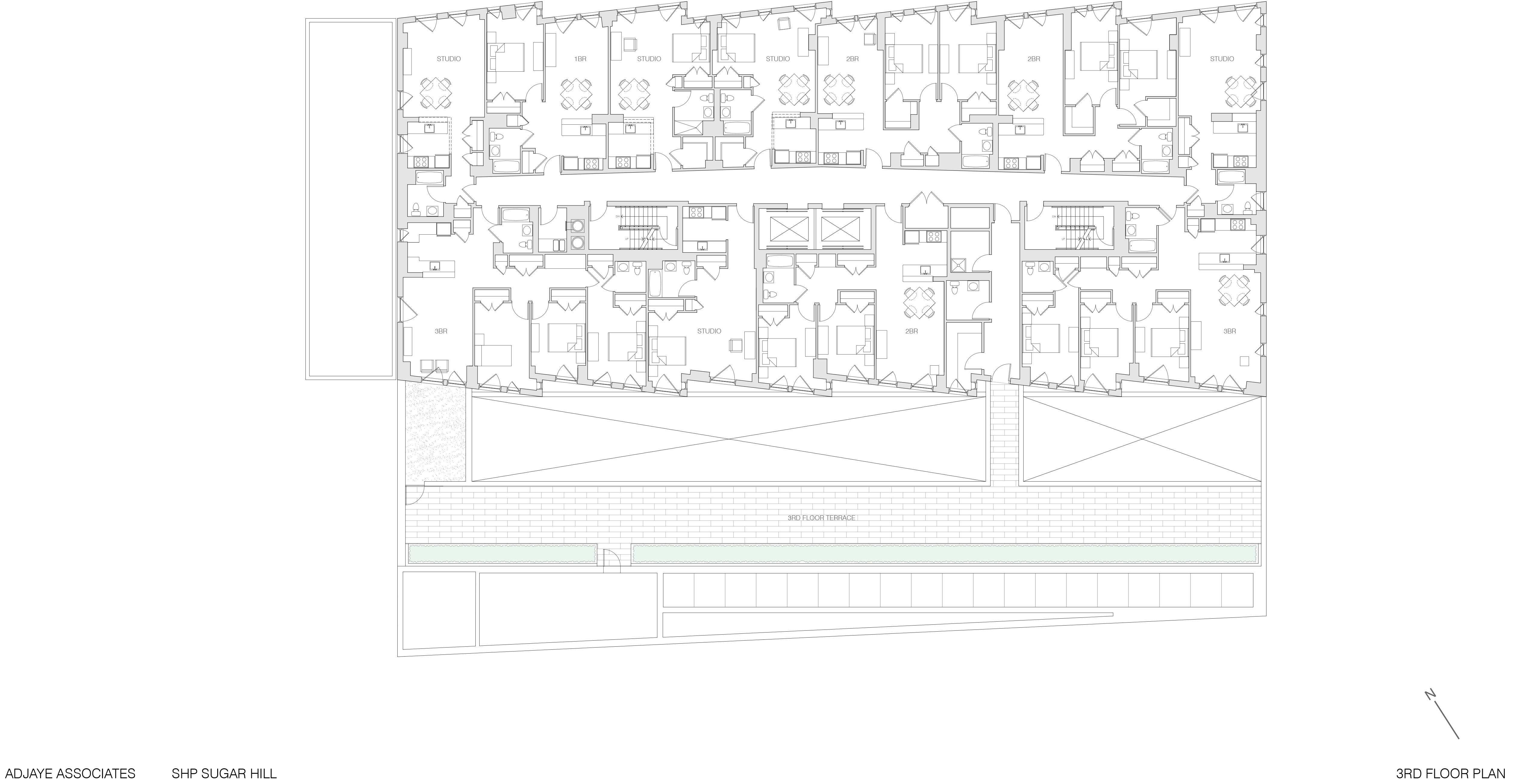
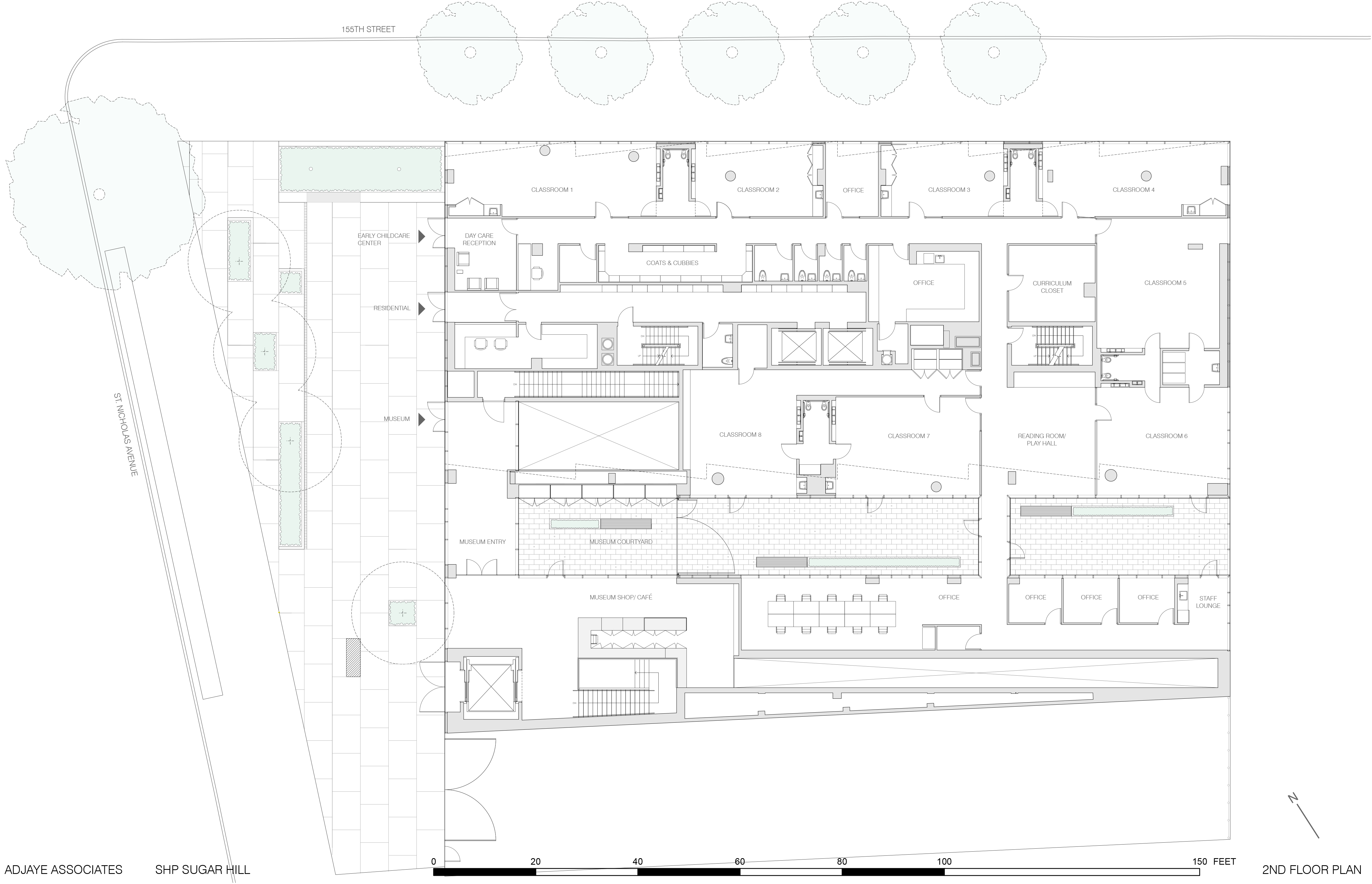
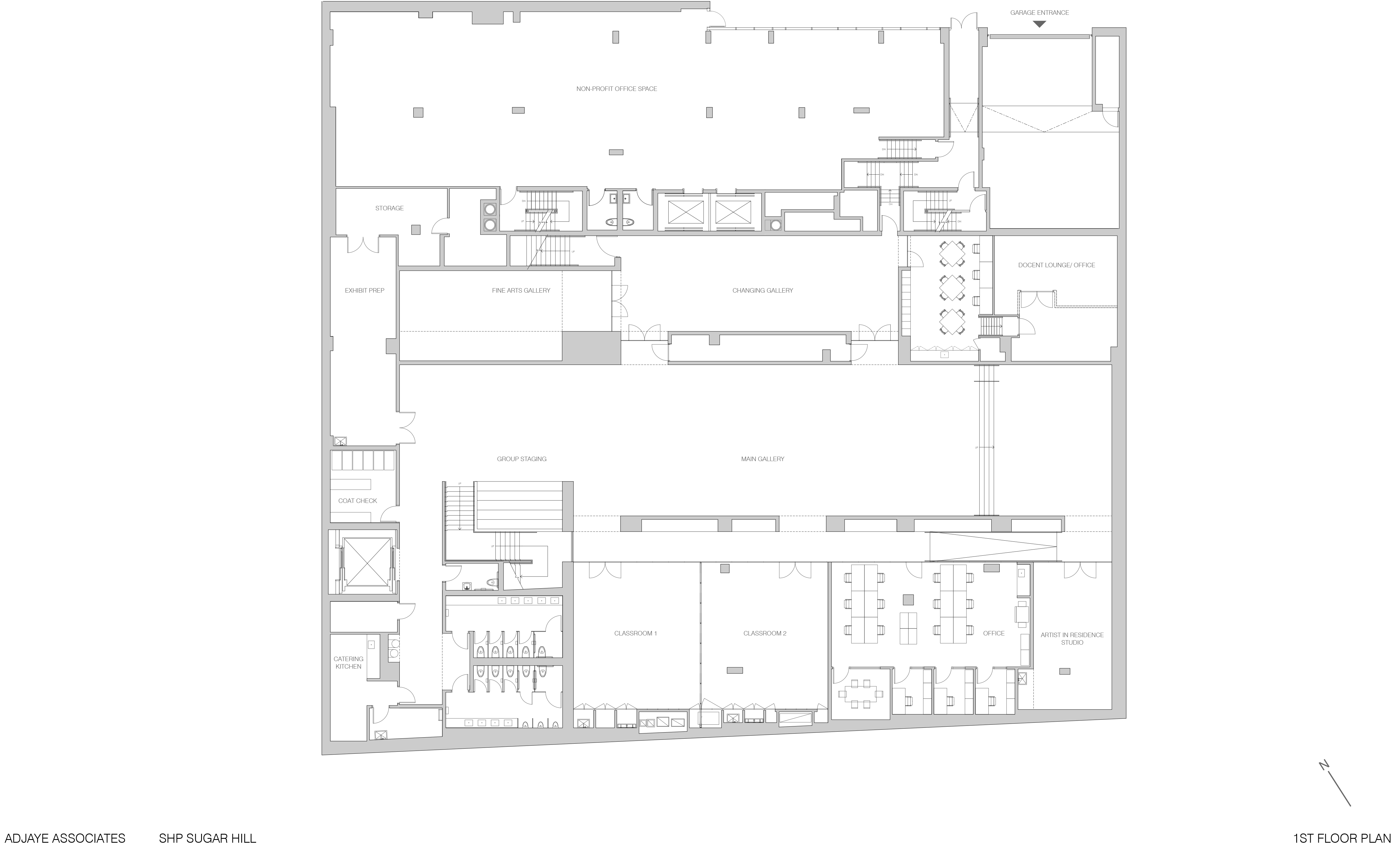
Sugar Hill. Nous sommes en 2015, à Harlem, dans le nord de Manhattan, à New York City. Les fondations du projet Sugar Hill 1 sont enfin posées après deux ans de combat politique et administratif. Il aura fallu cependant plus de 30 ans de travail quotidien sur le terrain pour voir émerger un nouveau concept de développement communautaire à New York. Le bâtiment commandité par la fondation Broadway Housing Communities (BHC) dirigée par Ellen Baxter, et conçu par l’architecte David Adjaye, est constitué de 124 logements sociaux, d’une école enfantine et d’une institution culturelle, The Sugar Hill Children’s Museum of Art and Storytelling. Ce modèle, grâce à ses trois programmes, a la vocation de toucher un large spectre de la population du quartier et s’inscrit dans une durabilité économique et sociale.

La fondation BHC: un combat de plus de 30 ans

Depuis 1983, la fondation à but non lucratif Broadway Housing Communities, reconnue pour ses approches innovatrices, œuvre pour l’établissement de logements permanents et de structures de soutien communautaires destinés aux plus démunis dans les quartiers défavorisés de New York, West Harlem et Washington Heights.

Alors que le problème des sans-abris n’est pas un phénomène nouveau aux États-Unis et à New York, la crise de Modern Homelessness2 qui débuta dans les années 1970 est historique. Il faut remonter à la Grande Dépression des années 1930 pour trouver une autre période de l’histoire où une aussi grande partie de la population new-yorkaise se trouvait sans logis.

Dans les années 1930, un système de chambre à l’unité, Single Room Occupancy (SRO), fut mis sur pied afin de loger les plus pauvres de la ville. Il regroupait plusieurs chambres individuelles à loyer abordable avec une cuisine et des sanitaires communs.

Dans les années 1950, il y a une forte augmentation de la demande pour ces logements, due notamment aux changements de politiques publiques tels que la fermeture de structures hospitalières en psychiatrie. En 1955, la législation du parc immobilier ayant interdit la construction de nouveaux SRO, le nombre de ces logements abordables stagna. Entre 1960 et 1980, la transformation de la ville, sa gentrification ainsi que le changement de la réglementation fiscale sur les biens fonciers seront, entre autres, les causes de la diminution du nombre d’habitations abordables et par conséquent de l’augmentation des sans-abris dans les rues de New York.

Pour remédier à cette situation de crise, les futurs fondateurs de la Coalition for the Homeless3, dont Ellen Baxter, intentèrent, en 1979, une action en justice pour démontrer que la Constitution de l’État de New York donne droit à un abri à chacun. L’action fut un succès et l’État de New York dut fournir un toit aux personnes sans domicile. Cette opération eut une portée fondamentale car les fonds destinés à cette cause font désormais partie du budget annuel de la ville.

Depuis, de nombreux abris d’urgence ont été construits par la Ville de New York. En 2019, chaque soir, à New York, 62 391 personnes y dormaient dont 22083 enfants. Malheureusement, beaucoup de ces abris sont sales, dangereux et surpeuplés. Les lits sont alignés les uns à côté des autres, sans aucune privacité. Chaque matin, les occupants doivent quitter les lieux sans assurance de pouvoir y retourner le soir venu.

Financièrement, de telles structures s’avèrent non rentables à long terme, en raison des coûts de la main d’œuvre et de la logistique nécessaires à leur fonctionnement. De nombreuses études ont démontré que le coût des logements permanents destinés aux sans-abris est bien moindre que le coût des abris d’urgence. Pour Ellen Baxter, ces abris municipaux sont des prisons sans cadenas qui empêchent leurs occupants de se réintégrer dans une vie active. Comme alternative, BHC propose un système similaire à celui des Single Room Occupancy. Pour la fondation, il est primordial d’offrir un habitat stable à long terme aux sans-abris et favoriser ainsi leur réinsertion dans la société et sur le marché du travail.

En 1986, l’organisation ouvre son premier immeuble d’habitation The Heights. S’ensuit l’ouverture de six autres bâtiments. Sugar Hill Appartments, dernier projet réalisé, a été influencé par chacun des projets précédents.

Alors que les quatre premières réalisations de BHC, entre 1986 et 1991, mettent à disposition des studios ou des SRO, les deux réalisations suivantes, entre 1991 et 2003, disposent d’appartements de plusieurs pièces destinés à des familles sans-abris.

L’immeuble The Rio, ouvert en 1991, comprend 75 studios, sept appartements familiaux ainsi que les bureaux de la fondation BHC. Les particularités de cette structure sont non seulement l’offre d’appartements familiaux mais également la création d’une galerie d’art. Pour la première fois, BHC intègre un programme communautaire à un projet de logements sociaux.

À l’initiative d’Ana-Ofelia Rodriguez, directrice du Département de l’engagement communautaire de BHC, des œuvres d’artistes locaux sont exposées sur les murs des locaux de BHC. Cela a pour effet de stimuler les échanges entre les locataires et les habitants du quartier. L’expérience étant positive, une salle entière dédiée aux expositions, véritable galerie d’art, sera inaugurée. «Un bâtiment de logement rassemble de multiples sphères privées mais ne pousse pas à l’échange et au contact», déclare Ana-Ofelia. L’art donne l’opportunité de se connecter avec le monde extérieur, encourage les échanges entre habitants, promeut les artistes en devenir.  Mettre à disposition un espace d’exposition dans un tel quartier permet de démentir le préjugé « l’art est pour l’élite » et place ce média au centre de la réinsertion sociale. D’autre part, cet espace communautaire destiné à un public plus large a donné une visibilité à l’association BHC et lui a procuré le soutien des habitants du quartier.

En 2003, le bâtiment Dorothy Day Apartments situé au bord de l’Hudson River est rénové pour accueillir 70 appartements. La majorité des appartements est destinée aux familles. Une nouvelle galerie d’art est ouverte au dernier étage avec terrasse et vue sur l’Hudson River. La beauté du lieu est son attrait premier. Pour la première fois, une structure éducative pour la petite enfance est ouverte. La haute fréquentation des cours parascolaires offerts dans les bâtiments antérieurs a fait émerger le besoin d’un soutien scolaire. Avec un enseignement dès le plus jeune âge, BHC espère assurer un futur meilleur à la jeune population.

Alors que les six premières structures sont destinées aux personnes sans abris, le projet de Sugar Hill accueille sous un même toit, pour la première fois dans ce quartier, des sans-abris et des personnes vivant jusqu’alors sommairement. À West Harlem (Sugar Hill), 70 % des enfants qui naissent sont en dessous du seuil de pauvreté. Cette couche de la population est laissée en marge par les systèmes d’aide et bien qu’ayant un toit, les familles vivent dans des conditions difficiles. Sur les 124 appartements construits à Sugar Hill, 25 % sont habités par des personnes auparavant sans abri et 75 % sont occupés par des familles vivant en dessous du seuil de pauvreté.

Par la mixité, ce système remédie à la stigmatisation sociale et améliore la sécurité du quartier.

L’expérience acquise par BHC au sein de la communauté de West Harlem durant le développement de chaque projet a permis la création du nouveau modèle de Sugar Hill Apartments.

Les dynamiques sociales au sein de la communauté ont une place primordiale dans la logistique de ce bâtiment. Par exemple, une corrélation entre la présence d’enfants et la diminution de la criminalité a été observée après l’ouverture des centres éducatifs. De plus, l’emploi des habitants pour la maintenance et la surveillance de chacune de ces structures améliore la sécurité du quartier et leur procure du travail. À Sugar Hill, 16 personnes, dont 12 adolescents, sont employées à cet effet. Cela leur permet de gagner de l’argent, d’apprendre à se responsabiliser et les oblige à suivre les règles de la communauté. Pour eux, c’est le début d’une insertion dans la vie active, et pour la fondation, un moyen de lutter contre la criminalité. Les jeunes, souvent dans la rue, viennent à respecter leur lieu de travail et de vie et tâchent de le faire respecter par le reste de la collectivité. BHC a compris que l’emploi des habitants au sein de ces structures est le meilleur moyen d’assurer un environnement stable et sûr.

Sugar Hill Apartments

En 2007, ayant pour objectif un projet de grande ampleur, BHC s’est lancé pour la première fois dans une opération de construction d’un bâtiment contemporain. Pour cela, la fondation a acquis une parcelle de 1966 m2, occupée alors par un garage art déco de trois étages.

Afin de rendre hommage à l’héritage culturel et architectural du quartier de Sugar Hill, BHC a organisé un concours d’architecture sur invitation avec 26 participants.

Le concours a été remporté par le bureau Adjaye Associates et son projet de 16260 m2. Par son expression architecturale, son emplacement en tête de carrefour, sa volumétrie et ses programmes offrant d’avantageux services à la communauté, le bâtiment proposé – première architecture contemporaine de logements sociaux à Harlem – est rapidement devenu une icône pour les habitants du quartier.

Il se situe à la pointe nord du quartier Sugar Hill à Harlem, à la jonction de trois districts : Hamilton Heights, Central Harlem et Washington Heights. Par sa localisation, il fait le lien entre le quartier historique de la communauté afro-américaine au sud et le quartier de Washington Heights de communauté dominicaine au nord. Le quartier de Sugar Hill, composé de maisons “Brownstone row Houses“ datant du début du 19e siècle, est inscrit au patrimoine historique national. Après avoir été, dès 1920, le berceau du mouvement culturel Harlem Renaissance et un centre des luttes pour l’égalité des droits civiques et l’égalité raciale, Harlem commence à décliner dès les années 1950. Au nord de Sugar Hill, ont été alors construites des barres de logements sociaux, les Projects, qui, encerclées de bretelles routières, ségrèguent les populations les plus pauvres.

Cependant, le riche héritage architectural et historique de certaines zones de Harlem est peu à peu mis en valeur, offrant des perspectives de développement de qualité.

Le projet gagnant du concours a été présenté publiquement. Alors que l’architecture contemporaine n’est pas toujours facilement acceptée par la collectivité, l’adhésion au projet a été unanime. Ellen Baxter, surprise par le soutien massif du Community Board 4 de West Harlem, explique que la visibilité des actions de BHC durant 30 ans dans ce district et l’implication de l’architecte David Adjaye dans la présentation de son projet à la communauté locale ont fortement influencé ce vote positif.

Le projet initié en 2008 a pour but d’offrir à la population la plus pauvre «un bâtiment avec le plus haut degré d’innovation et de qualité architecturale»5.

Pour l’obtention de ces fonds, 60% des unités d’appartements, indépendamment de leur surface et du nombre de pièces, doit être destiné aux sans-abris. Ce système affecte le taux de construction d’unités et les typologies de logements sur le territoire de la ville de New York, répondant en partie au manque de logements à loyer abordable mais laissant pour compte beaucoup d’individus dans le besoin.

Pour ces raisons, BHC a calculé, dès le départ, son budget total en intégrant la construction de logements allant jusqu’à 3 pièces afin de rassembler les fonds nécessaires.

Le bâtiment en fonction depuis 2015 devrait être rentable sur le long terme. Aujourd’hui, les locataires des appartements payent un loyer qui correspond à 30% de leur salaire. Alors que les logements sont financièrement rentables, le musée et l’école pour le moment sont subventionnés par des fonds publics et privés. Alors que BHC espère que le musée acquiert une autonomie financière, actuellement, il est financé par la Ville et l’État de New York, des bourses fédérales et des dons philanthropiques. Malheureusement, ces fonds restent insuffisants au bon fonctionnement du musée et la fondation BHC doit actuellement couvrir le déficit avec son propre capital. La stratégie de BHC est d’obtenir des fonds du milieu culturel philanthropique destiné à l’art, qui est vaste à New York.

L’école privée est totalement gratuite pour les familles. Elle est financée par deux sources publiques: l’État fédéral et la Ville de New York.

Responsabilité civile et légale

Le système légal est extrêmement important pour réglementer le développement immobilier régi aujourd’hui principalement par l’économie globale. Alors que l’habitat devrait être un droit premier pour tout être humain, il est devenu un produit de commerce et de spéculation. Les pouvoirs étatiques et législatifs ont une responsabilité à faire valoir pour le droit au logement sur le marché immobilier.

La complexité des projets à des fins sociales qui regroupent, comme dans le cas de Sugar Hill, divers programmes n’est pas toujours prise en considération. Ces projets se trouvent souvent confrontés à des incohérences du système légal pour l’obtention d’aides financières, car ils ne rentrent pas dans les schémas habituels américains qui séparent clairement logements et activités communes.

«L’évaluation de projets sociaux devrait être revue afin de tenir compte non seulement du rendement du capital financier mais également du retour sur investissement du capital humain et social sur un plus long terme»6.

Le cas de Sugar Hill est un exemple remarquable qui démontre d’une part l’importance des actions sur le terrain, au quotidien, mais également la nécessité des démarches à un niveau législatif et politique. La reconnaissance du droit constitutionnel new yorkais de l’accès à un abri a été primordiale pour les développements qui ont suivi. Elle a débouché notamment sur les organismes de financement, tels que par exemple le programme SHLP, créé en 1988.

Aujourd’hui, alors que la rentabilité économique est nécessaire et incontournable pour l’élaboration de projets, que la transformation des villes par de grands investisseurs ayant le monopole du marché immobilier est inévitable, un contrôle est nécessaire, d’une part pour préserver un patrimoine bâti existant et d’autre part pour ne pas creuser un gouffre déjà profond entre les différentes couches sociales du monde occidental.

Léonore Nemec née à Genève en 1988, effectue ses études d’architecture aux écoles polytechniques de Lausanne et de Madrid. Après l’obtention de son diplôme à Lausanne en 2014, elle travaille à Bâle dans le bureau d’architectes Herzog & de Meuron. Depuis 2020, elle travaille comme architecte indépendante

Bibliographie

http://broadwayhousing.org/about/

 

https://www.coalitionforthehomeless.org

 

Sugar Hill Project, Historical Context Study, by Adjaye Associates, 2009.

 

Sugar Hill Request for Proposal, by Broadway Housings Communities, 2008.

 

Community Development Investment Review – Creative Placemaking, Gary Hattem. Volume 10, Issue 2, 2014.

 

Understanding the Financing and Costs of Sugar Hill by Bill Traylor .

 

Architecture vs Housing: The Case of Sugar Hill, by Susanne Schindler, Urban Omnibus, 2014.

 

Affordable Housing and a museum, by Keli A. Tianga, Shelterforce n°185, Winter 2016-2017.

Notes

1. Le projet Sugar Hill prend son nom du quartier dans lequel il se situe. Ce quartier se situe à Harlem et fût nommé ainsi car durant la période de Harlem Renaissance, c’était un lieu agréable à vivre, où les habitants vivaient la “sweet life“.

 

2. Modern Homelessness est un terme employé par l’organisation Coalition for the homeless pour décrire le phénomène moderne des sans-abris.

 

3. Coalition for Homeless est une organisation à but non lucratif pour la défense des droits des sans-abris aux Etats-Unis fondée en 1981.

 

4. Les Community Board sont des conseils municipaux de la Ville de New York répartis par districts. Ils sont consultés au sujet de différentes thématiques comme le zoning, les questions budgétaires, les prestations de services et les enjeux liés à la collectivité de quartier.

 

5. Request For Proposal, Architectural Design Services, The Sugar Hill Project, issued by Broadway Housing Communities. Programme du concours.

 

6 .Propos de Garry Hattem, ancien président de la Deutsche Bank Americas Foundation dans «Creative Placemaking», Community Development Investment Review – Creative Placemaking, Gary Hattem,. Volume 10, Issue 2, 2014.

Étiquettes

Sur ce sujet