L’équi­pe­ment do­mes­tique, un art de vivre

Entre mouvement moderne et design contemporain

Fonctionnel, moderne, contemporain ? L’aménagement intérieur de nos maisons est une tâche complexe. Ce qui de nos jours ressemble à un exercice de style est né, dans le cadre du mouvement moderne, d’une collaboration étroite entre l’architecte et le concepteur de l’équipement intérieur.

Date de publication
16-01-2012
Revision
01-09-2015

Dans une conférence prononcée en 1932 et dont la transcription a paru dans la revue Werk (Breuer, 1932), Marcel Breuer a tenté de distinguer ce qui est moderne de ce qui est à la mode. Pour l’architecte et créateur de mobilier du Bauhaus, l’un des pères du modernisme, le désir d’une amélioration constante – de l’objet, de l’habitat, de la vie – engendre, sous la poussée de la logique et de la passion, ce qui peut être qualifié de moderne. Les objets à la mode par contre seraient le produit d’une humeur, d’un « ennui salutaire » qui naît de notre besoin de diversion et de variété. Confondre les deux serait néfaste : le mouvement moderne court le risque de s’essouffler, explique l’auteur, parce qu’il aura été défendu « avec une étroitesse d’esprit qui, afin de paraître moderne à tout prix, a succombé aux allures de la mode ».
Ce jugement prémonitoire peut sembler sévère, mais il a l’avantage de mettre le doigt sur l’importance de ne pas se reposer sur des acquis, d’étudier le contexte et de redéfinir à chaque création le quoi, le pourquoi et le comment d’un projet. Contemporaine de Marcel Breuer, Charlotte Perriand (1903-1999) fut à ce niveau-là exemplaire, sa vie durant. Associée de Le Corbusier et de Pierre Jeanneret, amie du peintre Fernand Léger, elle est connue avant tout pour le mobilier en tubes d’acier créé au tout début des années 30. Sa conception des matériaux et de l’espace, ses innovations dans le domaine des objets utilitaires et de l’aménagement intérieur ont toutefois largement influencé l’ensemble de notre habitat au 20esiècle. Une raison suffisante de revenir sur son œuvre, à l’image de plusieurs expositions récentes (au Centre Pompidou en2005, au Museum für Gestaltung de Zurich en 2010 et au Petit Palais de Paris en 2011).
Venant des arts décoratifs – notion qui sera vite remplacée par le sobre « équipement de l’habitation » –, Charlotte Perriand refuse de simplement « meubler » un espace. Pour elle, architecture et aménagement intérieur se façonnent en parallèle. Elle porte un collier constitué de simples boules de cuivre chromé, illumine son logis avec un phare de voiture et se souvient d’un séjour marquant à l’hôpital, quand elle était gamine : le dépouillement et la blancheur de ces espaces l’avaient comblée, au point qu’elle fond en larmes au moment de réintégrer le logis familial. Le travail d’équipe lui est essentiel, tout comme une collaboration étroite entre l’architecte et la personne chargée de l’équipement. Elle conçoit ses objets en fonction de l’espace, les « tables en forme » par exemple, dont chacune présente des courbes uniques.
Dans un contexte marqué par la rationalisation de l’espace domestique, où l’on prône l’électrification de la cuisine et un rangement pratique afin d’alléger le travail de la femme au foyer, Charlotte Perriand fait un pas de plus, en s’intéressant en pionnière à l’articulation entre la cuisine, le séjour et la salle à manger. Le passe-plat se décline en une paroi de casiers et de tiroirs utilisables des deux côtés. Une quinzaine d’années plus tard, pour la Cité radieuse à Marseille, elle remplace le meuble passe-plat par un comptoir, et invente ainsi la cuisine bar, élément qu’elle déclinera plus tard sous les formes les plus diverses. En parallèle, depuis sa participation avec Le Corbusier à la préparation du deuxième Congrès international d’architecture moderne (1929), elle étudie l’équipement d’un « logis minimum », réflexion qui aboutit dans les années 70 à la création d’un studio de quatre lits de 27 m?2 habitables pour une résidence parahôtelière aux Arcs, en Savoie. L’ampleur du projet (30 000 lits pour trois stations de ski voisines) impose le recours à la préfabrication, et Charlotte Perriand conçoit une cabine de bains adossée à un bloc cuisine.

Un appartement, deux studios

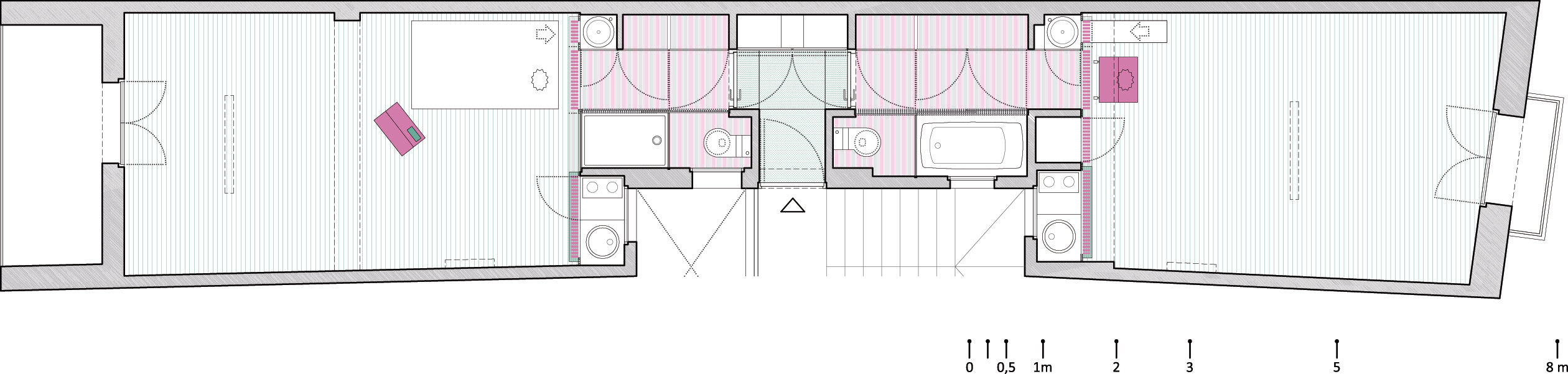
Il est un projet récent qui, à première vue, présente certaines analogies avec le caractère modulaire et fonctionnel de cette dernière grande réalisation de Charlotte Perriand : la transformation d’un appartement en deux studios dans la vieille ville de Saragosse par l’agence espagnole elii (www.elii.es). Un client madrilène qui passe plusieurs jours par semaine dans la capitale de l’Aragon cherche à acheter un logement secondaire. Il décide d’investir dans une surface à priori trop grande (75 m?2), qu’il fait transformer pour pouvoir en louer la moitié. Les trois associés d’elii, Uriel Fogué Herreros, Carlos Palacios Rodríguez et Eva Gil Lopesino (diplômés de l’Ecole technique supérieure d’architecture de Madrid respectivement en 2002, 2003 et 2009), optent pour la division nette. Ils doublent les sanitaires et le coin cuisine et regroupent ces nouvelles installations autour d’un sas d’entrée. Un faux plancher permet de camoufler les installations techniques et d’encastrer une baignoire ou un bac de douche. Cette stratégie dégage un maximum d’espace libre de chaque côté.
Les architectes vantent la « flexibilité fonctionnelle » de ces deux studios, qui découle selon eux du fait que le bloc de services peut être caché derrière des stores, et donc transformé en mur aveugle. Par ailleurs, le lit se glisse sous la passerelle, et les deux marches – dont l’intérieur luit grâce à une peinture photoluminescente – peuvent être utilisées comme table de nuit. Une planche à repasser coulissante pourrait servir de bar à petit-déjeuner, indiquent les architectes.
Le deuxième point fort, toujours selon les auteurs, concerne l’équipement technologique. Il est censé faire baisser la consommation énergétique des habitants. elii explique que l’on accède aux studios muni d’une carte électromagnétique, comme à l’hôtel. Ce qui fait automatiquement bloquer, quand on sort, les circuits électriques secondaires. On a donc le droit d’oublier d’éteindre la lumière, le système s’en charge. Le dispositif fixé au plafond affiche la consommation énergétique de l’usager en euros. Ces données sont par ailleurs transmises à un réseau social type facebook, ce qui permet aux internautes de garder un œil sur le gaspillage ou, au contraire, les économies de l’habitant. Pour ce qui est de la communication entre les deux voisins, elle serait facilitée grâce à un dispositif lumineux dans le sas d’entrée. Le revêtement des parois stocke la lumière et garde ainsi pendant un certain temps la trace de chaque passage. Ce qui permet également de laisser des messages, par exemple en apposant sa main sur le mur (l’empreinte sera visible une fois la lumière éteinte) en guise d’un bonjour.
D’un point de vue énergétique, cette vision des choses pèche sans doute par sa naïveté, ne serait-ce que parce que les nouvelles technologies sont très consommatrices, en énergie bien sûr mais aussi en terres rares, et qu’une simple requête sur un moteur de recherche (ou sur un réseau social, comme le suggèrent les architectes) n’est pas sans effet sur l’environnement (à écouter sur le sujet: l'émission « Place de la toile » du 7 janvier sur France Culture).

Fonctionnalisme excessif 

De manière générale, la comparaison avec Charlotte Perriand s’avère trompeuse. Le projet d’elii n’est ni modulaire, ni fonctionnel dans le sens où elle l’entend. On dispose en l’occurrence d’environ 35 m?2 par personne, ce qui veut dire qu’on est loin de la densité de la Cité radieuse ou de la résidence pour les Arcs. Puis, va-t-on véritablement faire la cuisine, dans ces studios ? On se contentera de chauffer un plat précuit. Charlotte Perriand ne se serait jamais soumise à ce fonctionnalisme excessif. Pour elle, habiter devait être un plaisir, une fête renouvelée chaque jour, et il fallait pour cela disposer d’un espace convivial. Dans les studios d’elii, les convives ne sont sans doute pas nombreux.
En l’occurrence, tout semble réduit à un dénominateur commun, l’écran. Elément central de l’habitation sous sa forme littérale, il affiche une béatitude – « voilà ce qui me rend optimiste », dit la dame en vert – que l’on n’est pas près de partager. Les stores blancs quant à eux permettent de « faire écran » (et donc de zapper) sans réellement modifier le dispositif spatial. Enfin, toute la documentation du projet occulte soigneusement la lumière naturelle, bien que dans le dos du photographe s’ouvre en réalité une porte-fenêtre et un balcon. Bref, l’extérieur ne semble exister qu’à travers les écrans.
Insensibles à ces critiques, les auteurs du projet argumentent en faveur d’une architecture qui « dépasse l’anthropocentrisme ambiant », qui traiterait l’homme comme un acteur parmi d’autres, « comme un nœud dans un réseau ». La distinction entre l’extérieur et l’intérieur d’une habitation est à leurs yeux obsolète. « Dans un projet comme celui-ci, expliquent-ils, nous nous intéressons à l’exploration des répercussions architecturales d’une vision du monde qui considère l’habitat comme un espace pris dans un réseau de transactions et d’échanges. »
Charlotte Perriand, elle, est toujours allée bien au-delà de ce fonctionnalisme sophiste et amnésique. « L’état de créativité est fragile, écrit-elle. La créativité est spontanée ; pour conserver sa fraîcheur et parfaire son accomplissement, elle a besoin d’être portée, enrichie par tous les membres d’une même équipe. Il n’y a pas concurrence, mais complémentarité. » (Perriand, 1985: 73)
Puis, dans un texte publié en allemand dans Werk en 1957, elle conclut : « Beaucoup de choses changent ; le public attend un mobilier pratique, joyeux et, si possible, accessible. Le commerce renouvelle ses formes afin de les adapter au goût du public, et les jeunes architectes d’intérieur s’orientent d’après les besoins du commerce. Tout cela donne naissance à un style cosmopolite, pour ne pas dire à une mode internationale, mais ne concerne l’équipement de l’habitation proprement dit que de loin. […] Tant que nous ne tenons pas compte des besoins spécifiques de chaque pays, tant que nous n’établissons pas de liaison étroite entre les différents arts – urbanisme, architecture, équipement intérieur, peinture, sculpture, arts appliqués – et la technique industrielle et artisanale, nous n’arriverons jamais à nous défaire entièrement de cette manière de créer commerciale. » (Perriand, 1957)

 

Sur ce sujet