Le cou­rage d’un mo­dèle dé­cloi­sonné

Concours pour la rénovation et extension de l’école Liotard à Genève

Comment agrandir une école cinquantenaire dotée d’un plan cruciforme? La surélévation aurait été la solution la plus évidente – si le règlement du concours n’interdisait pas de dépasser les trois étages sur rez-de-chaussée existants. L’adjonction d’un nouveau volume n’a pas séduit le jury. C’est le parti de Christian Dupraz Architecture Office qui a été préféré: épaissir la barre des classes et proposer une évolution typologique plus décloisonnée, avec le projet «Clara».

Date de publication
25-03-2021

Étymologiquement, le prénom «Clara» vient du latin clarus, qui pourrait être traduit par clair, éclatant, distinct, intelligible. C’est cette devise qui a été choisie par les Genevois Christian Dupraz Architecture Office. «Clara»: un nom porteur de sens, puisqu’il contient aussi bien les petits défauts que les grandes qualités de ce projet de rénovation et d’extension. 

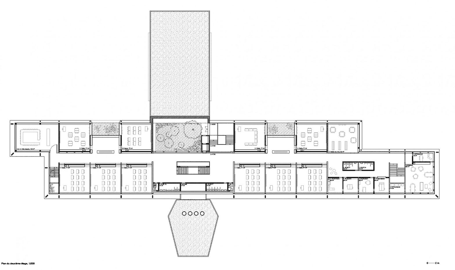
L’école Liotard ressemble, malgré sa taille imposante, à un pavillon dans un parc. C’est ainsi que Véronique Bertrand (BGM Architekten, Bâle), présidente du jury, rapporte la vision que le jury a eu de cet établissement scolaire, situé dans le quartier de la Servette, à Genève. Réalisée entre 1973 et 1975, l’école Liotard n’est presque pas visible depuis la rue ; il faut franchir un rideau d’arbres pour la découvrir. Son plan cruciforme, où se croisent le long parallélépipède des classes, parallèle à la route, et les volumes des espaces communs – la piscine, la salle de gymnastique et l’aula – ne découle certes pas d’un choix initial, mais de contraintes successives. C’est néanmoins cette particularité, ainsi que l’aula en béton apparent « brut », qui confèrent au lieu son identité.

Le concours avait plusieurs objectifs: d’une part rénover et mettre aux normes ce bâtiment, qui n’avait pas subi de transformations majeures depuis 45 ans, et, d’autre part, proposer une extension, afin de répondre à la croissance démographique que connaît le quartier depuis plusieurs années – qui n’est pas près de se terminer. En effet, 800 nouveaux logements sont prévus dans le périmètre d’ici 2026. Le programme demandait donc un agrandissement de la capacité d’accueil de l’école équivalent à un nouvel étage de classes, mais aussi une extension de la cuisine actuelle pour en faire une cuisine de production de 400 m2, ainsi que de nouveaux locaux de services. Étant donné que l’école est un commun, qui vit de manière continue du matin au soir, puisque diverses associations du quartier utilisent les locaux collectifs pendant les heures parascolaires, une nouvelle gestion des flux et des entrées était également l’un des points clefs exigés par les organisateurs du concours.

Claire et lumineuse

La proposition des lauréats se distingue de celle des autres concurrents par sa radicalité formelle et la réinterprétation du modèle d’enseignement auquel elle invite. Dans le choix volumétrique tout d’abord, puisqu’au contraire du consortium Bonhôte Zapata architectes et PEZ arquitectos SLP, classé deuxième au concours, qui proposait d’ajouter un volume en prolongement de la croix, comme un nouveau pavillon dans ce parc, l’équipe de Christian Dupraz a choisi une étreinte fusionnelle entre le bâtiment existant et son extension.

Le jury a néanmoins souligné le travail encore nécessaire sur le projet des nouvelles façades, la partie la plus problématique de « Clara », en dépit d’une grande sensibilité constructive. Il s’agit d’une structure autoportante d’éléments préfabriqués en béton, qui remplace la façade existante en damier de panneaux préfabriqués. Avec une rhétorique qui souligne leur assemblage, la finesse des éléments préfabriqués pondère la massivité du bâtiment aux dimensions imposantes ; il apparaît finalement comme un meuble moderne soigné, posé sur ses pieds graciles au milieu d’un parc – impression renforcée par le préau qui se dégage au nord-ouest, sous l’extension. Cependant, selon Véronique Bertrand, le rapport entre pleins et vides des façades mériterait d’être réétudié en relation avec les questions énergétiques, de même que le raccord peu convaincant entre le volume des classes et l’aula brutaliste – pour le moment teint en gris et habilement masqué derrière un arbre sur l’image du concours.

Comme à l’origine, l’articulation entre les deux barres de la croix reçoit les systèmes de distribution. La nouvelle transparence de la salle polyvalente, qui met en valeur le parc de l’école, a été saluée par le jury, ainsi que la proposition d’un nouvel escalier à une volée dans le hall d’accueil. Des choix qui vont dans le sens d’un plan plus calme et plus radical. 

Une typologie scolaire encore peu commune en Suisse romande

Mais la force de «Clara», c’est cette nouvelle couche qui vient épaissir au nord la barre de salles de classe : celle-ci est décalée longitudinalement par rapport au parallélépipède d’origine, afin de préserver les façades pignons. Par ce parti pris compact, l’école, basse et protégée par son écrin de verdure intact, contraste avec les immeubles nettement plus élevés du quartier.

Les lauréats affirment par ce choix la longévité du plan cruciforme, se l’approprient et le font évoluer. En le décloisonnant, ils disposent les classes en vis-à-vis et s’affranchissent ainsi du couloir existant. L’adjonction offre également une « façade habitée » orientée nord-est, façade qui jusqu’à présent n’était traitée que comme un dos, un lieu de passage. Les salles de classes fonctionnent comme des clusters, rassemblées en grappes autour d’espaces collectifs appropriables et de patios végétalisés en double hauteur. Le jury a même évoqué la possibilité d’en faire des jardins d’hiver, afin de permettre différents usages tout au long de l’année. Ce regroupement en cluster de classes, plutôt qu’en classes individuelles, est mis en œuvre depuis des années en Suisse allemande. Il permet de rassembler certaines activités dans un espace collectif, voire même entre classes voisines. Même si les Alémaniques sont allés encore plus loin dans cette typologie, en s’orientant vers ce qu’ils appellent des «paysages pédagogiques» (Lernlandschaften), le projet de Christian Dupraz Architecture Office offre une magnifique opportunité de combler le retard de la Suisse romande, et d’explorer de nouvelles manières d’enseigner, au sein de spatialités attractives.

Rénovation et extension de l’école Liotard à Genève

 

Maître d’ouvrage : Ville de Genève

 

Procédure: Concours de projets d’architecture à un degré en procédure sélective

 

Projet lauréat: «Clara», Christian Dupraz Architecture Office


En ligne

Les résultats et le rapport du jury du concours sont consultables sur competitions.espazium.ch

Sur ce sujet