La Bis­to­quette: la re­cette de l’ar­chi­tec­ture des coo­pé­ra­tives

À La Chapelle-Les Sciers, à Plan-les-Ouates (GE), les curieuses coursives boisées de la coopérative La Bistoquette s’animent peu à peu. Les trois volumes en lisière du quartier – imaginés par le bureau atba lors du concours lancé par la Commune en 2018 – dessinent les nouvelles portes d’entrée de ce secteur renouvelé.

Date de publication
13-02-2026

Au coude-à-coude avec les fameux immeubles en pierre massive du consortium Perraudin Archiplein, dont nous avons abondamment parlé1, La Bistoquette fait partie des dernières émergences de ce «nouveau» quartier de Plan-les-Ouates. Sur cette ancienne zone villa dont le schéma de densification se répète depuis une quinzaine d’années, le PLQ des Sciers n’autorise guère les débordements: des plots de 20×20 m bien alignés, alternant entre 3 et 7 étages, visiblement conçus pour faciliter la répartition des lots. C’est bien là que la coopérative a fixé son ambition: déployer, dans ce cadre contraint, un projet sobre, expérimental et fondé sur les usages – par les matériaux, les pratiques et la participation des habitants.

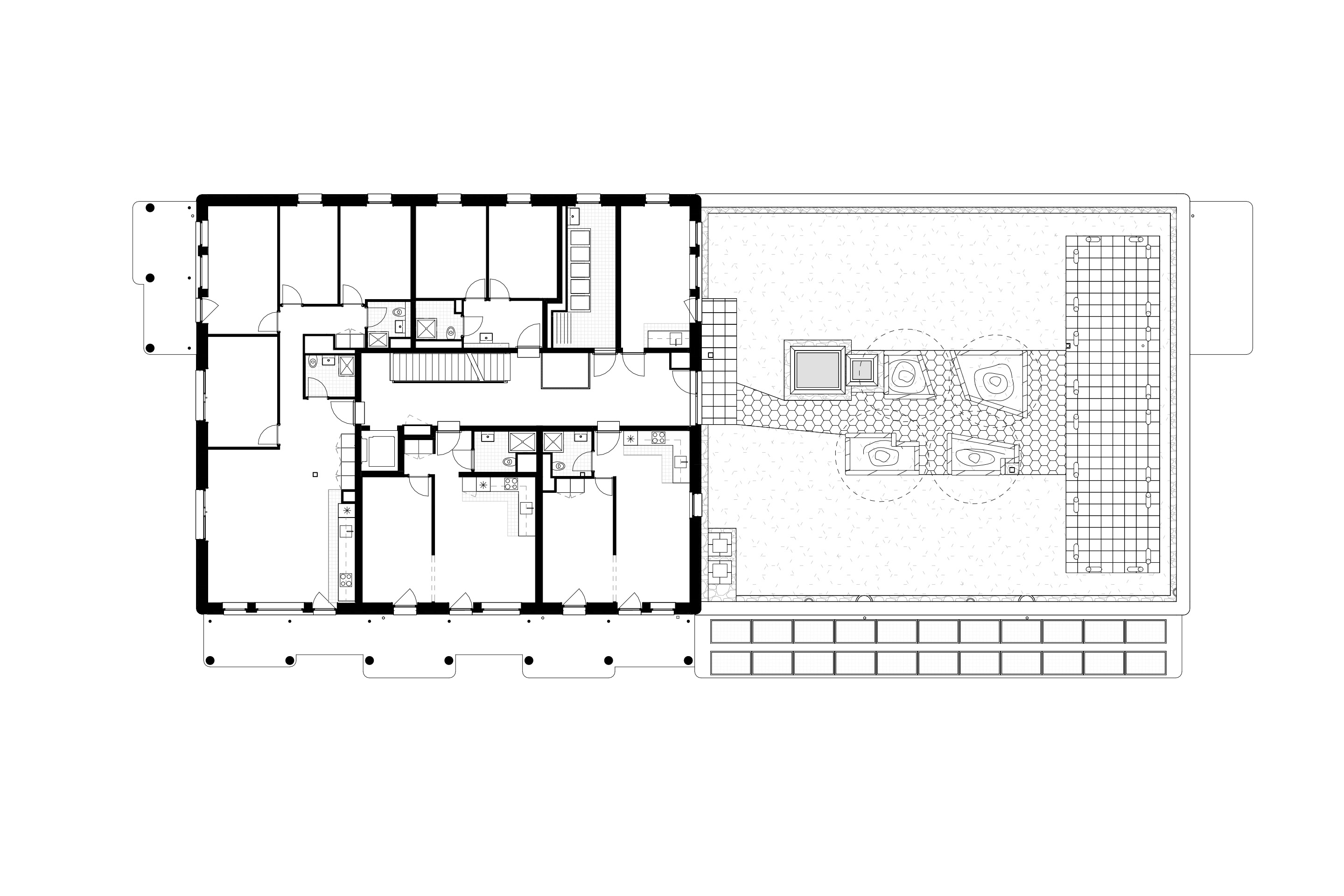
Le concours de 2018, lancé par la Ville, ouvert aux couples architectes-coopératives, attribue le droit de superficie à la coopérative La Bistoquette avec le bureau atba. Ensemble, ils dessinent un projet qui accueille le programme demandé par le concours, 103 logements alternant entre 2.5 et 6 pièces ainsi qu’un ensemble d’espaces communs. Ils sont répartis dans trois volumes de taille croissante, le plus petit (R+3) correspond à l’emprise au sol standard du PLQ, alors que le plus grand (R+7) répète trois fois cette dimension. Si les étages sont habités, le PLQ a requis des rez-de-chaussée actifs: une épicerie a déjà ouvert ses portes, une crèche la rejoindra bientôt et Infomaniak a installé ses bureaux dans le socle du bâtiment B. Le reste de l’espace de plain-pied est réparti entre des locaux communs et des entrées partagées.

Structurellement, des dalles mixtes bois-béton s’étendent à chaque étage depuis la façade porteuse en bois jusqu’au noyau central en béton, où de larges escaliers et paliers de distribution, conçus comme des rues intérieures, mènent aux logements.

Les ingrédients de la recette atba

Après ses précédentes réalisations à Soubeyran, Confignon ou encore aux Plaines-du-Loup à Lausanne, le bureau atba livre une nouvelle version de sa recette de la coopérative genevoise. Certains ingrédients (coursives communes, traitement des eaux usées) déjà expérimentés auparavant se retrouvent dans les trois bâtiments à Plan-les-Ouates.

D’abord, impossible d’ignorer les 300 troncs d’arbres qui soutiennent ostensiblement les coursives: de grands troncs de chênes des forêts de Jussy et Versoix choisis et coupés par La Forestière2 de Genève, écorcés par les habitants eux-mêmes. Chacun des trois immeubles est ainsi, dès le rez-de-chaussée, strié par ces coursives extérieures et balcons, qui agissent également comme brise-soleil et supports pour la végétation grimpante, tandis que la façade nord reste muette, sobre et plus intime. Qualifiée par atba «d’espace de l’entre deux»3, cette façade habitée est au cœur des relations entre les habitants.

Le bureau est également reconnu pour son astucieuse ingénierie CVSE, et plus précisément pour le tri des eaux grises et brunes et des urines. Ici, le système de toilettes à séparation diffère de leurs anciens projets, où urines et eaux brunes étaient mélangées et traitées par lombricomposteur; désormais elles sont séparées et l’urine est récupérée et traitée pour en faire un fertiliseur (disponible dans le commerce)4.

Mais la Bistoquette a surtout fait parler d’elle grâce à l’étonnant colocataire qu’elle abrite dans ses sous-sols: le data center d’Infomaniak5. Pour compenser le peu de voitures par habitant et la surface surdimensionnée de parking prévue par le PLQ, la coopérative a conclu un partenariat avec l’hébergeur web suisse, qui redistribuera les émissions de chaleur de son centre de données aux trois bâtiments et le surplus au réseau de chauffage à distance (CAD) du canton.

Outre cette utilisation astucieuse des espaces non désirés, le projet tire aussi sa force d’une série d’éléments avant-gardistes qui ponctuent la réalisation. Les parois phoniques ont été réalisées en terre coulée, un matériau capable de réguler l’humidité (ces cloisons ont aujourd’hui fait leurs preuves, malgré quelques fissures liées au séchage). Quant aux façades, elles sont composées de caissons préfabriqués remplis d’une matière isolante à portée de main: les copeaux de bois de l’atelier de menuiserie-charpenterie qui a réalisé la structure.

Les habitants au centre du plan

Une fois le concours6 terminé, dans la phase d’avant-projet et d’autorisation, les futurs habitants ont été impliqués dans la conception de leurs foyers. Bien que cette approche ne soit une première ni dans le monde de la coopérative, ni pour le bureau genevois, cette intégration a permis d’anticiper et d’accompagner les processus du projet. Répartis dans des groupes de travail, les habitants ont réfléchi aux thèmes des matériaux, des espaces extérieurs, des typologies, etc. Des discussions entre la Bistoquette7 et atba a émergé  une architecture qui tire sa spécificité des idées et besoins propres aux particuliers8. Ont-elles pour autant été génératrices de typologies singulières?

En ce qui concerne les appartements, la Bistoquette reste plutôt dans des cadres standards de foyer, où le vivre-ensemble est situé dans des pièces communes bien définies: halls d’entrée communs au rez-de-chaussée, ressourceries pour partager des objets et buanderies à chaque palier, économats au sous-sol pour entreposer des denrées alimentaires ou encore cuisines communes aux étages. Mais un des enjeux du concours résidait dans la capacité à intégrer ces locaux communs au loyer des appartements, à travers un plan financier qui en démontre la faisabilité.

Une tentative typologique audacieuse apparaît toutefois dans la création de chambres indépendantes que les habitants peuvent louer (certains les utilisent comme bureau, par exemple) et des pièces de réserve, pensées pour permettre à un appartement de passer de six à cinq pièces selon l’évolution des
usages. Malheureusement, cette hypothèse ne peut être réalisée dans les faits, car elle se heurte au cadre réglementaire de l’Office cantonal du logement et de la planification foncière: en tant que logements d’utilité publique, les baux ne peuvent être modifiés a posteriori sans remettre en cause le décompte des pièces et, par conséquent, l’accès aux subventions.

Si la centaine d’appartements ne refonde pas la typologie de la coopérative genevoise, la Bistoquette concentre ses efforts sur un bâtiment sobre et bioclimatique dans un cadre urbain contraint. Au côté des immeubles en pierre massive, la forêt de troncs qui s’impose au regard dès l’arrêt de bus donne immédiatement à lire l’esthétique écologique de ces trois bâtiments.

Notes

 

1 Frédéric Frank et Stefano Zerbi , «Pierre massive à domicile», TRACÉS 9/2021

 

2 Société coopérative de propriétaires et exploitants forestiers

 

3 Naïri Arzoumanian, Daphné Bengoa, «Pour une architecture de l’entre-deux», TRACÉS 2/2022

 

4 Vuna.ch: entreprise de recyclage de l’urine pour la récupération des nutriments.

 

5 Stéphanie Sonnette, «Infomaniak à la Bistoquette: chaleur fatale», ­espazium revue 1/2026

 

6 Lancé en 2018 par la Commune de Plan-les-Ouates, ce concours était ouvert seulement aux groupements architecte-coopérative.

 

7 La coopérative se constitue alors de quatre primo-coopératives (Les Echaux, Harmonie, Co-PAC et YAKA).

 

8 Marc Frochaux, «La Bistoquette: définir le confort avec les habitants», espazium.ch, 2024

Coopérative La Bistoquette, Plan-les-Ouates (GE)

 

Maître d’ouvrage: Coopérative La Bistoquette

 

Architecture, planification et chantier: atba architecture + énergie

 

Génie civil: EDMS

 

Ingénieur CVSE: atba architecture + énergie

 

Architecte paysagiste: In situ

 

Maçonnerie: Maulini

 

Surface de plancher: 12000 m2

 

Coûts (TTC) CFC 1-9: 50.6 mio CHF

Magazine

Sur ce sujet