Es­paces ra­tion­nels/pen­sée oblique

Réalisation

Avec l’extension de l’école secon­daire Weitenzelg à Romans­horn (TG), Bak Gordon Arquitectos (Lisbonne) et Bernhard Maurer (Zurich) s’inscrivent dans le prolon­gement de l’existant tout en s’en distançant. Le nouveau bâtiment marque clairement un renouveau sur l’ensemble scolaire de Romanshohn et déploie vers l’intérieur une séquence spatiale très riche.

Date de publication
30-09-2019

La volonté de la Ville de Romanshorn de développer sur le site de Weitenzelg, à côté d’un ruisseau, un campus dédié à la formation, au sport et aux loisirs, impliquait de réorienter complètement l’école secondaire. Le concours sélectif lancé en 2015 visait le remplacement de l’aile scolaire vétuste construite dans les années 1950-1960. Le nouvel établissement de Bak Gordon Arquitectos et Bernhard Maurer établit désormais un lien avec les bâtiments de l’école cantonale de l’extrémité sud-est de l’ensemble scolaire, construits dans les années 1980-1990.

Un agencement orthogonal…

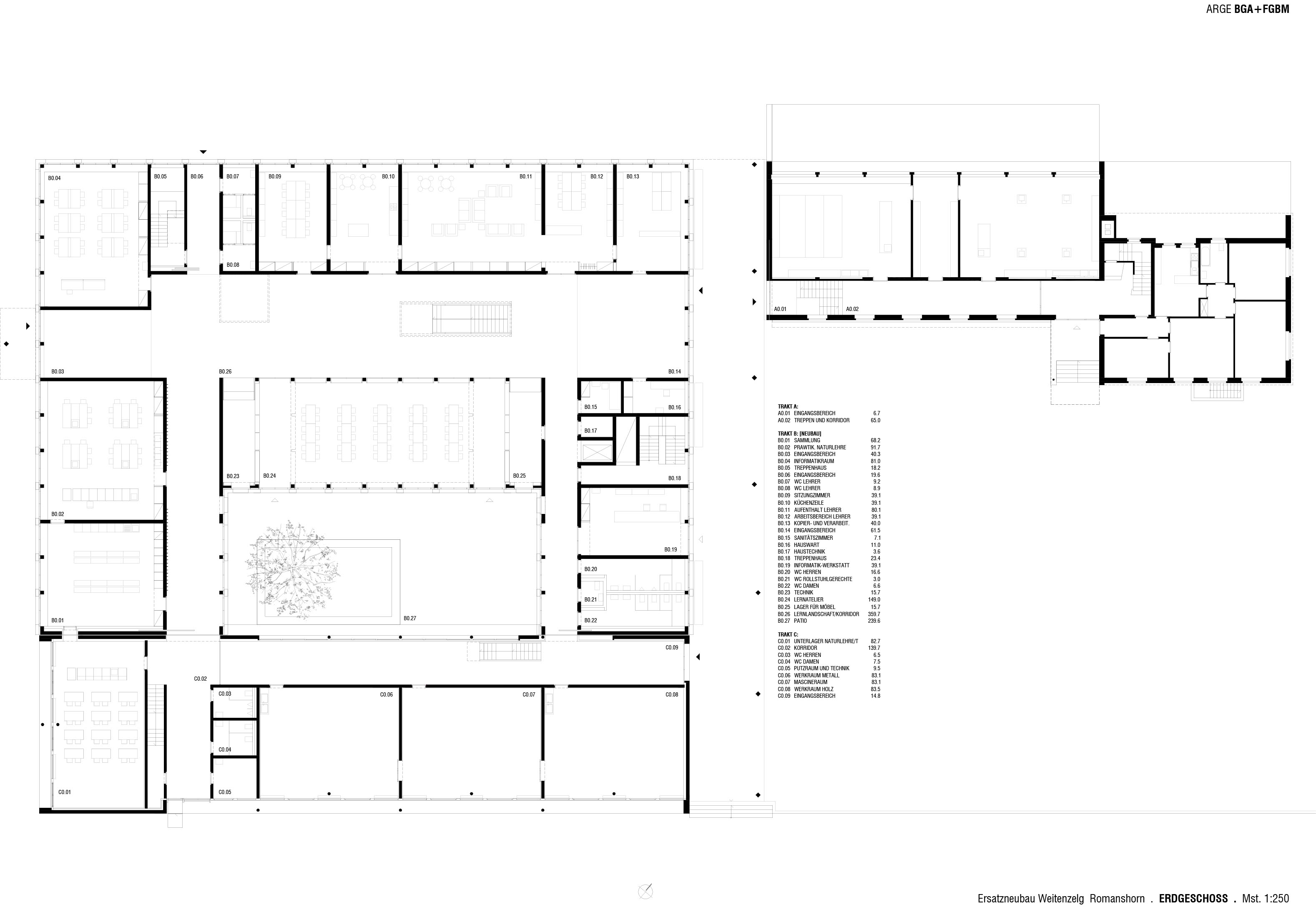
Le nouveau corps de bâtiment compact est mis en relation à l’existant de manière à le relier, à créer une relation avec le reste du campus. La forme carrée du volume provient de la nécessité de conserver l’une des ailes des salles de classe, l’aile C, datant de 2010, que les architectes ont élargie sur quatre strates (patio – atelier – travée avec accès – salles de classe).

Si, dans le projet de concours, constructions neuve et ancienne se confondaient presque imperceptiblement avec leur façade béton, la façade réalisée structure le volume en socle, corps, attique, révèle les intrados et dessine même une frise.

Le nouvel ensemble se présente par son vaste avant-toit, qui forme un préau devant la cour de récréation. Le parvis mène à l’école cantonale, au réfectoire et à la salle de sport. Le parcours longe un bâtiment des années 1950, avec sa toiture à deux pans, dont l’orange vif a été adapté à la couleur pastel de la façade de la construction neuve. Cette construction porte les marques de son époque, avec son petit jardin en façade arborant des sculptures et un bassin. Le plan d’aménagement prévoit son remplacement par une autre construction neuve, probablement d’ici une dizaine d’années.

...des relations obliques

Le hall d’entrée de l’école relie la cour de récréation et le jardin situé à l’arrière du bâtiment. La mutualisation sur deux niveaux de cet espace et de l’atelier d’apprentissage permet d’utiliser ce volume pour des activités parascolaires. Quant au nouveau patio, il forme un espace extérieur introverti, dispense de la lumière et sert de passage à l’air libre entre la nouvelle construction et l’aile ancienne, réservée aux salles de classe.

Cette disposition urbaine claire et rationnelle est contrebalancée par quel­ques éléments obliques qui viennent bouleverser la perception du bâtiment : d’abord, à l’extérieur, les piliers et la tour d’aération pivotés de 45° dans le plan, à l’intérieur, dans le revêtement bois de ­l’­atelier, des mains courantes ou dans le calepinage des panneaux acoustiques. Le nouveau bâtiment cherche également à tisser des liens avec l’école existante, en reproduisant sur les plafonds les mosaïques murales triptyques réalisées par Josef Emil Mehr en 1956.

D’anciens crochets de volet servent ici et là de portemanteaux et contrastent avec les éléments neufs. Les mosaïques en céramique conçues par l’artiste britannique Rachel Lumsden soulignent, par leur disposition fragmentée, certains rapports visuels dans l’espace. Outre ces éléments, la stratification de l’espace en patio, atelier et hall d’entrée, dégage des espaces intermédiaires généreux qui construisent des relations par leurs diagonales, à tous les étages.

Lumière sur béton, lumière sur bois

L’emploi du béton, dans le contexte du campus, est une évidence : il détermine clairement la matérialité des espaces et évoque immédiatement l’ambiance lumineuse des établissements scolaires des années 1960-1970. Les escaliers et les ouvertures dans les dalles relient les différents étages entre eux, la stratification de l’espace induit des éclairages spécifiques. Chaque niveau semble enveloppé dans un halo de lumière qui lui est propre et la rangée de sheds centrale confère au béton apparent une esthétique délicate qui vient homogénéiser le tout.

Les espaces intermédiaires et les salles de classe sont clairement différenciés et, contrairement à ce que prévoyait le projet du concours, ne peuvent pas être permutés de manière flexible : les murs sont coulés en béton alors que les portes et les parements sont en bois. Il ne s’agit donc pas à proprement parler d’un plateau d’étude ouvert, un « Lernlandschaft », mais de deux univers clairement séparés : d’une part les salles de classes orientées vers l’extérieur, avec leur annexe pour les groupes, de l’autre des espaces intermédiaires intérieurs, baignés dans une lumière naturelle indirecte.

Derrière cette apparence compacte et rationnelle se révèle donc à l’intérieur une enfilade de pièces qui évoque « une pensée oblique, non conformiste ». C’est ce qu’expliquaient les architectes lors d’une matinée estivale, dans le bâtiment rafraîchi par les eaux du lac. L’aménagement de ces espaces informels n’a donc pas été prévu : leur appropriation sera laissée aux soins des usagers.

Extension de l’école secondaire Weitenzelg, Romanshorn (TG) -Concours en procédure sélective : 2015, achevé en mai 2019

  • Maître d’ouvrage : Sekundarschule Romanshorn
  • Assistant Maître d’ouvrage : Buffoni Bühler AG, Saint-Gall
  • Architecte : Bak Gordon Arquitectos, Lisbonne et Bernhard Maurer, Zurich – ARGE RBK + FGBM
  • Direction des travaux : Bischof Partner Architektur AG, Romanshorn
  • Ingénieur civil : Frick & Gattinger AG, Vaduz
  • Ingénieur élect. : IBG B. Graf AG, Weinfelden
  • Ingénieur CVS : Gianotti AG, Winterthour
  • Protection incendie : Kolb Josef AG, Romanshorn
  • Géotechnicien : Andres Geotechnik AG, Saint-Gall
  • Physicien du bât. : BAKUS Bauphysik & Akustik, Zurich

Sur ce sujet