En vi­site: deux col­lèges font l’es­pace pu­blic

Cette nouvelle rubrique est conçue à partir du programme de visites professionnelles organisées par la SIA Vaud. Fin 2022, deux collèges ont été visités, qui tous deux ont un impact significatif sur l’espace public, et donc la vie civique: le collège Courbet à la Tour-de-Peilz (VD) (neff neumann) et l’extension du collège d’Ardon (Berset Bruggisser Atelier d’architecture).

Date de publication
26-01-2023

Centre scolaire de Cordé, Ardon (VS)

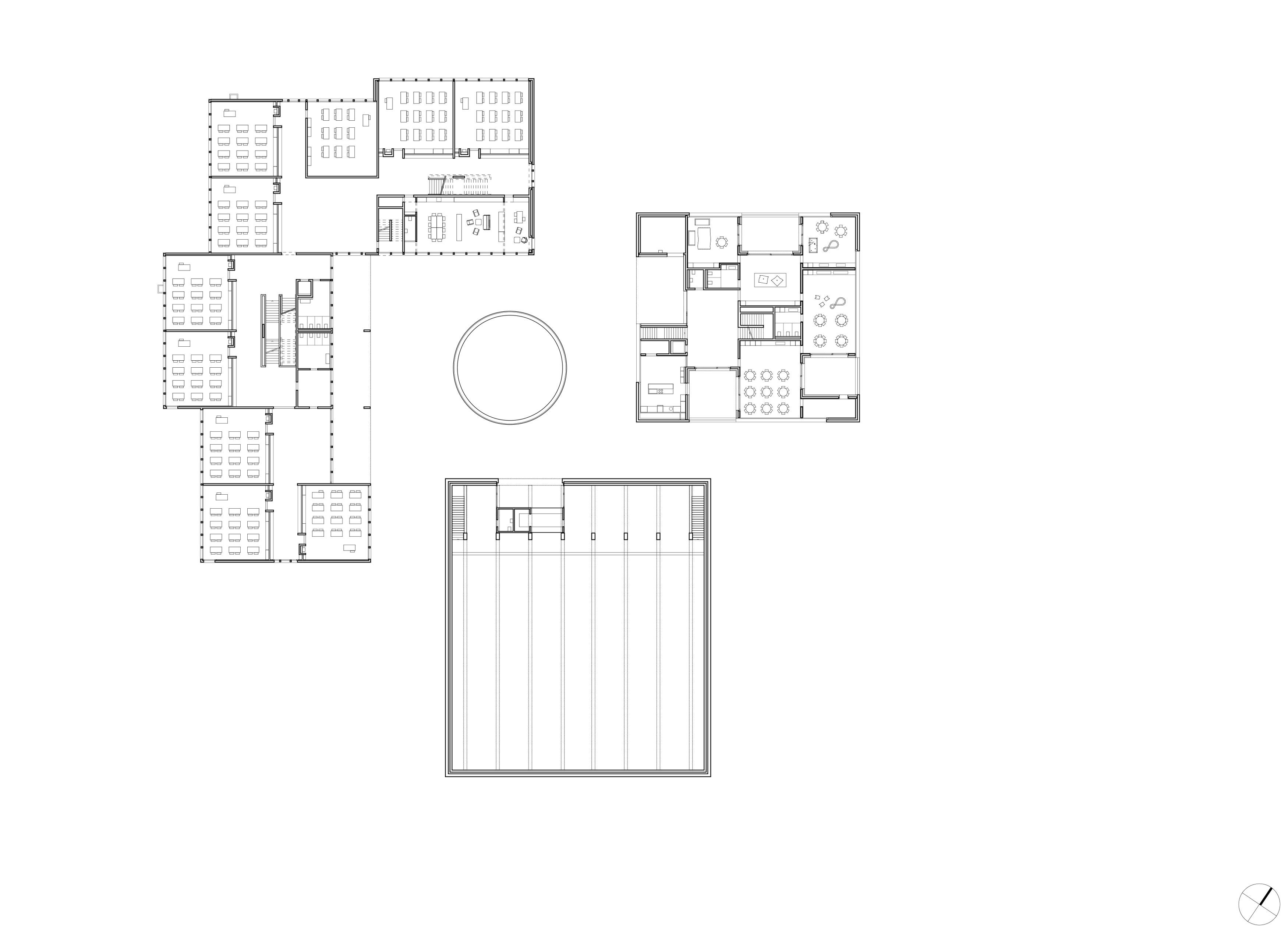
En visite avec la SIA Vaud cet automne, nous avons découvert un autre projet d’établissement scolaire qui, outrepassant la « résolution d’un programme », agit sur l’espace public, son environnement, et participe à transformer la vie d’un village1. Ou plutôt du quartier de villas qui l’entoure, en l’occurrence, composé de petites maisons alignées derrière des haies, qui ne laissent pas vraiment de place à la vie publique. Comme les rares vides sont offerts au stationnement, il n’y a plus que le préau de l’école et son petit parc attenant qui peuvent être considérés comme « place du village ». Le concours (2016) demandait la mise en conformité du collège (parasismique) et l’adjonction d’une UAPE puis d’une salle de sport double en remplacement de l’ancienne (celle-ci sera achevée en 2024). Conscients du rôle que joue cette école, les architectes ont proposé d’y déplacer la bibliothèque communale (bien que ce n’était pas prévu au programme), de réunir ainsi les activités publiques, puis de renforcer l’attractivité du parc. « Bâtir un front de rue dans un quartier de villas n’est pas facile », admettent les architectes. Aussi il a fallu rester en retrait et créer une transition douce avec les jardins privés. En périphérie, les aménagements extérieurs sont thématisés par leurs usages (promenade, jeux d’équilibres, tables de ping-pong), tandis qu’un jardin plus contemplatif anime le patio, avec des pierres de la carrière de Massongex (VS) et des essences alpines (pins, rhododendrons, myrtilliers). La bibliothèque tourne autour de ce patio et, au rez-de-chaussée inférieur, la circulation reliera à terme toutes les parties de l’ensemble : école, crèche, salles de sport.
L’autre mesure consiste à confirmer l’importance patrimoniale de l’école, bien qu’elle ne soit pas classée. En la restaurant puis en intégrant son langage à l’extension, le projet rend hommage à cette architecture caractéristique des édifices publics construits en Valais dans les années 1960-1980, avec son béton apparent et ses décrochements. Pour ce faire, il a fallu l’adapter aux standards actuels, par exemple les épaisseurs des dalles, qui ont augmenté entre-temps. Il en résulte des différences de niveaux qui donnent corps à l’expérience spatiale du projet, et donc de la visite.

 

Collège Courbet, la Tour-de-Peilz (VD)

Le 24 septembre, le groupe En visite (SIA VD) nous emmenait voir un projet qui aura un impact sensible sur la vie civique. Le collège Courbet est issu d’un concours SIA 142. L’objectif ? Inscrire le nouvel édifice dans un ensemble qui forme une sorte de petit quartier scolaire, le long de la place des Anciens-Fossés, à la Tour-de-Peilz (VD). En proposant de mutualiser le préau et le parc existant, de s’implanter le plus en retrait possible, le projet lauréat était l’un des rares à ménager les vieux arbres présents sur le site ; ils seront intégrés dans des îlots animant la placette qui se déploie au sud. Ce parti renforce ainsi la promenade verte qui conduit de la vieille ville à la gare de la Tour-de-Peilz. Le bâtiment borde cet espace public par une arcade, menant à l’entrée de la bibliothèque-ludothèque. L’arcade s’élargit devant l’entrée principale, donne accès à l’aula de l’école, au réfectoire et à la tribune de la salle de sport, également exploitée par des clubs. Enfoncée dans le sol, elle s’oriente vers la lumière du nord mais elle est aussi éclairée en second jour et visible depuis la mezzanine de la bibliothèque. Le concept de circulation et les découpes multiplient les échanges entre usagers, qu’ils soient sonores ou visuels, de la place publique jusqu’à la salle de gymnastique.

C’est à l’étage que le plan dévoile tous ses atouts, notamment en termes de pédagogie. Dans le concept de protection incendie mis en place, les espaces de desserte situés aux extrémités peuvent être exploités et meublés sans restriction. Côté sud, les salles de classes des plus petits sont groupées par deux unités autour d’un vestiaire commun, un petit espace de transition illuminé zénithalement qui permet de regrouper les élèves. Les 18 salles de classes sont groupées et organisées en moulin autour d’un grand patio, que les architectes qualifient de « préau appropriable ». Généreux, cet espace particulier est recouvert d’un deck en bois et sera doté d’un mobilier et de plantes en pots. Ce dispositif original permet d’aérer et d’illuminer les couloirs ; il pourra aussi servir à des pauses courtes entre deux périodes, voire susciter des expériences pédagogiques (la botanique, par exemple).

Note

1. Le projet n’est pas sans rappeler le centre scolaire Nosedo à Massagno (TI). Voir l’article de Federico Tranfa, « Prendre racine », dans TRACÉS 10/2020.

INTERVENANTS

 

Centre scolaire de Cordé, Ardon (VS)

Maître d’ouvrage : Commune d’Ardon (VS)
Architecture : Berset Bruggisser Hasani architectes,
Lausanne et Andrey Schenker Sottaz architectes, Fribourg
Ingénieur civil :Vincent Becker ingénieurs, Cornaux
Architectes paysagistes : Hüsler & Associés, Lausanne
Ingénieur feu et sécurité : Holinger, Sion
Concours en procédure ouverte : 2016
Réalisation : Phase 1 2019-2021, phase 2
2021-2024

 

 

Collège Courbet, la Tour-de-Peilz (VD)
Maître d’ouvrage : Commune de la Tour-de-Peilz (VD)

Architecture : neff neumann, Zurich
Ingénieur civil : Meylan ingnieurs, Lausanne
Architectes paysagistes : L’Atelier du Paysage, Lausanne
Procédure : Concours ouvert SIA 142, 2015
Réalisation : 2019-2022

Vidéo 


En visite – avec la SIA Vaud
Centre scolaire de Cordé, Ardon (VS)
Berset Bruggisser Atelier d’architecture
Visité le 08 octobre 2022

En entretien: Julien Bruggisser
Images et réalisation: Ari Cretton

Sur ce sujet